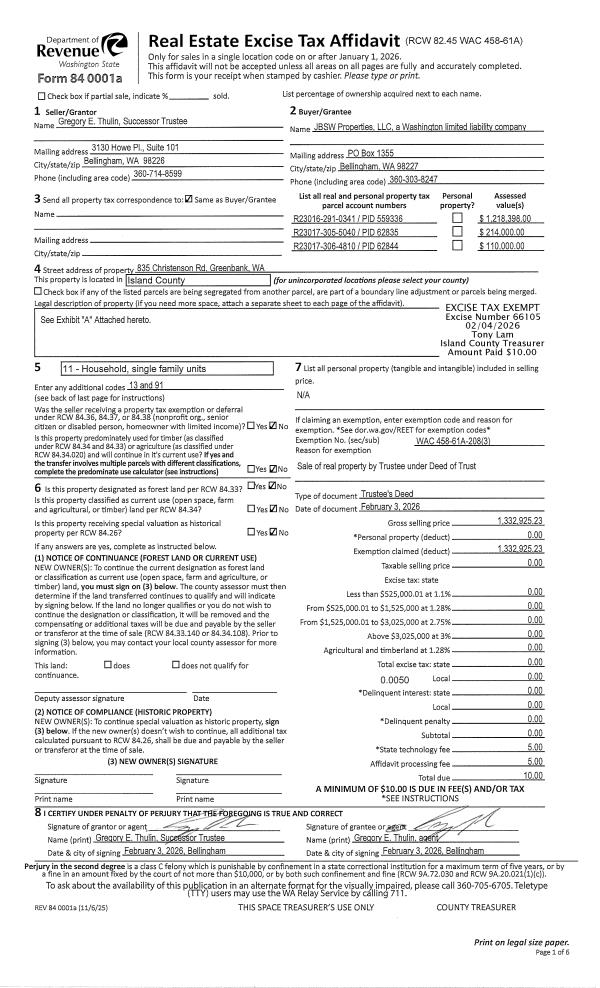
Property
Account |
| Property ID: | 457838 | Abbreviated Legal Description: | 1974 SILVERCREST 24X60 VIN# WS664 TPO @21082 |
| Geographic ID: | M910000000430 | Agent Code: | |
| Type: | Mobile Home | | |
| Tax Area: | 300 - APPRAISER-Cpvl Schl Dist, in Cpvl | Land Use Code | 11 |
| Open Space: | N | DFL | N |
| Historic Property: | N | Remodel Property: | N |
| Multi-Family Redevelopment: | N | | |
| Township: | | Section: | |
| Range: | |
Location |
| Address: | 701 S MAIN ST # 43 COUPEVILLE, WA 98239 | Mapsco: | |
| Neighborhood: | Cycle 2 | Map ID: | |
| Neighborhood CD: | 2 |
Owner |
| Name: | WILLIAMS, MARK | Owner ID: | 274742 |
| Mailing Address: | 701 S MAIN ST #43 COUPEVILLE, WA 98239 | % Ownership: | 100.0000000000% |
| | | Exemptions: | SNR/DSBL |
Taxes and Assessment Details
Values
| (+) Improvement Homesite Value: | + | $97,001 | |
| (+) Improvement Non-Homesite Value: | + | $0 | |
| (+) Land Homesite Value: | + | $0 | |
| (+) Land Non-Homesite Value: | + | $0 | |
| (+) Curr Use (HS): | + | $0 | $0 |
| (+) Curr Use (NHS): | + | $0 | $0 |
| | | -------------------------- | |
| (=) Market Value: | = | $97,001 | |
| (–) Productivity Loss: | – | $0 | |
| | | -------------------------- | |
| (=) Subtotal: | = | $97,001 | |
| (+) Senior Appraised Value: | + | $19,289 | |
| (+) Non-Senior Appraised Value: | + | $0 | |
| | | -------------------------- | |
| (=) Total Appraised Value: | = | $19,289 | |
| (–) Senior Exemption Loss: | – | $19,289 | |
| (–) Exemption Loss: | – | $0 | |
| | | -------------------------- | |
| (=) Taxable Value: | = | $0 | |
Taxing Jurisdiction
| Owner: | WILLIAMS, MARK | | |
| % Ownership: | 100.0000000000% | | |
| Total Value: | $97,001 | | |
| Tax Area: | 300 - APPRAISER-Cpvl Schl Dist, in Cpvl |
| CF | Conservation Futures | 0.0316035091 | $97,001 | $0 | $0.00 | | |
| CEM2 | Cemetery #2 | 0.0095056933 | $97,001 | $0 | $0.00 | | |
| COUP | City: Town of Coupeville | 0.8426414490 | $97,001 | $0 | $0.00 | | |
| FIRE5 | Fire & Rescue Dist #5 C Whidbey GEN | 1.2008080668 | $97,001 | $0 | $0.00 | | |
| FIRE5BOND | Fire & Rescue Dist #5 C Whidbey BOND | 0.0000000000 | $97,001 | $0 | $0.00 | | |
| HOBOND | Hospital BOND | 0.0000000000 | $97,001 | $0 | $0.00 | | |
| HOGEN | Hospital GEN | 0.3902502903 | $97,001 | $0 | $0.00 | | |
| CE | County Current Expense | 0.3708482477 | $97,001 | $0 | $0.00 | | |
| ISLANDEMS | Hospital GEN (EMS) | 0.5000000000 | $97,001 | $0 | $0.00 | | |
| LIB | Library Sno-Isle GEN | 0.3153421757 | $97,001 | $0 | $0.00 | | |
| LIBCAP | Library Sno-Isle BOND (Cap Fac Imp Area) | 0.0000000000 | $97,001 | $0 | $0.00 | | |
| POCOUP | Port of Coupeville GEN | 0.1093371703 | $97,001 | $0 | $0.00 | | |
| POCOUPIDD | Port of Coupeville IDD | 0.3409740022 | $97,001 | $0 | $0.00 | | |
| COUPSDTECH | School 204 CP (TECH) | 0.0000000000 | $97,001 | $0 | $0.00 | | |
| SCH204MO | School 204 Enrichment | 0.0000000000 | $97,001 | $0 | $0.00 | | |
| ST | State School | 1.3035497053 | $97,001 | $0 | $0.00 | | |
| ST2 | State School Part 2 | 0.0000000000 | $97,001 | $0 | $0.00 | | |
| | Total Tax Rate: | 5.4148603097 | | | | | |
| | | | | Taxes w/Current Exemptions: | $0.00 | | |
| | | | | Taxes w/o Exemptions: | $780.23 | | |
Improvement / Building
| Improvement #1: | MANUFACTURED HOME | State Code: | Y | 1416.5 sqft | Value: | $97,001 |
| Bathrooms: | 0 | Bedrooms: | 0 | | Ceiling: | PLASTER PAINTED | Cooling: | EVAP NO DUCT | | Exterior Wall/Cover: | VINYL | Floor Covering: | CARPET 100% | | Floor Structure: | SLAB ON GRADE | Foundation: | SLAB | | Heating: | FHA ELECTRIC | Interior Finish: | PLASTER | | Plumbing Fixture Cnt: | 1 | Roof Slope: | FLAT | | Roof Structure/Cover: | CJ ALUMINIUM HEAVY |   |   |
|
Sketch
Property Image
Land
No land segments exist for this property.
Roll Value History
| 2026 | N/A | N/A | N/A | N/A | N/A |
| 2025 | $97,001 | $0 | $0 | $97,001 | $0 |
| 2024 | $88,183 | $0 | $0 | $88,183 | $0 |
| 2023 | $54,466 | $0 | $0 | $54,466 | $0 |
| 2022 | $51,668 | $0 | $0 | $51,668 | $0 |
| 2021 | $46,973 | $0 | $0 | $46,973 | $0 |
| 2020 | $47,581 | $0 | $0 | $47,581 | $0 |
| 2019 | $39,827 | $0 | $0 | $39,827 | $0 |
| 2018 | $27,365 | $0 | $0 | $27,365 | $0 |
| 2017 | $28,669 | $0 | $0 | $28,669 | $0 |
| 2016 | $19,289 | $0 | $0 | $19,289 | $0 |
| 2015 | $20,699 | $0 | $0 | $20,699 | $20,699 |
| 2014 | $21,404 | $0 | $0 | $21,404 | $21,404 |
| 2013 | $22,814 | $0 | $0 | $22,814 | $22,814 |
| 2012 | $25,053 | $0 | $0 | $25,053 | $25,053 |
| 2011 | $26,463 | $0 | $0 | $26,463 | $26,463 |
| 2010 | $28,419 | $0 | $0 | $28,419 | $28,419 |
| 2009 | $29,234 | $0 | $0 | $29,234 | $29,234 |
| 2008 | $29,294 | $0 | $0 | $29,294 | $29,294 |
| 2007 | $29,982 | $0 | $0 | $29,982 | $29,982 |
Deed and Sales History
| 1 | 05/09/2016 | MANHOME | Manufactured Home | JONES, DANIEL G | WILLIAMS, MARK | | | $28,000.00 | 24228 | |
| 2 | 12/10/2008 | OTHER | Other - Misc. Documents | HARMON, MELVIN K | JONES, DANIEL G | | | $50,000.00 | 83144 | 0 |
| 3 | 03/01/1998 | OTHER | Other - Misc. Documents | WOODALL, LEONARD / | HARMON, MELVIN K | | | $28,000.00 | 81052 | 0 |
| 4 | 06/01/1995 | OTHER | Other - Misc. Documents | WILSON, DOROTHY I | WOODALL, LEONARD / | | | $30,000.00 | 51865 | 0 |
| 5 | 03/01/1992 | OTHER | Other - Misc. Documents | WILSON, A.L. / | WILSON, DOROTHY I | | | $0.00 | 20952 | 0 |
| 6 | 06/01/1987 | OTHER | Other - Misc. Documents | EIDUKAS, JOHN K | WILSON, A.L. / | | | $23,000.00 | 71848 | 0 |
| 7 | 09/01/1986 | OTHER | Other - Misc. Documents | EIDUKAS, JOHN/MARIE | EIDUKAS, JOHN K | | | $0.00 | 62565 | 0 |
| 8 | 01/01/1900 | OTHER | Other - Misc. Documents | Unknown | EIDUKAS, JOHN/MARIE | | | $0.00 | 0 | 0 |
Payout Agreement
| No payout information available.. |