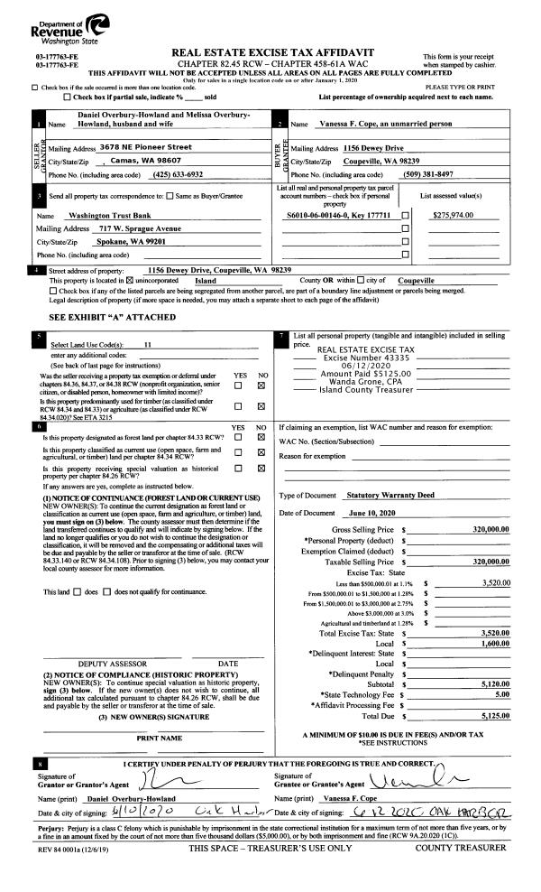
Property
Account |
| Property ID: | 45784 | Abbreviated Legal Description: | N/2 SW SE NW TGW & SUB EZ AF#89010638 |
| Geographic ID: | R22901-322-1680 | Agent Code: | |
| Type: | Real | | |
| Tax Area: | 712 - APPRAISER-S Whid Schl Dist, outside Langley, improved, greater than 1 acre | Land Use Code | 11 |
| Open Space: | N | DFL | N |
| Historic Property: | N | Remodel Property: | N |
| Multi-Family Redevelopment: | N | | |
| Township: | 29 | Section: | 01 |
| Range: | R2 |
Location |
| Address: | 2013 GOSS RIDGE RD FREELAND, WA 98249 | Mapsco: | |
| Neighborhood: | Cycle 3 | Map ID: | 283 |
| Neighborhood CD: | 3 |
Owner |
| Name: | PINKHAM TRUSTEE, TIMOTHY M | Owner ID: | 264243 |
| Mailing Address: | CHRISTINE R PINKHAM TRUSTEE 3828 BOTTICELLI ST LAKE ASWEGO, OR 97035-1303 | % Ownership: | 100.0000000000% |
| | | Exemptions: | |
Taxes and Assessment Details
Values
| (+) Improvement Homesite Value: | + | $0 | |
| (+) Improvement Non-Homesite Value: | + | $469,834 | |
| (+) Land Homesite Value: | + | $0 | |
| (+) Land Non-Homesite Value: | + | $370,000 | |
| (+) Curr Use (HS): | + | $0 | $0 |
| (+) Curr Use (NHS): | + | $0 | $0 |
| | | -------------------------- | |
| (=) Market Value: | = | $839,834 | |
| (–) Productivity Loss: | – | $0 | |
| | | -------------------------- | |
| (=) Subtotal: | = | $839,834 | |
| (+) Senior Appraised Value: | + | $0 | |
| (+) Non-Senior Appraised Value: | + | $839,834 | |
| | | -------------------------- | |
| (=) Total Appraised Value: | = | $839,834 | |
| (–) Senior Exemption Loss: | – | $0 | |
| (–) Exemption Loss: | – | $0 | |
| | | -------------------------- | |
| (=) Taxable Value: | = | $839,834 | |
Taxing Jurisdiction
| Owner: | PINKHAM TRUSTEE, TIMOTHY M | | |
| % Ownership: | 100.0000000000% | | |
| Total Value: | $839,834 | | |
| Tax Area: | 712 - APPRAISER-S Whid Schl Dist, outside Langley, improved, greater than 1 acre |
| CF | Conservation Futures | 0.0316035091 | $839,834 | $839,834 | $26.54 | | |
| FIRE3 | Fire & Rescue Dist #3 S Whidbey GEN | 1.2004855531 | $839,834 | $839,834 | $1,008.21 | | |
| HOBOND | Hospital BOND | 0.1910887512 | $839,834 | $839,834 | $160.48 | | |
| HOGEN | Hospital GEN | 0.3902502903 | $839,834 | $839,834 | $327.75 | | |
| CE | County Current Expense | 0.3708482477 | $839,834 | $839,834 | $311.45 | | |
| CR | County Roads | 0.4584763726 | $839,834 | $839,834 | $385.04 | | |
| ISLANDEMS | Hospital GEN (EMS) | 0.5000000000 | $839,834 | $839,834 | $419.92 | | |
| LIB | Library Sno-Isle GEN | 0.3153421757 | $839,834 | $839,834 | $264.84 | | |
| PORTWHID | Port of S Whidbey GEN | 0.1094540357 | $839,834 | $839,834 | $91.92 | | |
| SCH206BOND | School 206 BOND | 0.3161759235 | $839,834 | $839,834 | $265.54 | | |
| SCH206MO | School 206 Enrichment | 0.4547169547 | $839,834 | $839,834 | $381.89 | | |
| ST | State School | 1.3035497053 | $839,834 | $839,834 | $1,094.77 | | |
| ST2 | State School Part 2 | 0.8169543533 | $839,834 | $839,834 | $686.11 | | |
| SWHIDPRBD | P & R S Whidbey BOND | 0.0152817568 | $839,834 | $839,834 | $12.83 | | |
| SWHIDPRBD2 | P & R S Whidbey BOND2 | 0.0138911264 | $839,834 | $839,834 | $11.67 | | |
| SWHIDPRMT | P & R S Whidbey GEN | 0.2053334452 | $839,834 | $839,834 | $172.45 | | |
| | Total Tax Rate: | 6.6934522006 | | | | | |
| | | | | Taxes w/Current Exemptions: | $5,621.41 | | |
| | | | | Taxes w/o Exemptions: | $5,621.41 | | |
Improvement / Building
| Improvement #1: | RESIDENTIAL | State Code: | Y | 2956.0 sqft | Value: | $469,834 |
| Bathrooms: | 2 | Bedrooms: | 2 | | Ceiling: | DRYWALL PAINTED | Cooling: | HEAT PUMP/CONV/V | | Exterior Wall/Cover: | CEMENT FIBER | Floor Covering: | HARDWOOD 100% | | Floor Structure: | WOOD W/SUBFLOOR | Foundation: | CONCRETE | | Interior Finish: | DRYWALL PAINT | Plumbing Fixture Cnt: | 11 | | Roof Slope: | 5" IN 12" | Roof Structure/Cover: | CJ ASPHALT |
|
| | Type | Description | Class CD | Sub Class CD | Year Built | Area |
| | BAS | BASE/MAIN FLOOR | 3 | 0 | 2014 | 2280.0 |
| | OP4 | OPEN PORCH W/CEILING-ROOF | 3 | 0 | 2014 | 128.0 |
| | ENP | ENCLOSED PORCH | 3 | 0 | 2014 | 84.0 |
| | BIG | BUILT IN GARAGE | 3 | 0 | 2014 | 676.0 |
| | OP4 | OPEN PORCH W/CEILING-ROOF | 3 | 0 | 2014 | 48.0 |
| | UPS | UPPER STORY | 3 | 0 | 2014 | 676.0 |
Sketch
Property Image
Land
| 1 | 32 | AC (03.01-09.99) | 5.0000 | 0.00 | 0.00 | 0.00 | 1.00 | $370,000 | $0 |
Roll Value History
| 2026 | N/A | N/A | N/A | N/A | N/A |
| 2025 | $469,834 | $370,000 | $0 | $839,834 | $839,834 |
| 2024 | $473,782 | $350,000 | $0 | $823,782 | $823,782 |
| 2023 | $477,993 | $330,000 | $0 | $807,993 | $807,993 |
| 2022 | $436,156 | $280,000 | $0 | $716,156 | $716,156 |
| 2021 | $382,393 | $230,000 | $0 | $612,393 | $612,393 |
| 2020 | $372,355 | $190,000 | $0 | $562,355 | $562,355 |
| 2019 | $260,290 | $230,000 | $0 | $490,290 | $490,290 |
| 2018 | $260,973 | $210,000 | $0 | $470,973 | $470,973 |
| 2017 | $262,340 | $180,000 | $0 | $442,340 | $442,340 |
| 2016 | $265,072 | $135,000 | $0 | $400,072 | $400,072 |
| 2015 | $267,804 | $135,000 | $0 | $402,804 | $402,804 |
| 2014 | $273,270 | $125,000 | $0 | $398,270 | $398,270 |
| 2013 | $10,812 | $135,000 | $0 | $145,812 | $145,812 |
| 2012 | $11,425 | $135,000 | $0 | $146,425 | $146,425 |
| 2011 | $11,834 | $135,000 | $0 | $146,834 | $146,834 |
| 2010 | $10,115 | $135,000 | $0 | $145,115 | $145,115 |
| 2009 | $11,057 | $195,000 | $0 | $206,057 | $206,057 |
| 2008 | $11,543 | $225,000 | $0 | $236,543 | $236,543 |
| 2007 | $15,844 | $231,250 | $0 | $247,094 | $247,094 |
Deed and Sales History
| 1 | 11/08/2013 | TRUSTEED | Trustee's Deed | PINKHAM, TIMOTHY M | PINKHAM TRUSTEE, TIMOTHY M | | | $0.00 | 13380 | 4351130 |
| 2 | 04/05/2006 | WD | Warranty Deed | STANDINGER, MICHAEL C | PINKHAM, TIMOTHY M | | | $135,000.00 | 61588 | 4167389 |
| 3 | 12/10/2004 | PRD | Personal Representatives Deed | RINGER, WILLIAM H | STANDINGER, MICHAEL C | | | $0.00 | 45948 | 4121482 |
| 4 | 06/01/1994 | OTHER | Other - Misc. Documents | STANDINGER, MICHAEL / | RINGER, WILLIAM H | | | $14,657.00 | 42434 | 0 |
| 5 | 06/01/1994 | WD | Warranty Deed | RINGER, WILLIAM H | RINGER, WILLIAM H | | | $70,343.00 | 42433 | 94013559 |
| 6 | 04/01/1989 | OTHER | Other - Misc. Documents | STANDINGER, MICHAEL C | STANDINGER, MICHAEL / | | | $4,800.00 | 91205 | 0 |
| 7 | 02/01/1989 | WD | Warranty Deed | TROBERG, RAYMOND B | STANDINGER, MICHAEL C | | | $16,500.00 | 90573 | 89002025 |
| 8 | 06/01/1985 | QCD | Quit Claim Deed | TROBERG, ROY E | TROBERG, RAYMOND B | | | $0.00 | 51607 | 85006459 |
| 9 | 03/01/1979 | OTHER | Other - Misc. Documents | Unknown | TROBERG, ROY E | | | $0.00 | 91075 | 348840 |
Payout Agreement
| No payout information available.. |