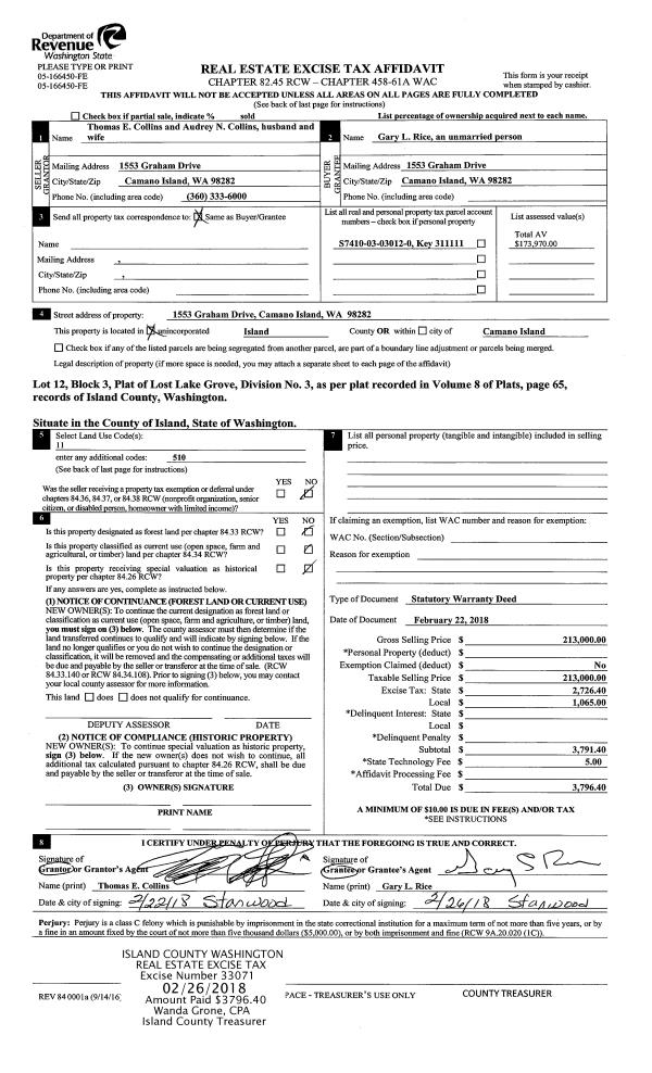
Property
Account |
| Property ID: | 46033 | Abbreviated Legal Description: | 28 - IN SE: BG E/4 CR SEC 2 W479.37' S1645.14' N47*E134 .62' TPB N47*E100' N42*W330 S47*W100' S42*E330' TPB TR 4 UNREC PLAT TIMBERLAND |
| Geographic ID: | R22902-121-4820 | Agent Code: | |
| Type: | Real | | |
| Tax Area: | 710 - APPRAISER-S Whid Schl Dist, outside Langley, improved & 1 acre or less | Land Use Code | 11 |
| Open Space: | N | DFL | N |
| Historic Property: | N | Remodel Property: | N |
| Multi-Family Redevelopment: | N | | |
| Township: | 29 | Section: | 02 |
| Range: | R2 |
Location |
| Address: | 5101 EAST HARBOR RD FREELAND, WA 98249 | Mapsco: | |
| Neighborhood: | Cycle 3 | Map ID: | 285 |
| Neighborhood CD: | 3 |
Owner |
| Name: | OLESEN, LESLIE S | Owner ID: | 294170 |
| Mailing Address: | 5101 E HARBOR RD FREELAND, WA 98249 | % Ownership: | 100.0000000000% |
| | | Exemptions: | SNR/DSBL |
Taxes and Assessment Details
Values
| (+) Improvement Homesite Value: | + | $229,779 | |
| (+) Improvement Non-Homesite Value: | + | $0 | |
| (+) Land Homesite Value: | + | $260,000 | |
| (+) Land Non-Homesite Value: | + | $0 | |
| (+) Curr Use (HS): | + | $0 | $0 |
| (+) Curr Use (NHS): | + | $0 | $0 |
| | | -------------------------- | |
| (=) Market Value: | = | $489,779 | |
| (–) Productivity Loss: | – | $0 | |
| | | -------------------------- | |
| (=) Subtotal: | = | $489,779 | |
| (+) Senior Appraised Value: | + | $353,987 | |
| (+) Non-Senior Appraised Value: | + | $0 | |
| | | -------------------------- | |
| (=) Total Appraised Value: | = | $353,987 | |
| (–) Senior Exemption Loss: | – | $212,392 | |
| (–) Exemption Loss: | – | $0 | |
| | | -------------------------- | |
| (=) Taxable Value: | = | $141,595 | |
Taxing Jurisdiction
| Owner: | OLESEN, LESLIE S | | |
| % Ownership: | 100.0000000000% | | |
| Total Value: | $489,779 | | |
| Tax Area: | 710 - APPRAISER-S Whid Schl Dist, outside Langley, improved & 1 acre or less |
| CF | Conservation Futures | 0.0316035091 | $489,779 | $141,595 | $4.47 | | |
| FIRE3 | Fire & Rescue Dist #3 S Whidbey GEN | 1.2004855531 | $489,779 | $141,595 | $169.98 | | |
| HOBOND | Hospital BOND | 0.0000000000 | $489,779 | $0 | $0.00 | | |
| HOGEN | Hospital GEN | 0.3902502903 | $489,779 | $141,595 | $55.26 | | |
| CE | County Current Expense | 0.3708482477 | $489,779 | $141,595 | $52.51 | | |
| CR | County Roads | 0.4584763726 | $489,779 | $141,595 | $64.92 | | |
| ISLANDEMS | Hospital GEN (EMS) | 0.5000000000 | $489,779 | $141,595 | $70.80 | | |
| LIB | Library Sno-Isle GEN | 0.3153421757 | $489,779 | $141,595 | $44.65 | | |
| PORTWHID | Port of S Whidbey GEN | 0.1094540357 | $489,779 | $141,595 | $15.50 | | |
| SCH206BOND | School 206 BOND | 0.3161759235 | $489,779 | $141,595 | $44.77 | | |
| SCH206MO | School 206 Enrichment | 0.0000000000 | $489,779 | $0 | $0.00 | | |
| ST | State School | 1.3035497053 | $489,779 | $141,595 | $184.58 | | |
| ST2 | State School Part 2 | 0.0000000000 | $489,779 | $0 | $0.00 | | |
| SWHIDPRBD | P & R S Whidbey BOND | 0.0000000000 | $489,779 | $0 | $0.00 | | |
| SWHIDPRBD2 | P & R S Whidbey BOND2 | 0.0000000000 | $489,779 | $0 | $0.00 | | |
| SWHIDPRMT | P & R S Whidbey GEN | 0.2053334452 | $489,779 | $141,595 | $29.07 | | |
| | Total Tax Rate: | 5.2015192582 | | | | | |
| | | | | Taxes w/Current Exemptions: | $736.51 | | |
| | | | | Taxes w/o Exemptions: | $3,278.31 | | |
Improvement / Building
| Improvement #1: | RESIDENTIAL | State Code: | Y | 864.0 sqft | Value: | $229,779 |
| Bathrooms: | 1 | Bedrooms: | 1 | | Ceiling: | DRYWALL PAINTED | Exterior Wall/Cover: | WOOD SIDING | | Floor Covering: | CARPET/VINYL 80-20 | Floor Structure: | WOOD W/SUBFLOOR | | Foundation: | CONCRETE | Heating: | BASEBOARD ELECTRIC | | Interior Finish: | DRYWALL PAINT | Plumbing Fixture Cnt: | 6 | | Roof Slope: | 6" IN 12" | Roof Structure/Cover: | CJ ASPHALT |
|
| | Type | Description | Class CD | Sub Class CD | Year Built | Area |
| | BAS | BASE/MAIN FLOOR | 3 | 0 | 1996 | 864.0 |
| | AGR | ATTACHED GARAGE | 3 | 0 | 1996 | 640.0 |
| | BIG | BUILT IN GARAGE | 3 | 0 | 1996 | 960.0 |
| | BAW | BALCONY WOOD RAIL | 3 | 0 | 1996 | 60.0 |
| | UTY | STORAGE/UTILITY | 3 | 0 | 1996 | 280.0 |
Sketch
Property Image
Land
| 1 | 16 | AC (00.51-01.00) | 0.6900 | 30056.40 | 0.00 | 0.00 | 1.00 | $260,000 | $0 |
Roll Value History
| 2026 | N/A | N/A | N/A | N/A | N/A |
| 2025 | $229,779 | $260,000 | $0 | $489,779 | $141,595 |
| 2024 | $237,477 | $240,000 | $0 | $477,477 | $141,595 |
| 2023 | $240,439 | $240,000 | $0 | $480,439 | $141,595 |
| 2022 | $220,401 | $240,000 | $0 | $460,401 | $283,987 |
| 2021 | $193,987 | $160,000 | $0 | $353,987 | $283,987 |
| 2020 | $188,799 | $135,000 | $0 | $323,799 | $323,799 |
| 2019 | $135,506 | $170,000 | $0 | $305,506 | $305,506 |
| 2018 | $135,959 | $130,000 | $0 | $265,959 | $265,959 |
| 2017 | $136,862 | $130,000 | $0 | $266,862 | $266,862 |
| 2016 | $138,675 | $125,000 | $0 | $263,675 | $263,675 |
| 2015 | $140,485 | $97,750 | $0 | $238,235 | $238,235 |
| 2014 | $142,294 | $97,750 | $0 | $240,044 | $240,044 |
| 2013 | $144,106 | $97,750 | $0 | $241,856 | $241,856 |
| 2012 | $145,914 | $97,750 | $0 | $243,664 | $243,664 |
| 2011 | $147,725 | $115,000 | $0 | $262,725 | $262,725 |
| 2010 | $152,433 | $115,000 | $0 | $267,433 | $267,433 |
| 2009 | $159,072 | $165,000 | $0 | $324,072 | $324,072 |
| 2008 | $161,095 | $165,000 | $0 | $326,095 | $326,095 |
| 2007 | $164,770 | $156,335 | $0 | $321,105 | $321,105 |
Deed and Sales History
| 1 | 04/23/2020 | WD | Warranty Deed | RE STTEE, DANIEL C | OLESEN, LESLIE S | | | $350,000.00 | 42977 | 4486454 |
| 2 | 01/31/2018 | WD | Warranty Deed | LOUD TRUSTEE, BARBRO G | RE STTEE, DANIEL C | | | $0.00 | 33333 | 4441026 |
| 3 | 03/31/2008 | OTHER | Other - Misc. Documents | LOUD, ROBERT H | LOUD TTEE, BARBRO G | | | $0.00 | 0 | 4225168 |
| 4 | 08/01/1995 | WD | Warranty Deed | LOUD, ROBERT / | LOUD, ROBERT H | | | $0.00 | 61623 | 96008194 |
| 5 | 11/01/1994 | OTHER | Other - Misc. Documents | LOUD, ROBERT & | LOUD, ROBERT / | | | $10,400.00 | 44554 | 85005321 |
| 6 | 11/01/1994 | WD | Warranty Deed | COBB, WALTER E | LOUD, ROBERT & | | | $39,100.00 | 44552 | 94023435 |
| 7 | 05/01/1985 | WD | Warranty Deed | COBB, WALTER E | COBB, WALTER E | | | $30,000.00 | 51299 | 85005321 |
| 8 | 05/01/1985 | WD | Warranty Deed | DONERY, EDWARD P | COBB, WALTER E | | | $30,000.00 | 51299 | 85005321 |
| 9 | 01/01/1900 | OTHER | Other - Misc. Documents | Unknown | DONERY, EDWARD P | | | $0.00 | 0 | 0 |
Payout Agreement
| No payout information available.. |