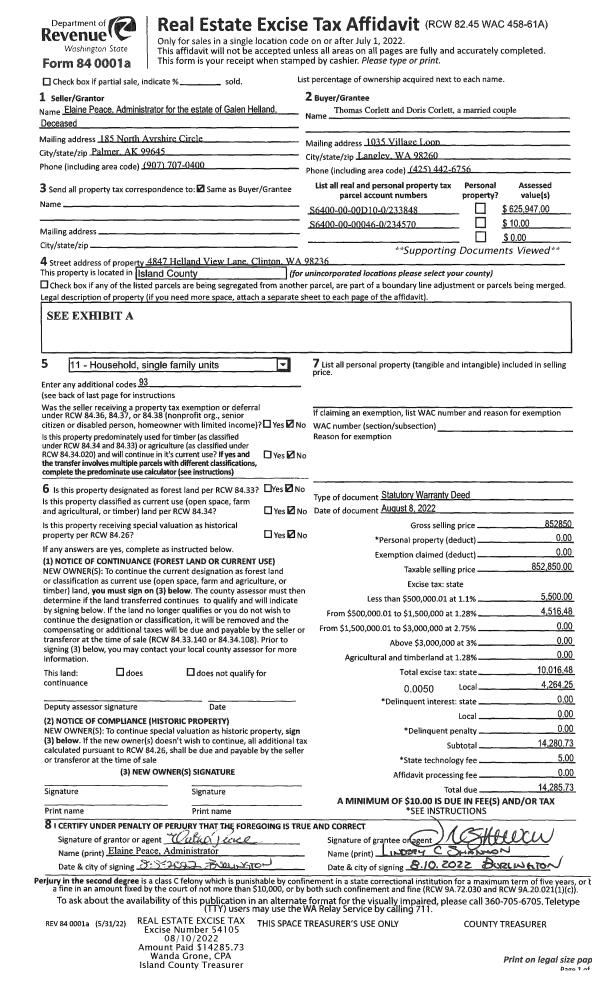
Property
Account |
| Property ID: | 460664 | Abbreviated Legal Description: | S170.86' OF: BG SECR N/2 SE N89*W316.15' N772.68' S89*E 97.72' N7*W1274.42' TPB N7*W346' S89*E635.71' S8*E 346.45' N89*W638.56' TPB SP 79-31 FR 3595070 |
| Geographic ID: | R23112-350-5070 | Agent Code: | |
| Type: | Real | | |
| Tax Area: | 512 - APPRAISER-Stan/Cam Schl Dist, improved, greater than 1 acre | Land Use Code | 11 |
| Open Space: | N | DFL | N |
| Historic Property: | N | Remodel Property: | N |
| Multi-Family Redevelopment: | N | | |
| Township: | 31 | Section: | 12 |
| Range: | R2 |
Location |
| Address: | 539 GREEN ISLAND WAY CAMANO ISLAND, WA 98282 | Mapsco: | |
| Neighborhood: | Cycle 5 | Map ID: | 476 |
| Neighborhood CD: | 5 |
Owner |
| Name: | BAUMGARTNER, LINDA R | Owner ID: | 3558 |
| Mailing Address: | GAIL L CAMPBELL 539 GREEN ISLAND WAY CAMANO ISLAND, WA 98282-8477 | % Ownership: | 100.0000000000% |
| | | Exemptions: | |
Taxes and Assessment Details
Values
| (+) Improvement Homesite Value: | + | $0 | |
| (+) Improvement Non-Homesite Value: | + | $429,766 | |
| (+) Land Homesite Value: | + | $0 | |
| (+) Land Non-Homesite Value: | + | $410,000 | |
| (+) Curr Use (HS): | + | $0 | $0 |
| (+) Curr Use (NHS): | + | $0 | $0 |
| | | -------------------------- | |
| (=) Market Value: | = | $839,766 | |
| (–) Productivity Loss: | – | $0 | |
| | | -------------------------- | |
| (=) Subtotal: | = | $839,766 | |
| (+) Senior Appraised Value: | + | $0 | |
| (+) Non-Senior Appraised Value: | + | $839,766 | |
| | | -------------------------- | |
| (=) Total Appraised Value: | = | $839,766 | |
| (–) Senior Exemption Loss: | – | $0 | |
| (–) Exemption Loss: | – | $0 | |
| | | -------------------------- | |
| (=) Taxable Value: | = | $839,766 | |
Taxing Jurisdiction
| Owner: | BAUMGARTNER, LINDA R | | |
| % Ownership: | 100.0000000000% | | |
| Total Value: | $839,766 | | |
| Tax Area: | 512 - APPRAISER-Stan/Cam Schl Dist, improved, greater than 1 acre |
| CF | Conservation Futures | 0.0316035091 | $839,766 | $839,766 | $26.54 | | |
| EMS1 | Fire & Rescue Dist #1 Camano GEN (EMS) | 0.3677864386 | $839,766 | $839,766 | $308.85 | | |
| FIRE1 | Fire & Rescue Dist #1 Camano GEN | 1.2502910536 | $839,766 | $839,766 | $1,049.95 | | |
| FIRE1BOND | Fire & Rescue Dist #1 Camano BOND | 0.1570001679 | $839,766 | $839,766 | $131.84 | | |
| CE | County Current Expense | 0.3708482477 | $839,766 | $839,766 | $311.43 | | |
| CR | County Roads | 0.4584763726 | $839,766 | $839,766 | $385.01 | | |
| LCIB | Library Sno-Isle BOND (Camano Island) | 0.0396325772 | $839,766 | $839,766 | $33.28 | | |
| LIB | Library Sno-Isle GEN | 0.3153421757 | $839,766 | $839,766 | $264.81 | | |
| SCH205_401 | School 205-401 Enrichment | 1.2698420524 | $839,766 | $839,766 | $1,066.37 | | |
| SCH205BOND | School 205-401 BOND | 0.9396497583 | $839,766 | $839,766 | $789.09 | | |
| ST | State School | 1.3035497053 | $839,766 | $839,766 | $1,094.68 | | |
| ST2 | State School Part 2 | 0.8169543533 | $839,766 | $839,766 | $686.05 | | |
| | Total Tax Rate: | 7.3209764117 | | | | | |
| | | | | Taxes w/Current Exemptions: | $6,147.90 | | |
| | | | | Taxes w/o Exemptions: | $6,147.90 | | |
Improvement / Building
| Improvement #1: | RESIDENTIAL | State Code: | Y | 3083.3 sqft | Value: | $429,766 |
| Bathrooms: | 3 | Bedrooms: | 3 | | Ceiling: | DRYWALL PAINTED | Cooling: | HEAT PUMP/CONV/V | | Exterior Wall/Cover: | VINYL | Floor Covering: | CARPET/VINYL 80-20 | | Floor Structure: | WOOD W/SUBFLOOR | Foundation: | CONCRETE | | Interior Finish: | DRYWALL PAINT | Plumbing Fixture Cnt: | 12 | | Roof Slope: | 6" IN 12" | Roof Structure/Cover: | CJ ASPHALT |
|
| | Type | Description | Class CD | Sub Class CD | Year Built | Area |
| | BAS | BASE/MAIN FLOOR | 3 | 0 | 1990 | 2537.3 |
| | UB8 | BASEMENT UNFINISHED 8" | 3 | 0 | 1990 | 1009.8 |
| | OP4 | OPEN PORCH W/CEILING-ROOF | 3 | 0 | 1990 | 29.2 |
| | OP4 | OPEN PORCH W/CEILING-ROOF | 3 | 0 | 1990 | 274.7 |
| | AGR | ATTACHED GARAGE | 3 | 0 | 1990 | 592.9 |
| | OWP | OPEN WOOD PORCH W/STEPS | 3 | 0 | 1990 | 697.2 |
| | DWN | DOWNSTAIRS LIVING AREA | 3 | 0 | 1990 | 546.0 |
| | UTY | STORAGE/UTILITY | 3 | 0 | 1990 | 280.0 |
| | CPD | OPEN CARPORT DIRT FLOOR | 3 | 0 | 1990 | 160.0 |
Sketch
Property Image
Land
| 1 | 18 | AC (02.01-03.00) | 0.0000 | 0.00 | 0.00 | 0.00 | 1.00 | $410,000 | $0 |
Roll Value History
| 2026 | N/A | N/A | N/A | N/A | N/A |
| 2025 | $429,766 | $410,000 | $0 | $839,766 | $839,766 |
| 2024 | $435,477 | $390,000 | $0 | $825,477 | $825,477 |
| 2023 | $441,188 | $370,000 | $0 | $811,188 | $811,188 |
| 2022 | $404,693 | $350,000 | $0 | $754,693 | $754,693 |
| 2021 | $356,408 | $260,000 | $0 | $616,408 | $616,408 |
| 2020 | $348,422 | $220,000 | $0 | $568,422 | $568,422 |
| 2019 | $281,301 | $260,000 | $0 | $541,301 | $541,301 |
| 2018 | $282,166 | $220,000 | $0 | $502,166 | $502,166 |
| 2017 | $283,824 | $180,000 | $0 | $463,824 | $463,824 |
| 2016 | $287,284 | $150,000 | $0 | $437,284 | $437,284 |
| 2015 | $272,617 | $140,000 | $0 | $412,617 | $412,617 |
| 2014 | $276,077 | $140,000 | $0 | $416,077 | $416,077 |
| 2013 | $279,535 | $140,000 | $0 | $419,535 | $419,535 |
| 2012 | $282,995 | $140,000 | $0 | $422,995 | $422,995 |
| 2011 | $286,454 | $175,000 | $0 | $461,454 | $461,454 |
| 2010 | $297,935 | $175,000 | $0 | $472,935 | $472,935 |
| 2009 | $290,817 | $215,000 | $0 | $505,817 | $505,817 |
| 2008 | $294,447 | $215,000 | $0 | $509,447 | $509,447 |
| 2007 | $298,177 | $184,000 | $0 | $482,177 | $482,177 |
Deed and Sales History
| 1 | 03/11/2002 | WD | Warranty Deed | PETERSONS, LIJA | BAUMGARTNER, LINDA R | | | $313,500.00 | 21034 | 4014543 |
| 2 | 08/20/2001 | ESTSEPPROP | Establish Separate Property | PETERSONS, ILMARS | PETERSONS, LIJA | | | $0.00 | 13227 | 20041059 |
| 3 | 07/01/1989 | QCD | Quit Claim Deed | PRITCHARD, LESLIE J | PRITCHARD, LESLIE J | | | $0.00 | 92733 | 89009267 |
| 4 | 07/01/1989 | WD | Warranty Deed | PRITCHARD, LESLIE J | PETERSONS, ILMARS | | | $47,250.00 | 93116 | 89010516 |
| 5 | 11/01/1980 | EXECUTORD | Executor Deed | NORGAARD, LARRY D | PRITCHARD, LESLIE J | | | $35,000.00 | 3963 | 376790 |
| 6 | 01/01/1900 | OTHER | Other - Misc. Documents | Unknown | NORGAARD, LARRY D | | | $0.00 | 0 | 0 |
Payout Agreement
| No payout information available.. |