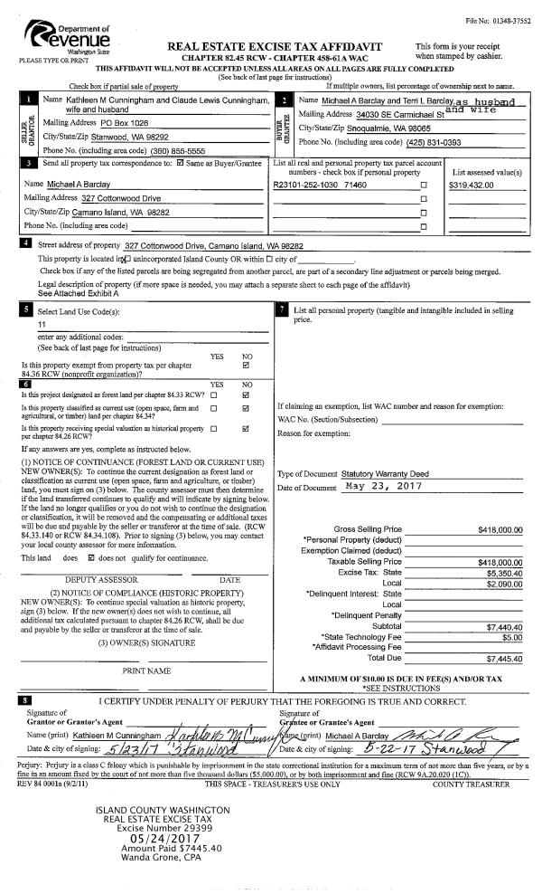
Property
Account |
| Property ID: | 460799 | Abbreviated Legal Description: | LOT 23-S BG SE CR N/2 SE N89*W316.15 N772.68' S89*E97.72' N7* W1682.65' N1060.29' TPB N80 E494.3' N159.53' N88*W493' M/L TO SELY LN CAMANO HILL RD SWLY TP N31*W FR TPB S31 *E144' TPB TGW EZ SP 79-27 FR516505 |
| Geographic ID: | R23112-503-5050 | Agent Code: | |
| Type: | Real | | |
| Tax Area: | 510 - APPRAISER-Stan/Cam Schl Dist, improved & 1 acre or less | Land Use Code | 11 |
| Open Space: | N | DFL | N |
| Historic Property: | N | Remodel Property: | N |
| Multi-Family Redevelopment: | N | | |
| Township: | 31 | Section: | 12 |
| Range: | R2 |
Location |
| Address: | 429 GREEN ISLAND WAY CAMANO ISLAND, WA 98282 | Mapsco: | |
| Neighborhood: | Cycle 5 | Map ID: | 476 |
| Neighborhood CD: | 5 |
Owner |
| Name: | PIERCEY TTEE, GUY L | Owner ID: | 297848 |
| Mailing Address: | GWENOLYN PIERCEY TTEE 429 GREEN ISLAND WAY CAMANO ISLAND, WA 98282 | % Ownership: | 100.0000000000% |
| | | Exemptions: | |
Taxes and Assessment Details
Values
| (+) Improvement Homesite Value: | + | $0 | |
| (+) Improvement Non-Homesite Value: | + | $719,597 | |
| (+) Land Homesite Value: | + | $0 | |
| (+) Land Non-Homesite Value: | + | $410,000 | |
| (+) Curr Use (HS): | + | $0 | $0 |
| (+) Curr Use (NHS): | + | $0 | $0 |
| | | -------------------------- | |
| (=) Market Value: | = | $1,129,597 | |
| (–) Productivity Loss: | – | $0 | |
| | | -------------------------- | |
| (=) Subtotal: | = | $1,129,597 | |
| (+) Senior Appraised Value: | + | $0 | |
| (+) Non-Senior Appraised Value: | + | $1,129,597 | |
| | | -------------------------- | |
| (=) Total Appraised Value: | = | $1,129,597 | |
| (–) Senior Exemption Loss: | – | $0 | |
| (–) Exemption Loss: | – | $0 | |
| | | -------------------------- | |
| (=) Taxable Value: | = | $1,129,597 | |
Taxing Jurisdiction
| Owner: | PIERCEY TTEE, GUY L | | |
| % Ownership: | 100.0000000000% | | |
| Total Value: | $1,129,597 | | |
| Tax Area: | 510 - APPRAISER-Stan/Cam Schl Dist, improved & 1 acre or less |
| CF | Conservation Futures | 0.0316035091 | $1,129,597 | $1,129,597 | $35.70 | | |
| EMS1 | Fire & Rescue Dist #1 Camano GEN (EMS) | 0.3677864386 | $1,129,597 | $1,129,597 | $415.45 | | |
| FIRE1 | Fire & Rescue Dist #1 Camano GEN | 1.2502910536 | $1,129,597 | $1,129,597 | $1,412.33 | | |
| FIRE1BOND | Fire & Rescue Dist #1 Camano BOND | 0.1570001679 | $1,129,597 | $1,129,597 | $177.35 | | |
| CE | County Current Expense | 0.3708482477 | $1,129,597 | $1,129,597 | $418.91 | | |
| CR | County Roads | 0.4584763726 | $1,129,597 | $1,129,597 | $517.89 | | |
| LCIB | Library Sno-Isle BOND (Camano Island) | 0.0396325772 | $1,129,597 | $1,129,597 | $44.77 | | |
| LIB | Library Sno-Isle GEN | 0.3153421757 | $1,129,597 | $1,129,597 | $356.21 | | |
| SCH205_401 | School 205-401 Enrichment | 1.2698420524 | $1,129,597 | $1,129,597 | $1,434.41 | | |
| SCH205BOND | School 205-401 BOND | 0.9396497583 | $1,129,597 | $1,129,597 | $1,061.43 | | |
| ST | State School | 1.3035497053 | $1,129,597 | $1,129,597 | $1,472.49 | | |
| ST2 | State School Part 2 | 0.8169543533 | $1,129,597 | $1,129,597 | $922.83 | | |
| | Total Tax Rate: | 7.3209764117 | | | | | |
| | | | | Taxes w/Current Exemptions: | $8,269.77 | | |
| | | | | Taxes w/o Exemptions: | $8,269.77 | | |
Improvement / Building
| Improvement #1: | RESIDENTIAL | State Code: | Y | 3491.7 sqft | Value: | $719,597 |
| Bathrooms: | 3 | Bedrooms: | 3 | | Ceiling: | DRYWALL PAINTED | Exterior Wall/Cover: | WOOD SIDING | | Floor Covering: | HARDWOOD/CARP 80-20 | Floor Structure: | WOOD W/SUBFLOOR | | Foundation: | CONCRETE | Heating: | FHA ELECTRIC | | Interior Finish: | DRYWALL PAINT | Plumbing Fixture Cnt: | 19 | | Roof Slope: | 5" IN 12" | Roof Structure/Cover: | CJ CLAY TILE |
|
| | Type | Description | Class CD | Sub Class CD | Year Built | Area |
| | BAS | BASE/MAIN FLOOR | 4 | 0 | 1983 | 2186.6 |
| | BIG | BUILT IN GARAGE | 4 | 0 | 1983 | 879.0 |
| | UPS | UPPER STORY | 4 | 0 | 1983 | 873.1 |
| | OWP | OPEN WOOD PORCH W/STEPS | 4 | 0 | 1983 | 1577.2 |
| | UPS | UPPER STORY | 4 | 0 | 1983 | 432.0 |
| | OWC | OPEN WOOD PORCH W/STEPS/ROOF/C | 4 | 0 | 1983 | 102.0 |
| | OWP | OPEN WOOD PORCH W/STEPS | 4 | 0 | 1983 | 104.0 |
| | OP1 | OPEN PORCH SLAB | 4 | 0 | 1983 | 975.3 |
| | OP4 | OPEN PORCH W/CEILING-ROOF | 4 | 0 | 1983 | 311.8 |
| | OP4 | OPEN PORCH W/CEILING-ROOF | 4 | 0 | 1983 | 40.0 |
Sketch
Property Image
Land
| 1 | 18 | AC (02.01-03.00) | 0.0000 | 0.00 | 0.00 | 0.00 | 1.00 | $410,000 | $0 |
Roll Value History
| 2026 | N/A | N/A | N/A | N/A | N/A |
| 2025 | $719,597 | $410,000 | $0 | $1,129,597 | $1,129,597 |
| 2024 | $727,846 | $390,000 | $0 | $1,117,846 | $1,117,846 |
| 2023 | $736,092 | $370,000 | $0 | $1,106,092 | $1,106,092 |
| 2022 | $672,111 | $350,000 | $0 | $1,022,111 | $1,022,111 |
| 2021 | $579,590 | $260,000 | $0 | $839,590 | $839,590 |
| 2020 | $563,306 | $220,000 | $0 | $783,306 | $783,306 |
| 2019 | $418,534 | $260,000 | $0 | $678,534 | $678,534 |
| 2018 | $419,763 | $220,000 | $0 | $639,763 | $639,763 |
| 2017 | $422,152 | $180,000 | $0 | $602,152 | $602,152 |
| 2016 | $427,062 | $150,000 | $0 | $577,062 | $577,062 |
| 2015 | $402,179 | $140,000 | $0 | $542,179 | $542,179 |
| 2014 | $344,197 | $140,000 | $0 | $484,197 | $484,197 |
| 2013 | $327,990 | $140,000 | $0 | $467,990 | $467,990 |
| 2012 | $189,197 | $140,000 | $0 | $329,197 | $329,197 |
| 2011 | $282,110 | $175,000 | $0 | $457,110 | $457,110 |
| 2010 | $301,201 | $175,000 | $0 | $476,201 | $476,201 |
| 2009 | $313,930 | $215,000 | $0 | $528,930 | $144,861 |
| 2008 | $319,808 | $213,205 | $0 | $533,013 | $144,860 |
| 2007 | $319,773 | $157,500 | $0 | $477,273 | $144,860 |
Deed and Sales History
| 1 | 01/21/2021 | QCD | Quit Claim Deed | PIERCEY, GUY L | PIERCEY TTEE, GUY L | | | $0.00 | 46675 | 4509004 |
| 2 | 07/19/2019 | WD | Warranty Deed | CARDENAS, MARIA EUGENIA GARGARI | PIERCEY, GUY L | | | $1,000,000.00 | 39499 | 4467681 |
| 3 | 07/29/2016 | QCD | Quit Claim Deed | GARGARI, GABRIEL | CARDENAS, MARIA EUGENIA GARGARI | | | $0.00 | 28797 | 4420401 |
| 4 | 06/08/2011 | WD | Warranty Deed | MADDOX TR, MARY | GARGARI, GABRIEL | | | $425,500.00 | 4746 | 4297052 |
| 5 | 03/20/2000 | QCD | Quit Claim Deed | Unknown | MADDOX TR, MARY | | | $0.00 | 3560 | 20016358 |
| 6 | 03/15/2000 | WD | Warranty Deed | ROBINSON, CHARLES E | MADDOX, MARY E | | | $300,000.00 | 993 | 20004851 |
| 7 | 06/11/1998 | WD | Warranty Deed | ROBINSON, CHARLES E | ROBINSON, CHARLES E | | | $375,000.00 | 82583 | 98013358 |
| 8 | 01/01/1983 | WD | Warranty Deed | PETERS, DONALD D | MADDOX, MARY | | | $37,000.00 | 30118 | 404882 |
| 9 | 05/01/1981 | EXECUTORD | Executor Deed | NORGAARD, LARRY D | PETERS, DONALD D | | | $35,000.00 | 59117 | 382776 |
| 10 | 02/01/1981 | EXECUTORD | Executor Deed | PETERS, DONALD D | PETERS, DONALD D | | | $1.00 | 12898 | 387985 |
Payout Agreement
| No payout information available.. |