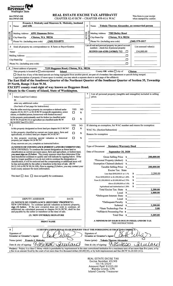
Property
Account |
| Property ID: | 460879 | Abbreviated Legal Description: | S156.84' OF: BG SECR N/2 SE SEC 12-31-2E N89*W316.15' N772.68' S89*E97.72' N7*W 261.20' TPB N07*W325.89' S89*E644.22' S08*E13.70' S19*E329.14' N89*W711.16' TPB TGW EZ SP 79-33 FR 256-0170 |
| Geographic ID: | R33107-248-0170 | Agent Code: | |
| Type: | Real | | |
| Tax Area: | 512 - APPRAISER-Stan/Cam Schl Dist, improved, greater than 1 acre | Land Use Code | 11 |
| Open Space: | N | DFL | N |
| Historic Property: | N | Remodel Property: | N |
| Multi-Family Redevelopment: | N | | |
| Township: | 31 | Section: | 07 |
| Range: | R3 |
Location |
| Address: | 605 GREEN ISLAND WAY CAMANO ISLAND, WA 98282 | Mapsco: | |
| Neighborhood: | Cycle 5 | Map ID: | 922 |
| Neighborhood CD: | 5 |
Owner |
| Name: | JOHNSON, GERALD A | Owner ID: | 5273 |
| Mailing Address: | MARY K JOHNSON 605 GREEN ISLAND WAY CAMANO ISLAND, WA 98282-6528 | % Ownership: | 100.0000000000% |
| | | Exemptions: | |
Taxes and Assessment Details
Values
| (+) Improvement Homesite Value: | + | $0 | |
| (+) Improvement Non-Homesite Value: | + | $355,314 | |
| (+) Land Homesite Value: | + | $0 | |
| (+) Land Non-Homesite Value: | + | $410,000 | |
| (+) Curr Use (HS): | + | $0 | $0 |
| (+) Curr Use (NHS): | + | $0 | $0 |
| | | -------------------------- | |
| (=) Market Value: | = | $765,314 | |
| (–) Productivity Loss: | – | $0 | |
| | | -------------------------- | |
| (=) Subtotal: | = | $765,314 | |
| (+) Senior Appraised Value: | + | $0 | |
| (+) Non-Senior Appraised Value: | + | $765,314 | |
| | | -------------------------- | |
| (=) Total Appraised Value: | = | $765,314 | |
| (–) Senior Exemption Loss: | – | $0 | |
| (–) Exemption Loss: | – | $0 | |
| | | -------------------------- | |
| (=) Taxable Value: | = | $765,314 | |
Taxing Jurisdiction
| Owner: | JOHNSON, GERALD A | | |
| % Ownership: | 100.0000000000% | | |
| Total Value: | $765,314 | | |
| Tax Area: | 512 - APPRAISER-Stan/Cam Schl Dist, improved, greater than 1 acre |
| CF | Conservation Futures | 0.0316035091 | $765,314 | $765,314 | $24.19 | | |
| EMS1 | Fire & Rescue Dist #1 Camano GEN (EMS) | 0.3677864386 | $765,314 | $765,314 | $281.47 | | |
| FIRE1 | Fire & Rescue Dist #1 Camano GEN | 1.2502910536 | $765,314 | $765,314 | $956.87 | | |
| FIRE1BOND | Fire & Rescue Dist #1 Camano BOND | 0.1570001679 | $765,314 | $765,314 | $120.15 | | |
| CE | County Current Expense | 0.3708482477 | $765,314 | $765,314 | $283.82 | | |
| CR | County Roads | 0.4584763726 | $765,314 | $765,314 | $350.88 | | |
| LCIB | Library Sno-Isle BOND (Camano Island) | 0.0396325772 | $765,314 | $765,314 | $30.33 | | |
| LIB | Library Sno-Isle GEN | 0.3153421757 | $765,314 | $765,314 | $241.34 | | |
| SCH205_401 | School 205-401 Enrichment | 1.2698420524 | $765,314 | $765,314 | $971.83 | | |
| SCH205BOND | School 205-401 BOND | 0.9396497583 | $765,314 | $765,314 | $719.13 | | |
| ST | State School | 1.3035497053 | $765,314 | $765,314 | $997.62 | | |
| ST2 | State School Part 2 | 0.8169543533 | $765,314 | $765,314 | $625.23 | | |
| | Total Tax Rate: | 7.3209764117 | | | | | |
| | | | | Taxes w/Current Exemptions: | $5,602.86 | | |
| | | | | Taxes w/o Exemptions: | $5,602.86 | | |
Improvement / Building
| Improvement #1: | RESIDENTIAL | State Code: | Y | 2199.3 sqft | Value: | $355,314 |
| Bathrooms: | 2 | Bedrooms: | 3 | | Ceiling: | DRYWALL PAINTED | Cooling: | HEAT PUMP/CONV/V | | Exterior Wall/Cover: | CEMENT FIBER | Floor Covering: | CARPET/VINYL 80-20 | | Floor Structure: | WOOD W/SUBFLOOR | Foundation: | CONCRETE | | Interior Finish: | DRYWALL PAINT | Plumbing Fixture Cnt: | 10 | | Roof Slope: | 4" IN 12" | Roof Structure/Cover: | CJ ASPHALT |
|
| | Type | Description | Class CD | Sub Class CD | Year Built | Area |
| | BAS | BASE/MAIN FLOOR | 3 | 0 | 1982 | 2199.3 |
| | AGR | ATTACHED GARAGE | 3 | 0 | 1982 | 885.0 |
| | OWP | OPEN WOOD PORCH W/STEPS | 3 | 0 | 1982 | 615.5 |
| | UTY | STORAGE/UTILITY | 3 | 0 | 1982 | 168.0 |
Sketch
Property Image
Land
| 1 | 18 | AC (02.01-03.00) | 0.0000 | 0.00 | 0.00 | 0.00 | 1.00 | $410,000 | $0 |
Roll Value History
| 2026 | N/A | N/A | N/A | N/A | N/A |
| 2025 | $355,314 | $410,000 | $0 | $765,314 | $765,314 |
| 2024 | $359,687 | $390,000 | $0 | $749,687 | $749,687 |
| 2023 | $364,060 | $370,000 | $0 | $734,060 | $734,060 |
| 2022 | $333,620 | $350,000 | $0 | $683,620 | $683,620 |
| 2021 | $279,788 | $260,000 | $0 | $539,788 | $539,788 |
| 2020 | $273,150 | $220,000 | $0 | $493,150 | $493,150 |
| 2019 | $210,578 | $260,000 | $0 | $470,578 | $470,578 |
| 2018 | $211,211 | $210,000 | $0 | $421,211 | $421,211 |
| 2017 | $212,446 | $150,000 | $0 | $362,446 | $362,446 |
| 2016 | $214,975 | $150,000 | $0 | $364,975 | $364,975 |
| 2015 | $200,278 | $100,000 | $0 | $300,278 | $300,278 |
| 2014 | $202,775 | $100,000 | $0 | $302,775 | $302,775 |
| 2013 | $205,271 | $100,000 | $0 | $305,271 | $305,271 |
| 2012 | $207,767 | $89,600 | $0 | $297,367 | $297,367 |
| 2011 | $210,264 | $112,000 | $0 | $322,264 | $322,264 |
| 2010 | $219,898 | $112,000 | $0 | $331,898 | $331,898 |
| 2009 | $229,064 | $135,000 | $0 | $364,064 | $364,064 |
| 2008 | $226,810 | $134,000 | $0 | $360,810 | $360,810 |
| 2007 | $229,363 | $130,000 | $0 | $359,363 | $359,363 |
Deed and Sales History
| 1 | 11/21/2001 | WD | Warranty Deed | STREVER, WILLIAM C | JOHNSON, GERALD A | | | $235,150.00 | 14589 | 4004751 |
| 2 | 11/01/1993 | PRD | Personal Representatives Deed | STREVER, H J | STREVER, WILLIAM C | | | $0.00 | 35119 | 93026636 |
| 3 | 02/01/1990 | QCD | Quit Claim Deed | STREVER, HELEN J | STREVER, H J | | | $0.00 | 4092 | 90013380 |
| 4 | 01/01/1986 | DECREE | Divorce Decree/Legal Separation | STREVER, CARL W | STREVER, HELEN J | | | $0.00 | 60203 | 86001128 |
| 5 | 01/01/1981 | EXECUTORD | Executor Deed | GEYER, STEPHEN, R | STREVER, CARL W | | | $32,500.00 | 10281 | 378890 |
| 6 | 01/01/1900 | OTHER | Other - Misc. Documents | Unknown | GEYER, STEPHEN, R | | | $0.00 | 0 | 0 |
Payout Agreement
| No payout information available.. |