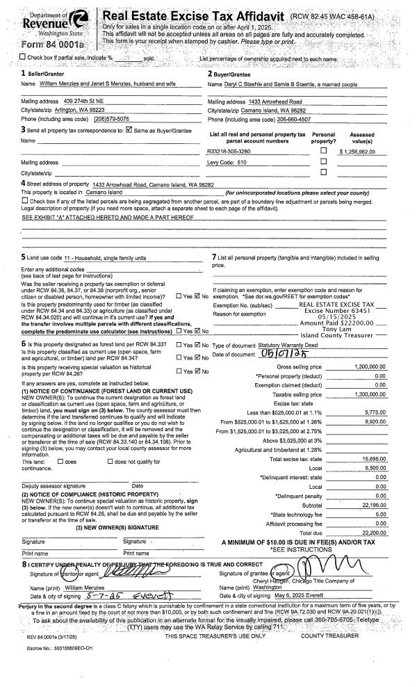
Property
Account |
| Property ID: | 461262 | Abbreviated Legal Description: | BG NW CR NE NE S1*E985.99' N89*E682.92' TPB S89*W393. 67' S1*E322' N89*E270.25' N18*E24.94' N26*E157.67' N13*E163.35' TPB S79-97 FR 4124270 & 4124940 |
| Geographic ID: | R13112-425-4470 | Agent Code: | |
| Type: | Real | | |
| Tax Area: | 312 - APPRAISER-Cpvl Schl Dist, outside Cpvl, improved, greater than 1 acre | Land Use Code | 11 |
| Open Space: | N | DFL | N |
| Historic Property: | N | Remodel Property: | N |
| Multi-Family Redevelopment: | N | | |
| Township: | 31 | Section: | 12 |
| Range: | R1 |
Location |
| Address: | 472 WANDERING LN COUPEVILLE, WA 98239 | Mapsco: | |
| Neighborhood: | Cycle 2 | Map ID: | 57 |
| Neighborhood CD: | 2 |
Owner |
| Name: | CHADWICK III, J W UTELLES | Owner ID: | 188780 |
| Mailing Address: | 472 WANDERING LN COUPEVILLE, WA 98239-4515 | % Ownership: | 100.0000000000% |
| | | Exemptions: | SNR/DSBL |
Taxes and Assessment Details
Values
| (+) Improvement Homesite Value: | + | $69,117 | |
| (+) Improvement Non-Homesite Value: | + | $0 | |
| (+) Land Homesite Value: | + | $310,193 | |
| (+) Land Non-Homesite Value: | + | $0 | |
| (+) Curr Use (HS): | + | $0 | $0 |
| (+) Curr Use (NHS): | + | $0 | $0 |
| | | -------------------------- | |
| (=) Market Value: | = | $379,310 | |
| (–) Productivity Loss: | – | $0 | |
| | | -------------------------- | |
| (=) Subtotal: | = | $379,310 | |
| (+) Senior Appraised Value: | + | $176,872 | |
| (+) Non-Senior Appraised Value: | + | $0 | |
| | | -------------------------- | |
| (=) Total Appraised Value: | = | $176,872 | |
| (–) Senior Exemption Loss: | – | $106,123 | |
| (–) Exemption Loss: | – | $0 | |
| | | -------------------------- | |
| (=) Taxable Value: | = | $70,749 | |
Taxing Jurisdiction
| Owner: | CHADWICK III, J W UTELLES | | |
| % Ownership: | 100.0000000000% | | |
| Total Value: | $379,310 | | |
| Tax Area: | 312 - APPRAISER-Cpvl Schl Dist, outside Cpvl, improved, greater than 1 acre |
| CF | Conservation Futures | 0.0316035091 | $379,310 | $70,749 | $2.24 | | |
| CEM2 | Cemetery #2 | 0.0095056933 | $379,310 | $70,749 | $0.67 | | |
| FIRE5 | Fire & Rescue Dist #5 C Whidbey GEN | 1.2008080668 | $379,310 | $70,749 | $84.96 | | |
| FIRE5BOND | Fire & Rescue Dist #5 C Whidbey BOND | 0.0000000000 | $379,310 | $0 | $0.00 | | |
| HOBOND | Hospital BOND | 0.0000000000 | $379,310 | $0 | $0.00 | | |
| HOGEN | Hospital GEN | 0.3902502903 | $379,310 | $70,749 | $27.61 | | |
| CE | County Current Expense | 0.3708482477 | $379,310 | $70,749 | $26.24 | | |
| CR | County Roads | 0.4584763726 | $379,310 | $70,749 | $32.44 | | |
| ISLANDEMS | Hospital GEN (EMS) | 0.5000000000 | $379,310 | $70,749 | $35.37 | | |
| LIB | Library Sno-Isle GEN | 0.3153421757 | $379,310 | $70,749 | $22.31 | | |
| LIBCAP | Library Sno-Isle BOND (Cap Fac Imp Area) | 0.0000000000 | $379,310 | $0 | $0.00 | | |
| POCOUP | Port of Coupeville GEN | 0.1093371703 | $379,310 | $70,749 | $7.74 | | |
| POCOUPIDD | Port of Coupeville IDD | 0.3409740022 | $379,310 | $70,749 | $24.12 | | |
| COUPSDTECH | School 204 CP (TECH) | 0.0000000000 | $379,310 | $0 | $0.00 | | |
| SCH204MO | School 204 Enrichment | 0.0000000000 | $379,310 | $0 | $0.00 | | |
| ST | State School | 1.3035497053 | $379,310 | $70,749 | $92.22 | | |
| ST2 | State School Part 2 | 0.0000000000 | $379,310 | $0 | $0.00 | | |
| | Total Tax Rate: | 5.0306952333 | | | | | |
| | | | | Taxes w/Current Exemptions: | $355.92 | | |
| | | | | Taxes w/o Exemptions: | $2,905.24 | | |
Improvement / Building
| Improvement #1: | MANUFACTURED HOME | State Code: | Y | 1232.0 sqft | Value: | $69,117 |
| Bathrooms: | 0 | Bedrooms: | 0 | | Ceiling: | PLASTER PAINTED | Cooling: | EVAP NO DUCT | | Exterior Wall/Cover: | VINYL | Floor Covering: | CARPET 100% | | Floor Structure: | SLAB ON GRADE | Foundation: | SLAB | | Heating: | FHA ELECTRIC | Interior Finish: | PLASTER | | Plumbing Fixture Cnt: | 1 | Roof Slope: | FLAT | | Roof Structure/Cover: | CJ ALUMINIUM HEAVY |   |   |
|
| | Type | Description | Class CD | Sub Class CD | Year Built | Area |
| | BAS | BASE/MAIN FLOOR | 4 | 0 | 1988 | 1232.0 |
| | OWR | OPEN WOOD PORCH W/STEPS/ROOF | 4 | 0 | 1988 | 144.0 |
| | OWR | OPEN WOOD PORCH W/STEPS/ROOF | 4 | 0 | 1988 | 60.0 |
Sketch
| No sketches available for this property. |
Property Image
Land
| 1 | HS | HOMESITE | 1.0000 | 43560.00 | 0.00 | 0.00 | 1.00 | $220,000 | $0 |
| 2 | 91 | UNDEVELOPED LAND-METES AND BOUNDS | 1.5900 | 69260.40 | 0.00 | 0.00 | 1.00 | $90,193 | $0 |
Roll Value History
| 2026 | N/A | N/A | N/A | N/A | N/A |
| 2025 | $69,117 | $310,193 | $0 | $379,310 | $70,749 |
| 2024 | $69,117 | $280,000 | $0 | $349,117 | $70,749 |
| 2023 | $63,856 | $270,000 | $0 | $333,856 | $70,749 |
| 2022 | $60,089 | $240,000 | $0 | $300,089 | $70,749 |
| 2021 | $54,225 | $170,000 | $0 | $224,225 | $70,749 |
| 2020 | $54,557 | $150,000 | $0 | $204,557 | $70,749 |
| 2019 | $45,236 | $180,000 | $0 | $225,236 | $70,749 |
| 2018 | $44,851 | $160,000 | $0 | $204,851 | $70,749 |
| 2017 | $46,872 | $130,000 | $0 | $176,872 | $70,749 |
| 2016 | $48,219 | $125,000 | $0 | $173,219 | $173,219 |
| 2015 | $49,566 | $90,000 | $0 | $139,566 | $139,566 |
| 2014 | $50,914 | $85,000 | $0 | $135,914 | $135,914 |
| 2013 | $52,261 | $85,000 | $0 | $137,261 | $137,261 |
| 2012 | $53,608 | $85,000 | $0 | $138,608 | $138,608 |
| 2011 | $54,956 | $85,000 | $0 | $139,956 | $139,956 |
| 2010 | $54,750 | $85,000 | $0 | $139,750 | $139,750 |
| 2009 | $57,826 | $100,000 | $0 | $157,826 | $157,826 |
| 2008 | $59,463 | $100,000 | $0 | $159,463 | $159,463 |
| 2007 | $59,622 | $100,000 | $0 | $159,622 | $159,622 |
Deed and Sales History
| 1 | 09/16/2002 | WD | Warranty Deed | GRIFFIN, DIANA E | CHADWICK III, J W UTELLES | | | $151,000.00 | 23983 | 4033255 |
| 2 | 09/09/2002 | ESTSEPPROP | Establish Separate Property | CHADWICK III, J W UTELLES | CHADWICK III, J W UTELLES | | | $0.00 | 23984 | 4033256 |
| 3 | 07/01/1988 | OTHER | Other - Misc. Documents | GRIFFIN, DIANA | GRIFFIN, DIANA E | | | $22,000.00 | 11111111 | 0 |
| 4 | 10/01/1980 | EXECUTORD | Executor Deed | WALKER, LEROY L | GRIFFIN, DIANA | | | $11,500.00 | 3516 | 375356 |
| 5 | 01/01/1900 | OTHER | Other - Misc. Documents | Unknown | WALKER, LEROY L | | | $0.00 | 0 | 0 |
Payout Agreement
| No payout information available.. |