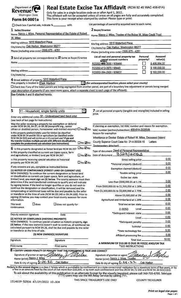
Property
Account |
| Property ID: | 461271 | Abbreviated Legal Description: | BG NWCR NE NE S1*E1337.99' N89*E548.51' TPB S89*W548 .51' N1*W352' N89*E289.25' S1*E322' N89*E270.25' S18*W 31.86' TPB SP 79-87 FR 412-4270 & 412-4940 |
| Geographic ID: | R13112-425-4180 | Agent Code: | |
| Type: | Real | | |
| Tax Area: | 312 - APPRAISER-Cpvl Schl Dist, outside Cpvl, improved, greater than 1 acre | Land Use Code | 11 |
| Open Space: | N | DFL | N |
| Historic Property: | N | Remodel Property: | N |
| Multi-Family Redevelopment: | N | | |
| Township: | 31 | Section: | 12 |
| Range: | R1 |
Location |
| Address: | 500 WANDERING LN COUPEVILLE, WA 98239 | Mapsco: | |
| Neighborhood: | Cycle 2 | Map ID: | 57 |
| Neighborhood CD: | 2 |
Owner |
| Name: | LORMAN, GERALD R | Owner ID: | 302217 |
| Mailing Address: | LINDA J LORMAN 500 WANDERING LN COUPEVILLE, WA 98239 | % Ownership: | 100.0000000000% |
| | | Exemptions: | SNR/DSBL |
Taxes and Assessment Details
Values
| (+) Improvement Homesite Value: | + | $460,427 | |
| (+) Improvement Non-Homesite Value: | + | $0 | |
| (+) Land Homesite Value: | + | $309,319 | |
| (+) Land Non-Homesite Value: | + | $0 | |
| (+) Curr Use (HS): | + | $0 | $0 |
| (+) Curr Use (NHS): | + | $0 | $0 |
| | | -------------------------- | |
| (=) Market Value: | = | $769,746 | |
| (–) Productivity Loss: | – | $0 | |
| | | -------------------------- | |
| (=) Subtotal: | = | $769,746 | |
| (+) Senior Appraised Value: | + | $735,760 | |
| (+) Non-Senior Appraised Value: | + | $0 | |
| | | -------------------------- | |
| (=) Total Appraised Value: | = | $735,760 | |
| (–) Senior Exemption Loss: | – | $70,000 | |
| (–) Exemption Loss: | – | $0 | |
| | | -------------------------- | |
| (=) Taxable Value: | = | $665,760 | |
Taxing Jurisdiction
| Owner: | LORMAN, GERALD R | | |
| % Ownership: | 100.0000000000% | | |
| Total Value: | $769,746 | | |
| Tax Area: | 312 - APPRAISER-Cpvl Schl Dist, outside Cpvl, improved, greater than 1 acre |
| CF | Conservation Futures | 0.0316035091 | $769,746 | $665,760 | $21.04 | | |
| CEM2 | Cemetery #2 | 0.0095056933 | $769,746 | $665,760 | $6.33 | | |
| FIRE5 | Fire & Rescue Dist #5 C Whidbey GEN | 1.2008080668 | $769,746 | $665,760 | $799.45 | | |
| FIRE5BOND | Fire & Rescue Dist #5 C Whidbey BOND | 0.0000000000 | $769,746 | $0 | $0.00 | | |
| HOBOND | Hospital BOND | 0.0000000000 | $769,746 | $0 | $0.00 | | |
| HOGEN | Hospital GEN | 0.3902502903 | $769,746 | $665,760 | $259.81 | | |
| CE | County Current Expense | 0.3708482477 | $769,746 | $665,760 | $246.90 | | |
| CR | County Roads | 0.4584763726 | $769,746 | $665,760 | $305.24 | | |
| ISLANDEMS | Hospital GEN (EMS) | 0.5000000000 | $769,746 | $665,760 | $332.88 | | |
| LIB | Library Sno-Isle GEN | 0.3153421757 | $769,746 | $665,760 | $209.94 | | |
| LIBCAP | Library Sno-Isle BOND (Cap Fac Imp Area) | 0.0000000000 | $769,746 | $0 | $0.00 | | |
| POCOUP | Port of Coupeville GEN | 0.1093371703 | $769,746 | $665,760 | $72.79 | | |
| POCOUPIDD | Port of Coupeville IDD | 0.3409740022 | $769,746 | $665,760 | $227.01 | | |
| COUPSDTECH | School 204 CP (TECH) | 0.0000000000 | $769,746 | $0 | $0.00 | | |
| SCH204MO | School 204 Enrichment | 0.0000000000 | $769,746 | $0 | $0.00 | | |
| ST | State School | 1.3035497053 | $769,746 | $665,760 | $867.85 | | |
| ST2 | State School Part 2 | 0.0000000000 | $769,746 | $0 | $0.00 | | |
| | Total Tax Rate: | 5.0306952333 | | | | | |
| | | | | Taxes w/Current Exemptions: | $3,349.24 | | |
| | | | | Taxes w/o Exemptions: | $5,895.68 | | |
Improvement / Building
| Improvement #1: | RESIDENTIAL | State Code: | Y | 1990.1 sqft | Value: | $460,427 |
| Bathrooms: | 2 | Bedrooms: | 3 | | Ceiling: | DRYWALL PAINTED | Exterior Wall/Cover: | CEMENT FIBER | | Floor Covering: | HARDWOOD/CARP 60-40 | Floor Structure: | WOOD W/SUBFLOOR | | Foundation: | CONCRETE | Heating: | FHA GAS | | Interior Finish: | DRYWALL PAINT | Plumbing Fixture Cnt: | 12 | | Roof Slope: | 10" IN 12" | Roof Structure/Cover: | CJ ASPHALT |
|
| | Type | Description | Class CD | Sub Class CD | Year Built | Area |
| | BAS | BASE/MAIN FLOOR | 4 | 0 | 2005 | 1990.1 |
| | OP4 | OPEN PORCH W/CEILING-ROOF | 4 | 0 | 2005 | 289.3 |
| | OP4 | OPEN PORCH W/CEILING-ROOF | 4 | 0 | 2005 | 110.2 |
| | AGR | ATTACHED GARAGE | 4 | 0 | 2005 | 677.0 |
Sketch
| No sketches available for this property. |
Property Image
Land
| 1 | HS | HOMESITE | 1.0000 | 43560.00 | 0.00 | 0.00 | 1.00 | $220,000 | $0 |
| 2 | 91 | UNDEVELOPED LAND-METES AND BOUNDS | 1.5500 | 67518.00 | 0.00 | 0.00 | 1.00 | $89,319 | $0 |
Roll Value History
| 2026 | N/A | N/A | N/A | N/A | N/A |
| 2025 | $460,427 | $309,319 | $0 | $769,746 | $665,760 |
| 2024 | $460,422 | $280,000 | $0 | $740,422 | $665,760 |
| 2023 | $465,760 | $270,000 | $0 | $735,760 | $665,760 |
| 2022 | $426,592 | $240,000 | $0 | $666,592 | $666,592 |
| 2021 | $358,419 | $170,000 | $0 | $528,419 | $528,419 |
| 2020 | $349,047 | $150,000 | $0 | $499,047 | $499,047 |
| 2019 | $258,184 | $180,000 | $0 | $438,184 | $438,184 |
| 2018 | $241,139 | $160,000 | $0 | $401,139 | $401,139 |
| 2017 | $242,514 | $130,000 | $0 | $372,514 | $372,514 |
| 2016 | $245,297 | $125,000 | $0 | $370,297 | $370,297 |
| 2015 | $248,077 | $90,000 | $0 | $338,077 | $338,077 |
| 2014 | $250,860 | $100,000 | $0 | $350,860 | $350,860 |
| 2013 | $253,641 | $100,000 | $0 | $353,641 | $353,641 |
| 2012 | $256,423 | $100,000 | $0 | $356,423 | $356,423 |
| 2011 | $259,205 | $100,000 | $0 | $359,205 | $359,205 |
| 2010 | $272,729 | $100,000 | $0 | $372,729 | $372,729 |
| 2009 | $281,204 | $125,000 | $0 | $406,204 | $406,204 |
| 2008 | $284,246 | $125,000 | $0 | $409,246 | $409,246 |
| 2007 | $287,269 | $100,000 | $0 | $387,269 | $387,269 |
Deed and Sales History
| 1 | 12/01/2021 | WD | Warranty Deed | THE JOHN RICHARD SOBEY & LOUISE FRANCES SOBEY | LORMAN, GERALD R | | | $660,000.00 | 51172 | 4535083 |
| 2 | 02/20/2014 | TRUSTEED | Trustee's Deed | SOBEY, JOHN | THE JOHN RICHARD SOBEY & LOUISE FRANCES SOBEY | | | $0.00 | 14337 | 4355483 |
| 3 | 05/12/2003 | WD | Warranty Deed | GRIFFIN, DIANA | SOBEY, JOHN | | | $55,000.00 | 32065 | 4059205 |
| 4 | 12/01/1990 | WD | Warranty Deed | WALL, JOHN | GRIFFIN, DIANA | | | $17,000.00 | 10120 | 91000645 |
| 5 | 09/01/1988 | QCD | Quit Claim Deed | SOMERVILLE, JAMES B | WALL, JOHN | | | $0.00 | 83193 | 88011870 |
| 6 | 02/01/1981 | EXECUTORD | Executor Deed | WALL, JOHN | SOMERVILLE, JAMES B | | | $16,500.00 | 10428 | 379420 |
| 7 | 10/01/1980 | EXECUTORD | Executor Deed | WALKER, LEROY L | WALL, JOHN | | | $11,500.00 | 3591 | 375606 |
| 8 | 01/01/1900 | OTHER | Other - Misc. Documents | Unknown | WALKER, LEROY L | | | $0.00 | 0 | 0 |
Payout Agreement
| No payout information available.. |