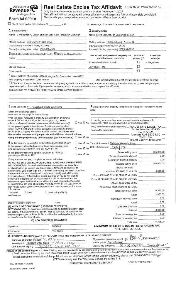
Property
Account |
| Property ID: | 461324 | Abbreviated Legal Description: | BG NECR SEC 12 S1*E983.51' TPB S1*E340' S89*W345.56' N1*W310' S89*W297.91' N13*E 30.94' N89*E636.17' TPB FR 412-4270 & 412-4940 TR D SP 79-87 |
| Geographic ID: | R13112-425-5150 | Agent Code: | |
| Type: | Real | | |
| Tax Area: | 312 - APPRAISER-Cpvl Schl Dist, outside Cpvl, improved, greater than 1 acre | Land Use Code | 11 |
| Open Space: | N | DFL | N |
| Historic Property: | N | Remodel Property: | N |
| Multi-Family Redevelopment: | N | | |
| Township: | 31 | Section: | 12 |
| Range: | R1 |
Location |
| Address: | 469 WANDERING LN COUPEVILLE, WA 98239 | Mapsco: | |
| Neighborhood: | Cycle 2 | Map ID: | 57 |
| Neighborhood CD: | 2 |
Owner |
| Name: | VERBLE, DAN L | Owner ID: | 82024 |
| Mailing Address: | 469 WANDERING LN COUPEVILLE, WA 98239-4515 | % Ownership: | 100.0000000000% |
| | | Exemptions: | |
Taxes and Assessment Details
Values
| (+) Improvement Homesite Value: | + | $0 | |
| (+) Improvement Non-Homesite Value: | + | $143,408 | |
| (+) Land Homesite Value: | + | $0 | |
| (+) Land Non-Homesite Value: | + | $314,525 | |
| (+) Curr Use (HS): | + | $0 | $0 |
| (+) Curr Use (NHS): | + | $0 | $0 |
| | | -------------------------- | |
| (=) Market Value: | = | $457,933 | |
| (–) Productivity Loss: | – | $0 | |
| | | -------------------------- | |
| (=) Subtotal: | = | $457,933 | |
| (+) Senior Appraised Value: | + | $0 | |
| (+) Non-Senior Appraised Value: | + | $457,933 | |
| | | -------------------------- | |
| (=) Total Appraised Value: | = | $457,933 | |
| (–) Senior Exemption Loss: | – | $0 | |
| (–) Exemption Loss: | – | $0 | |
| | | -------------------------- | |
| (=) Taxable Value: | = | $457,933 | |
Taxing Jurisdiction
| Owner: | VERBLE, DAN L | | |
| % Ownership: | 100.0000000000% | | |
| Total Value: | $457,933 | | |
| Tax Area: | 312 - APPRAISER-Cpvl Schl Dist, outside Cpvl, improved, greater than 1 acre |
| CF | Conservation Futures | 0.0316035091 | $457,933 | $457,933 | $14.47 | | |
| CEM2 | Cemetery #2 | 0.0095056933 | $457,933 | $457,933 | $4.35 | | |
| FIRE5 | Fire & Rescue Dist #5 C Whidbey GEN | 1.2008080668 | $457,933 | $457,933 | $549.89 | | |
| FIRE5BOND | Fire & Rescue Dist #5 C Whidbey BOND | 0.1400090713 | $457,933 | $457,933 | $64.11 | | |
| HOBOND | Hospital BOND | 0.1910887512 | $457,933 | $457,933 | $87.51 | | |
| HOGEN | Hospital GEN | 0.3902502903 | $457,933 | $457,933 | $178.71 | | |
| CE | County Current Expense | 0.3708482477 | $457,933 | $457,933 | $169.82 | | |
| CR | County Roads | 0.4584763726 | $457,933 | $457,933 | $209.95 | | |
| ISLANDEMS | Hospital GEN (EMS) | 0.5000000000 | $457,933 | $457,933 | $228.97 | | |
| LIB | Library Sno-Isle GEN | 0.3153421757 | $457,933 | $457,933 | $144.41 | | |
| LIBCAP | Library Sno-Isle BOND (Cap Fac Imp Area) | 0.0543427938 | $457,933 | $457,933 | $24.89 | | |
| POCOUP | Port of Coupeville GEN | 0.1093371703 | $457,933 | $457,933 | $50.07 | | |
| POCOUPIDD | Port of Coupeville IDD | 0.3409740022 | $457,933 | $457,933 | $156.14 | | |
| COUPSDTECH | School 204 CP (TECH) | 0.7545480007 | $457,933 | $457,933 | $345.53 | | |
| SCH204MO | School 204 Enrichment | 0.6716186034 | $457,933 | $457,933 | $307.56 | | |
| ST | State School | 1.3035497053 | $457,933 | $457,933 | $596.94 | | |
| ST2 | State School Part 2 | 0.8169543533 | $457,933 | $457,933 | $374.11 | | |
| | Total Tax Rate: | 7.6592568070 | | | | | |
| | | | | Taxes w/Current Exemptions: | $3,507.43 | | |
| | | | | Taxes w/o Exemptions: | $3,507.43 | | |
Improvement / Building
| Improvement #1: | MANUFACTURED HOME | State Code: | Y | 1512.0 sqft | Value: | $143,408 |
| Bathrooms: | 0 | Bedrooms: | 0 | | Ceiling: | PLASTER PAINTED | Cooling: | EVAP NO DUCT | | Exterior Wall/Cover: | VINYL | Floor Covering: | CARPET 100% | | Floor Structure: | SLAB ON GRADE | Foundation: | SLAB | | Heating: | FHA ELECTRIC | Interior Finish: | PLASTER | | Plumbing Fixture Cnt: | 1 | Roof Slope: | FLAT | | Roof Structure/Cover: | CJ ALUMINIUM HEAVY |   |   |
|
| | Type | Description | Class CD | Sub Class CD | Year Built | Area |
| | BAS | BASE/MAIN FLOOR | 4 | 0 | 1997 | 1512.0 |
| | DGR | DETACHED GARAGE | 4 | 0 | 1997 | 864.0 |
| | DGR | DETACHED GARAGE | 4 | 0 | 1997 | 384.0 |
| | OWP | OPEN WOOD PORCH W/STEPS | 4 | 0 | 1997 | 156.0 |
| | OWP | OPEN WOOD PORCH W/STEPS | 4 | 0 | 1997 | 112.0 |
Sketch
| No sketches available for this property. |
Property Image
Land
| 1 | HS | HOMESITE | 1.0000 | 43560.00 | 0.00 | 0.00 | 1.00 | $220,000 | $0 |
| 2 | 91 | UNDEVELOPED LAND-METES AND BOUNDS | 1.9000 | 82764.00 | 0.00 | 0.00 | 1.00 | $94,525 | $0 |
Roll Value History
| 2026 | N/A | N/A | N/A | N/A | N/A |
| 2025 | $143,408 | $314,525 | $0 | $457,933 | $457,933 |
| 2024 | $129,549 | $280,000 | $0 | $409,549 | $409,549 |
| 2023 | $118,494 | $270,000 | $0 | $388,494 | $388,494 |
| 2022 | $112,082 | $240,000 | $0 | $352,082 | $352,082 |
| 2021 | $102,665 | $170,000 | $0 | $272,665 | $272,665 |
| 2020 | $102,616 | $150,000 | $0 | $252,616 | $252,616 |
| 2019 | $87,242 | $180,000 | $0 | $267,242 | $267,242 |
| 2018 | $83,999 | $160,000 | $0 | $243,999 | $243,999 |
| 2017 | $85,587 | $130,000 | $0 | $215,587 | $215,587 |
| 2016 | $87,175 | $125,000 | $0 | $212,175 | $212,175 |
| 2015 | $87,969 | $90,000 | $0 | $177,969 | $177,969 |
| 2014 | $89,558 | $76,000 | $0 | $165,558 | $165,558 |
| 2013 | $91,146 | $85,000 | $0 | $176,146 | $176,146 |
| 2012 | $92,734 | $85,000 | $0 | $177,734 | $177,734 |
| 2011 | $129,423 | $85,000 | $0 | $214,423 | $214,423 |
| 2010 | $125,312 | $85,000 | $0 | $210,312 | $210,312 |
| 2009 | $130,784 | $100,000 | $0 | $230,784 | $230,784 |
| 2008 | $132,817 | $100,000 | $0 | $232,817 | $232,817 |
| 2007 | $137,242 | $99,382 | $0 | $236,624 | $236,624 |
Deed and Sales History
| 1 | 01/02/2004 | WD | Warranty Deed | ELSEY, DAVID L | VERBLE, DAN L | | | $194,900.00 | 40037 | 4087749 |
| 2 | 02/01/1997 | OTHER | Other - Misc. Documents | ELSEY, DAVID L | ELSEY, DAVID L | | | $0.00 | 11111111 | 0 |
| 3 | 12/01/1996 | QCD | Quit Claim Deed | ELSEY, DAVID L | ELSEY, DAVID L | | | $0.00 | 70359 | 97001525 |
| 4 | 07/01/1996 | WD | Warranty Deed | GRAY, STANLEY A | ELSEY, DAVID L | | | $25,000.00 | 62784 | 96013616 |
| 5 | 03/01/1985 | WD | Warranty Deed | ROHRER, FRANCIS R | GRAY, STANLEY A | | | $14,688.00 | 50445 | 85002029 |
| 6 | 08/01/1980 | REC | Real Estate Contract | WALKER, LEROY L | ROHRER, FRANCIS R | | | $10,200.00 | 2585 | 371909 |
| 7 | 01/01/1900 | OTHER | Other - Misc. Documents | Unknown | WALKER, LEROY L | | | $0.00 | 0 | 0 |
Payout Agreement
| No payout information available.. |