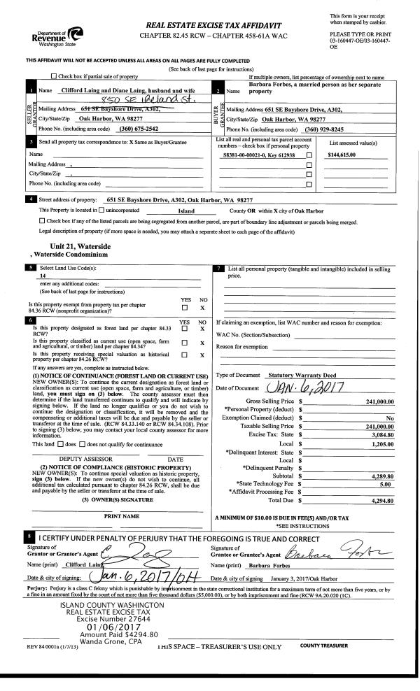
Property
Account |
| Property ID: | 461672 | Abbreviated Legal Description: | 1979 SKYLINE 14X56 VIN# 01950172M TPO $58783 |
| Geographic ID: | M917500000290 | Agent Code: | |
| Type: | Mobile Home | | |
| Tax Area: | 100 - APPRAISER-OH Schl Dist, in OH | Land Use Code | 11 |
| Open Space: | N | DFL | N |
| Historic Property: | N | Remodel Property: | N |
| Multi-Family Redevelopment: | N | | |
| Township: | | Section: | |
| Range: | |
Location |
| Address: | 225 NE ERNST ST # 29 OAK HARBOR, WA 98277 | Mapsco: | |
| Neighborhood: | Cycle 1 | Map ID: | |
| Neighborhood CD: | 1 |
Owner |
| Name: | FLOYD, JEAN M | Owner ID: | 277024 |
| Mailing Address: | 225 NE ERNST ST #29 OAK HARBOR, WA 98277 | % Ownership: | 100.0000000000% |
| | | Exemptions: | |
Taxes and Assessment Details
Values
| (+) Improvement Homesite Value: | + | $0 | |
| (+) Improvement Non-Homesite Value: | + | $12,648 | |
| (+) Land Homesite Value: | + | $0 | |
| (+) Land Non-Homesite Value: | + | $0 | |
| (+) Curr Use (HS): | + | $0 | $0 |
| (+) Curr Use (NHS): | + | $0 | $0 |
| | | -------------------------- | |
| (=) Market Value: | = | $12,648 | |
| (–) Productivity Loss: | – | $0 | |
| | | -------------------------- | |
| (=) Subtotal: | = | $12,648 | |
| (+) Senior Appraised Value: | + | $0 | |
| (+) Non-Senior Appraised Value: | + | $12,648 | |
| | | -------------------------- | |
| (=) Total Appraised Value: | = | $12,648 | |
| (–) Senior Exemption Loss: | – | $0 | |
| (–) Exemption Loss: | – | $0 | |
| | | -------------------------- | |
| (=) Taxable Value: | = | $12,648 | |
Taxing Jurisdiction
| Owner: | FLOYD, JEAN M | | |
| % Ownership: | 100.0000000000% | | |
| Total Value: | $12,648 | | |
| Tax Area: | 100 - APPRAISER-OH Schl Dist, in OH |
| CF | Conservation Futures | 0.0316035091 | $12,648 | $12,648 | $0.40 | | |
| CEM1 | Cemetery #1 | 0.0040320932 | $12,648 | $12,648 | $0.05 | | |
| COH | City of Oak Harbor | 2.3001546061 | $12,648 | $12,648 | $29.09 | | |
| OAKBOND | City of Oak Harbor BOND | 0.1926904192 | $12,648 | $12,648 | $2.44 | | |
| HOBOND | Hospital BOND | 0.1910887512 | $12,648 | $12,648 | $2.42 | | |
| HOGEN | Hospital GEN | 0.3902502903 | $12,648 | $12,648 | $4.94 | | |
| CE | County Current Expense | 0.3708482477 | $12,648 | $12,648 | $4.69 | | |
| ISLANDEMS | Hospital GEN (EMS) | 0.5000000000 | $12,648 | $12,648 | $6.32 | | |
| LIB | Library Sno-Isle GEN | 0.3153421757 | $12,648 | $12,648 | $3.99 | | |
| NWHIDPRMT | P & R N Whidbey GEN | 0.2004466701 | $12,648 | $12,648 | $2.54 | | |
| SCH201MO | School 201 Enrichment | 1.8559231640 | $12,648 | $12,648 | $23.47 | | |
| ST | State School | 1.3035497053 | $12,648 | $12,648 | $16.49 | | |
| ST2 | State School Part 2 | 0.8169543533 | $12,648 | $12,648 | $10.33 | | |
| | Total Tax Rate: | 8.4728839852 | | | | | |
| | | | | Taxes w/Current Exemptions: | $107.17 | | |
| | | | | Taxes w/o Exemptions: | $107.17 | | |
Improvement / Building
| Improvement #1: | MANUFACTURED HOME | State Code: | Y | 784.0 sqft | Value: | $12,648 |
| Bathrooms: | 0 | Bedrooms: | 0 | | Ceiling: | PLASTER PAINTED | Cooling: | EVAP NO DUCT | | Exterior Wall/Cover: | VINYL | Floor Covering: | CARPET 100% | | Floor Structure: | SLAB ON GRADE | Foundation: | SLAB | | Heating: | FHA ELECTRIC | Interior Finish: | PLASTER | | Plumbing Fixture Cnt: | 1 | Roof Slope: | FLAT | | Roof Structure/Cover: | CJ ALUMINIUM HEAVY |   |   |
|
| | Type | Description | Class CD | Sub Class CD | Year Built | Area |
| | BAS | BASE/MAIN FLOOR | 3 | 0 | 1979 | 784.0 |
| | ENP | ENCLOSED PORCH | 3 | 0 | 1979 | 80.0 |
| | OWR | OPEN WOOD PORCH W/STEPS/ROOF | 3 | 0 | 1979 | 48.0 |
Sketch
Property Image
Land
No land segments exist for this property.
Roll Value History
| 2026 | N/A | N/A | N/A | N/A | N/A |
| 2025 | $12,648 | $0 | $0 | $12,648 | $12,648 |
| 2024 | $13,415 | $0 | $0 | $13,415 | $13,415 |
| 2023 | $11,061 | $0 | $0 | $11,061 | $11,061 |
| 2022 | $10,663 | $0 | $0 | $10,663 | $10,663 |
| 2021 | $9,834 | $0 | $0 | $9,834 | $9,834 |
| 2020 | $10,364 | $0 | $0 | $10,364 | $10,364 |
| 2019 | $8,596 | $0 | $0 | $8,596 | $8,596 |
| 2018 | $9,026 | $0 | $0 | $9,026 | $9,026 |
| 2017 | $8,292 | $0 | $0 | $8,292 | $8,292 |
| 2016 | $8,669 | $0 | $0 | $8,669 | $8,669 |
| 2015 | $9,045 | $0 | $0 | $9,045 | $9,045 |
| 2014 | $9,611 | $0 | $0 | $9,611 | $9,611 |
| 2013 | $9,988 | $0 | $0 | $9,988 | $9,988 |
| 2012 | $10,365 | $0 | $0 | $10,365 | $10,365 |
| 2011 | $9,466 | $0 | $0 | $9,466 | $9,466 |
| 2010 | $9,808 | $0 | $0 | $9,808 | $9,808 |
| 2009 | $10,243 | $0 | $0 | $10,243 | $10,243 |
| 2008 | $10,356 | $0 | $0 | $10,356 | $10,356 |
| 2007 | $10,476 | $0 | $0 | $10,476 | $10,476 |
Deed and Sales History
| 1 | 09/30/2016 | MANHOME | Manufactured Home | MCCAFFERY, JANICE M | FLOYD, JEAN M | | | $0.00 | 26370 | |
| 2 | 03/13/2014 | CPADC | Comm Prop Agmnt & Death Cert | MCCAFFERY, JOHN M | MCCAFFERY, JANICE M | | | | 83895 | |
| 3 | 10/17/2011 | OTHER | Other - Misc. Documents | KENNEDY, HENRY | MCCAFFERY, JOHN M | | | $12,750.00 | 5852 | |
| 4 | 09/10/2007 | OTHER | Other - Misc. Documents | JOHNSON, WENDY S | KENNEDY, HENRY | | | $10,000.00 | 73074 | 0 |
| 5 | 01/29/2006 | OTHER | Other - Misc. Documents | TRAUTMAN, DON | JOHNSON, WENDY S | | | $7,000.00 | 61963 | 0 |
| 6 | 10/06/2003 | OTHER | Other - Misc. Documents | STONE, JEAN / | TRAUTMAN, DON | | | $9,000.00 | 53323 | 0 |
| 7 | 11/01/1997 | OTHER | Other - Misc. Documents | LEPKOWSKI, REBA J | STONE, JEAN / | | | $8,000.00 | 73825 | 0 |
| 8 | 08/01/1993 | OTHER | Other - Misc. Documents | LEPKOWSKI, THADDEUS T | LEPKOWSKI, REBA J | | | $0.00 | 33140 | 0 |
| 9 | 07/01/1983 | OTHER | Other - Misc. Documents | CUMMINGS, ELIZABETH | LEPKOWSKI, THADDEUS T | | | $10,500.00 | 32094 | 0 |
| 10 | 10/01/1982 | OTHER | Other - Misc. Documents | FOX, LAARA | CUMMINGS, ELIZABETH | | | $12,000.00 | 22424 | 0 |
| 11 | 06/01/1982 | OTHER | Other - Misc. Documents | REGER, ALMA T | FOX, LAARA | | | $0.00 | 21467 | 0 |
| 12 | 10/01/1980 | OTHER | Other - Misc. Documents | REGER, ALMA T | REGER, ALMA T | | | $0.00 | 3304 | 0 |
| 13 | 08/01/1979 | OTHER | Other - Misc. Documents | KASMIRE, BARBARA | REGER, ALMA T | | | $13,000.00 | 94133 | 0 |
Payout Agreement
| No payout information available.. |