Property
Account |
| Property ID: | 462813 | Abbreviated Legal Description: | IN WELCHER DLC:BG INTER CLN WELCHER & RACE RDS S1*W ALG CLN RACE RD 612' N88*W TO CLN WELCHER RD NELY ALG CLN WELCHER RD TPB EX RDS SP 79-21 LOT A (LOT 1 BLK 2 UNREC RACE LAGOON HTS V4 SUR P84&85 AF#307607) FR 433-280 |
| Geographic ID: | R23107-450-2820 | Agent Code: | |
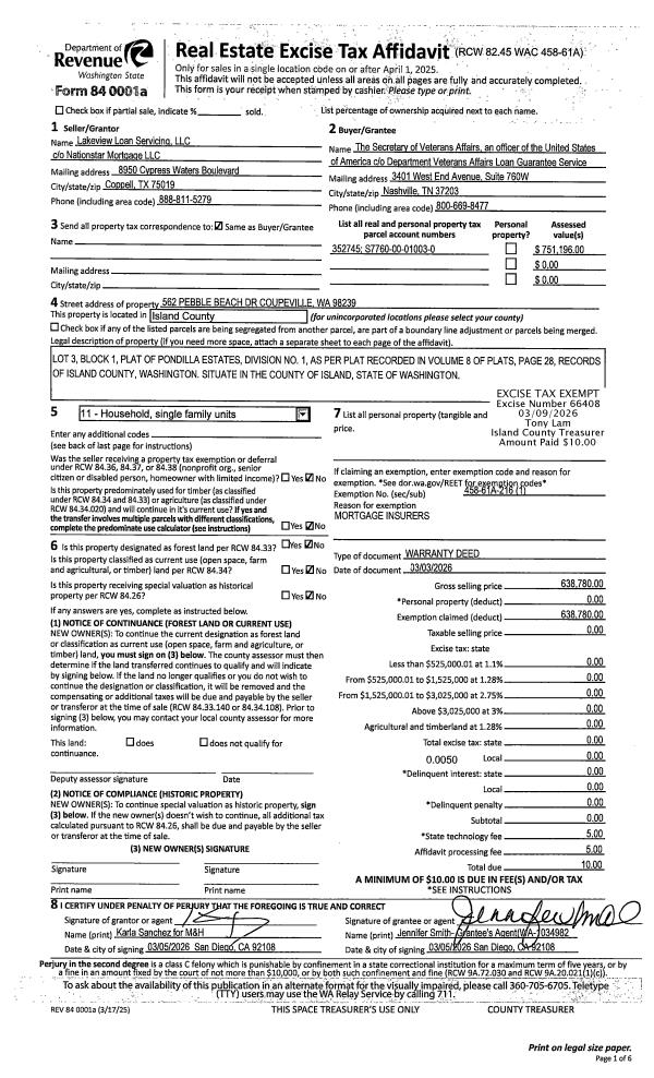
| Type: | Real | | |
| Tax Area: | 312 - APPRAISER-Cpvl Schl Dist, outside Cpvl, improved, greater than 1 acre | Land Use Code | 11 |
| Open Space: | N | DFL | N |
| Historic Property: | N | Remodel Property: | N |
| Multi-Family Redevelopment: | N | | |
| Township: | 31 | Section: | 07 |
| Range: | R2 |
Location |
| Address: | 450 RACE RD COUPEVILLE, WA 98239 | Mapsco: | |
| Neighborhood: | Cycle 2 | Map ID: | 464 |
| Neighborhood CD: | 2 |
Owner |
| Name: | DRUGGE, JESSICA | Owner ID: | 283234 |
| Mailing Address: | MARCI HASTINGS 450 RACE RD COUPEVILLE, WA 98239 | % Ownership: | 100.0000000000% |
| | | Exemptions: | |
Taxes and Assessment Details
Values
| (+) Improvement Homesite Value: | + | $0 | |
| (+) Improvement Non-Homesite Value: | + | $320,224 | |
| (+) Land Homesite Value: | + | $0 | |
| (+) Land Non-Homesite Value: | + | $308,125 | |
| (+) Curr Use (HS): | + | $0 | $0 |
| (+) Curr Use (NHS): | + | $0 | $0 |
| | | -------------------------- | |
| (=) Market Value: | = | $628,349 | |
| (–) Productivity Loss: | – | $0 | |
| | | -------------------------- | |
| (=) Subtotal: | = | $628,349 | |
| (+) Senior Appraised Value: | + | $0 | |
| (+) Non-Senior Appraised Value: | + | $628,349 | |
| | | -------------------------- | |
| (=) Total Appraised Value: | = | $628,349 | |
| (–) Senior Exemption Loss: | – | $0 | |
| (–) Exemption Loss: | – | $0 | |
| | | -------------------------- | |
| (=) Taxable Value: | = | $628,349 | |
Taxing Jurisdiction
| Owner: | DRUGGE, JESSICA | | |
| % Ownership: | 100.0000000000% | | |
| Total Value: | $628,349 | | |
| Tax Area: | 312 - APPRAISER-Cpvl Schl Dist, outside Cpvl, improved, greater than 1 acre |
| CF | Conservation Futures | 0.0316035091 | $628,349 | $628,349 | $19.86 | | |
| CEM2 | Cemetery #2 | 0.0095056933 | $628,349 | $628,349 | $5.97 | | |
| FIRE5 | Fire & Rescue Dist #5 C Whidbey GEN | 1.2008080668 | $628,349 | $628,349 | $754.53 | | |
| FIRE5BOND | Fire & Rescue Dist #5 C Whidbey BOND | 0.1400090713 | $628,349 | $628,349 | $87.97 | | |
| HOBOND | Hospital BOND | 0.1910887512 | $628,349 | $628,349 | $120.07 | | |
| HOGEN | Hospital GEN | 0.3902502903 | $628,349 | $628,349 | $245.21 | | |
| CE | County Current Expense | 0.3708482477 | $628,349 | $628,349 | $233.02 | | |
| CR | County Roads | 0.4584763726 | $628,349 | $628,349 | $288.08 | | |
| ISLANDEMS | Hospital GEN (EMS) | 0.5000000000 | $628,349 | $628,349 | $314.17 | | |
| LIB | Library Sno-Isle GEN | 0.3153421757 | $628,349 | $628,349 | $198.14 | | |
| LIBCAP | Library Sno-Isle BOND (Cap Fac Imp Area) | 0.0543427938 | $628,349 | $628,349 | $34.15 | | |
| POCOUP | Port of Coupeville GEN | 0.1093371703 | $628,349 | $628,349 | $68.70 | | |
| POCOUPIDD | Port of Coupeville IDD | 0.3409740022 | $628,349 | $628,349 | $214.25 | | |
| COUPSDTECH | School 204 CP (TECH) | 0.7545480007 | $628,349 | $628,349 | $474.12 | | |
| SCH204MO | School 204 Enrichment | 0.6716186034 | $628,349 | $628,349 | $422.01 | | |
| ST | State School | 1.3035497053 | $628,349 | $628,349 | $819.08 | | |
| ST2 | State School Part 2 | 0.8169543533 | $628,349 | $628,349 | $513.33 | | |
| | Total Tax Rate: | 7.6592568070 | | | | | |
| | | | | Taxes w/Current Exemptions: | $4,812.66 | | |
| | | | | Taxes w/o Exemptions: | $4,812.66 | | |
Improvement / Building
| Improvement #1: | RESIDENTIAL | State Code: | Y | 1628.0 sqft | Value: | $320,224 |
| Bathrooms: | 2 | Bedrooms: | 2 | | Ceiling: | DRYWALL PAINTED | Cooling: | HEAT PUMP/CONV/V | | Exterior Wall/Cover: | PLY/HARDBOARD T-111 | Floor Covering: | HARDWOOD/CARP 20-80 | | Floor Structure: | WOOD W/SUBFLOOR | Foundation: | CONCRETE | | Interior Finish: | DRYWALL PAINT | Plumbing Fixture Cnt: | 9 | | Roof Slope: | 12" IN 12" | Roof Structure/Cover: | CJ ASPHALT |
|
| | Type | Description | Class CD | Sub Class CD | Year Built | Area |
| | BAS | BASE/MAIN FLOOR | 3 | 0 | 1987 | 1304.0 |
| | OWP | OPEN WOOD PORCH W/STEPS | 3 | 0 | 1987 | 156.0 |
| | OWR | OPEN WOOD PORCH W/STEPS/ROOF | 3 | 0 | 1987 | 56.0 |
| | UPH | HALF STORY | 3 | 0 | 1987 | 324.0 |
| | DGR | DETACHED GARAGE | 3 | 0 | 1987 | 576.0 |
| | OWP | OPEN WOOD PORCH W/STEPS | 3 | 0 | 1987 | 172.0 |
Sketch
Property Image
Land
| 1 | HS | HOMESITE | 1.0000 | 43560.00 | 0.00 | 0.00 | 1.00 | $220,000 | $0 |
| 2 | 91 | UNDEVELOPED LAND-METES AND BOUNDS | 1.5000 | 65340.00 | 0.00 | 0.00 | 1.00 | $88,125 | $0 |
Roll Value History
| 2026 | N/A | N/A | N/A | N/A | N/A |
| 2025 | $320,224 | $308,125 | $0 | $628,349 | $628,349 |
| 2024 | $308,400 | $280,000 | $0 | $588,400 | $588,400 |
| 2023 | $312,342 | $270,000 | $0 | $582,342 | $582,342 |
| 2022 | $286,402 | $250,000 | $0 | $536,402 | $536,402 |
| 2021 | $252,152 | $150,000 | $0 | $402,152 | $402,152 |
| 2020 | $245,942 | $150,000 | $0 | $395,942 | $395,942 |
| 2019 | $180,811 | $180,000 | $0 | $360,811 | $360,811 |
| 2018 | $181,354 | $160,000 | $0 | $341,354 | $341,354 |
| 2017 | $155,922 | $130,000 | $0 | $285,922 | $285,922 |
| 2016 | $157,822 | $125,000 | $0 | $282,822 | $282,822 |
| 2015 | $159,725 | $90,000 | $0 | $249,725 | $249,725 |
| 2014 | $161,625 | $100,000 | $0 | $261,625 | $261,625 |
| 2013 | $163,528 | $100,000 | $0 | $263,528 | $263,528 |
| 2012 | $172,746 | $100,000 | $0 | $272,746 | $272,746 |
| 2011 | $165,657 | $100,000 | $0 | $265,657 | $265,657 |
| 2010 | $155,471 | $100,000 | $0 | $255,471 | $255,471 |
| 2009 | $161,262 | $125,000 | $0 | $286,262 | $286,262 |
| 2008 | $163,208 | $125,000 | $0 | $288,208 | $288,208 |
| 2007 | $116,410 | $115,000 | $0 | $231,410 | $231,410 |
Deed and Sales History
| 1 | 12/05/2017 | WD | Warranty Deed | ELLIS, THOMAS D | DRUGGE, JESSICA | | | $380,000.00 | 32233 | 4435579 |
| 2 | 08/25/2008 | WD | Warranty Deed | DEFONTES, CARLANN | ELLIS, THOMAS D | | | $299,000.00 | 82303 | 4235944 |
| 3 | 03/08/2006 | WD | Warranty Deed | STIMAC, LINDA | DEFONTES, CARLANN | | | $215,000.00 | 61039 | 4164446 |
| 4 | 06/01/1995 | OTHER | Other - Misc. Documents | EDENHOLM, LINDA | STIMAC, LINDA | | | $0.00 | 66471 | 0 |
| 5 | 06/01/1994 | QCD | Quit Claim Deed | EDENHOLM, ROY | EDENHOLM, LINDA | | | $0.00 | 42518 | 94014043 |
| 6 | 06/01/1987 | WD | Warranty Deed | ZIMMERMANN, TIMM A | EDENHOLM, ROY | | | $10,000.00 | 71984 | 87009107 |
| 7 | 06/01/1987 | WD | Warranty Deed | EDENHOLM, ROY | EDENHOLM, ROY | | | $0.00 | 72230 | 87010128 |
| 8 | 09/01/1983 | PACD | Purchaser's Assignment | WESTLUND, ORVILLE A | ZIMMERMANN, TIMM A | | | $20,500.00 | 32912 | 415809 |
| 9 | 08/01/1980 | EXECUTORD | Executor Deed | KENT, ARTHUR C | WESTLUND, ORVILLE A | | | $18,000.00 | 2966 | 373371 |
| 10 | 01/01/1900 | OTHER | Other - Misc. Documents | Unknown | KENT, ARTHUR C | | | $0.00 | 0 | 0 |
Payout Agreement
| No payout information available.. |