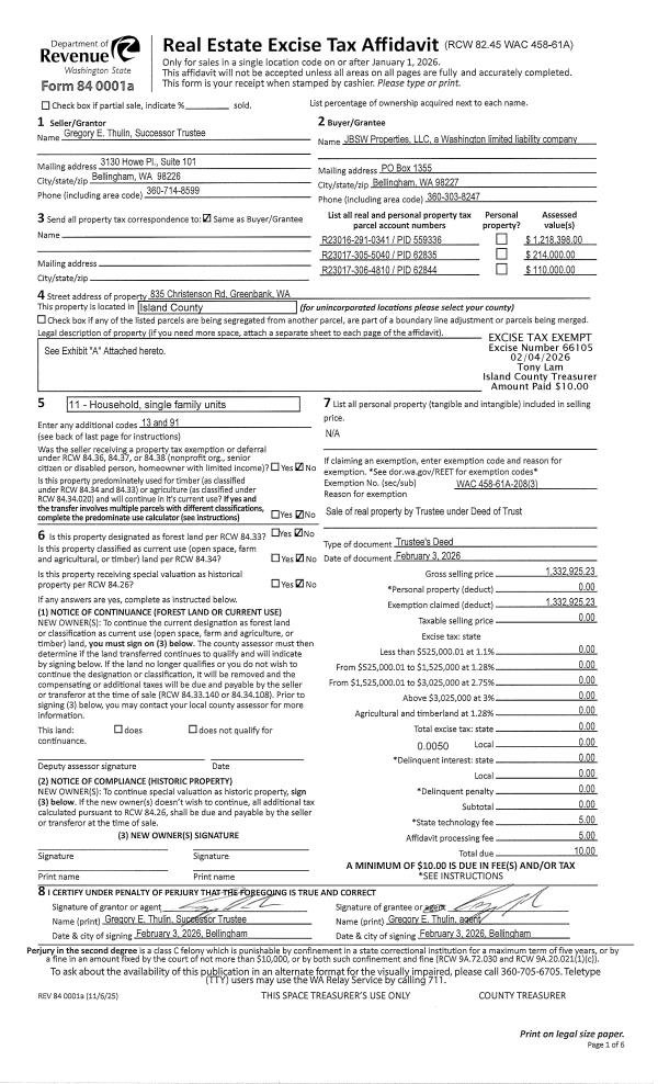
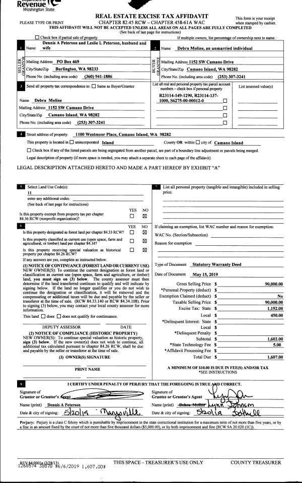
Property
Account |
| Property ID: | 463279 | Abbreviated Legal Description: | 1976 MODULINE CANDLEWOOD 24X48 VIN# 4478 TPO @93295 |
| Geographic ID: | M910000000390 | Agent Code: | |
| Type: | Mobile Home | | |
| Tax Area: | 300 - APPRAISER-Cpvl Schl Dist, in Cpvl | Land Use Code | 11 |
| Open Space: | N | DFL | N |
| Historic Property: | N | Remodel Property: | N |
| Multi-Family Redevelopment: | N | | |
| Township: | | Section: | |
| Range: | |
Location |
| Address: | 701 S MAIN ST # 39 COUPEVILLE, WA 98239 | Mapsco: | |
| Neighborhood: | Cycle 2 | Map ID: | |
| Neighborhood CD: | 2 |
Owner |
| Name: | PURCELL, TERRI | Owner ID: | 289676 |
| Mailing Address: | 701 S MAIN ST # 39 COUPEVILLE, WA 98239 | % Ownership: | 100.0000000000% |
| | | Exemptions: | |
Taxes and Assessment Details
Values
| (+) Improvement Homesite Value: | + | $0 | |
| (+) Improvement Non-Homesite Value: | + | $69,057 | |
| (+) Land Homesite Value: | + | $0 | |
| (+) Land Non-Homesite Value: | + | $0 | |
| (+) Curr Use (HS): | + | $0 | $0 |
| (+) Curr Use (NHS): | + | $0 | $0 |
| | | -------------------------- | |
| (=) Market Value: | = | $69,057 | |
| (–) Productivity Loss: | – | $0 | |
| | | -------------------------- | |
| (=) Subtotal: | = | $69,057 | |
| (+) Senior Appraised Value: | + | $0 | |
| (+) Non-Senior Appraised Value: | + | $69,057 | |
| | | -------------------------- | |
| (=) Total Appraised Value: | = | $69,057 | |
| (–) Senior Exemption Loss: | – | $0 | |
| (–) Exemption Loss: | – | $0 | |
| | | -------------------------- | |
| (=) Taxable Value: | = | $69,057 | |
Taxing Jurisdiction
| Owner: | PURCELL, TERRI | | |
| % Ownership: | 100.0000000000% | | |
| Total Value: | $69,057 | | |
| Tax Area: | 300 - APPRAISER-Cpvl Schl Dist, in Cpvl |
| CF | Conservation Futures | 0.0316035091 | $69,057 | $69,057 | $2.18 | | |
| CEM2 | Cemetery #2 | 0.0095056933 | $69,057 | $69,057 | $0.66 | | |
| COUP | City: Town of Coupeville | 0.8426414490 | $69,057 | $69,057 | $58.19 | | |
| FIRE5 | Fire & Rescue Dist #5 C Whidbey GEN | 1.2008080668 | $69,057 | $69,057 | $82.92 | | |
| FIRE5BOND | Fire & Rescue Dist #5 C Whidbey BOND | 0.1400090713 | $69,057 | $69,057 | $9.67 | | |
| HOBOND | Hospital BOND | 0.1910887512 | $69,057 | $69,057 | $13.20 | | |
| HOGEN | Hospital GEN | 0.3902502903 | $69,057 | $69,057 | $26.95 | | |
| CE | County Current Expense | 0.3708482477 | $69,057 | $69,057 | $25.61 | | |
| ISLANDEMS | Hospital GEN (EMS) | 0.5000000000 | $69,057 | $69,057 | $34.53 | | |
| LIB | Library Sno-Isle GEN | 0.3153421757 | $69,057 | $69,057 | $21.78 | | |
| LIBCAP | Library Sno-Isle BOND (Cap Fac Imp Area) | 0.0543427938 | $69,057 | $69,057 | $3.75 | | |
| POCOUP | Port of Coupeville GEN | 0.1093371703 | $69,057 | $69,057 | $7.55 | | |
| POCOUPIDD | Port of Coupeville IDD | 0.3409740022 | $69,057 | $69,057 | $23.55 | | |
| COUPSDTECH | School 204 CP (TECH) | 0.7545480007 | $69,057 | $69,057 | $52.11 | | |
| SCH204MO | School 204 Enrichment | 0.6716186034 | $69,057 | $69,057 | $46.38 | | |
| ST | State School | 1.3035497053 | $69,057 | $69,057 | $90.02 | | |
| ST2 | State School Part 2 | 0.8169543533 | $69,057 | $69,057 | $56.42 | | |
| | Total Tax Rate: | 8.0434218834 | | | | | |
| | | | | Taxes w/Current Exemptions: | $555.47 | | |
| | | | | Taxes w/o Exemptions: | $555.47 | | |
Improvement / Building
| Improvement #1: | MANUFACTURED HOME | State Code: | Y | 1143.8 sqft | Value: | $69,057 |
| Bathrooms: | 0 | Bedrooms: | 0 | | Ceiling: | PLASTER PAINTED | Cooling: | EVAP NO DUCT | | Exterior Wall/Cover: | VINYL | Floor Covering: | CARPET 100% | | Floor Structure: | SLAB ON GRADE | Foundation: | SLAB | | Heating: | FHA ELECTRIC | Interior Finish: | PLASTER | | Plumbing Fixture Cnt: | 1 | Roof Slope: | FLAT | | Roof Structure/Cover: | CJ ALUMINIUM HEAVY |   |   |
|
Sketch
Property Image
Land
No land segments exist for this property.
Roll Value History
| 2026 | N/A | N/A | N/A | N/A | N/A |
| 2025 | $69,057 | $0 | $0 | $69,057 | $69,057 |
| 2024 | $56,336 | $0 | $0 | $56,336 | $56,336 |
| 2023 | $35,277 | $0 | $0 | $35,277 | $35,277 |
| 2022 | $33,880 | $0 | $0 | $33,880 | $33,880 |
| 2021 | $31,985 | $0 | $0 | $31,985 | $31,985 |
| 2020 | $32,690 | $0 | $0 | $32,690 | $32,690 |
| 2019 | $27,037 | $0 | $0 | $27,037 | $27,037 |
| 2018 | $16,361 | $0 | $0 | $16,361 | $0 |
| 2017 | $17,519 | $0 | $0 | $17,519 | $0 |
| 2016 | $18,098 | $0 | $0 | $18,098 | $0 |
| 2015 | $19,257 | $0 | $0 | $19,257 | $0 |
| 2014 | $19,836 | $0 | $0 | $19,836 | $0 |
| 2013 | $20,995 | $0 | $0 | $20,995 | $0 |
| 2012 | $24,693 | $0 | $0 | $24,693 | $0 |
| 2011 | $26,431 | $0 | $0 | $26,431 | $0 |
| 2010 | $26,689 | $0 | $0 | $26,689 | $0 |
| 2009 | $28,058 | $0 | $0 | $28,058 | $28,058 |
| 2008 | $28,740 | $0 | $0 | $28,740 | $28,740 |
| 2007 | $30,025 | $0 | $0 | $30,025 | $30,025 |
Deed and Sales History
| 1 | 03/26/2019 | MANHOME | Manufactured Home | HAIGH, BLAINE | PURCELL, TERRI | | | $28,000.00 | 38171 | |
| 2 | 05/11/2011 | OTHER | Other - Misc. Documents | LANDIS, DOROTHY A | HAIGH, BLAINE | | | $23,000.00 | 4382 | |
| 3 | 06/14/2000 | OTHER | Other - Misc. Documents | LANDIS, FRED / | LANDIS, DOROTHY A | | | $0.00 | 2191 | 0 |
| 4 | 01/01/1994 | OTHER | Other - Misc. Documents | LANDIS, FRED/DESMA | LANDIS, FRED / | | | $0.00 | 50338 | 0 |
| 5 | 07/01/1993 | OTHER | Other - Misc. Documents | MCCORMICK, MYRON | LANDIS, FRED/DESMA | | | $24,000.00 | 32734 | 0 |
| 6 | 01/01/1900 | OTHER | Other - Misc. Documents | Unknown | MCCORMICK, MYRON | | | $0.00 | 0 | 0 |
Payout Agreement
| No payout information available.. |