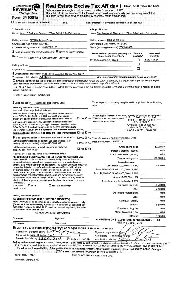
Property
Account |
| Property ID: | 463448 | Abbreviated Legal Description: | WILKES GARY 1ST PT LOT 29: BG NE CR LOT 29 S84*W66.56' S4*W186.36'TPB S63*E78.89' TO ELN LOT 29 S2*W321'M/L TO HIGH TIDE NWLY 93'M/L TO WLN LOT 29 N4*E318'M/L TPB TGW & SUB EZ SP76-94 TR B FR8460-01-00029-0 |
| Geographic ID: | S8460-01-00029-2 | Agent Code: | |
| Type: | Real | | |
| Tax Area: | 540 - APPRAISER-Stan/Cam Schl Dist, Special Dist, improved & less than 1 acre | Land Use Code | 11 |
| Open Space: | N | DFL | N |
| Historic Property: | N | Remodel Property: | N |
| Multi-Family Redevelopment: | N | | |
| Township: | | Section: | |
| Range: | |
Location |
| Address: | 2080 GULL WAY CAMANO ISLAND, WA 98282 | Mapsco: | |
| Neighborhood: | 58RscamWF-South Cam | Map ID: | 888 |
| Neighborhood CD: | 58RscamWF |
Owner |
| Name: | BURSTEIN, ALANNA ROSE AHERN | Owner ID: | 309066 |
| Mailing Address: | 1845 SAKAI VILLAGE LOOP BAINBRIDGE ISLAND, WA 98110 | % Ownership: | 100.0000000000% |
| | | Exemptions: | |
Taxes and Assessment Details
Values
| (+) Improvement Homesite Value: | + | $0 | |
| (+) Improvement Non-Homesite Value: | + | $369,372 | |
| (+) Land Homesite Value: | + | $0 | |
| (+) Land Non-Homesite Value: | + | $400,000 | |
| (+) Curr Use (HS): | + | $0 | $0 |
| (+) Curr Use (NHS): | + | $0 | $0 |
| | | -------------------------- | |
| (=) Market Value: | = | $769,372 | |
| (–) Productivity Loss: | – | $0 | |
| | | -------------------------- | |
| (=) Subtotal: | = | $769,372 | |
| (+) Senior Appraised Value: | + | $0 | |
| (+) Non-Senior Appraised Value: | + | $769,372 | |
| | | -------------------------- | |
| (=) Total Appraised Value: | = | $769,372 | |
| (–) Senior Exemption Loss: | – | $0 | |
| (–) Exemption Loss: | – | $0 | |
| | | -------------------------- | |
| (=) Taxable Value: | = | $769,372 | |
Taxing Jurisdiction
| Owner: | BURSTEIN, ALANNA ROSE AHERN | | |
| % Ownership: | 100.0000000000% | | |
| Total Value: | $769,372 | | |
| Tax Area: | 540 - APPRAISER-Stan/Cam Schl Dist, Special Dist, improved & less than 1 acre |
| CF | Conservation Futures | 0.0316035091 | $769,372 | $769,372 | $24.31 | | |
| EMS1 | Fire & Rescue Dist #1 Camano GEN (EMS) | 0.3677864386 | $769,372 | $769,372 | $282.96 | | |
| FIRE1 | Fire & Rescue Dist #1 Camano GEN | 1.2502910536 | $769,372 | $769,372 | $961.94 | | |
| FIRE1BOND | Fire & Rescue Dist #1 Camano BOND | 0.1570001679 | $769,372 | $769,372 | $120.79 | | |
| CE | County Current Expense | 0.3708482477 | $769,372 | $769,372 | $285.32 | | |
| CR | County Roads | 0.4584763726 | $769,372 | $769,372 | $352.74 | | |
| LCIB | Library Sno-Isle BOND (Camano Island) | 0.0396325772 | $769,372 | $769,372 | $30.49 | | |
| LIB | Library Sno-Isle GEN | 0.3153421757 | $769,372 | $769,372 | $242.62 | | |
| SCH205_401 | School 205-401 Enrichment | 1.2698420524 | $769,372 | $769,372 | $976.98 | | |
| SCH205BOND | School 205-401 BOND | 0.9396497583 | $769,372 | $769,372 | $722.94 | | |
| ST | State School | 1.3035497053 | $769,372 | $769,372 | $1,002.91 | | |
| ST2 | State School Part 2 | 0.8169543533 | $769,372 | $769,372 | $628.54 | | |
| | Total Tax Rate: | 7.3209764117 | | | | | |
| | | | | Taxes w/Current Exemptions: | $5,632.54 | | |
| | | | | Taxes w/o Exemptions: | $5,632.54 | | |
Improvement / Building
| Improvement #1: | RESIDENTIAL | State Code: | Y | 1412.0 sqft | Value: | $369,372 |
| Bathrooms: | 2 | Bedrooms: | 2 | | Ceiling: | DRY WALL SPRAYED | Cooling: | HEAT PUMP/CONV/V | | Exterior Wall/Cover: | PLY/HARDBOARD T-111 | Floor Covering: | HARDWOOD/CARP 60-40 | | Floor Structure: | WOOD W/SUBFLOOR | Foundation: | CONCRETE | | Interior Finish: | DRYWALL PAINT | Plumbing Fixture Cnt: | 10 | | Roof Slope: | 4" IN 12" | Roof Structure/Cover: | CJ ASPHALT |
|
| | Type | Description | Class CD | Sub Class CD | Year Built | Area |
| | BAS | BASE/MAIN FLOOR | 4 | 0 | 1977 | 1412.0 |
| | AGR | ATTACHED GARAGE | 4 | 0 | 1977 | 456.0 |
| | OWC | OPEN WOOD PORCH W/STEPS/ROOF/C | 4 | 0 | 1977 | 318.0 |
| | ENP | ENCLOSED PORCH | 4 | 0 | 1977 | 234.0 |
| | UTY | STORAGE/UTILITY | 4 | 0 | 1977 | 140.0 |
Sketch
Property Image
Land
| 1 | HB | HIGH BLUFF | 0.5606 | 24419.74 | 80.00 | 0.00 | 1.00 | $400,000 | $0 |
Roll Value History
| 2026 | N/A | N/A | N/A | N/A | N/A |
| 2025 | $369,372 | $400,000 | $0 | $769,372 | $769,372 |
| 2024 | $373,808 | $375,000 | $0 | $748,808 | $748,808 |
| 2023 | $378,244 | $375,000 | $0 | $753,244 | $753,244 |
| 2022 | $346,520 | $325,000 | $0 | $671,520 | $671,520 |
| 2021 | $296,756 | $275,000 | $0 | $571,756 | $571,756 |
| 2020 | $288,279 | $250,000 | $0 | $538,279 | $538,279 |
| 2019 | $206,572 | $300,000 | $0 | $506,572 | $506,572 |
| 2018 | $207,150 | $200,000 | $0 | $407,150 | $407,150 |
| 2017 | $171,495 | $185,000 | $0 | $356,495 | $356,495 |
| 2016 | $173,584 | $200,000 | $0 | $373,584 | $373,584 |
| 2015 | $118,378 | $200,000 | $0 | $318,378 | $318,378 |
| 2014 | $120,257 | $200,000 | $0 | $320,257 | $320,257 |
| 2013 | $124,311 | $180,612 | $0 | $304,923 | $304,923 |
| 2012 | $126,191 | $180,612 | $0 | $306,803 | $306,803 |
| 2011 | $128,070 | $225,765 | $0 | $353,835 | $353,835 |
| 2010 | $137,718 | $250,850 | $0 | $388,568 | $388,568 |
| 2009 | $138,116 | $325,177 | $0 | $463,293 | $463,293 |
| 2008 | $140,057 | $325,177 | $0 | $465,234 | $465,234 |
| 2007 | $141,998 | $325,177 | $0 | $467,175 | $467,175 |
Deed and Sales History
| 1 | 05/31/2023 | SPWARDEED | Special Warranty Deed | BURSTEIN, JONATHAN LEE | BURSTEIN, ALANNA ROSE AHERN | | | $0.00 | 57094 | 4561485 |
| 2 | 10/09/2017 | WD | Warranty Deed | UCHIYAMA, NAOMI | BURSTEIN, JONATHAN LEE | | | $502,500.00 | 31528 | 4432191 |
| 3 | 07/12/2004 | WD | Warranty Deed | SIEVERS, SHARON M | UCHIYAMA, NAOMI | | | $342,000.00 | 43073 | 4106425 |
| 4 | 03/17/1999 | WD | Warranty Deed | ATKINS, FLORENCE E | SIEVERS, SHARON M | | | $174,500.00 | 91196 | 99007887 |
| 5 | 10/01/1997 | OTHER | Other - Misc. Documents | ATKINS, GEORGE | ATKINS, FLORENCE E | | | $0.00 | 67631 | 94020174 |
| 6 | 01/01/1900 | OTHER | Other - Misc. Documents | Unknown | ATKINS, GEORGE | | | $0.00 | 0 | 0 |
Payout Agreement
| No payout information available.. |