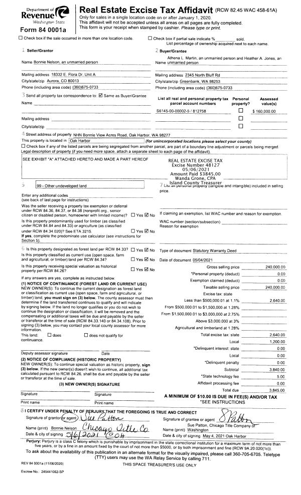
Property
Account |
| Property ID: | 464517 | Abbreviated Legal Description: | N/2 S/2 OF W/4 SW NW EX W30' FOR RD FR 350-0260 (LOT C SP 78-27 AF#331374) |
| Geographic ID: | R32914-310-0260 | Agent Code: | |
| Type: | Real | | |
| Tax Area: | 712 - APPRAISER-S Whid Schl Dist, outside Langley, improved, greater than 1 acre | Land Use Code | 11 |
| Open Space: | N | DFL | N |
| Historic Property: | N | Remodel Property: | N |
| Multi-Family Redevelopment: | N | | |
| Township: | 29 | Section: | 14 |
| Range: | R3 |
Location |
| Address: | 5755 LANGLEY RD LANGLEY, WA 98260 | Mapsco: | |
| Neighborhood: | Cycle 4 | Map ID: | 768 |
| Neighborhood CD: | 4 |
Owner |
| Name: | FERENZ, PAUL J / BARBARA J | Owner ID: | 93018 |
| Mailing Address: | 5755 LANGLEY RD LANGLEY, WA 98260-9555 | % Ownership: | 100.0000000000% |
| | | Exemptions: | SNR/DSBL |
Taxes and Assessment Details
Values
| (+) Improvement Homesite Value: | + | $298,181 | |
| (+) Improvement Non-Homesite Value: | + | $0 | |
| (+) Land Homesite Value: | + | $310,000 | |
| (+) Land Non-Homesite Value: | + | $0 | |
| (+) Curr Use (HS): | + | $0 | $0 |
| (+) Curr Use (NHS): | + | $0 | $0 |
| | | -------------------------- | |
| (=) Market Value: | = | $608,181 | |
| (–) Productivity Loss: | – | $0 | |
| | | -------------------------- | |
| (=) Subtotal: | = | $608,181 | |
| (+) Senior Appraised Value: | + | $299,523 | |
| (+) Non-Senior Appraised Value: | + | $0 | |
| | | -------------------------- | |
| (=) Total Appraised Value: | = | $299,523 | |
| (–) Senior Exemption Loss: | – | $179,714 | |
| (–) Exemption Loss: | – | $0 | |
| | | -------------------------- | |
| (=) Taxable Value: | = | $119,809 | |
Taxing Jurisdiction
| Owner: | FERENZ, PAUL J / BARBARA J | | |
| % Ownership: | 100.0000000000% | | |
| Total Value: | $608,181 | | |
| Tax Area: | 712 - APPRAISER-S Whid Schl Dist, outside Langley, improved, greater than 1 acre |
| CF | Conservation Futures | 0.0316035091 | $608,181 | $119,809 | $3.79 | | |
| FIRE3 | Fire & Rescue Dist #3 S Whidbey GEN | 1.2004855531 | $608,181 | $119,809 | $143.83 | | |
| HOBOND | Hospital BOND | 0.0000000000 | $608,181 | $0 | $0.00 | | |
| HOGEN | Hospital GEN | 0.3902502903 | $608,181 | $119,809 | $46.76 | | |
| CE | County Current Expense | 0.3708482477 | $608,181 | $119,809 | $44.43 | | |
| CR | County Roads | 0.4584763726 | $608,181 | $119,809 | $54.93 | | |
| ISLANDEMS | Hospital GEN (EMS) | 0.5000000000 | $608,181 | $119,809 | $59.90 | | |
| LIB | Library Sno-Isle GEN | 0.3153421757 | $608,181 | $119,809 | $37.78 | | |
| PORTWHID | Port of S Whidbey GEN | 0.1094540357 | $608,181 | $119,809 | $13.11 | | |
| SCH206BOND | School 206 BOND | 0.3161759235 | $608,181 | $119,809 | $37.88 | | |
| SCH206MO | School 206 Enrichment | 0.0000000000 | $608,181 | $0 | $0.00 | | |
| ST | State School | 1.3035497053 | $608,181 | $119,809 | $156.18 | | |
| ST2 | State School Part 2 | 0.0000000000 | $608,181 | $0 | $0.00 | | |
| SWHIDPRBD | P & R S Whidbey BOND | 0.0000000000 | $608,181 | $0 | $0.00 | | |
| SWHIDPRBD2 | P & R S Whidbey BOND2 | 0.0000000000 | $608,181 | $0 | $0.00 | | |
| SWHIDPRMT | P & R S Whidbey GEN | 0.2053334452 | $608,181 | $119,809 | $24.60 | | |
| | Total Tax Rate: | 5.2015192582 | | | | | |
| | | | | Taxes w/Current Exemptions: | $623.19 | | |
| | | | | Taxes w/o Exemptions: | $4,070.83 | | |
Improvement / Building
| Improvement #1: | RESIDENTIAL | State Code: | Y | 1707.0 sqft | Value: | $298,181 |
| Bathrooms: | 2 | Bedrooms: | 3 | | Ceiling: | DRYWALL PAINTED | Exterior Wall/Cover: | COMMON BRICK VENEER | | Floor Covering: | CARPET/VINYL 80-20 | Floor Structure: | WOOD W/SUBFLOOR | | Foundation: | CONCRETE | Heating: | WALL HEAT ELECTRIC | | Interior Finish: | DRYWALL PAINT | Plumbing Fixture Cnt: | 9 | | Roof Slope: | 6" IN 12" | Roof Structure/Cover: | CJ ASPHALT |
|
| | Type | Description | Class CD | Sub Class CD | Year Built | Area |
| | BAS | BASE/MAIN FLOOR | 3 | 0 | 1993 | 1707.0 |
| | AGR | ATTACHED GARAGE | 3 | 0 | 1993 | 600.0 |
| | OWP | OPEN WOOD PORCH W/STEPS | 3 | 0 | 1993 | 126.0 |
Sketch
Property Image
Land
| 1 | 18 | AC (02.01-03.00) | 0.0000 | 0.00 | 0.00 | 0.00 | 1.00 | $310,000 | $0 |
Roll Value History
| 2026 | N/A | N/A | N/A | N/A | N/A |
| 2025 | $298,181 | $310,000 | $0 | $608,181 | $119,809 |
| 2024 | $302,041 | $300,000 | $0 | $602,041 | $119,809 |
| 2023 | $305,902 | $290,000 | $0 | $595,902 | $119,809 |
| 2022 | $280,507 | $270,000 | $0 | $550,507 | $119,809 |
| 2021 | $246,959 | $175,000 | $0 | $421,959 | $119,809 |
| 2020 | $223,966 | $165,000 | $0 | $388,966 | $119,809 |
| 2019 | $165,671 | $200,000 | $0 | $365,671 | $119,809 |
| 2018 | $166,221 | $170,000 | $0 | $336,221 | $229,523 |
| 2017 | $167,322 | $150,000 | $0 | $317,322 | $119,809 |
| 2016 | $169,523 | $130,000 | $0 | $299,523 | $119,809 |
| 2015 | $171,725 | $130,000 | $0 | $301,725 | $301,725 |
| 2014 | $178,547 | $130,000 | $0 | $308,547 | $308,547 |
| 2013 | $180,790 | $139,500 | $0 | $320,290 | $320,290 |
| 2012 | $183,037 | $139,500 | $0 | $322,537 | $322,537 |
| 2011 | $185,280 | $155,000 | $0 | $340,280 | $340,280 |
| 2010 | $191,700 | $155,000 | $0 | $346,700 | $346,700 |
| 2009 | $199,863 | $155,000 | $0 | $354,863 | $354,863 |
| 2008 | $202,317 | $147,900 | $0 | $350,217 | $350,217 |
| 2007 | $205,034 | $147,900 | $0 | $352,934 | $352,934 |
Deed and Sales History
| 1 | 03/09/1999 | BLA | DNU - Boundary Line Adjustment | FERENZ, PAUL J | FERENZ, PAUL J/BARBARA J | | | $0.00 | 68183 | 98009435 |
| 2 | 08/01/1994 | WD | Warranty Deed | VAN, DYKE, W | FERENZ, PAUL J | | | $170,000.00 | 43351 | 94017861 |
| 3 | 07/01/1993 | WD | Warranty Deed | RORVIK, STANLEY D | VAN, DYKE, W | | | $35,900.00 | 33008 | 93015504 |
| 4 | 06/01/1988 | WD | Warranty Deed | DELONG, ROBERT | RORVIK, STANLEY D | | | $18,000.00 | 81836 | 88006797 |
| 5 | 01/01/1900 | OTHER | Other - Misc. Documents | Unknown | DELONG, ROBERT | | | $0.00 | 0 | 0 |
Payout Agreement
| No payout information available.. |