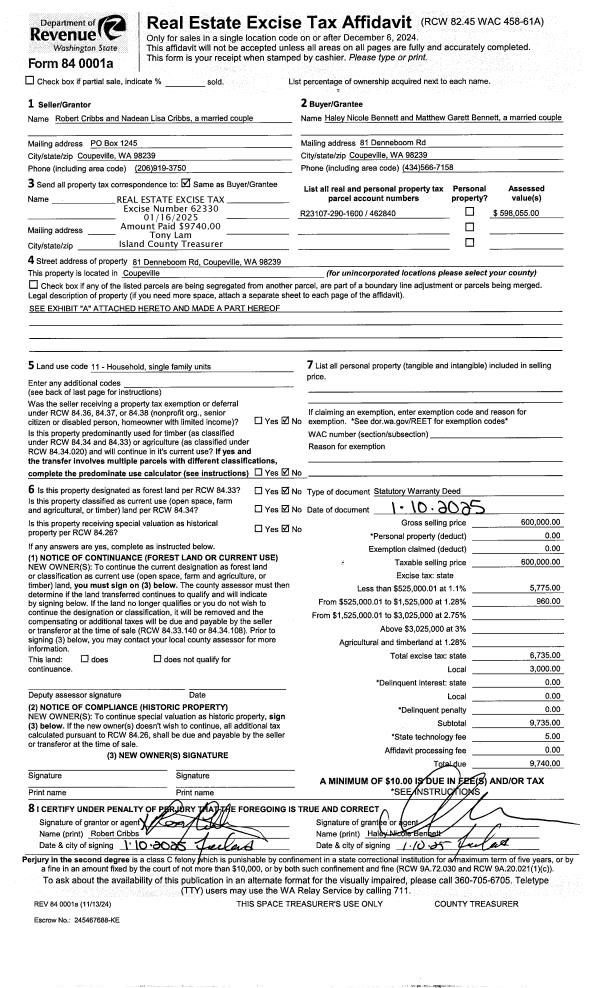
Property
Account |
| Property ID: | 464991 | Abbreviated Legal Description: | N/2 NE NW SW TGW & SUB EZ E60' |
| Geographic ID: | R23034-250-0950 | Agent Code: | |
| Type: | Real | | |
| Tax Area: | 312 - APPRAISER-Cpvl Schl Dist, outside Cpvl, improved, greater than 1 acre | Land Use Code | 11 |
| Open Space: | N | DFL | N |
| Historic Property: | N | Remodel Property: | N |
| Multi-Family Redevelopment: | N | | |
| Township: | 30 | Section: | 34 |
| Range: | R2 |
Location |
| Address: | 4620 EVENSTAR LN FREELAND, WA 98249 | Mapsco: | |
| Neighborhood: | Cycle 3 | Map ID: | 439 |
| Neighborhood CD: | 3 |
Owner |
| Name: | MADRONE, SALLIE ROSE | Owner ID: | 291173 |
| Mailing Address: | 1619 MAIN ST #1326 FREELAND, WA 98249 | % Ownership: | 100.0000000000% |
| | | Exemptions: | |
Taxes and Assessment Details
Values
| (+) Improvement Homesite Value: | + | $0 | |
| (+) Improvement Non-Homesite Value: | + | $414,130 | |
| (+) Land Homesite Value: | + | $0 | |
| (+) Land Non-Homesite Value: | + | $370,000 | |
| (+) Curr Use (HS): | + | $0 | $0 |
| (+) Curr Use (NHS): | + | $0 | $0 |
| | | -------------------------- | |
| (=) Market Value: | = | $784,130 | |
| (–) Productivity Loss: | – | $0 | |
| | | -------------------------- | |
| (=) Subtotal: | = | $784,130 | |
| (+) Senior Appraised Value: | + | $0 | |
| (+) Non-Senior Appraised Value: | + | $784,130 | |
| | | -------------------------- | |
| (=) Total Appraised Value: | = | $784,130 | |
| (–) Senior Exemption Loss: | – | $0 | |
| (–) Exemption Loss: | – | $0 | |
| | | -------------------------- | |
| (=) Taxable Value: | = | $784,130 | |
Taxing Jurisdiction
| Owner: | MADRONE, SALLIE ROSE | | |
| % Ownership: | 100.0000000000% | | |
| Total Value: | $784,130 | | |
| Tax Area: | 312 - APPRAISER-Cpvl Schl Dist, outside Cpvl, improved, greater than 1 acre |
| CF | Conservation Futures | 0.0316035091 | $784,130 | $784,130 | $24.78 | | |
| CEM2 | Cemetery #2 | 0.0095056933 | $784,130 | $784,130 | $7.45 | | |
| FIRE5 | Fire & Rescue Dist #5 C Whidbey GEN | 1.2008080668 | $784,130 | $784,130 | $941.59 | | |
| FIRE5BOND | Fire & Rescue Dist #5 C Whidbey BOND | 0.1400090713 | $784,130 | $784,130 | $109.79 | | |
| HOBOND | Hospital BOND | 0.1910887512 | $784,130 | $784,130 | $149.84 | | |
| HOGEN | Hospital GEN | 0.3902502903 | $784,130 | $784,130 | $306.01 | | |
| CE | County Current Expense | 0.3708482477 | $784,130 | $784,130 | $290.79 | | |
| CR | County Roads | 0.4584763726 | $784,130 | $784,130 | $359.51 | | |
| ISLANDEMS | Hospital GEN (EMS) | 0.5000000000 | $784,130 | $784,130 | $392.07 | | |
| LIB | Library Sno-Isle GEN | 0.3153421757 | $784,130 | $784,130 | $247.27 | | |
| LIBCAP | Library Sno-Isle BOND (Cap Fac Imp Area) | 0.0543427938 | $784,130 | $784,130 | $42.61 | | |
| POCOUP | Port of Coupeville GEN | 0.1093371703 | $784,130 | $784,130 | $85.73 | | |
| POCOUPIDD | Port of Coupeville IDD | 0.3409740022 | $784,130 | $784,130 | $267.37 | | |
| COUPSDTECH | School 204 CP (TECH) | 0.7545480007 | $784,130 | $784,130 | $591.66 | | |
| SCH204MO | School 204 Enrichment | 0.6716186034 | $784,130 | $784,130 | $526.64 | | |
| ST | State School | 1.3035497053 | $784,130 | $784,130 | $1,022.15 | | |
| ST2 | State School Part 2 | 0.8169543533 | $784,130 | $784,130 | $640.60 | | |
| | Total Tax Rate: | 7.6592568070 | | | | | |
| | | | | Taxes w/Current Exemptions: | $6,005.86 | | |
| | | | | Taxes w/o Exemptions: | $6,005.86 | | |
Improvement / Building
| Improvement #1: | RESIDENTIAL | State Code: | Y | 2820.0 sqft | Value: | $414,130 |
| Bathrooms: | 2 | Bedrooms: | 2 | | Ceiling: | DRYWALL PAINTED | Cooling: | HEAT PUMP/CONV/V | | Exterior Wall/Cover: | WOOD SIDING | Floor Covering: | COLORED CONCRETE | | Floor Structure: | WOOD W/SUBFLOOR | Foundation: | CONCRETE | | Interior Finish: | DRYWALL PAINT | Plumbing Fixture Cnt: | 10 | | Roof Slope: | 12" IN 12" | Roof Structure/Cover: | CJ ASPHALT |
|
| | Type | Description | Class CD | Sub Class CD | Year Built | Area |
| | BAS | BASE/MAIN FLOOR | 3 | 0 | 2007 | 1620.0 |
| | AGR | ATTACHED GARAGE | 3 | 0 | 2007 | 360.0 |
| | DWN | DOWNSTAIRS LIVING AREA | 3 | 0 | 2007 | 1200.0 |
| | OCP | OPEN CARPORT | 3 | 0 | 2007 | 480.0 |
| | OWP | OPEN WOOD PORCH W/STEPS | 3 | 0 | 2007 | 480.0 |
| | OWC | OPEN WOOD PORCH W/STEPS/ROOF/C | 3 | 0 | 2007 | 96.0 |
| | UTY | STORAGE/UTILITY | 3 | 0 | 2007 | 120.0 |
| | OWP | OPEN WOOD PORCH W/STEPS | 3 | 0 | 2007 | 120.0 |
Sketch
Property Image
Land
| 1 | 32 | AC (03.01-09.99) | 5.0000 | 0.00 | 0.00 | 0.00 | 1.00 | $370,000 | $0 |
Roll Value History
| 2026 | N/A | N/A | N/A | N/A | N/A |
| 2025 | $414,130 | $370,000 | $0 | $784,130 | $784,130 |
| 2024 | $417,610 | $350,000 | $0 | $767,610 | $767,610 |
| 2023 | $360,188 | $310,000 | $0 | $670,188 | $670,188 |
| 2022 | $326,041 | $290,000 | $0 | $616,041 | $616,041 |
| 2021 | $278,914 | $220,000 | $0 | $498,914 | $498,914 |
| 2020 | $262,294 | $180,000 | $0 | $442,294 | $442,294 |
| 2019 | $185,986 | $230,000 | $0 | $415,986 | $415,986 |
| 2018 | $186,501 | $200,000 | $0 | $386,501 | $386,501 |
| 2017 | $187,531 | $165,000 | $0 | $352,531 | $352,531 |
| 2016 | $189,593 | $165,000 | $0 | $354,593 | $354,593 |
| 2015 | $191,652 | $135,000 | $0 | $326,652 | $326,652 |
| 2014 | $193,713 | $135,000 | $0 | $328,713 | $328,713 |
| 2013 | $186,281 | $144,000 | $0 | $330,281 | $330,281 |
| 2012 | $188,285 | $144,000 | $0 | $332,285 | $332,285 |
| 2011 | $190,289 | $160,000 | $0 | $350,289 | $350,289 |
| 2010 | $198,873 | $160,000 | $0 | $358,873 | $358,873 |
| 2009 | $207,082 | $195,000 | $0 | $402,082 | $402,082 |
| 2008 | $207,200 | $200,000 | $0 | $407,200 | $407,200 |
| 2007 | $242,487 | $160,000 | $0 | $402,487 | $402,487 |
Deed and Sales History
| 1 | 07/30/2019 | WD | Warranty Deed | DILL, CRAIG | MADRONE, SALLIE ROSE | | | $620,000.00 | 39683 | 4468526 |
| 2 | 12/14/2005 | WD | Warranty Deed | FAUTH, LINDA S | DILL, CRAIG | | | $65,000.00 | 56268 | 4157455 |
| 3 | 12/01/1989 | DECREE | Divorce Decree/Legal Separation | FAUTH, DONALD W | FAUTH, LINDA S | | | $0.00 | 22887 | 92014007 |
| 4 | 06/01/1989 | QCD | Quit Claim Deed | FAUTH, DONALD W | FAUTH, DONALD W | | | $0.00 | 92768 | 89009348 |
| 5 | 06/01/1980 | EXECUTORD | Executor Deed | FLANAGAN, MICHAEL J | FAUTH, DONALD W | | | $38,000.00 | 2414 | 371276 |
| 6 | 01/01/1900 | OTHER | Other - Misc. Documents | Unknown | FLANAGAN, MICHAEL J | | | $0.00 | 0 | 0 |
Payout Agreement
| No payout information available.. |