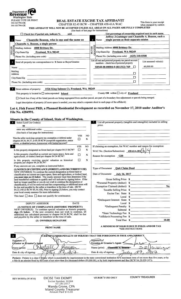
Property
Account |
| Property ID: | 465339 | Abbreviated Legal Description: | 1976 PARAMOUNT 24X56 VIN# 25GGES1822 TPO @56242 TO K-518167 BK FR K-518167 |
| Geographic ID: | M901500000280 | Agent Code: | |
| Type: | Mobile Home | | |
| Tax Area: | 110 - APPRAISER-OH Schl Dist, outside OH, improved & 1 acre or less | Land Use Code | 11 |
| Open Space: | N | DFL | N |
| Historic Property: | N | Remodel Property: | N |
| Multi-Family Redevelopment: | N | | |
| Township: | | Section: | |
| Range: | |
Location |
| Address: | 325 BOE RD OAK HARBOR, WA 98277 | Mapsco: | |
| Neighborhood: | Cycle 6 | Map ID: | |
| Neighborhood CD: | 6 |
Owner |
| Name: | HT FAMILY TRUST | Owner ID: | 280560 |
| Mailing Address: | 325 BOE RD OAK HARBOR, WA 98277 | % Ownership: | 100.0000000000% |
| | | Exemptions: | |
Taxes and Assessment Details
Values
| (+) Improvement Homesite Value: | + | $0 | |
| (+) Improvement Non-Homesite Value: | + | $22,675 | |
| (+) Land Homesite Value: | + | $0 | |
| (+) Land Non-Homesite Value: | + | $0 | |
| (+) Curr Use (HS): | + | $0 | $0 |
| (+) Curr Use (NHS): | + | $0 | $0 |
| | | -------------------------- | |
| (=) Market Value: | = | $22,675 | |
| (–) Productivity Loss: | – | $0 | |
| | | -------------------------- | |
| (=) Subtotal: | = | $22,675 | |
| (+) Senior Appraised Value: | + | $0 | |
| (+) Non-Senior Appraised Value: | + | $22,675 | |
| | | -------------------------- | |
| (=) Total Appraised Value: | = | $22,675 | |
| (–) Senior Exemption Loss: | – | $0 | |
| (–) Exemption Loss: | – | $0 | |
| | | -------------------------- | |
| (=) Taxable Value: | = | $22,675 | |
Taxing Jurisdiction
| Owner: | HT FAMILY TRUST | | |
| % Ownership: | 100.0000000000% | | |
| Total Value: | $22,675 | | |
| Tax Area: | 110 - APPRAISER-OH Schl Dist, outside OH, improved & 1 acre or less |
| CF | Conservation Futures | 0.0316035091 | $22,675 | $22,675 | $0.72 | | |
| CEM1 | Cemetery #1 | 0.0040320932 | $22,675 | $22,675 | $0.09 | | |
| FIRE2 | Fire & Rescue Dist #2 N Whidbey GEN | 0.5475949600 | $22,675 | $22,675 | $12.42 | | |
| HOBOND | Hospital BOND | 0.1910887512 | $22,675 | $22,675 | $4.33 | | |
| HOGEN | Hospital GEN | 0.3902502903 | $22,675 | $22,675 | $8.85 | | |
| CE | County Current Expense | 0.3708482477 | $22,675 | $22,675 | $8.41 | | |
| CR | County Roads | 0.4584763726 | $22,675 | $22,675 | $10.40 | | |
| ISLANDEMS | Hospital GEN (EMS) | 0.5000000000 | $22,675 | $22,675 | $11.34 | | |
| LIB | Library Sno-Isle GEN | 0.3153421757 | $22,675 | $22,675 | $7.15 | | |
| NWHIDPRMT | P & R N Whidbey GEN | 0.2004466701 | $22,675 | $22,675 | $4.55 | | |
| SCH201MO | School 201 Enrichment | 1.8559231640 | $22,675 | $22,675 | $42.08 | | |
| ST | State School | 1.3035497053 | $22,675 | $22,675 | $29.56 | | |
| ST2 | State School Part 2 | 0.8169543533 | $22,675 | $22,675 | $18.52 | | |
| | Total Tax Rate: | 6.9861102925 | | | | | |
| | | | | Taxes w/Current Exemptions: | $158.42 | | |
| | | | | Taxes w/o Exemptions: | $158.42 | | |
Improvement / Building
| Improvement #1: | MANUFACTURED HOME | State Code: | Y | 1340.0 sqft | Value: | $22,675 |
| Bathrooms: | 0 | Bedrooms: | 0 | | Ceiling: | PLASTER PAINTED | Cooling: | EVAP NO DUCT | | Exterior Wall/Cover: | VINYL | Floor Covering: | CARPET 100% | | Floor Structure: | SLAB ON GRADE | Foundation: | SLAB | | Heating: | FHA ELECTRIC | Interior Finish: | PLASTER | | Plumbing Fixture Cnt: | 1 | Roof Slope: | FLAT | | Roof Structure/Cover: | CJ ALUMINIUM HEAVY |   |   |
|
| | Type | Description | Class CD | Sub Class CD | Year Built | Area |
| | BAS | BASE/MAIN FLOOR | 3 | 0 | 1976 | 1340.0 |
| | OWR | OPEN WOOD PORCH W/STEPS/ROOF | 3 | 0 | 1976 | 240.0 |
| | UTY | STORAGE/UTILITY | 3 | 0 | 1976 | 264.0 |
Sketch
Property Image
Land
No land segments exist for this property.
Roll Value History
| 2026 | N/A | N/A | N/A | N/A | N/A |
| 2025 | $22,675 | $0 | $0 | $22,675 | $22,675 |
| 2024 | $22,675 | $0 | $0 | $22,675 | $22,675 |
| 2023 | $20,614 | $0 | $0 | $20,614 | $20,614 |
| 2022 | $15,192 | $0 | $0 | $15,192 | $15,192 |
| 2021 | $13,210 | $0 | $0 | $13,210 | $13,210 |
| 2020 | $14,107 | $0 | $0 | $14,107 | $14,107 |
| 2019 | $12,122 | $0 | $0 | $12,122 | $12,122 |
| 2018 | $12,627 | $0 | $0 | $12,627 | $12,627 |
| 2017 | $13,637 | $0 | $0 | $13,637 | $13,637 |
| 2016 | $12,873 | $0 | $0 | $12,873 | $12,873 |
| 2015 | $13,793 | $0 | $0 | $13,793 | $13,793 |
| 2014 | $14,252 | $0 | $0 | $14,252 | $14,252 |
| 2013 | $15,172 | $0 | $0 | $15,172 | $15,172 |
| 2012 | $16,091 | $0 | $0 | $16,091 | $16,091 |
| 2011 | $17,471 | $0 | $0 | $17,471 | $17,471 |
| 2010 | $18,285 | $0 | $0 | $18,285 | $18,285 |
| 2009 | $19,310 | $0 | $0 | $19,310 | $19,310 |
| 2008 | $19,776 | $0 | $0 | $19,776 | $19,776 |
| 2007 | $20,707 | $0 | $0 | $20,707 | $20,707 |
Deed and Sales History
| 1 | 06/23/2017 | MANHOME | Manufactured Home | FERRER, RUDY M | HT FAMILY TRUST | | | $2,000.00 | 29875 | |
| 2 | 10/05/2012 | OTHER | Other - Misc. Documents | GRASSO, LEONARDA | FERRER, RUDY M | | | $281.00 | 9146 | |
| 3 | 09/17/2004 | OTHER | Other - Misc. Documents | HAYNES, JASON A | GRASSO, LEONARDA | | | $12,500.00 | 44314 | 0 |
| 4 | 01/11/2000 | OTHER | Other - Misc. Documents | Unknown | HAYNES, JASON A | | | $13,900.00 | 124 | 0 |
Payout Agreement
| No payout information available.. |