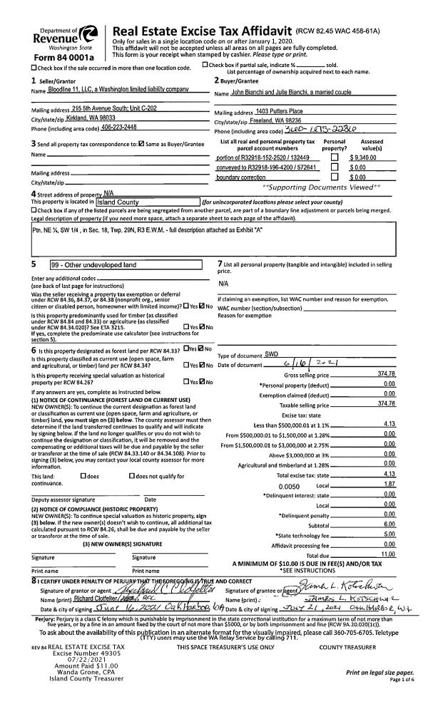
Property
Account |
| Property ID: | 465455 | Abbreviated Legal Description: | BG INTER CLN DEER LAKE RD & WLN E/2 NE NW N375' E TPB 315'W OF ELN E/2 NE NW W TO SD WLN N471' E150' S250' E TP 315'W OF SD ELN S TPB TGW SUB EZ FR 455-2100 (LOT 2 SP 77-99 AF#337922) |
| Geographic ID: | R32925-467-1950 | Agent Code: | |
| Type: | Real | | |
| Tax Area: | 722 - APPRAISER-S Whid Schl Dist, Special District, improved, greater than 1 acre | Land Use Code | 11 |
| Open Space: | N | DFL | N |
| Historic Property: | N | Remodel Property: | N |
| Multi-Family Redevelopment: | N | | |
| Township: | 29 | Section: | 25 |
| Range: | R3 |
Location |
| Address: | 6430 SKARBERG LN CLINTON, WA 98236 | Mapsco: | |
| Neighborhood: | Cycle 4 | Map ID: | 814 |
| Neighborhood CD: | 4 |
Owner |
| Name: | RICHMAN, WILLIAM K | Owner ID: | 257115 |
| Mailing Address: | 6430 SKARBERG LN CLINTON, WA 98236 | % Ownership: | 100.0000000000% |
| | | Exemptions: | |
Taxes and Assessment Details
Values
| (+) Improvement Homesite Value: | + | $0 | |
| (+) Improvement Non-Homesite Value: | + | $338,938 | |
| (+) Land Homesite Value: | + | $0 | |
| (+) Land Non-Homesite Value: | + | $310,000 | |
| (+) Curr Use (HS): | + | $0 | $0 |
| (+) Curr Use (NHS): | + | $0 | $0 |
| | | -------------------------- | |
| (=) Market Value: | = | $648,938 | |
| (–) Productivity Loss: | – | $0 | |
| | | -------------------------- | |
| (=) Subtotal: | = | $648,938 | |
| (+) Senior Appraised Value: | + | $0 | |
| (+) Non-Senior Appraised Value: | + | $648,938 | |
| | | -------------------------- | |
| (=) Total Appraised Value: | = | $648,938 | |
| (–) Senior Exemption Loss: | – | $0 | |
| (–) Exemption Loss: | – | $0 | |
| | | -------------------------- | |
| (=) Taxable Value: | = | $648,938 | |
Taxing Jurisdiction
| Owner: | RICHMAN, WILLIAM K | | |
| % Ownership: | 100.0000000000% | | |
| Total Value: | $648,938 | | |
| Tax Area: | 722 - APPRAISER-S Whid Schl Dist, Special District, improved, greater than 1 acre |
| CF | Conservation Futures | 0.0316035091 | $648,938 | $648,938 | $20.51 | | |
| FIRE3 | Fire & Rescue Dist #3 S Whidbey GEN | 1.2004855531 | $648,938 | $648,938 | $779.04 | | |
| HOBOND | Hospital BOND | 0.1910887512 | $648,938 | $648,938 | $124.00 | | |
| HOGEN | Hospital GEN | 0.3902502903 | $648,938 | $648,938 | $253.25 | | |
| CE | County Current Expense | 0.3708482477 | $648,938 | $648,938 | $240.66 | | |
| CR | County Roads | 0.4584763726 | $648,938 | $648,938 | $297.52 | | |
| ISLANDEMS | Hospital GEN (EMS) | 0.5000000000 | $648,938 | $648,938 | $324.47 | | |
| LIB | Library Sno-Isle GEN | 0.3153421757 | $648,938 | $648,938 | $204.64 | | |
| PORTWHID | Port of S Whidbey GEN | 0.1094540357 | $648,938 | $648,938 | $71.03 | | |
| SCH206BOND | School 206 BOND | 0.3161759235 | $648,938 | $648,938 | $205.18 | | |
| SCH206MO | School 206 Enrichment | 0.4547169547 | $648,938 | $648,938 | $295.08 | | |
| ST | State School | 1.3035497053 | $648,938 | $648,938 | $845.92 | | |
| ST2 | State School Part 2 | 0.8169543533 | $648,938 | $648,938 | $530.15 | | |
| SWHIDPRBD | P & R S Whidbey BOND | 0.0152817568 | $648,938 | $648,938 | $9.92 | | |
| SWHIDPRBD2 | P & R S Whidbey BOND2 | 0.0138911264 | $648,938 | $648,938 | $9.01 | | |
| SWHIDPRMT | P & R S Whidbey GEN | 0.2053334452 | $648,938 | $648,938 | $133.25 | | |
| | Total Tax Rate: | 6.6934522006 | | | | | |
| | | | | Taxes w/Current Exemptions: | $4,343.63 | | |
| | | | | Taxes w/o Exemptions: | $4,343.63 | | |
Improvement / Building
| Improvement #1: | RESIDENTIAL | State Code: | Y | 1853.0 sqft | Value: | $338,938 |
| Bathrooms: | 2 | Bedrooms: | 3 | | Ceiling: | DRYWALL PAINTED | Exterior Wall/Cover: | WOOD SIDING | | Floor Covering: | CARPET/VINYL 60-40 | Floor Structure: | WOOD W/SUBFLOOR | | Foundation: | CONCRETE | Heating: | FHA GAS | | Interior Finish: | DRYWALL PAINT | Plumbing Fixture Cnt: | 10 | | Roof Slope: | 6" IN 12" | Roof Structure/Cover: | CJ ASPHALT |
|
| | Type | Description | Class CD | Sub Class CD | Year Built | Area |
| | BAS | BASE/MAIN FLOOR | 3 | 0 | 2003 | 1853.0 |
| | OP1 | OPEN PORCH SLAB | 3 | 0 | 2003 | 360.0 |
| | OP1 | OPEN PORCH SLAB | 3 | 0 | 2003 | 142.8 |
| | AGR | ATTACHED GARAGE | 3 | 0 | 2003 | 576.0 |
| | OWC | OPEN WOOD PORCH W/STEPS/ROOF/C | 3 | 0 | 2003 | 120.0 |
| | oOBD | Out Buildings | 3 | 0 | 2003 | 0.0 |
Sketch
Property Image
Land
| 1 | 18 | AC (02.01-03.00) | 0.0000 | 0.00 | 0.00 | 0.00 | 1.00 | $310,000 | $0 |
Roll Value History
| 2026 | N/A | N/A | N/A | N/A | N/A |
| 2025 | $338,938 | $310,000 | $0 | $648,938 | $648,938 |
| 2024 | $342,789 | $300,000 | $0 | $642,789 | $642,789 |
| 2023 | $346,639 | $290,000 | $0 | $636,639 | $636,639 |
| 2022 | $320,215 | $270,000 | $0 | $590,215 | $590,215 |
| 2021 | $285,398 | $175,000 | $0 | $460,398 | $460,398 |
| 2020 | $279,030 | $165,000 | $0 | $444,030 | $444,030 |
| 2019 | $216,409 | $200,000 | $0 | $416,409 | $416,409 |
| 2018 | $216,949 | $170,000 | $0 | $386,949 | $386,949 |
| 2017 | $218,031 | $110,000 | $0 | $328,031 | $328,031 |
| 2016 | $220,192 | $100,000 | $0 | $320,192 | $320,192 |
| 2015 | $222,353 | $100,000 | $0 | $322,353 | $322,353 |
| 2014 | $226,556 | $100,000 | $0 | $326,556 | $326,556 |
| 2013 | $228,847 | $100,000 | $0 | $328,847 | $328,847 |
| 2012 | $231,137 | $125,000 | $0 | $356,137 | $356,137 |
| 2011 | $249,705 | $125,000 | $0 | $374,705 | $374,705 |
| 2010 | $255,882 | $125,000 | $0 | $380,882 | $380,882 |
| 2009 | $265,867 | $155,000 | $0 | $420,867 | $420,867 |
| 2008 | $267,776 | $165,000 | $0 | $432,776 | $432,776 |
| 2007 | $268,553 | $165,000 | $0 | $433,553 | $433,553 |
Deed and Sales History
| 1 | 03/17/2012 | WD | Warranty Deed | SCHMITZ, WILLIAM D | RICHMAN, WILLIAM K | | | $390,000.00 | 7132 | 4311798 |
| 2 | 02/24/2006 | WD | Warranty Deed | NORTHWEST EXCHANGE AND TRUSTEE | SCHMITZ, WILLIAM D | | | $380,000.00 | 60898 | 4163630 |
| 3 | 05/06/2005 | WD | Warranty Deed | HANSON, W JOSEPH | NORTHWEST EXCHANGE AND TRUSTEE | | | $0.00 | 52047 | 4133784 |
| 4 | 08/28/2002 | WD | Warranty Deed | MOORE, TERESA A | HANSON, W JOSEPH | | | $60,000.00 | 23450 | 4029843 |
| 5 | 06/01/1996 | WD | Warranty Deed | JONES, YUKIKO M | MOORE, TERESA A | | | $42,000.00 | 62231 | 96011060 |
| 6 | 12/01/1993 | WD | Warranty Deed | MICHAEL, ROBERT D | JONES, YUKIKO M | | | $65,000.00 | 35036 | 93026303 |
| 7 | 01/01/1980 | EXECUTORD | Executor Deed | FARNWORTH, WILFRED | MICHAEL, ROBERT D | | | $15,000.00 | 445 | 364913 |
| 8 | 01/01/1900 | OTHER | Other - Misc. Documents | Unknown | FARNWORTH, WILFRED | | | $0.00 | 0 | 0 |
Payout Agreement
| No payout information available.. |