Property
Account |
| Property ID: | 465598 | Abbreviated Legal Description: | IN NW NW: BG NWCR SEC 32 S88*E184.05' S39*E321.35' ALG CUR/R 84.40' TPB N88*E 304.61' S4*W338.65' S87*W 355.03' N14*E284.10' ALG CUR/L 71.56' TPB TGW SUB EZ FR 480-0720 (LOT 1 SP 79-049) |
| Geographic ID: | R33132-480-0550 | Agent Code: | |
| Type: | Real | | |
| Tax Area: | 542 - APPRAISER-Stan/Cam Schl Dist, Special Dist, improved, greater than 1 acre | Land Use Code | 11 |
| Open Space: | N | DFL | N |
| Historic Property: | N | Remodel Property: | N |
| Multi-Family Redevelopment: | N | | |
| Township: | 31 | Section: | 32 |
| Range: | R3 |
Location |
| Address: | 2043 PARADISE RD CAMANO ISLAND, WA 98282 | Mapsco: | |
| Neighborhood: | Cycle 5 | Map ID: | 946 |
| Neighborhood CD: | 5 |
Owner |
| Name: | BORGES, ELIZABETH | Owner ID: | 287542 |
| Mailing Address: | CAI KUN CHEN 2043 PARADISE RD CAMANO ISLAND, WA 98282-7642 | % Ownership: | 100.0000000000% |
| | | Exemptions: | |
Taxes and Assessment Details
Values
| (+) Improvement Homesite Value: | + | $0 | |
| (+) Improvement Non-Homesite Value: | + | $131,147 | |
| (+) Land Homesite Value: | + | $0 | |
| (+) Land Non-Homesite Value: | + | $290,000 | |
| (+) Curr Use (HS): | + | $0 | $0 |
| (+) Curr Use (NHS): | + | $0 | $0 |
| | | -------------------------- | |
| (=) Market Value: | = | $421,147 | |
| (–) Productivity Loss: | – | $0 | |
| | | -------------------------- | |
| (=) Subtotal: | = | $421,147 | |
| (+) Senior Appraised Value: | + | $0 | |
| (+) Non-Senior Appraised Value: | + | $421,147 | |
| | | -------------------------- | |
| (=) Total Appraised Value: | = | $421,147 | |
| (–) Senior Exemption Loss: | – | $0 | |
| (–) Exemption Loss: | – | $0 | |
| | | -------------------------- | |
| (=) Taxable Value: | = | $421,147 | |
Taxing Jurisdiction
| Owner: | BORGES, ELIZABETH | | |
| % Ownership: | 100.0000000000% | | |
| Total Value: | $421,147 | | |
| Tax Area: | 542 - APPRAISER-Stan/Cam Schl Dist, Special Dist, improved, greater than 1 acre |
| CF | Conservation Futures | 0.0316035091 | $421,147 | $421,147 | $13.31 | | |
| EMS1 | Fire & Rescue Dist #1 Camano GEN (EMS) | 0.3677864386 | $421,147 | $421,147 | $154.89 | | |
| FIRE1 | Fire & Rescue Dist #1 Camano GEN | 1.2502910536 | $421,147 | $421,147 | $526.56 | | |
| FIRE1BOND | Fire & Rescue Dist #1 Camano BOND | 0.1570001679 | $421,147 | $421,147 | $66.12 | | |
| CE | County Current Expense | 0.3708482477 | $421,147 | $421,147 | $156.18 | | |
| CR | County Roads | 0.4584763726 | $421,147 | $421,147 | $193.09 | | |
| LCIB | Library Sno-Isle BOND (Camano Island) | 0.0396325772 | $421,147 | $421,147 | $16.69 | | |
| LIB | Library Sno-Isle GEN | 0.3153421757 | $421,147 | $421,147 | $132.81 | | |
| SCH205_401 | School 205-401 Enrichment | 1.2698420524 | $421,147 | $421,147 | $534.79 | | |
| SCH205BOND | School 205-401 BOND | 0.9396497583 | $421,147 | $421,147 | $395.73 | | |
| ST | State School | 1.3035497053 | $421,147 | $421,147 | $548.99 | | |
| ST2 | State School Part 2 | 0.8169543533 | $421,147 | $421,147 | $344.06 | | |
| | Total Tax Rate: | 7.3209764117 | | | | | |
| | | | | Taxes w/Current Exemptions: | $3,083.22 | | |
| | | | | Taxes w/o Exemptions: | $3,083.22 | | |
Improvement / Building
| Improvement #1: | MANUFACTURED HOME | State Code: | Y | 1760.7 sqft | Value: | $131,147 |
| Bathrooms: | 2 | Bedrooms: | 3 | | Ceiling: | PLASTER PAINTED | Cooling: | EVAP NO DUCT | | Exterior Wall/Cover: | VINYL | Floor Covering: | CARPET 100% | | Floor Structure: | SLAB ON GRADE | Foundation: | SLAB | | Heating: | FHA ELECTRIC | Interior Finish: | PLASTER | | Plumbing Fixture Cnt: | 1 | Roof Slope: | FLAT | | Roof Structure/Cover: | CJ ALUMINIUM HEAVY |   |   |
|
| | Type | Description | Class CD | Sub Class CD | Year Built | Area |
| | BAS | BASE/MAIN FLOOR | 4 | 0 | 1979 | 1760.7 |
| | DGR | DETACHED GARAGE | 4 | 0 | 1979 | 1152.0 |
| | OWP | OPEN WOOD PORCH W/STEPS | 4 | 0 | 1979 | 100.0 |
| | ENP | ENCLOSED PORCH | 4 | 0 | 1979 | 192.0 |
Sketch
Property Image
Land
| 1 | 18 | AC (02.01-03.00) | 2.5100 | 109335.60 | 0.00 | 0.00 | 1.00 | $290,000 | $0 |
Roll Value History
| 2026 | N/A | N/A | N/A | N/A | N/A |
| 2025 | $131,147 | $290,000 | $0 | $421,147 | $421,147 |
| 2024 | $134,869 | $280,000 | $0 | $414,869 | $414,869 |
| 2023 | $125,886 | $270,000 | $0 | $395,886 | $395,886 |
| 2022 | $119,645 | $260,000 | $0 | $379,645 | $379,645 |
| 2021 | $71,643 | $180,000 | $0 | $251,643 | $251,643 |
| 2020 | $73,217 | $150,000 | $0 | $223,217 | $223,217 |
| 2019 | $59,588 | $200,000 | $0 | $259,588 | $259,588 |
| 2018 | $61,511 | $150,000 | $0 | $211,511 | $211,511 |
| 2017 | $63,433 | $135,000 | $0 | $198,433 | $198,433 |
| 2016 | $65,356 | $105,000 | $0 | $170,356 | $170,356 |
| 2015 | $66,101 | $50,000 | $0 | $116,101 | $116,101 |
| 2014 | $67,968 | $50,000 | $0 | $117,968 | $117,968 |
| 2013 | $69,213 | $50,000 | $0 | $119,213 | $119,213 |
| 2012 | $70,458 | $74,400 | $0 | $144,858 | $144,858 |
| 2011 | $71,703 | $93,000 | $0 | $164,703 | $164,703 |
| 2010 | $67,640 | $93,000 | $0 | $160,640 | $160,640 |
| 2009 | $68,275 | $175,450 | $0 | $243,725 | $243,725 |
| 2008 | $71,057 | $175,450 | $0 | $246,507 | $246,507 |
| 2007 | $73,478 | $175,450 | $0 | $248,928 | $248,928 |
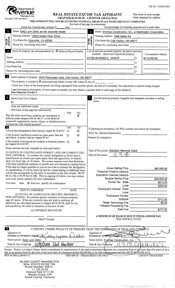
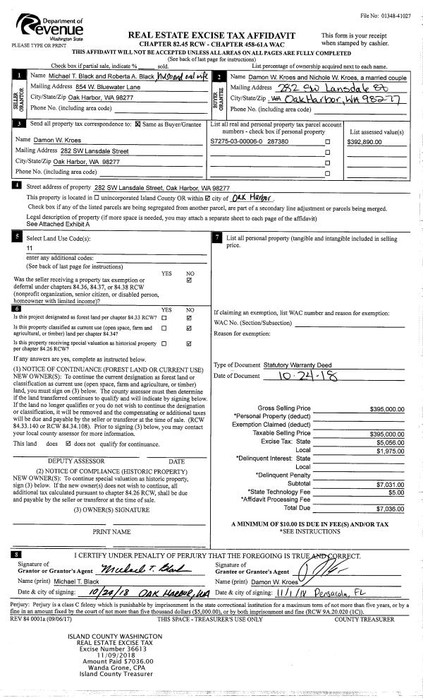
Deed and Sales History
| 1 | 10/16/2018 | QCD | Quit Claim Deed | BORGES, ELIZABETH | BORGES, ELIZABETH | | | $0.00 | 36334 | 4453592 |
| 2 | 10/12/2018 | WD | Warranty Deed | RYBA, JEFF L | BORGES, ELIZABETH | | | $239,000.00 | 36335 | 4453593 |
| 3 | 03/31/2010 | WD | Warranty Deed | ASGHARIAN, MASOUD & | RYBA, JEFF L | | | $195,800.00 | 770 | 4271536 |
| 4 | 04/01/1991 | OTHER | Other - Misc. Documents | MUELLER, RALPH P | ASGHARIAN, MASOUD / | | | $22,613.00 | 11358 | 0 |
| 5 | 04/01/1991 | WD | Warranty Deed | ASGHARIAN, MASOUD / | ASGHARIAN, MASOUD & | | | $56,137.00 | 11359 | 91005806 |
| 6 | 08/01/1985 | WD | Warranty Deed | HOME, SAVINGS & | MUELLER, RALPH P | | | $13,250.00 | 52375 | 85009341 |
| 7 | 06/01/1983 | TRUSTEED | Trustee's Deed | SAPONARO, LEONARD | HOME, SAVINGS & | | | $0.00 | 31682 | 411618 |
| 8 | 01/01/1900 | OTHER | Other - Misc. Documents | Unknown | SAPONARO, LEONARD | | | $0.00 | 0 | 0 |
Payout Agreement
| No payout information available.. |