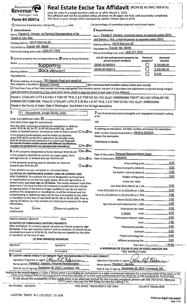
Property
Account |
| Property ID: | 465767 | Abbreviated Legal Description: | IN NW NW SEC 32 & NE NE 31- 31-3E:BG NW CR SEC 32 S88* E184.05' S39*E321.35' ALG CUR/R 184.4' S65*W252.32' ALG CUR/L 114.37' S32*W29. 97' ALG CUR/R 50.13' TPB N76*W97.45' ALG CUR/L 101. 29' S52*W50.61' ALG CUR/R 52.74' S280.5' S89*E425.95' N23*W358.14' T |
| Geographic ID: | R33131-458-5500 | Agent Code: | |
| Type: | Real | | |
| Tax Area: | 542 - APPRAISER-Stan/Cam Schl Dist, Special Dist, improved, greater than 1 acre | Land Use Code | 11 |
| Open Space: | N | DFL | N |
| Historic Property: | N | Remodel Property: | N |
| Multi-Family Redevelopment: | N | | |
| Township: | 31 | Section: | 31 |
| Range: | R3 |
Location |
| Address: | 360 DEER RUN RD CAMANO ISLAND, WA 98282 | Mapsco: | |
| Neighborhood: | Cycle 5 | Map ID: | 943 |
| Neighborhood CD: | 5 |
Owner |
| Name: | AMEY JR, TIMOTHY | Owner ID: | 298723 |
| Mailing Address: | 360 DEER RUN RD CAMANO ISLAND, WA 98282 | % Ownership: | 100.0000000000% |
| | | Exemptions: | |
Taxes and Assessment Details
Values
| (+) Improvement Homesite Value: | + | $0 | |
| (+) Improvement Non-Homesite Value: | + | $117,863 | |
| (+) Land Homesite Value: | + | $0 | |
| (+) Land Non-Homesite Value: | + | $290,000 | |
| (+) Curr Use (HS): | + | $0 | $0 |
| (+) Curr Use (NHS): | + | $0 | $0 |
| | | -------------------------- | |
| (=) Market Value: | = | $407,863 | |
| (–) Productivity Loss: | – | $0 | |
| | | -------------------------- | |
| (=) Subtotal: | = | $407,863 | |
| (+) Senior Appraised Value: | + | $0 | |
| (+) Non-Senior Appraised Value: | + | $407,863 | |
| | | -------------------------- | |
| (=) Total Appraised Value: | = | $407,863 | |
| (–) Senior Exemption Loss: | – | $0 | |
| (–) Exemption Loss: | – | $0 | |
| | | -------------------------- | |
| (=) Taxable Value: | = | $407,863 | |
Taxing Jurisdiction
| Owner: | AMEY JR, TIMOTHY | | |
| % Ownership: | 100.0000000000% | | |
| Total Value: | $407,863 | | |
| Tax Area: | 542 - APPRAISER-Stan/Cam Schl Dist, Special Dist, improved, greater than 1 acre |
| CF | Conservation Futures | 0.0316035091 | $407,863 | $407,863 | $12.89 | | |
| EMS1 | Fire & Rescue Dist #1 Camano GEN (EMS) | 0.3677864386 | $407,863 | $407,863 | $150.01 | | |
| FIRE1 | Fire & Rescue Dist #1 Camano GEN | 1.2502910536 | $407,863 | $407,863 | $509.95 | | |
| FIRE1BOND | Fire & Rescue Dist #1 Camano BOND | 0.1570001679 | $407,863 | $407,863 | $64.03 | | |
| CE | County Current Expense | 0.3708482477 | $407,863 | $407,863 | $151.26 | | |
| CR | County Roads | 0.4584763726 | $407,863 | $407,863 | $187.00 | | |
| LCIB | Library Sno-Isle BOND (Camano Island) | 0.0396325772 | $407,863 | $407,863 | $16.16 | | |
| LIB | Library Sno-Isle GEN | 0.3153421757 | $407,863 | $407,863 | $128.62 | | |
| SCH205_401 | School 205-401 Enrichment | 1.2698420524 | $407,863 | $407,863 | $517.92 | | |
| SCH205BOND | School 205-401 BOND | 0.9396497583 | $407,863 | $407,863 | $383.25 | | |
| ST | State School | 1.3035497053 | $407,863 | $407,863 | $531.67 | | |
| ST2 | State School Part 2 | 0.8169543533 | $407,863 | $407,863 | $333.21 | | |
| | Total Tax Rate: | 7.3209764117 | | | | | |
| | | | | Taxes w/Current Exemptions: | $2,985.97 | | |
| | | | | Taxes w/o Exemptions: | $2,985.97 | | |
Improvement / Building
| Improvement #1: | MANUFACTURED HOME | State Code: | Y | 1296.0 sqft | Value: | $117,863 |
| Bathrooms: | 2 | Bedrooms: | 3 | | Ceiling: | PLASTER PAINTED | Cooling: | EVAP NO DUCT | | Exterior Wall/Cover: | VINYL | Floor Covering: | CARPET 100% | | Floor Structure: | SLAB ON GRADE | Foundation: | SLAB | | Heating: | FHA ELECTRIC | Interior Finish: | PLASTER | | Plumbing Fixture Cnt: | 1 | Roof Slope: | FLAT | | Roof Structure/Cover: | CJ ALUMINIUM HEAVY |   |   |
|
| | Type | Description | Class CD | Sub Class CD | Year Built | Area |
| | BAS | BASE/MAIN FLOOR | 4 | 0 | 1999 | 1296.0 |
| | DGR | DETACHED GARAGE | 4 | 0 | 1999 | 756.5 |
| | OCP | OPEN CARPORT | 4 | 0 | 1999 | 380.0 |
Sketch
Property Image
Land
| 1 | 18 | AC (02.01-03.00) | 2.6500 | 115434.00 | 0.00 | 0.00 | 1.00 | $290,000 | $0 |
Roll Value History
| 2026 | N/A | N/A | N/A | N/A | N/A |
| 2025 | $117,863 | $290,000 | $0 | $407,863 | $407,863 |
| 2024 | $121,330 | $280,000 | $0 | $401,330 | $401,330 |
| 2023 | $108,517 | $270,000 | $0 | $378,517 | $378,517 |
| 2022 | $84,487 | $260,000 | $0 | $344,487 | $344,487 |
| 2021 | $66,292 | $180,000 | $0 | $246,292 | $246,292 |
| 2020 | $66,309 | $150,000 | $0 | $216,309 | $216,309 |
| 2019 | $53,767 | $200,000 | $0 | $253,767 | $253,767 |
| 2018 | $55,303 | $150,000 | $0 | $205,303 | $205,303 |
| 2017 | $56,072 | $135,000 | $0 | $191,072 | $191,072 |
| 2016 | $57,608 | $105,000 | $0 | $162,608 | $162,608 |
| 2015 | $88,628 | $50,000 | $0 | $138,628 | $138,628 |
| 2014 | $89,869 | $50,000 | $0 | $139,869 | $139,869 |
| 2013 | $91,110 | $50,000 | $0 | $141,110 | $141,110 |
| 2012 | $92,351 | $74,400 | $0 | $166,751 | $166,751 |
| 2011 | $93,592 | $93,000 | $0 | $186,592 | $186,592 |
| 2010 | $93,001 | $93,000 | $0 | $186,001 | $186,001 |
| 2009 | $94,469 | $175,443 | $0 | $269,912 | $269,912 |
| 2008 | $66,718 | $217,500 | $0 | $284,218 | $284,218 |
| 2007 | $68,157 | $217,500 | $0 | $285,657 | $285,657 |
Deed and Sales History
| 1 | 03/23/2021 | WD | Warranty Deed | HOOPLE, JONATHAN R | AMEY JR, TIMOTHY | | | $441,300.00 | 47574 | 4515142 |
| 2 | 04/23/2002 | QCD | Quit Claim Deed | HOOPLE, JONATHAN R | HOOPLE, JONATHAN R | | | $72,673.00 | 22206 | 4022426 |
| 3 | 06/04/2001 | WD | Warranty Deed | REED, CLAUDIA | HOOPLE, JONATHAN R | | | $147,900.00 | 12139 | 20034531 |
| 4 | 01/22/1999 | WD | Warranty Deed | EMERSON, DAVID G | REED, CLAUDIA | | | $41,700.00 | 90357 | 99002265 |
| 5 | 04/01/1981 | REC | Real Estate Contract | REED, CLAUDIA | EMERSON, DAVID G | | | $24,119.00 | 11351 | 382581 |
| 6 | 01/01/1900 | OTHER | Other - Misc. Documents | Unknown | HOOPER, WILLIAM | | | $0.00 | 0 | 0 |
| 7 | 01/01/1900 | OTHER | Other - Misc. Documents | HOOPER, WILLIAM | REED, CLAUDIA | | | $0.00 | 0 | 0 |
Payout Agreement
| No payout information available.. |