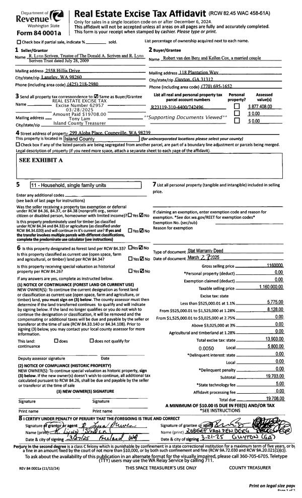
Property
Account |
| Property ID: | 466 | Abbreviated Legal Description: | 36 -IN GL4 & SW SE BG SE CR SW SE N88*W547' TPB N88* W847.41' N327' S88*E466.42' S113.50' S88*E400' S1*W213. .5' TPB TGW SUB EZ INCL INT IN WELL SITE AF#405268 |
| Geographic ID: | R03224-013-2920 | Agent Code: | |
| Type: | Real | | |
| Tax Area: | 332 - APPRAISER-Cpvl Schl Dist, Special Dist, improved, greater than 1 acre | Land Use Code | 11 |
| Open Space: | N | DFL | N |
| Historic Property: | N | Remodel Property: | N |
| Multi-Family Redevelopment: | N | | |
| Township: | 32 | Section: | 24 |
| Range: | R0 |
Location |
| Address: | 810 EL CINE ST COUPEVILLE, WA 98239 | Mapsco: | |
| Neighborhood: | Area 2 Waterfront Westside Res | Map ID: | 3 |
| Neighborhood CD: | 2WFTW01R |
Owner |
| Name: | TOWNSDIN, PEGGY C | Owner ID: | 190517 |
| Mailing Address: | 810 EL CINE ST COUPEVILLE, WA 98239-9791 | % Ownership: | 100.0000000000% |
| | | Exemptions: | SNR/DSBL |
Taxes and Assessment Details
Values
| (+) Improvement Homesite Value: | + | $285,104 | |
| (+) Improvement Non-Homesite Value: | + | $0 | |
| (+) Land Homesite Value: | + | $370,624 | |
| (+) Land Non-Homesite Value: | + | $3,598 | |
| (+) Curr Use (HS): | + | $0 | $0 |
| (+) Curr Use (NHS): | + | $0 | $0 |
| | | -------------------------- | |
| (=) Market Value: | = | $659,326 | |
| (–) Productivity Loss: | – | $0 | |
| | | -------------------------- | |
| (=) Subtotal: | = | $659,326 | |
| (+) Senior Appraised Value: | + | $317,498 | |
| (+) Non-Senior Appraised Value: | + | $3,598 | |
| | | -------------------------- | |
| (=) Total Appraised Value: | = | $321,096 | |
| (–) Senior Exemption Loss: | – | $190,499 | |
| (–) Exemption Loss: | – | $0 | |
| | | -------------------------- | |
| (=) Taxable Value: | = | $130,597 | |
Taxing Jurisdiction
| Owner: | TOWNSDIN, PEGGY C | | |
| % Ownership: | 100.0000000000% | | |
| Total Value: | $659,326 | | |
| Tax Area: | 332 - APPRAISER-Cpvl Schl Dist, Special Dist, improved, greater than 1 acre |
| CF | Conservation Futures | 0.0316035091 | $659,326 | $130,597 | $4.13 | | |
| CEM2 | Cemetery #2 | 0.0095056933 | $659,326 | $130,597 | $1.24 | | |
| FIRE2 | Fire & Rescue Dist #2 N Whidbey GEN | 0.5475949600 | $659,326 | $130,597 | $71.51 | | |
| HOBOND | Hospital BOND | 0.0000000000 | $659,326 | $3,598 | $0.69 | | |
| HOGEN | Hospital GEN | 0.3902502903 | $659,326 | $130,597 | $50.97 | | |
| CE | County Current Expense | 0.3708482477 | $659,326 | $130,597 | $48.43 | | |
| CR | County Roads | 0.4584763726 | $659,326 | $130,597 | $59.88 | | |
| ISLANDEMS | Hospital GEN (EMS) | 0.5000000000 | $659,326 | $130,597 | $65.30 | | |
| LIB | Library Sno-Isle GEN | 0.3153421757 | $659,326 | $130,597 | $41.18 | | |
| LIBCAP | Library Sno-Isle BOND (Cap Fac Imp Area) | 0.0000000000 | $659,326 | $3,598 | $0.20 | | |
| POCOUP | Port of Coupeville GEN | 0.1093371703 | $659,326 | $130,597 | $14.28 | | |
| POCOUPIDD | Port of Coupeville IDD | 0.3409740022 | $659,326 | $130,597 | $44.53 | | |
| COUPSDTECH | School 204 CP (TECH) | 0.0000000000 | $659,326 | $3,598 | $2.71 | | |
| SCH204MO | School 204 Enrichment | 0.0000000000 | $659,326 | $3,598 | $2.42 | | |
| ST | State School | 1.3035497053 | $659,326 | $130,597 | $170.24 | | |
| ST2 | State School Part 2 | 0.0000000000 | $659,326 | $3,598 | $2.94 | | |
| | Total Tax Rate: | 4.3774821265 | | | | | |
| | | | | Taxes w/Current Exemptions: | $580.65 | | |
| | | | | Taxes w/o Exemptions: | $4,526.95 | | |
Improvement / Building
| Improvement #1: | RESIDENTIAL | State Code: | Y | 1672.4 sqft | Value: | $285,104 |
| Bathrooms: | 2.5 | Bedrooms: | 3 | | Ceiling: | BEAM PAINTED | Exterior Wall/Cover: | WOOD SIDING | | Floor Covering: | CARPET/VINYL 80-20 | Floor Structure: | WOOD W/SUBFLOOR | | Foundation: | CONCRETE | Heating: | FHA GAS | | Interior Finish: | DRYWALL PAINT | Plumbing Fixture Cnt: | 12 | | Roof Slope: | 4" IN 12" | Roof Structure/Cover: | BEAM ASPHALT |
|
| | Type | Description | Class CD | Sub Class CD | Year Built | Area |
| | BAS | BASE/MAIN FLOOR | 3 | 0 | 1982 | 1360.4 |
| | UB8 | BASEMENT UNFINISHED 8" | 3 | 0 | 1982 | 312.0 |
| | BGR | BASEMENT GARAGE | 3 | 0 | 1982 | 672.0 |
| | OWP | OPEN WOOD PORCH W/STEPS | 3 | 0 | 1982 | 800.4 |
| | OWP | OPEN WOOD PORCH W/STEPS | 3 | 0 | 1982 | 269.2 |
| | ENP | ENCLOSED PORCH | 3 | 0 | 1982 | 136.0 |
| | DWN | DOWNSTAIRS LIVING AREA | 3 | 0 | 1982 | 312.0 |
Sketch
Property Image
Land
| 1 | HS | HOMESITE | 1.0000 | 43560.00 | 0.00 | 0.00 | 1.00 | $340,000 | $0 |
| 2 | 91 | UNDEVELOPED LAND-METES AND BOUNDS | 4.4700 | 194713.20 | 0.00 | 0.00 | 1.00 | $34,222 | $0 |
Roll Value History
| 2026 | N/A | N/A | N/A | N/A | N/A |
| 2025 | $285,104 | $374,222 | $0 | $659,326 | $130,597 |
| 2024 | $276,204 | $360,000 | $0 | $636,204 | $157,931 |
| 2023 | $280,249 | $350,000 | $0 | $630,249 | $133,873 |
| 2022 | $257,430 | $310,000 | $0 | $567,430 | $334,683 |
| 2021 | $227,053 | $260,000 | $0 | $487,053 | $334,683 |
| 2020 | $221,378 | $240,000 | $0 | $461,378 | $334,683 |
| 2019 | $160,837 | $250,000 | $0 | $410,837 | $334,683 |
| 2018 | $138,138 | $240,000 | $0 | $378,138 | $334,683 |
| 2017 | $134,683 | $200,000 | $0 | $334,683 | $264,683 |
| 2016 | $136,723 | $200,000 | $0 | $336,723 | $336,723 |
| 2015 | $138,765 | $185,000 | $0 | $323,765 | $323,765 |
| 2014 | $140,805 | $182,151 | $0 | $322,956 | $322,956 |
| 2013 | $142,846 | $182,151 | $0 | $324,997 | $324,997 |
| 2012 | $143,277 | $182,151 | $0 | $325,428 | $325,428 |
| 2011 | $145,347 | $202,390 | $0 | $347,737 | $347,737 |
| 2010 | $156,436 | $155,000 | $0 | $311,436 | $311,436 |
| 2009 | $163,341 | $160,000 | $0 | $323,341 | $323,341 |
| 2008 | $165,490 | $190,000 | $0 | $355,490 | $355,490 |
| 2007 | $167,640 | $190,000 | $0 | $357,640 | $357,640 |
Deed and Sales History
| 1 | 06/23/2003 | DECREE | Divorce Decree/Legal Separation | TOWNSDIN, JAMES A | TOWNSDIN, PEGGY C | | | $0.00 | 32707 | 4064261 |
| 2 | 01/01/1900 | CD | DNU - Correction Deed | Unknown | TOWNSDIN, JAMES A | | | $0.00 | 64559 | 0 |
Payout Agreement
| No payout information available.. |