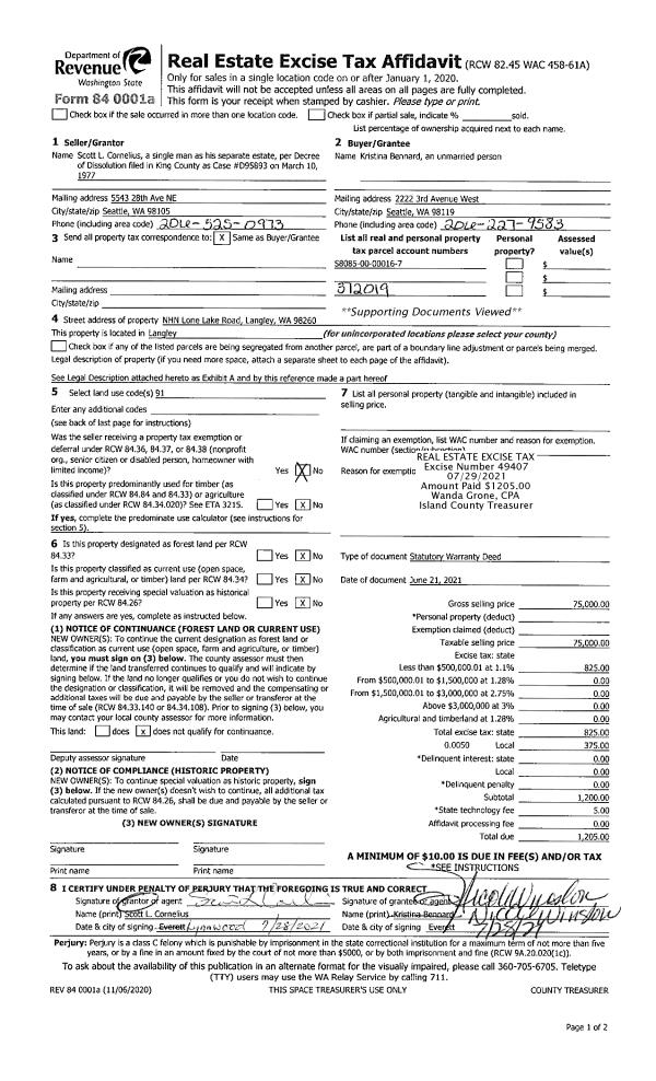
Property
Account |
| Property ID: | 466427 | Abbreviated Legal Description: | N/2 S/2 N/2 NW NE EX E165' EX RD TGW EZ SP 78-117 LOT 2 FR 4733280 |
| Geographic ID: | R32919-485-3280 | Agent Code: | |
| Type: | Real | | |
| Tax Area: | 812 - APPRAISER-S Whid Schl Dist, outside Langley, improved, greater than 1 acre | Land Use Code | 11 |
| Open Space: | N | DFL | N |
| Historic Property: | N | Remodel Property: | N |
| Multi-Family Redevelopment: | N | | |
| Township: | 29 | Section: | 19 |
| Range: | R3 |
Location |
| Address: | 2680 SUNSHINE LN CLINTON, WA 98236 | Mapsco: | |
| Neighborhood: | Cycle 4 | Map ID: | 790 |
| Neighborhood CD: | 4 |
Owner |
| Name: | SPARKS, THOMAS | Owner ID: | 282909 |
| Mailing Address: | FLORA P GOLDTHWAITE 2680 SUNSHINE LN CLINTON, WA 98236 | % Ownership: | 100.0000000000% |
| | | Exemptions: | |
Taxes and Assessment Details
Values
| (+) Improvement Homesite Value: | + | $0 | |
| (+) Improvement Non-Homesite Value: | + | $431,601 | |
| (+) Land Homesite Value: | + | $0 | |
| (+) Land Non-Homesite Value: | + | $420,000 | |
| (+) Curr Use (HS): | + | $0 | $0 |
| (+) Curr Use (NHS): | + | $0 | $0 |
| | | -------------------------- | |
| (=) Market Value: | = | $851,601 | |
| (–) Productivity Loss: | – | $0 | |
| | | -------------------------- | |
| (=) Subtotal: | = | $851,601 | |
| (+) Senior Appraised Value: | + | $0 | |
| (+) Non-Senior Appraised Value: | + | $851,601 | |
| | | -------------------------- | |
| (=) Total Appraised Value: | = | $851,601 | |
| (–) Senior Exemption Loss: | – | $0 | |
| (–) Exemption Loss: | – | $0 | |
| | | -------------------------- | |
| (=) Taxable Value: | = | $851,601 | |
Taxing Jurisdiction
| Owner: | SPARKS, THOMAS | | |
| % Ownership: | 100.0000000000% | | |
| Total Value: | $851,601 | | |
| Tax Area: | 812 - APPRAISER-S Whid Schl Dist, outside Langley, improved, greater than 1 acre |
| CF | Conservation Futures | 0.0316035091 | $851,601 | $851,601 | $26.91 | | |
| FIRE3 | Fire & Rescue Dist #3 S Whidbey GEN | 1.2004855531 | $851,601 | $851,601 | $1,022.33 | | |
| HOBOND | Hospital BOND | 0.1910887512 | $851,601 | $851,601 | $162.73 | | |
| HOGEN | Hospital GEN | 0.3902502903 | $851,601 | $851,601 | $332.34 | | |
| CE | County Current Expense | 0.3708482477 | $851,601 | $851,601 | $315.81 | | |
| CR | County Roads | 0.4584763726 | $851,601 | $851,601 | $390.44 | | |
| ISLANDEMS | Hospital GEN (EMS) | 0.5000000000 | $851,601 | $851,601 | $425.80 | | |
| LIB | Library Sno-Isle GEN | 0.3153421757 | $851,601 | $851,601 | $268.55 | | |
| PORTWHID | Port of S Whidbey GEN | 0.1094540357 | $851,601 | $851,601 | $93.21 | | |
| SCH206BOND | School 206 BOND | 0.3161759235 | $851,601 | $851,601 | $269.26 | | |
| SCH206MO | School 206 Enrichment | 0.4547169547 | $851,601 | $851,601 | $387.24 | | |
| ST | State School | 1.3035497053 | $851,601 | $851,601 | $1,110.10 | | |
| ST2 | State School Part 2 | 0.8169543533 | $851,601 | $851,601 | $695.72 | | |
| SWHIDPRBD | P & R S Whidbey BOND | 0.0152817568 | $851,601 | $851,601 | $13.01 | | |
| SWHIDPRBD2 | P & R S Whidbey BOND2 | 0.0138911264 | $851,601 | $851,601 | $11.83 | | |
| SWHIDPRMT | P & R S Whidbey GEN | 0.2053334452 | $851,601 | $851,601 | $174.86 | | |
| | Total Tax Rate: | 6.6934522006 | | | | | |
| | | | | Taxes w/Current Exemptions: | $5,700.14 | | |
| | | | | Taxes w/o Exemptions: | $5,700.14 | | |
Improvement / Building
| Improvement #1: | RESIDENTIAL | State Code: | Y | 2599.2 sqft | Value: | $431,601 |
| Bathrooms: | 3 | Bedrooms: | 4 | | Ceiling: | DRYWALL PAINTED | Cooling: | HEAT PUMP/CONV/V | | Exterior Wall/Cover: | WOOD SIDING | Floor Covering: | HARDWOOD/CARP 20-80 | | Floor Structure: | WOOD W/SUBFLOOR | Foundation: | CONCRETE | | Interior Finish: | DRYWALL PAINT | Plumbing Fixture Cnt: | 13 | | Roof Slope: | 4" IN 12" | Roof Structure/Cover: | CJ ASPHALT |
|
| | Type | Description | Class CD | Sub Class CD | Year Built | Area |
| | BAS | BASE/MAIN FLOOR | 3 | 0 | 1943 | 2055.2 |
| | UB6 | BASEMENT UNFINISHED 6" | 3 | 0 | 1943 | 1240.0 |
| | OP3 | OPEN PORCH W/ROOF | 3 | 0 | 1943 | 30.0 |
| | OWP | OPEN WOOD PORCH W/STEPS | 3 | 0 | 1943 | 72.6 |
| | OWP | OPEN WOOD PORCH W/STEPS | 3 | 0 | 1943 | 312.0 |
| | DWN | DOWNSTAIRS LIVING AREA | 3 | 0 | 1943 | 544.0 |
| | DGR | DETACHED GARAGE | 3 | 0 | 1943 | 800.0 |
| | OP3 | OPEN PORCH W/ROOF | 3 | 0 | 1943 | 48.5 |
Sketch
Property Image
Land
| 1 | 32 | AC (03.01-09.99) | 0.0000 | 0.00 | 0.00 | 0.00 | 1.00 | $420,000 | $0 |
Roll Value History
| 2026 | N/A | N/A | N/A | N/A | N/A |
| 2025 | $431,601 | $420,000 | $0 | $851,601 | $851,601 |
| 2024 | $436,786 | $390,000 | $0 | $826,786 | $826,786 |
| 2023 | $441,969 | $350,000 | $0 | $791,969 | $791,969 |
| 2022 | $404,910 | $350,000 | $0 | $754,910 | $754,910 |
| 2021 | $356,178 | $300,000 | $0 | $656,178 | $656,178 |
| 2020 | $293,402 | $260,000 | $0 | $553,402 | $553,402 |
| 2019 | $228,944 | $300,000 | $0 | $528,944 | $528,944 |
| 2018 | $229,707 | $250,000 | $0 | $479,707 | $479,707 |
| 2017 | $178,073 | $200,000 | $0 | $378,073 | $378,073 |
| 2016 | $180,856 | $165,000 | $0 | $345,856 | $345,856 |
| 2015 | $183,639 | $165,000 | $0 | $348,639 | $348,639 |
| 2014 | $182,287 | $175,200 | $0 | $357,487 | $357,487 |
| 2013 | $184,958 | $159,096 | $0 | $344,054 | $344,054 |
| 2012 | $187,631 | $159,096 | $0 | $346,727 | $346,727 |
| 2011 | $190,302 | $187,172 | $0 | $377,474 | $377,474 |
| 2010 | $202,635 | $187,172 | $0 | $389,807 | $389,807 |
| 2009 | $211,095 | $227,828 | $0 | $438,923 | $438,923 |
| 2008 | $207,925 | $247,828 | $0 | $455,753 | $455,753 |
| 2007 | $210,797 | $202,578 | $0 | $413,375 | $413,375 |
Deed and Sales History
| 1 | 11/15/2017 | WD | Warranty Deed | LANGSHOLT PROPERTIES LLC | SPARKS, THOMAS | | | $480,000.00 | 31923 | 4434156 |
| 2 | 12/06/2016 | TRUSTEED | Trustee's Deed | SWAFFIELD, ROBERT A | LANGSHOLT PROPERTIES LLC | | | $296,001.00 | 27228 | 4413002 |
| 3 | 04/24/2009 | QCD | Quit Claim Deed | SWAFFIELD TRUSTEE, ROBERT A | SWAFFIELD, ROBERT A | | | $0.00 | 90950 | 4250250 |
| 4 | 07/10/2002 | 5 | DNU - Marriage License/Name Change | SWAFFIELD, ROBERT A | SWAFFIELD TRUSTEE, ROBERT A | | | $0.00 | 33296 | 4068900 |
| 5 | 08/01/1984 | WD | Warranty Deed | RUDD, J R | SWAFFIELD, ROBERT A | | | $124,500.00 | 42476 | 84002295 |
Payout Agreement
| No payout information available.. |