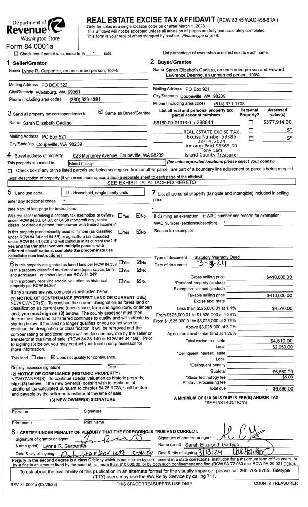
Property
Account |
| Property ID: | 466490 | Abbreviated Legal Description: | N225.25' OF S869.50' OF E520' OF E3/4 NW SW TGW SUB EZ TGW & SUB EZ A#60495 AF#410226 FR 220-0820 LOT G SP 79-92 |
| Geographic ID: | R13208-210-1100 | Agent Code: | |
| Type: | Real | | |
| Tax Area: | 112 - APPRAISER-OH Schl Dist, outside OH, improved, greater than 1 acre | Land Use Code | 11 |
| Open Space: | N | DFL | N |
| Historic Property: | N | Remodel Property: | N |
| Multi-Family Redevelopment: | N | | |
| Township: | 32 | Section: | 08 |
| Range: | R1 |
Location |
| Address: | 1761 BRIDECK LN OAK HARBOR, WA 98277 | Mapsco: | |
| Neighborhood: | Cycle 1 | Map ID: | 108 |
| Neighborhood CD: | 1 |
Owner |
| Name: | JOHNSTON, GREGORY J | Owner ID: | 280602 |
| Mailing Address: | CHERYL JOHNSTON 1761 BRIDECK LN OAK HARBOR, WA 98277 | % Ownership: | 100.0000000000% |
| | | Exemptions: | |
Taxes and Assessment Details
Values
| (+) Improvement Homesite Value: | + | $0 | |
| (+) Improvement Non-Homesite Value: | + | $428,127 | |
| (+) Land Homesite Value: | + | $0 | |
| (+) Land Non-Homesite Value: | + | $260,000 | |
| (+) Curr Use (HS): | + | $0 | $0 |
| (+) Curr Use (NHS): | + | $0 | $0 |
| | | -------------------------- | |
| (=) Market Value: | = | $688,127 | |
| (–) Productivity Loss: | – | $0 | |
| | | -------------------------- | |
| (=) Subtotal: | = | $688,127 | |
| (+) Senior Appraised Value: | + | $0 | |
| (+) Non-Senior Appraised Value: | + | $688,127 | |
| | | -------------------------- | |
| (=) Total Appraised Value: | = | $688,127 | |
| (–) Senior Exemption Loss: | – | $0 | |
| (–) Exemption Loss: | – | $0 | |
| | | -------------------------- | |
| (=) Taxable Value: | = | $688,127 | |
Taxing Jurisdiction
| Owner: | JOHNSTON, GREGORY J | | |
| % Ownership: | 100.0000000000% | | |
| Total Value: | $688,127 | | |
| Tax Area: | 112 - APPRAISER-OH Schl Dist, outside OH, improved, greater than 1 acre |
| CF | Conservation Futures | 0.0316035091 | $688,127 | $688,127 | $21.75 | | |
| CEM1 | Cemetery #1 | 0.0040320932 | $688,127 | $688,127 | $2.77 | | |
| FIRE2 | Fire & Rescue Dist #2 N Whidbey GEN | 0.5475949600 | $688,127 | $688,127 | $376.81 | | |
| HOBOND | Hospital BOND | 0.1910887512 | $688,127 | $688,127 | $131.49 | | |
| HOGEN | Hospital GEN | 0.3902502903 | $688,127 | $688,127 | $268.54 | | |
| CE | County Current Expense | 0.3708482477 | $688,127 | $688,127 | $255.19 | | |
| CR | County Roads | 0.4584763726 | $688,127 | $688,127 | $315.49 | | |
| ISLANDEMS | Hospital GEN (EMS) | 0.5000000000 | $688,127 | $688,127 | $344.06 | | |
| LIB | Library Sno-Isle GEN | 0.3153421757 | $688,127 | $688,127 | $217.00 | | |
| NWHIDPRMT | P & R N Whidbey GEN | 0.2004466701 | $688,127 | $688,127 | $137.93 | | |
| SCH201MO | School 201 Enrichment | 1.8559231640 | $688,127 | $688,127 | $1,277.11 | | |
| ST | State School | 1.3035497053 | $688,127 | $688,127 | $897.01 | | |
| ST2 | State School Part 2 | 0.8169543533 | $688,127 | $688,127 | $562.17 | | |
| | Total Tax Rate: | 6.9861102925 | | | | | |
| | | | | Taxes w/Current Exemptions: | $4,807.32 | | |
| | | | | Taxes w/o Exemptions: | $4,807.32 | | |
Improvement / Building
| Improvement #1: | RESIDENTIAL | State Code: | Y | 2127.0 sqft | Value: | $428,127 |
| Bathrooms: | 2.5 | Bedrooms: | 3 | | Ceiling: | DRYWALL PAINTED | Exterior Wall/Cover: | PLY/HARDBOARD T-111 | | Floor Covering: | VINYL TILE/HARWD 20-80 | Floor Structure: | WOOD W/SUBFLOOR | | Foundation: | CONCRETE | Heating: | FHA GAS | | Interior Finish: | DRYWALL PAINT | Plumbing Fixture Cnt: | 13 | | Roof Slope: | 8" IN 12" | Roof Structure/Cover: | CJ ASPHALT |
|
| | Type | Description | Class CD | Sub Class CD | Year Built | Area |
| | BAS | BASE/MAIN FLOOR | 3 | 0 | 1992 | 2127.0 |
| | AGR | ATTACHED GARAGE | 3 | 0 | 1992 | 576.0 |
| | OWP | OPEN WOOD PORCH W/STEPS | 3 | 0 | 1992 | 382.0 |
| | OWC | OPEN WOOD PORCH W/STEPS/ROOF/C | 3 | 0 | 1992 | 110.0 |
| | CPD | OPEN CARPORT DIRT FLOOR | 3 | 0 | 1992 | 288.0 |
| | DGR | DETACHED GARAGE | 3 | 0 | 1992 | 864.0 |
Sketch
Property Image
Land
| 1 | 18 | AC (02.01-03.00) | 2.6900 | 117176.40 | 0.00 | 0.00 | 1.00 | $260,000 | $0 |
Roll Value History
| 2026 | N/A | N/A | N/A | N/A | N/A |
| 2025 | $428,127 | $260,000 | $0 | $688,127 | $688,127 |
| 2024 | $433,397 | $250,000 | $0 | $683,397 | $683,397 |
| 2023 | $428,127 | $240,000 | $0 | $668,127 | $668,127 |
| 2022 | $392,436 | $220,000 | $0 | $612,436 | $612,436 |
| 2021 | $345,406 | $180,000 | $0 | $525,406 | $525,406 |
| 2020 | $336,640 | $140,000 | $0 | $476,640 | $476,640 |
| 2019 | $256,608 | $200,000 | $0 | $456,608 | $456,608 |
| 2018 | $257,361 | $160,000 | $0 | $417,361 | $417,361 |
| 2017 | $225,430 | $150,000 | $0 | $375,430 | $375,430 |
| 2016 | $228,175 | $120,000 | $0 | $348,175 | $348,175 |
| 2015 | $230,918 | $90,000 | $0 | $320,918 | $320,918 |
| 2014 | $233,662 | $90,000 | $0 | $323,662 | $323,662 |
| 2013 | $236,406 | $102,000 | $0 | $338,406 | $338,406 |
| 2012 | $239,151 | $102,000 | $0 | $341,151 | $341,151 |
| 2011 | $249,321 | $120,000 | $0 | $369,321 | $369,321 |
| 2010 | $252,582 | $120,000 | $0 | $372,582 | $372,582 |
| 2009 | $262,834 | $132,000 | $0 | $394,834 | $394,834 |
| 2008 | $271,827 | $132,000 | $0 | $403,827 | $403,827 |
| 2007 | $275,323 | $132,000 | $0 | $407,323 | $407,323 |
Deed and Sales History
| 1 | 06/16/2017 | WD | Warranty Deed | PUNCH, THOMAS R / JANICE A | JOHNSTON, GREGORY J | | | $434,000.00 | 29945 | 4425119 |
| 2 | 10/01/1997 | WD | Warranty Deed | SHARP, JOHN M | PUNCH, THOMAS R | | | $205,000.00 | 73648 | 97017343 |
| 3 | 10/01/1990 | WD | Warranty Deed | BRIDGES, EDMUND D | SHARP, JOHN M | | | $20,653.00 | 6090 | 90020743 |
| 4 | 03/01/1981 | PACD | Purchaser's Assignment | DECKWA, ARNOLD & | BRIDGES, EDMUND D | | | $9,499.00 | 10824 | 380853 |
| 5 | 02/01/1980 | QCD | Quit Claim Deed | DECKWA, ARNOLD | DECKWA, ARNOLD & | | | $0.00 | 711 | 365833 |
| 6 | 05/01/1979 | QCD | Quit Claim Deed | DECKWA, ARNOLD & | DECKWA, ARNOLD | | | $0.00 | 91945 | 351504 |
| 7 | 01/01/1900 | OTHER | Other - Misc. Documents | Unknown | DECKWA, ARNOLD & | | | $0.00 | 0 | 0 |
Payout Agreement
| No payout information available.. |