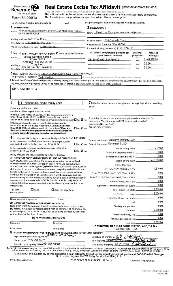
Property
Account |
| Property ID: | 467248 | Abbreviated Legal Description: | PTN NE SW: BG SWCR N330.01' N89*E260' TPB N424.44' N89* E130' S424.44' S89*W130' TPB TGW EZ SP 78-145 TR E SHIRONA #3 FR194520 1941910 |
| Geographic ID: | R13218-190-1630 | Agent Code: | |
| Type: | Real | | |
| Tax Area: | 112 - APPRAISER-OH Schl Dist, outside OH, improved, greater than 1 acre | Land Use Code | 11 |
| Open Space: | N | DFL | N |
| Historic Property: | N | Remodel Property: | N |
| Multi-Family Redevelopment: | N | | |
| Township: | 32 | Section: | 18 |
| Range: | R1 |
Location |
| Address: | 2276 WELLMAN PLACE OAK HARBOR, WA 98277 | Mapsco: | |
| Neighborhood: | Cycle 1 | Map ID: | 137 |
| Neighborhood CD: | 1 |
Owner |
| Name: | CHESTER JR, MATTHEW | Owner ID: | 317089 |
| Mailing Address: | 2276 WELLMAN PL OAK HARBOR, WA 98277 | % Ownership: | 100.0000000000% |
| | | Exemptions: | |
Taxes and Assessment Details
Values
| (+) Improvement Homesite Value: | + | $0 | |
| (+) Improvement Non-Homesite Value: | + | $295,781 | |
| (+) Land Homesite Value: | + | $0 | |
| (+) Land Non-Homesite Value: | + | $240,000 | |
| (+) Curr Use (HS): | + | $0 | $0 |
| (+) Curr Use (NHS): | + | $0 | $0 |
| | | -------------------------- | |
| (=) Market Value: | = | $535,781 | |
| (–) Productivity Loss: | – | $0 | |
| | | -------------------------- | |
| (=) Subtotal: | = | $535,781 | |
| (+) Senior Appraised Value: | + | $0 | |
| (+) Non-Senior Appraised Value: | + | $535,781 | |
| | | -------------------------- | |
| (=) Total Appraised Value: | = | $535,781 | |
| (–) Senior Exemption Loss: | – | $0 | |
| (–) Exemption Loss: | – | $0 | |
| | | -------------------------- | |
| (=) Taxable Value: | = | $535,781 | |
Taxing Jurisdiction
| Owner: | CHESTER JR, MATTHEW | | |
| % Ownership: | 100.0000000000% | | |
| Total Value: | $535,781 | | |
| Tax Area: | 112 - APPRAISER-OH Schl Dist, outside OH, improved, greater than 1 acre |
| CF | Conservation Futures | 0.0316035091 | $535,781 | $535,781 | $16.93 | | |
| CEM1 | Cemetery #1 | 0.0040320932 | $535,781 | $535,781 | $2.16 | | |
| FIRE2 | Fire & Rescue Dist #2 N Whidbey GEN | 0.5475949600 | $535,781 | $535,781 | $293.39 | | |
| HOBOND | Hospital BOND | 0.1910887512 | $535,781 | $535,781 | $102.38 | | |
| HOGEN | Hospital GEN | 0.3902502903 | $535,781 | $535,781 | $209.09 | | |
| CE | County Current Expense | 0.3708482477 | $535,781 | $535,781 | $198.69 | | |
| CR | County Roads | 0.4584763726 | $535,781 | $535,781 | $245.64 | | |
| ISLANDEMS | Hospital GEN (EMS) | 0.5000000000 | $535,781 | $535,781 | $267.89 | | |
| LIB | Library Sno-Isle GEN | 0.3153421757 | $535,781 | $535,781 | $168.95 | | |
| NWHIDPRMT | P & R N Whidbey GEN | 0.2004466701 | $535,781 | $535,781 | $107.40 | | |
| SCH201MO | School 201 Enrichment | 1.8559231640 | $535,781 | $535,781 | $994.37 | | |
| ST | State School | 1.3035497053 | $535,781 | $535,781 | $698.42 | | |
| ST2 | State School Part 2 | 0.8169543533 | $535,781 | $535,781 | $437.71 | | |
| | Total Tax Rate: | 6.9861102925 | | | | | |
| | | | | Taxes w/Current Exemptions: | $3,743.02 | | |
| | | | | Taxes w/o Exemptions: | $3,743.02 | | |
Improvement / Building
| Improvement #1: | RESIDENTIAL | State Code: | Y | 1986.0 sqft | Value: | $295,781 |
| Bathrooms: | 2.75 | Bedrooms: | 3 | | Ceiling: | DRYWALL PAINTED | Cooling: | HEAT PUMP/CONV/V | | Exterior Wall/Cover: | WOOD SIDING | Floor Covering: | CARPET/VINYL 80-20 | | Floor Structure: | WOOD W/SUBFLOOR | Foundation: | CONCRETE | | Interior Finish: | DRYWALL PAINT | Plumbing Fixture Cnt: | 12 | | Roof Slope: | 4" IN 12" | Roof Structure/Cover: | CJ ASPHALT |
|
| | Type | Description | Class CD | Sub Class CD | Year Built | Area |
| | BAS | BASE/MAIN FLOOR | 3 | 0 | 1988 | 1986.0 |
| | OWP | OPEN WOOD PORCH W/STEPS | 3 | 0 | 1988 | 35.0 |
| | AGR | ATTACHED GARAGE | 3 | 0 | 1988 | 552.0 |
Sketch
Property Image
Land
| 1 | 17 | AC (01.01-02.00) | 0.0000 | 55321.20 | 0.00 | 0.00 | 1.00 | $240,000 | $0 |
Roll Value History
| 2026 | N/A | N/A | N/A | N/A | N/A |
| 2025 | $295,781 | $240,000 | $0 | $535,781 | $535,781 |
| 2024 | $299,712 | $220,000 | $0 | $519,712 | $519,712 |
| 2023 | $295,781 | $220,000 | $0 | $515,781 | $515,781 |
| 2022 | $271,378 | $200,000 | $0 | $471,378 | $471,378 |
| 2021 | $239,077 | $170,000 | $0 | $409,077 | $409,077 |
| 2020 | $233,166 | $130,000 | $0 | $363,166 | $363,166 |
| 2019 | $176,570 | $180,000 | $0 | $356,570 | $356,570 |
| 2018 | $177,127 | $140,000 | $0 | $317,127 | $317,127 |
| 2017 | $170,878 | $150,000 | $0 | $320,878 | $320,878 |
| 2016 | $173,319 | $120,000 | $0 | $293,319 | $293,319 |
| 2015 | $175,761 | $85,000 | $0 | $260,761 | $260,761 |
| 2014 | $178,202 | $85,000 | $0 | $263,202 | $263,202 |
| 2013 | $180,642 | $85,000 | $0 | $265,642 | $265,642 |
| 2012 | $183,084 | $85,000 | $0 | $268,084 | $268,084 |
| 2011 | $194,027 | $100,000 | $0 | $294,027 | $294,027 |
| 2010 | $198,204 | $100,000 | $0 | $298,204 | $298,204 |
| 2009 | $206,895 | $120,000 | $0 | $326,895 | $326,895 |
| 2008 | $215,666 | $120,000 | $0 | $335,666 | $335,666 |
| 2007 | $218,392 | $120,000 | $0 | $338,392 | $338,392 |
Deed and Sales History
| 1 | 06/23/2025 | WD | Warranty Deed | MEAUX, LETTA | CHESTER JR, MATTHEW | | | $655,000.00 | 63924 | 4587374 |
| 2 | 04/10/2009 | PRD | Personal Representatives Deed | GILDEHAUS, EVERETT C | MEAUX, LETTA | | | $0.00 | 90811 | 4248917 |
| 3 | 10/01/1987 | WD | Warranty Deed | FRASER, DAVID W | GILDEHAUS, EVERETT C | | | $20,500.00 | 73471 | 87015125 |
| 4 | 04/01/1980 | QCD | Quit Claim Deed | BODIN, ROBERT | FAKCRABEARD, | | | $0.00 | 1274 | 367657 |
| 5 | 04/01/1980 | REC | Real Estate Contract | FAKCRABEARD, | FRASER, DAVID W | | | $15,000.00 | 1384 | 368248 |
| 6 | 07/01/1979 | REC | Real Estate Contract | FAKKEMA, ROBERT P | BODIN, ROBERT | | | $16,000.00 | 93307 | 0 |
| 7 | 11/01/1978 | OTHER | Other - Misc. Documents | Unknown | FAKKEMA, ROBERT P | | | $18,500.00 | 86147 | 344777 |
Payout Agreement
| No payout information available.. |