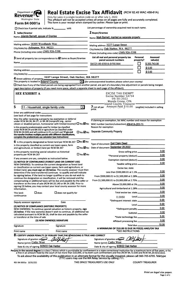
Property
Account |
| Property ID: | 467809 | Abbreviated Legal Description: | S/2 NW NE SE NW SUB TGW EZ SP 79-79 LOT 7 FR3642150, 3642480 |
| Geographic ID: | R13218-372-2150 | Agent Code: | |
| Type: | Real | | |
| Tax Area: | 112 - APPRAISER-OH Schl Dist, outside OH, improved, greater than 1 acre | Land Use Code | 11 |
| Open Space: | N | DFL | N |
| Historic Property: | N | Remodel Property: | N |
| Multi-Family Redevelopment: | N | | |
| Township: | 32 | Section: | 18 |
| Range: | R1 |
Location |
| Address: | 1473 EMERALD CT OAK HARBOR, WA 98277 | Mapsco: | |
| Neighborhood: | Cycle 1 | Map ID: | 139 |
| Neighborhood CD: | 1 |
Owner |
| Name: | DOMIGUEZ, BONNIE A | Owner ID: | 299460 |
| Mailing Address: | ROBERT W DOMINGUEZ 1473 EMERALD CT OAK HARBOR, WA 98277 | % Ownership: | 100.0000000000% |
| | | Exemptions: | |
Taxes and Assessment Details
Values
| (+) Improvement Homesite Value: | + | $0 | |
| (+) Improvement Non-Homesite Value: | + | $263,490 | |
| (+) Land Homesite Value: | + | $0 | |
| (+) Land Non-Homesite Value: | + | $240,000 | |
| (+) Curr Use (HS): | + | $0 | $0 |
| (+) Curr Use (NHS): | + | $0 | $0 |
| | | -------------------------- | |
| (=) Market Value: | = | $503,490 | |
| (–) Productivity Loss: | – | $0 | |
| | | -------------------------- | |
| (=) Subtotal: | = | $503,490 | |
| (+) Senior Appraised Value: | + | $0 | |
| (+) Non-Senior Appraised Value: | + | $503,490 | |
| | | -------------------------- | |
| (=) Total Appraised Value: | = | $503,490 | |
| (–) Senior Exemption Loss: | – | $0 | |
| (–) Exemption Loss: | – | $0 | |
| | | -------------------------- | |
| (=) Taxable Value: | = | $503,490 | |
Taxing Jurisdiction
| Owner: | DOMIGUEZ, BONNIE A | | |
| % Ownership: | 100.0000000000% | | |
| Total Value: | $503,490 | | |
| Tax Area: | 112 - APPRAISER-OH Schl Dist, outside OH, improved, greater than 1 acre |
| CF | Conservation Futures | 0.0316035091 | $503,490 | $503,490 | $15.91 | | |
| CEM1 | Cemetery #1 | 0.0040320932 | $503,490 | $503,490 | $2.03 | | |
| FIRE2 | Fire & Rescue Dist #2 N Whidbey GEN | 0.5475949600 | $503,490 | $503,490 | $275.71 | | |
| HOBOND | Hospital BOND | 0.1910887512 | $503,490 | $503,490 | $96.21 | | |
| HOGEN | Hospital GEN | 0.3902502903 | $503,490 | $503,490 | $196.49 | | |
| CE | County Current Expense | 0.3708482477 | $503,490 | $503,490 | $186.72 | | |
| CR | County Roads | 0.4584763726 | $503,490 | $503,490 | $230.84 | | |
| ISLANDEMS | Hospital GEN (EMS) | 0.5000000000 | $503,490 | $503,490 | $251.75 | | |
| LIB | Library Sno-Isle GEN | 0.3153421757 | $503,490 | $503,490 | $158.77 | | |
| NWHIDPRMT | P & R N Whidbey GEN | 0.2004466701 | $503,490 | $503,490 | $100.92 | | |
| SCH201MO | School 201 Enrichment | 1.8559231640 | $503,490 | $503,490 | $934.44 | | |
| ST | State School | 1.3035497053 | $503,490 | $503,490 | $656.32 | | |
| ST2 | State School Part 2 | 0.8169543533 | $503,490 | $503,490 | $411.33 | | |
| | Total Tax Rate: | 6.9861102925 | | | | | |
| | | | | Taxes w/Current Exemptions: | $3,517.44 | | |
| | | | | Taxes w/o Exemptions: | $3,517.44 | | |
Improvement / Building
| Improvement #1: | RESIDENTIAL | State Code: | Y | 1476.0 sqft | Value: | $263,490 |
| Bathrooms: | 2 | Bedrooms: | 3 | | Ceiling: | DRYWALL PAINTED | Exterior Wall/Cover: | WOOD SIDING | | Floor Covering: | HARDWOOD/CARP 20-80 | Floor Structure: | WOOD W/SUBFLOOR | | Foundation: | CONCRETE | Heating: | FHA ELECTRIC | | Interior Finish: | DRYWALL PAINT | Plumbing Fixture Cnt: | 9 | | Roof Slope: | 5" IN 12" | Roof Structure/Cover: | CJ ASPHALT |
|
| | Type | Description | Class CD | Sub Class CD | Year Built | Area |
| | BAS | BASE/MAIN FLOOR | 3 | 0 | 1983 | 1476.0 |
| | OP4 | OPEN PORCH W/CEILING-ROOF | 3 | 0 | 1983 | 24.0 |
| | AGR | ATTACHED GARAGE | 3 | 0 | 1983 | 480.0 |
| | OWP | OPEN WOOD PORCH W/STEPS | 3 | 0 | 1983 | 733.3 |
| | ENP | ENCLOSED PORCH | 3 | 0 | 1983 | 168.0 |
| | DGR | DETACHED GARAGE | 3 | 0 | 1983 | 432.0 |
Sketch
Property Image
Land
| 1 | 17 | AC (01.01-02.00) | 1.2500 | 54450.00 | 0.00 | 0.00 | 1.00 | $240,000 | $0 |
Roll Value History
| 2026 | N/A | N/A | N/A | N/A | N/A |
| 2025 | $263,490 | $240,000 | $0 | $503,490 | $503,490 |
| 2024 | $267,242 | $220,000 | $0 | $487,242 | $487,242 |
| 2023 | $270,993 | $220,000 | $0 | $490,993 | $490,993 |
| 2022 | $248,785 | $200,000 | $0 | $448,785 | $448,785 |
| 2021 | $191,425 | $170,000 | $0 | $361,425 | $361,425 |
| 2020 | $187,039 | $130,000 | $0 | $317,039 | $317,039 |
| 2019 | $136,276 | $200,000 | $0 | $336,276 | $336,276 |
| 2018 | $136,768 | $160,000 | $0 | $296,768 | $296,768 |
| 2017 | $127,742 | $150,000 | $0 | $277,742 | $277,742 |
| 2016 | $129,690 | $120,000 | $0 | $249,690 | $249,690 |
| 2015 | $131,640 | $85,000 | $0 | $216,640 | $216,640 |
| 2014 | $133,589 | $85,000 | $0 | $218,589 | $218,589 |
| 2013 | $135,537 | $85,000 | $0 | $220,537 | $220,537 |
| 2012 | $137,487 | $85,000 | $0 | $222,487 | $222,487 |
| 2011 | $145,741 | $100,000 | $0 | $245,741 | $245,741 |
| 2010 | $151,191 | $100,000 | $0 | $251,191 | $251,191 |
| 2009 | $157,931 | $120,000 | $0 | $277,931 | $277,931 |
| 2008 | $166,404 | $120,000 | $0 | $286,404 | $286,404 |
| 2007 | $166,946 | $120,000 | $0 | $286,946 | $286,946 |
Deed and Sales History
| 1 | 05/14/2021 | WD | Warranty Deed | BROCKWAY, RICHARD | DOMIGUEZ, BONNIE A | | | $485,000.00 | 48322 | 4519752 |
| 2 | 04/28/2021 | QCD | Quit Claim Deed | BROCKWAY, RICHARD L | BROCKWAY, RICHARD | | | $0.00 | 48321 | 4519751 |
| 3 | 04/17/2002 | WD | Warranty Deed | MERCER, KENNETH C | BROCKWAY, RICHARD L | | | $169,900.00 | 21626 | 4018523 |
| 4 | 03/01/1984 | WD | Warranty Deed | HONSBERGER, DELBERT L | MERCER, KENNETH C | | | $78,000.00 | 40622 | 421946 |
| 5 | 06/01/1983 | REC | Real Estate Contract | FAKKEMA, ROBT, C | HONSBERGER, DELBERT L | | | $16,000.00 | 31815 | 411653 |
| 6 | 01/01/1900 | OTHER | Other - Misc. Documents | Unknown | FAKKEMA, ROBT, C | | | $0.00 | 0 | 0 |
Payout Agreement
| No payout information available.. |