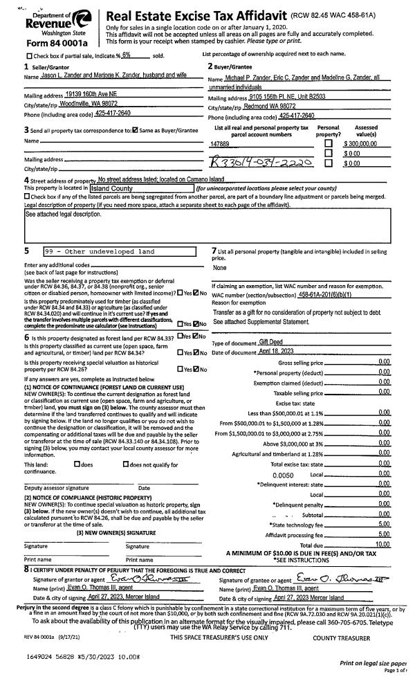
Property
Account |
| Property ID: | 468050 | Abbreviated Legal Description: | IN S/2 GL4: BG SECR GL4 W755' TPB N225' W TO GL LN SLY ALG SD LN TO SLN GL4 E ALG SLN GL4 TPB INCL ADJ TIDES FR 020-4050 V5 SUR P59 AF#365729 TGW EZ AF#90018091 |
| Geographic ID: | R13303-010-3950 | Agent Code: | |
| Type: | Real | | |
| Tax Area: | 112 - APPRAISER-OH Schl Dist, outside OH, improved, greater than 1 acre | Land Use Code | 11 |
| Open Space: | N | DFL | N |
| Historic Property: | N | Remodel Property: | N |
| Multi-Family Redevelopment: | N | | |
| Township: | 33 | Section: | 03 |
| Range: | R1 |
Location |
| Address: | 915 RILEY RD OAK HARBOR, WA 98277 | Mapsco: | |
| Neighborhood: | Cycle 6 | Map ID: | 197 |
| Neighborhood CD: | 6 |
Owner |
| Name: | FROST, JAMES H & SHERYL L | Owner ID: | 71452 |
| Mailing Address: | PO BOX 1051 RENTON, WA 98057 | % Ownership: | 100.0000000000% |
| | | Exemptions: | |
Taxes and Assessment Details
Values
| (+) Improvement Homesite Value: | + | $0 | |
| (+) Improvement Non-Homesite Value: | + | $533,403 | |
| (+) Land Homesite Value: | + | $0 | |
| (+) Land Non-Homesite Value: | + | $722,250 | |
| (+) Curr Use (HS): | + | $0 | $0 |
| (+) Curr Use (NHS): | + | $0 | $0 |
| | | -------------------------- | |
| (=) Market Value: | = | $1,255,653 | |
| (–) Productivity Loss: | – | $0 | |
| | | -------------------------- | |
| (=) Subtotal: | = | $1,255,653 | |
| (+) Senior Appraised Value: | + | $0 | |
| (+) Non-Senior Appraised Value: | + | $1,255,653 | |
| | | -------------------------- | |
| (=) Total Appraised Value: | = | $1,255,653 | |
| (–) Senior Exemption Loss: | – | $0 | |
| (–) Exemption Loss: | – | $0 | |
| | | -------------------------- | |
| (=) Taxable Value: | = | $1,255,653 | |
Taxing Jurisdiction
| Owner: | FROST, JAMES H & SHERYL L | | |
| % Ownership: | 100.0000000000% | | |
| Total Value: | $1,255,653 | | |
| Tax Area: | 112 - APPRAISER-OH Schl Dist, outside OH, improved, greater than 1 acre |
| CF | Conservation Futures | 0.0316035091 | $1,255,653 | $1,255,653 | $39.68 | | |
| CEM1 | Cemetery #1 | 0.0040320932 | $1,255,653 | $1,255,653 | $5.06 | | |
| FIRE2 | Fire & Rescue Dist #2 N Whidbey GEN | 0.5475949600 | $1,255,653 | $1,255,653 | $687.59 | | |
| HOBOND | Hospital BOND | 0.1910887512 | $1,255,653 | $1,255,653 | $239.94 | | |
| HOGEN | Hospital GEN | 0.3902502903 | $1,255,653 | $1,255,653 | $490.02 | | |
| CE | County Current Expense | 0.3708482477 | $1,255,653 | $1,255,653 | $465.66 | | |
| CR | County Roads | 0.4584763726 | $1,255,653 | $1,255,653 | $575.69 | | |
| ISLANDEMS | Hospital GEN (EMS) | 0.5000000000 | $1,255,653 | $1,255,653 | $627.83 | | |
| LIB | Library Sno-Isle GEN | 0.3153421757 | $1,255,653 | $1,255,653 | $395.96 | | |
| NWHIDPRMT | P & R N Whidbey GEN | 0.2004466701 | $1,255,653 | $1,255,653 | $251.69 | | |
| SCH201MO | School 201 Enrichment | 1.8559231640 | $1,255,653 | $1,255,653 | $2,330.40 | | |
| ST | State School | 1.3035497053 | $1,255,653 | $1,255,653 | $1,636.81 | | |
| ST2 | State School Part 2 | 0.8169543533 | $1,255,653 | $1,255,653 | $1,025.81 | | |
| | Total Tax Rate: | 6.9861102925 | | | | | |
| | | | | Taxes w/Current Exemptions: | $8,772.14 | | |
| | | | | Taxes w/o Exemptions: | $8,772.14 | | |
Improvement / Building
| Improvement #1: | RESIDENTIAL | State Code: | Y | 2646.2 sqft | Value: | $533,403 |
| Bathrooms: | 3 | Bedrooms: | 2 | | Ceiling: | DRYWALL PAINTED | Exterior Wall/Cover: | CEMENT FIBER | | Floor Covering: | CERAMIC TILE/CPT 40-60 | Floor Structure: | WOOD W/SUBFLOOR | | Foundation: | CONCRETE | Heating: | FHA GAS | | Interior Finish: | DRYWALL PAINT | Plumbing Fixture Cnt: | 12 | | Roof Slope: | 8" IN 12" | Roof Structure/Cover: | CJ ALUMINIUM HEAVY |
|
| | Type | Description | Class CD | Sub Class CD | Year Built | Area |
| | BAS | BASE/MAIN FLOOR | 4 | 0 | 1970 | 1978.2 |
| | OP4 | OPEN PORCH W/CEILING-ROOF | 4 | 0 | 1970 | 36.0 |
| | OWP | OPEN WOOD PORCH W/STEPS | 4 | 0 | 1970 | 1193.0 |
| | UPH | HALF STORY | 4 | 0 | 1970 | 668.0 |
| | DGR | DETACHED GARAGE | 4 | 0 | 1970 | 1248.0 |
| | AGR | ATTACHED GARAGE | 4 | 0 | 1970 | 525.0 |
Sketch
Property Image
Land
| 1 | LB | LOW BANK | 5.4400 | 236966.40 | 225.00 | 0.00 | 1.00 | $720,000 | $0 |
| 2 | 55 | TIDES | 0.0000 | 0.00 | 225.00 | 0.00 | 1.00 | $2,250 | $0 |
Roll Value History
| 2026 | N/A | N/A | N/A | N/A | N/A |
| 2025 | $533,403 | $722,250 | $0 | $1,255,653 | $1,255,653 |
| 2024 | $539,728 | $722,250 | $0 | $1,261,978 | $1,261,978 |
| 2023 | $546,052 | $707,250 | $0 | $1,253,302 | $1,253,302 |
| 2022 | $489,975 | $702,250 | $0 | $1,192,225 | $1,192,225 |
| 2021 | $432,935 | $427,250 | $0 | $860,185 | $860,185 |
| 2020 | $422,889 | $382,250 | $0 | $805,139 | $805,139 |
| 2019 | $324,112 | $452,250 | $0 | $776,362 | $776,362 |
| 2018 | $289,832 | $452,250 | $0 | $742,082 | $742,082 |
| 2017 | $289,832 | $452,250 | $0 | $742,082 | $742,082 |
| 2016 | $289,832 | $452,250 | $0 | $742,082 | $742,082 |
| 2015 | $293,047 | $452,250 | $0 | $745,297 | $745,297 |
| 2014 | $296,265 | $452,250 | $0 | $748,515 | $748,515 |
| 2013 | $280,832 | $495,601 | $0 | $776,433 | $776,433 |
| 2012 | $265,300 | $495,601 | $0 | $760,901 | $760,901 |
| 2011 | $268,166 | $536,251 | $0 | $804,417 | $804,417 |
| 2010 | $275,455 | $536,251 | $0 | $811,706 | $811,706 |
| 2009 | $287,205 | $676,475 | $0 | $963,680 | $963,680 |
| 2008 | $288,103 | $789,105 | $0 | $1,077,208 | $1,077,208 |
| 2007 | $279,264 | $755,048 | $0 | $1,034,312 | $1,034,312 |
Deed and Sales History
| 1 | 08/01/1996 | WD | Warranty Deed | ELLIOTT, THEODORE M | FROST, JAMES H | | | $360,000.00 | 62931 | 96014322 |
| 2 | 02/01/1994 | QCD | Quit Claim Deed | ELLIOTT, THEODORE M | ELLIOTT, THEODORE M | | | $0.00 | 43491 | 94018562 |
| 3 | 08/01/1991 | WD | Warranty Deed | MASSEY, WILLIAM L | ELLIOTT, THEODORE M | | | $160,000.00 | 12839 | 91012128 |
| 4 | 06/01/1990 | WD | Warranty Deed | THURSTON, DEVELOPMENT C | MASSEY, WILLIAM L | | | $58,000.00 | 3594 | 90011638 |
| 5 | 07/01/1982 | QCD | Quit Claim Deed | POSEL, JOHN | THURSTON, DEVELOPMENT C | | | $0.00 | 22408 | 401419 |
| 6 | 08/01/1979 | QCD | Quit Claim Deed | POSEL, JOHN | POSEL, JOHN | | | $0.00 | 94916 | 357815 |
| 7 | 05/01/1979 | REC | Real Estate Contract | Unknown | POSEL, JOHN | | | $67,669.00 | 92669 | 353370 |
Payout Agreement
| No payout information available.. |