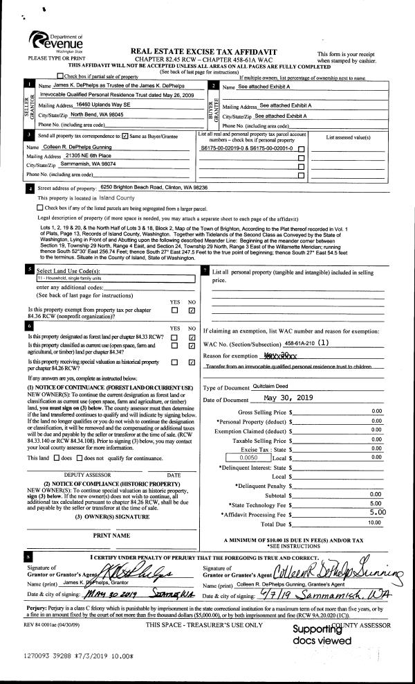
Property
Account |
| Property ID: | 468336 | Abbreviated Legal Description: | E211.5' OF S240' OF N531.9' OF GL3 EX RD TGW EX SP 78- 37 TR B FR 2274960 |
| Geographic ID: | R23035-225-5130 | Agent Code: | |
| Type: | Real | | |
| Tax Area: | 710 - APPRAISER-S Whid Schl Dist, outside Langley, improved & 1 acre or less | Land Use Code | 11 |
| Open Space: | N | DFL | N |
| Historic Property: | N | Remodel Property: | N |
| Multi-Family Redevelopment: | N | | |
| Township: | 30 | Section: | 35 |
| Range: | R2 |
Location |
| Address: | | Mapsco: | |
| Neighborhood: | Cycle 3 | Map ID: | 443 |
| Neighborhood CD: | 3 |
Owner |
| Name: | VOGT, ROBERT L | Owner ID: | 290265 |
| Mailing Address: | LINDA L VOGT 4636 E HARBOR RD FREELAND, WA 98249 | % Ownership: | 100.0000000000% |
| | | Exemptions: | |
Taxes and Assessment Details
Values
| (+) Improvement Homesite Value: | + | $0 | |
| (+) Improvement Non-Homesite Value: | + | $804,310 | |
| (+) Land Homesite Value: | + | $0 | |
| (+) Land Non-Homesite Value: | + | $360,000 | |
| (+) Curr Use (HS): | + | $0 | $0 |
| (+) Curr Use (NHS): | + | $0 | $0 |
| | | -------------------------- | |
| (=) Market Value: | = | $1,164,310 | |
| (–) Productivity Loss: | – | $0 | |
| | | -------------------------- | |
| (=) Subtotal: | = | $1,164,310 | |
| (+) Senior Appraised Value: | + | $0 | |
| (+) Non-Senior Appraised Value: | + | $1,164,310 | |
| | | -------------------------- | |
| (=) Total Appraised Value: | = | $1,164,310 | |
| (–) Senior Exemption Loss: | – | $0 | |
| (–) Exemption Loss: | – | $0 | |
| | | -------------------------- | |
| (=) Taxable Value: | = | $1,164,310 | |
Taxing Jurisdiction
| Owner: | VOGT, ROBERT L | | |
| % Ownership: | 100.0000000000% | | |
| Total Value: | $1,164,310 | | |
| Tax Area: | 710 - APPRAISER-S Whid Schl Dist, outside Langley, improved & 1 acre or less |
| CF | Conservation Futures | 0.0316035091 | $1,164,310 | $1,164,310 | $36.80 | | |
| FIRE3 | Fire & Rescue Dist #3 S Whidbey GEN | 1.2004855531 | $1,164,310 | $1,164,310 | $1,397.74 | | |
| HOBOND | Hospital BOND | 0.1910887512 | $1,164,310 | $1,164,310 | $222.49 | | |
| HOGEN | Hospital GEN | 0.3902502903 | $1,164,310 | $1,164,310 | $454.37 | | |
| CE | County Current Expense | 0.3708482477 | $1,164,310 | $1,164,310 | $431.78 | | |
| CR | County Roads | 0.4584763726 | $1,164,310 | $1,164,310 | $533.81 | | |
| ISLANDEMS | Hospital GEN (EMS) | 0.5000000000 | $1,164,310 | $1,164,310 | $582.16 | | |
| LIB | Library Sno-Isle GEN | 0.3153421757 | $1,164,310 | $1,164,310 | $367.16 | | |
| PORTWHID | Port of S Whidbey GEN | 0.1094540357 | $1,164,310 | $1,164,310 | $127.44 | | |
| SCH206BOND | School 206 BOND | 0.3161759235 | $1,164,310 | $1,164,310 | $368.13 | | |
| SCH206MO | School 206 Enrichment | 0.4547169547 | $1,164,310 | $1,164,310 | $529.43 | | |
| ST | State School | 1.3035497053 | $1,164,310 | $1,164,310 | $1,517.74 | | |
| ST2 | State School Part 2 | 0.8169543533 | $1,164,310 | $1,164,310 | $951.19 | | |
| SWHIDPRBD | P & R S Whidbey BOND | 0.0152817568 | $1,164,310 | $1,164,310 | $17.79 | | |
| SWHIDPRBD2 | P & R S Whidbey BOND2 | 0.0138911264 | $1,164,310 | $1,164,310 | $16.17 | | |
| SWHIDPRMT | P & R S Whidbey GEN | 0.2053334452 | $1,164,310 | $1,164,310 | $239.07 | | |
| | Total Tax Rate: | 6.6934522006 | | | | | |
| | | | | Taxes w/Current Exemptions: | $7,793.27 | | |
| | | | | Taxes w/o Exemptions: | $7,793.27 | | |
Improvement / Building
| Improvement #1: | RESIDENTIAL | State Code: | Y | 5132.0 sqft | Value: | $804,310 |
| Bathrooms: | 3.5 | Bedrooms: | 4 | | Ceiling: | DRYWALL PAINTED | Exterior Wall/Cover: | SHINGLE | | Floor Covering: | HARDWOOD/CARP 60-40 | Floor Structure: | WOOD W/SUBFLOOR | | Foundation: | CONCRETE | Heating: | BASEBOARD ELECTRIC | | Interior Finish: | DRYWALL PAINT | Plumbing Fixture Cnt: | 17 | | Roof Slope: | 6" IN 12" | Roof Structure/Cover: | CJ ASPHALT |
|
| | Type | Description | Class CD | Sub Class CD | Year Built | Area |
| | BAS | BASE/MAIN FLOOR | 5 | 0 | 2001 | 2607.0 |
| | OP1 | OPEN PORCH SLAB | 5 | 0 | 2001 | 440.0 |
| | OP4 | OPEN PORCH W/CEILING-ROOF | 5 | 0 | 2001 | 149.8 |
| | AGR | ATTACHED GARAGE | 5 | 0 | 2001 | 960.0 |
| | OWP | OPEN WOOD PORCH W/STEPS | 5 | 0 | 2001 | 110.3 |
| | OWP | OPEN WOOD PORCH W/STEPS | 5 | 0 | 2001 | 927.5 |
| | DWN | DOWNSTAIRS LIVING AREA | 5 | 0 | 2001 | 2525.0 |
Sketch
Property Image
Land
| 1 | 16 | AC (00.51-01.00) | 0.0000 | 0.00 | 0.00 | 0.00 | 1.00 | $360,000 | $0 |
Roll Value History
| 2026 | N/A | N/A | N/A | N/A | N/A |
| 2025 | $804,310 | $360,000 | $0 | $1,164,310 | $1,164,310 |
| 2024 | $829,152 | $340,000 | $0 | $1,169,152 | $1,169,152 |
| 2023 | $838,995 | $300,000 | $0 | $1,138,995 | $1,138,995 |
| 2022 | $768,627 | $280,000 | $0 | $1,048,627 | $1,048,627 |
| 2021 | $676,095 | $220,000 | $0 | $896,095 | $896,095 |
| 2020 | $660,064 | $170,000 | $0 | $830,064 | $830,064 |
| 2019 | $498,767 | $170,000 | $0 | $668,767 | $668,767 |
| 2018 | $500,229 | $130,000 | $0 | $630,229 | $251,255 |
| 2017 | $503,137 | $125,000 | $0 | $628,137 | $404,188 |
| 2016 | $508,989 | $125,000 | $0 | $633,989 | $633,989 |
| 2015 | $514,840 | $97,750 | $0 | $612,590 | $612,590 |
| 2014 | $520,690 | $97,750 | $0 | $618,440 | $618,440 |
| 2013 | $527,003 | $97,750 | $0 | $624,753 | $624,753 |
| 2012 | $532,753 | $97,750 | $0 | $630,503 | $630,503 |
| 2011 | $485,000 | $115,000 | $0 | $600,000 | $600,000 |
| 2010 | $738,757 | $115,000 | $0 | $853,757 | $853,757 |
| 2009 | $762,206 | $185,000 | $0 | $947,206 | $947,206 |
| 2008 | $771,413 | $185,000 | $0 | $956,413 | $956,413 |
| 2007 | $788,386 | $124,198 | $0 | $912,584 | $912,584 |
Deed and Sales History
| 1 | 05/20/2019 | WD | Warranty Deed | VERDIER, HILTRUD | VOGT, ROBERT L | | | $875,000.00 | 38984 | 4465473 |
| 2 | 04/13/2011 | TRUSTEED | Trustee's Deed | DEUTSCHE BANK NATIONAL TRUST COMPANY | VERDIER, HILTRUD | | | $550,000.00 | 4173 | 4293955 |
| 3 | 03/17/2010 | TRUSTEED | Trustee's Deed | TAYLOR, RODNEY R | DEUTSCHE BANK NATIONAL TRUST C | | | $900,000.00 | 625 | 4270628 |
| 4 | 01/10/2000 | WD | Warranty Deed | MCKINNON, JOHN A JR | TAYLOR, RODNEY R | | | $90,000.00 | 1688 | 20008080 |
| 5 | 03/01/1979 | EXECUTORD | Executor Deed | LITTLE, CORAL E | MCKINNON, JOHN A | | | $20,000.00 | 91795 | 351111 |
| 6 | 01/01/1900 | OTHER | Other - Misc. Documents | Unknown | LITTLE, CORAL E | | | $0.00 | 0 | 0 |
| 7 | 01/01/1900 | OTHER | Other - Misc. Documents | MCKINNON, JOHN A | MCKINNON, JOHN A JR | | | $0.00 | 0 | 0 |
Payout Agreement
| No payout information available.. |