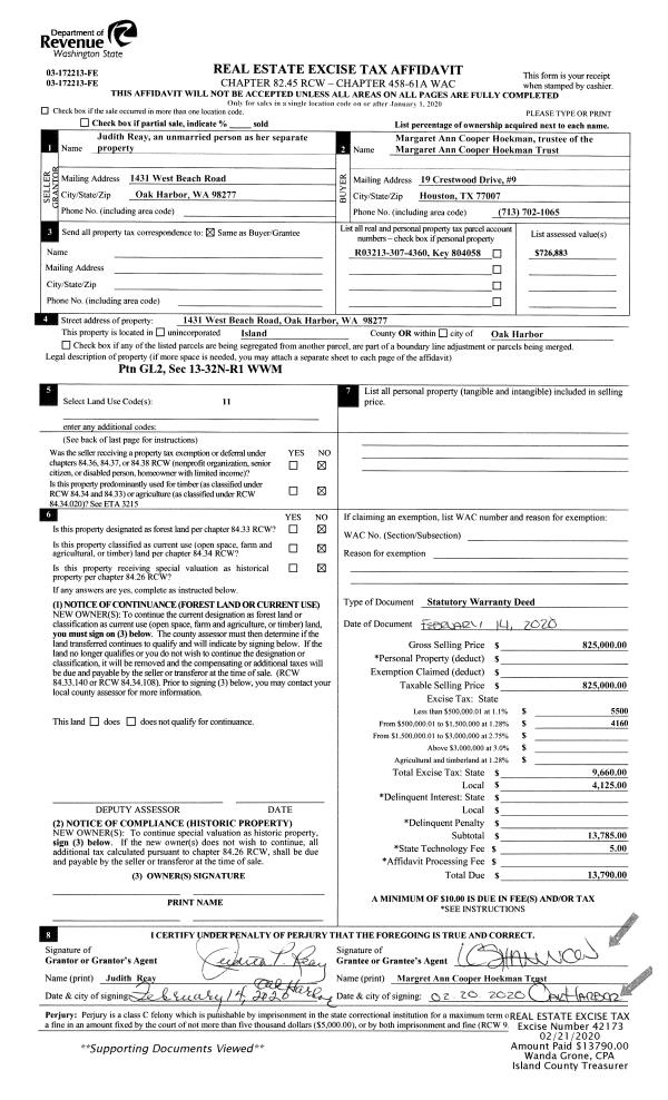
Property
Account |
| Property ID: | 468817 | Abbreviated Legal Description: | S/2 SE SE LY W OF OLD CO RD FR 035-3640 |
| Geographic ID: | R23017-035-4320 | Agent Code: | |
| Type: | Real | | |
| Tax Area: | 312 - APPRAISER-Cpvl Schl Dist, outside Cpvl, improved, greater than 1 acre | Land Use Code | 11 |
| Open Space: | N | DFL | N |
| Historic Property: | N | Remodel Property: | N |
| Multi-Family Redevelopment: | N | | |
| Township: | 30 | Section: | 17 |
| Range: | R2 |
Location |
| Address: | 3572 OLD COUNTY RD GREENBANK, WA 98253 | Mapsco: | |
| Neighborhood: | Cycle 3 | Map ID: | 385 |
| Neighborhood CD: | 3 |
Owner |
| Name: | GLASGOW, KATHRYN G | Owner ID: | 256199 |
| Mailing Address: | 3572 OLD COUNTY RD GREENBANK, WA 98253 | % Ownership: | 100.0000000000% |
| | | Exemptions: | |
Taxes and Assessment Details
Values
| (+) Improvement Homesite Value: | + | $0 | |
| (+) Improvement Non-Homesite Value: | + | $332,872 | |
| (+) Land Homesite Value: | + | $0 | |
| (+) Land Non-Homesite Value: | + | $350,000 | |
| (+) Curr Use (HS): | + | $0 | $0 |
| (+) Curr Use (NHS): | + | $0 | $0 |
| | | -------------------------- | |
| (=) Market Value: | = | $682,872 | |
| (–) Productivity Loss: | – | $0 | |
| | | -------------------------- | |
| (=) Subtotal: | = | $682,872 | |
| (+) Senior Appraised Value: | + | $0 | |
| (+) Non-Senior Appraised Value: | + | $682,872 | |
| | | -------------------------- | |
| (=) Total Appraised Value: | = | $682,872 | |
| (–) Senior Exemption Loss: | – | $0 | |
| (–) Exemption Loss: | – | $0 | |
| | | -------------------------- | |
| (=) Taxable Value: | = | $682,872 | |
Taxing Jurisdiction
| Owner: | GLASGOW, KATHRYN G | | |
| % Ownership: | 100.0000000000% | | |
| Total Value: | $682,872 | | |
| Tax Area: | 312 - APPRAISER-Cpvl Schl Dist, outside Cpvl, improved, greater than 1 acre |
| CF | Conservation Futures | 0.0316035091 | $682,872 | $682,872 | $21.58 | | |
| CEM2 | Cemetery #2 | 0.0095056933 | $682,872 | $682,872 | $6.49 | | |
| FIRE5 | Fire & Rescue Dist #5 C Whidbey GEN | 1.2008080668 | $682,872 | $682,872 | $820.00 | | |
| FIRE5BOND | Fire & Rescue Dist #5 C Whidbey BOND | 0.1400090713 | $682,872 | $682,872 | $95.61 | | |
| HOBOND | Hospital BOND | 0.1910887512 | $682,872 | $682,872 | $130.49 | | |
| HOGEN | Hospital GEN | 0.3902502903 | $682,872 | $682,872 | $266.49 | | |
| CE | County Current Expense | 0.3708482477 | $682,872 | $682,872 | $253.24 | | |
| CR | County Roads | 0.4584763726 | $682,872 | $682,872 | $313.08 | | |
| ISLANDEMS | Hospital GEN (EMS) | 0.5000000000 | $682,872 | $682,872 | $341.44 | | |
| LIB | Library Sno-Isle GEN | 0.3153421757 | $682,872 | $682,872 | $215.34 | | |
| LIBCAP | Library Sno-Isle BOND (Cap Fac Imp Area) | 0.0543427938 | $682,872 | $682,872 | $37.11 | | |
| POCOUP | Port of Coupeville GEN | 0.1093371703 | $682,872 | $682,872 | $74.66 | | |
| POCOUPIDD | Port of Coupeville IDD | 0.3409740022 | $682,872 | $682,872 | $232.84 | | |
| COUPSDTECH | School 204 CP (TECH) | 0.7545480007 | $682,872 | $682,872 | $515.26 | | |
| SCH204MO | School 204 Enrichment | 0.6716186034 | $682,872 | $682,872 | $458.63 | | |
| ST | State School | 1.3035497053 | $682,872 | $682,872 | $890.16 | | |
| ST2 | State School Part 2 | 0.8169543533 | $682,872 | $682,872 | $557.88 | | |
| | Total Tax Rate: | 7.6592568070 | | | | | |
| | | | | Taxes w/Current Exemptions: | $5,230.30 | | |
| | | | | Taxes w/o Exemptions: | $5,230.30 | | |
Improvement / Building
| Improvement #1: | RESIDENTIAL | State Code: | Y | 1600.0 sqft | Value: | $332,872 |
| Bathrooms: | 1.5 | Bedrooms: | 2 | | Ceiling: | DRYWALL PAINTED | Exterior Wall/Cover: | WOOD SIDING | | Floor Covering: | CARPET/VINYL 80-20 | Floor Structure: | WOOD W/SUBFLOOR | | Foundation: | CONCRETE | Heating: | BASEBOARD ELECTRIC | | Interior Finish: | DRYWALL PAINT | Plumbing Fixture Cnt: | 9 | | Roof Slope: | 8" IN 12" | Roof Structure/Cover: | BEAM ASPHALT |
|
| | Type | Description | Class CD | Sub Class CD | Year Built | Area |
| | BAS | BASE/MAIN FLOOR | 3 | 0 | 1992 | 1344.0 |
| | OP1 | OPEN PORCH SLAB | 3 | 0 | 1992 | 224.0 |
| | OP1 | OPEN PORCH SLAB | 3 | 0 | 1992 | 240.0 |
| | DGR | DETACHED GARAGE | 3 | 0 | 1992 | 760.0 |
| | UPS | UPPER STORY | 3 | 0 | 1992 | 256.0 |
| | OWP | OPEN WOOD PORCH W/STEPS | 3 | 0 | 1992 | 132.1 |
| | OWC | OPEN WOOD PORCH W/STEPS/ROOF/C | 3 | 0 | 1992 | 16.0 |
| | CPD | OPEN CARPORT DIRT FLOOR | 3 | 0 | 1992 | 169.0 |
| | UTY | STORAGE/UTILITY | 3 | 0 | 1992 | 200.0 |
| | UTY | STORAGE/UTILITY | 3 | 0 | 1992 | 128.0 |
Sketch
Property Image
Land
| 1 | 32 | AC (03.01-09.99) | 8.4500 | 368082.00 | 0.00 | 0.00 | 1.00 | $350,000 | $0 |
Roll Value History
| 2026 | N/A | N/A | N/A | N/A | N/A |
| 2025 | $332,872 | $350,000 | $0 | $682,872 | $682,872 |
| 2024 | $344,014 | $340,000 | $0 | $684,014 | $684,014 |
| 2023 | $348,300 | $320,000 | $0 | $668,300 | $668,300 |
| 2022 | $319,268 | $260,000 | $0 | $579,268 | $579,268 |
| 2021 | $280,992 | $230,000 | $0 | $510,992 | $440,992 |
| 2020 | $274,027 | $180,000 | $0 | $454,027 | $454,027 |
| 2019 | $164,556 | $230,000 | $0 | $394,556 | $394,556 |
| 2018 | $165,088 | $220,000 | $0 | $385,088 | $385,088 |
| 2017 | $165,143 | $160,000 | $0 | $325,143 | $325,143 |
| 2016 | $167,262 | $165,000 | $0 | $332,262 | $332,262 |
| 2015 | $169,379 | $150,000 | $0 | $319,379 | $319,379 |
| 2014 | $171,495 | $115,000 | $0 | $286,495 | $286,495 |
| 2013 | $171,817 | $114,075 | $0 | $285,892 | $285,892 |
| 2012 | $173,948 | $114,075 | $0 | $288,023 | $288,023 |
| 2011 | $177,080 | $126,750 | $0 | $303,830 | $303,830 |
| 2010 | $185,331 | $126,750 | $0 | $312,081 | $312,081 |
| 2009 | $193,327 | $219,700 | $0 | $413,027 | $413,027 |
| 2008 | $195,733 | $253,463 | $0 | $449,196 | $449,196 |
| 2007 | $196,690 | $219,700 | $0 | $416,390 | $416,390 |
Deed and Sales History
| 1 | 11/15/2011 | WD | Warranty Deed | GARNER, MARILYN E & | GLASGOW, KATHRYN G | | | $297,500.00 | 6198 | 4305178 |
| 2 | 03/01/1990 | WD | Warranty Deed | OLIN, ROBERT F | GARNER, MARILYN E | | | $39,000.00 | 1515 | 90004874 |
| 3 | 08/01/1989 | WD | Warranty Deed | KIRSCHNER, THOMAS & | OLIN, ROBERT F | | | $25,000.00 | 93753 | 89012533 |
| 4 | 04/01/1979 | OTHER | Other - Misc. Documents | Unknown | SCHUMACHER, MARTIN E | | | $15,000.00 | 92489 | 382865 |
| 5 | 01/01/1900 | OTHER | Other - Misc. Documents | SCHUMACHER, MARTIN E | KIRSCHNER, THOMAS & | | | $0.00 | 0 | 0 |
Payout Agreement
| No payout information available.. |