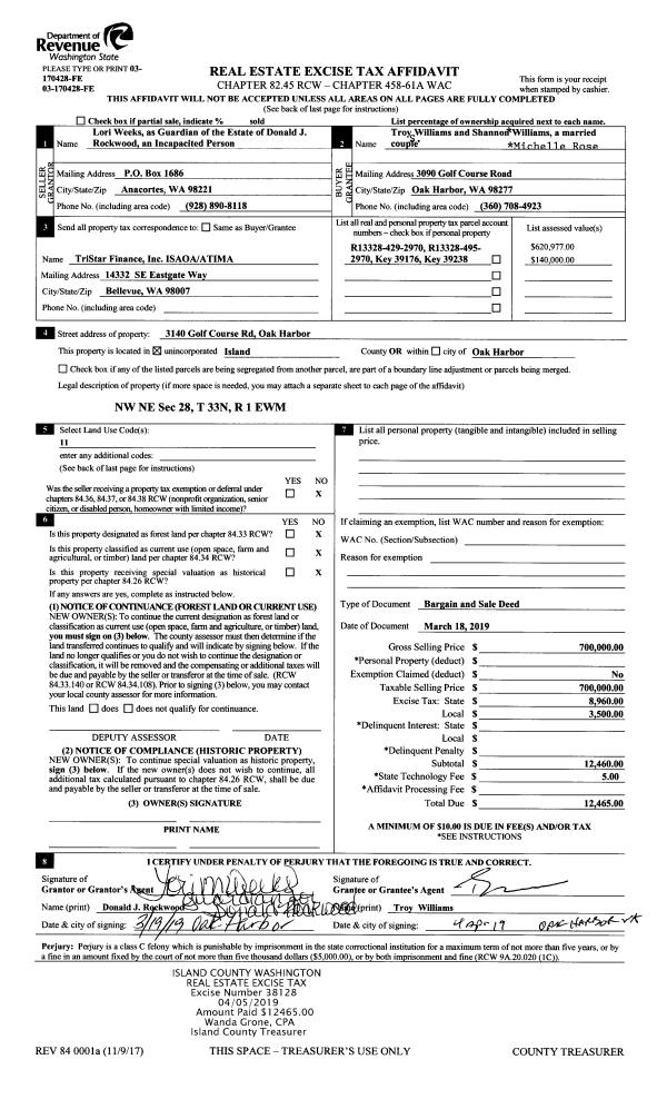
Property
Account |
| Property ID: | 469068 | Abbreviated Legal Description: | W/2 S/2 N/2 SW SW EX HWY FR 087-0690 |
| Geographic ID: | R23028-080-0350 | Agent Code: | |
| Type: | Real | | |
| Tax Area: | 312 - APPRAISER-Cpvl Schl Dist, outside Cpvl, improved, greater than 1 acre | Land Use Code | 11 |
| Open Space: | N | DFL | N |
| Historic Property: | N | Remodel Property: | N |
| Multi-Family Redevelopment: | N | | |
| Township: | 30 | Section: | 28 |
| Range: | R2 |
Location |
| Address: | 4358 ANGELINA CT FREELAND, WA 98249 | Mapsco: | |
| Neighborhood: | Cycle 3 | Map ID: | 421 |
| Neighborhood CD: | 3 |
Owner |
| Name: | MOVASAGI, AMIR | Owner ID: | 269329 |
| Mailing Address: | PO BOX 576 FREELAND, WA 98249 | % Ownership: | 100.0000000000% |
| | | Exemptions: | |
Taxes and Assessment Details
Values
| (+) Improvement Homesite Value: | + | $0 | |
| (+) Improvement Non-Homesite Value: | + | $411,304 | |
| (+) Land Homesite Value: | + | $0 | |
| (+) Land Non-Homesite Value: | + | $350,000 | |
| (+) Curr Use (HS): | + | $0 | $0 |
| (+) Curr Use (NHS): | + | $0 | $0 |
| | | -------------------------- | |
| (=) Market Value: | = | $761,304 | |
| (–) Productivity Loss: | – | $0 | |
| | | -------------------------- | |
| (=) Subtotal: | = | $761,304 | |
| (+) Senior Appraised Value: | + | $0 | |
| (+) Non-Senior Appraised Value: | + | $761,304 | |
| | | -------------------------- | |
| (=) Total Appraised Value: | = | $761,304 | |
| (–) Senior Exemption Loss: | – | $0 | |
| (–) Exemption Loss: | – | $0 | |
| | | -------------------------- | |
| (=) Taxable Value: | = | $761,304 | |
Taxing Jurisdiction
| Owner: | MOVASAGI, AMIR | | |
| % Ownership: | 100.0000000000% | | |
| Total Value: | $761,304 | | |
| Tax Area: | 312 - APPRAISER-Cpvl Schl Dist, outside Cpvl, improved, greater than 1 acre |
| CF | Conservation Futures | 0.0316035091 | $761,304 | $761,304 | $24.06 | | |
| CEM2 | Cemetery #2 | 0.0095056933 | $761,304 | $761,304 | $7.24 | | |
| FIRE5 | Fire & Rescue Dist #5 C Whidbey GEN | 1.2008080668 | $761,304 | $761,304 | $914.18 | | |
| FIRE5BOND | Fire & Rescue Dist #5 C Whidbey BOND | 0.1400090713 | $761,304 | $761,304 | $106.59 | | |
| HOBOND | Hospital BOND | 0.1910887512 | $761,304 | $761,304 | $145.48 | | |
| HOGEN | Hospital GEN | 0.3902502903 | $761,304 | $761,304 | $297.10 | | |
| CE | County Current Expense | 0.3708482477 | $761,304 | $761,304 | $282.33 | | |
| CR | County Roads | 0.4584763726 | $761,304 | $761,304 | $349.04 | | |
| ISLANDEMS | Hospital GEN (EMS) | 0.5000000000 | $761,304 | $761,304 | $380.65 | | |
| LIB | Library Sno-Isle GEN | 0.3153421757 | $761,304 | $761,304 | $240.07 | | |
| LIBCAP | Library Sno-Isle BOND (Cap Fac Imp Area) | 0.0543427938 | $761,304 | $761,304 | $41.37 | | |
| POCOUP | Port of Coupeville GEN | 0.1093371703 | $761,304 | $761,304 | $83.24 | | |
| POCOUPIDD | Port of Coupeville IDD | 0.3409740022 | $761,304 | $761,304 | $259.58 | | |
| COUPSDTECH | School 204 CP (TECH) | 0.7545480007 | $761,304 | $761,304 | $574.44 | | |
| SCH204MO | School 204 Enrichment | 0.6716186034 | $761,304 | $761,304 | $511.31 | | |
| ST | State School | 1.3035497053 | $761,304 | $761,304 | $992.40 | | |
| ST2 | State School Part 2 | 0.8169543533 | $761,304 | $761,304 | $621.95 | | |
| | Total Tax Rate: | 7.6592568070 | | | | | |
| | | | | Taxes w/Current Exemptions: | $5,831.03 | | |
| | | | | Taxes w/o Exemptions: | $5,831.03 | | |
Improvement / Building
| Improvement #1: | RESIDENTIAL | State Code: | Y | 1604.0 sqft | Value: | $411,304 |
| Bathrooms: | 2 | Bedrooms: | 2 | | Ceiling: | DRYWALL PAINTED | Cooling: | HEAT PUMP/CONV/V | | Exterior Wall/Cover: | CEMENT FIBER | Floor Covering: | VINYL TILE | | Floor Structure: | SLAB ON GRADE | Foundation: | SLAB | | Interior Finish: | DRYWALL PAINT | Plumbing Fixture Cnt: | 11 | | Roof Slope: | 6" IN 12" | Roof Structure/Cover: | CJ ALUMINIUM HEAVY |
|
| | Type | Description | Class CD | Sub Class CD | Year Built | Area |
| | BAS | BASE/MAIN FLOOR | 3 | 0 | 2022 | 1604.0 |
| | OP1 | OPEN PORCH SLAB | 3 | 0 | 2022 | 148.0 |
| | OP4 | OPEN PORCH W/CEILING-ROOF | 3 | 0 | 2022 | 352.0 |
| | OP3 | OPEN PORCH W/ROOF | 3 | 0 | 2022 | 78.0 |
| | DGR | DETACHED GARAGE | 3 | 0 | 2022 | 1196.0 |
| | OCP | OPEN CARPORT | 3 | 0 | 2022 | 552.0 |
Sketch
Property Image
Land
| 1 | 32 | AC (03.01-09.99) | 4.8900 | 0.00 | 0.00 | 0.00 | 1.00 | $350,000 | $0 |
Roll Value History
| 2026 | N/A | N/A | N/A | N/A | N/A |
| 2025 | $411,304 | $350,000 | $0 | $761,304 | $761,304 |
| 2024 | $415,621 | $340,000 | $0 | $755,621 | $755,621 |
| 2023 | $423,178 | $320,000 | $0 | $743,178 | $743,178 |
| 2022 | $390,995 | $260,000 | $0 | $650,995 | $650,995 |
| 2021 | $305,995 | $230,000 | $0 | $535,995 | $535,995 |
| 2020 | $7,176 | $90,000 | $0 | $97,176 | $97,176 |
| 2019 | $0 | $120,000 | $0 | $120,000 | $120,000 |
| 2018 | $0 | $85,000 | $0 | $85,000 | $85,000 |
| 2017 | $0 | $75,000 | $0 | $75,000 | $75,000 |
| 2016 | $0 | $100,000 | $0 | $100,000 | $100,000 |
| 2015 | $0 | $100,000 | $0 | $100,000 | $100,000 |
| 2014 | $0 | $100,000 | $0 | $100,000 | $100,000 |
| 2013 | $0 | $97,800 | $0 | $97,800 | $97,800 |
| 2012 | $0 | $97,800 | $0 | $97,800 | $97,800 |
| 2011 | $0 | $97,800 | $0 | $97,800 | $97,800 |
| 2010 | $0 | $97,800 | $0 | $97,800 | $97,800 |
| 2009 | $0 | $151,320 | $0 | $151,320 | $151,320 |
| 2008 | $0 | $146,813 | $0 | $146,813 | $146,813 |
| 2007 | $0 | $122,250 | $0 | $122,250 | $122,250 |
Deed and Sales History
| 1 | 06/19/2019 | WD | Warranty Deed | MARTIN, JAMES K | MOVASAGI, AMIR | | | $121,500.00 | 39103 | 4465914 |
| 2 | 08/02/2007 | WD | Warranty Deed | EVERGREEN FARMS GROUP INC, | MARTIN, JAMES K | | | $165,000.00 | 72642 | 4208771 |
| 3 | 03/21/2005 | WD | Warranty Deed | WATERMAN, ENTERPRISES I | EVERGREEN FARMS GROUP INC, | | | $65,000.00 | 51462 | 4130617 |
| 4 | 01/01/1995 | OTHER | Other - Misc. Documents | WATERMAN, FAMILY L | WATERMAN, ENTERPRISES I | | | $0.00 | 66203 | 0 |
| 5 | 08/01/1989 | QCD | Quit Claim Deed | WATERMAN, MARGARET E | WATERMAN, FAMILY L | | | $0.00 | 93522 | 89011849 |
| 6 | 12/01/1986 | WD | Warranty Deed | WATERMAN, LOGGING C | WATERMAN, MARGARET E | | | $0.00 | 63679 | 86016495 |
| 7 | 06/01/1984 | WD | Warranty Deed | MEISENHOLDER, ROBERT | WATERMAN, LOGGING C | | | $17,500.00 | 41825 | 0 |
| 8 | 08/01/1979 | CD | DNU - Correction Deed | MEISENHOLDER, ROBERT | MEISENHOLDER, ROBERT | | | $0.00 | 94148 | 357749 |
| 9 | 01/01/1900 | OTHER | Other - Misc. Documents | Unknown | MEISENHOLDER, ROBERT | | | $0.00 | 0 | 0 |
Payout Agreement
| No payout information available.. |