Property
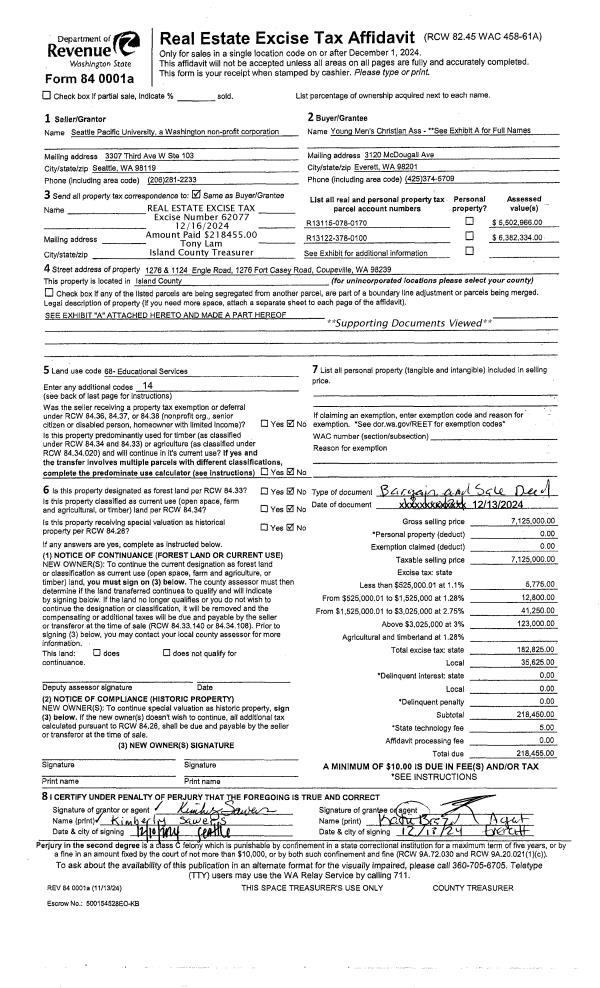
Account |
| Property ID: | 469718 | Abbreviated Legal Description: | TR C - SP 78-6 S110' OF N/2 N/2 GL2 EX RD INCL ADJ TIDES TGW SUB EZS FR 249 3020 |
| Geographic ID: | R23034-238-3000 | Agent Code: | |
| Type: | Real | | |
| Tax Area: | 312 - APPRAISER-Cpvl Schl Dist, outside Cpvl, improved, greater than 1 acre | Land Use Code | 11 |
| Open Space: | N | DFL | N |
| Historic Property: | N | Remodel Property: | N |
| Multi-Family Redevelopment: | N | | |
| Township: | 30 | Section: | 34 |
| Range: | R2 |
Location |
| Address: | 4605 HONEYMOON BAY RD GREENBANK, WA 98253 | Mapsco: | |
| Neighborhood: | Cycle 3 | Map ID: | 440 |
| Neighborhood CD: | 3 |
Owner |
| Name: | EISENBREY, GLEN T | Owner ID: | 256931 |
| Mailing Address: | SHANNON O'PHELAN 4605 HONEYMOON BAY RD GREENBANK, WA 98253 | % Ownership: | 100.0000000000% |
| | | Exemptions: | |
Taxes and Assessment Details
Values
| (+) Improvement Homesite Value: | + | $0 | |
| (+) Improvement Non-Homesite Value: | + | $297,249 | |
| (+) Land Homesite Value: | + | $0 | |
| (+) Land Non-Homesite Value: | + | $726,100 | |
| (+) Curr Use (HS): | + | $0 | $0 |
| (+) Curr Use (NHS): | + | $0 | $0 |
| | | -------------------------- | |
| (=) Market Value: | = | $1,023,349 | |
| (–) Productivity Loss: | – | $0 | |
| | | -------------------------- | |
| (=) Subtotal: | = | $1,023,349 | |
| (+) Senior Appraised Value: | + | $0 | |
| (+) Non-Senior Appraised Value: | + | $1,023,349 | |
| | | -------------------------- | |
| (=) Total Appraised Value: | = | $1,023,349 | |
| (–) Senior Exemption Loss: | – | $0 | |
| (–) Exemption Loss: | – | $0 | |
| | | -------------------------- | |
| (=) Taxable Value: | = | $1,023,349 | |
Taxing Jurisdiction
| Owner: | EISENBREY, GLEN T | | |
| % Ownership: | 100.0000000000% | | |
| Total Value: | $1,023,349 | | |
| Tax Area: | 312 - APPRAISER-Cpvl Schl Dist, outside Cpvl, improved, greater than 1 acre |
| CF | Conservation Futures | 0.0316035091 | $1,023,349 | $1,023,349 | $32.34 | | |
| CEM2 | Cemetery #2 | 0.0095056933 | $1,023,349 | $1,023,349 | $9.73 | | |
| FIRE5 | Fire & Rescue Dist #5 C Whidbey GEN | 1.2008080668 | $1,023,349 | $1,023,349 | $1,228.85 | | |
| FIRE5BOND | Fire & Rescue Dist #5 C Whidbey BOND | 0.1400090713 | $1,023,349 | $1,023,349 | $143.28 | | |
| HOBOND | Hospital BOND | 0.1910887512 | $1,023,349 | $1,023,349 | $195.55 | | |
| HOGEN | Hospital GEN | 0.3902502903 | $1,023,349 | $1,023,349 | $399.36 | | |
| CE | County Current Expense | 0.3708482477 | $1,023,349 | $1,023,349 | $379.51 | | |
| CR | County Roads | 0.4584763726 | $1,023,349 | $1,023,349 | $469.18 | | |
| ISLANDEMS | Hospital GEN (EMS) | 0.5000000000 | $1,023,349 | $1,023,349 | $511.67 | | |
| LIB | Library Sno-Isle GEN | 0.3153421757 | $1,023,349 | $1,023,349 | $322.71 | | |
| LIBCAP | Library Sno-Isle BOND (Cap Fac Imp Area) | 0.0543427938 | $1,023,349 | $1,023,349 | $55.61 | | |
| POCOUP | Port of Coupeville GEN | 0.1093371703 | $1,023,349 | $1,023,349 | $111.89 | | |
| POCOUPIDD | Port of Coupeville IDD | 0.3409740022 | $1,023,349 | $1,023,349 | $348.94 | | |
| COUPSDTECH | School 204 CP (TECH) | 0.7545480007 | $1,023,349 | $1,023,349 | $772.17 | | |
| SCH204MO | School 204 Enrichment | 0.6716186034 | $1,023,349 | $1,023,349 | $687.30 | | |
| ST | State School | 1.3035497053 | $1,023,349 | $1,023,349 | $1,333.99 | | |
| ST2 | State School Part 2 | 0.8169543533 | $1,023,349 | $1,023,349 | $836.03 | | |
| | Total Tax Rate: | 7.6592568070 | | | | | |
| | | | | Taxes w/Current Exemptions: | $7,838.11 | | |
| | | | | Taxes w/o Exemptions: | $7,838.11 | | |
Improvement / Building
| Improvement #1: | RESIDENTIAL | State Code: | Y | 1464.0 sqft | Value: | $297,249 |
| Bathrooms: | 2.5 | Bedrooms: | 1 | | Ceiling: | TONGUE & GROOVE | Exterior Wall/Cover: | SHINGLE | | Floor Covering: | HARDWOOD 100% | Floor Structure: | WOOD W/SUBFLOOR | | Foundation: | WOOD BLOCKS | Heating: | BASEBOARD ELECTRIC | | Interior Finish: | DRYWALL PAINT | Plumbing Fixture Cnt: | 12 | | Roof Slope: | 10" IN 12" | Roof Structure/Cover: | CJ ASPHALT |
|
| | Type | Description | Class CD | Sub Class CD | Year Built | Area |
| | BAS | BASE/MAIN FLOOR | 3 | 0 | 1999 | 764.0 |
| | UB8 | BASEMENT UNFINISHED 8" | 3 | 0 | 1999 | 500.0 |
| | UPS | UPPER STORY | 3 | 0 | 1999 | 700.0 |
| | OWP | OPEN WOOD PORCH W/STEPS | 3 | 0 | 1999 | 290.0 |
| | OWP | OPEN WOOD PORCH W/STEPS | 3 | 0 | 1999 | 65.0 |
| | OWR | OPEN WOOD PORCH W/STEPS/ROOF | 3 | 0 | 1999 | 90.0 |
| | OWR | OPEN WOOD PORCH W/STEPS/ROOF | 3 | 0 | 1999 | 35.0 |
| | oPOL | POLE BARN | 3 | 0 | 1999 | 35.0 |
Sketch
Property Image
Land
| 1 | HB | HIGH BLUFF | 1.6700 | 72745.20 | 110.00 | 0.00 | 1.00 | $725,000 | $0 |
| 2 | 55 | TIDES | 0.0000 | 0.00 | 110.00 | 0.00 | 1.00 | $1,100 | $0 |
Roll Value History
| 2026 | N/A | N/A | N/A | N/A | N/A |
| 2025 | $297,249 | $726,100 | $0 | $1,023,349 | $1,023,349 |
| 2024 | $306,020 | $676,100 | $0 | $982,120 | $982,120 |
| 2023 | $124,597 | $626,100 | $0 | $750,697 | $750,697 |
| 2022 | $116,310 | $626,100 | $0 | $742,410 | $742,410 |
| 2021 | $105,377 | $401,100 | $0 | $506,477 | $506,477 |
| 2020 | $248,342 | $351,100 | $0 | $599,442 | $599,442 |
| 2019 | $187,044 | $436,100 | $0 | $623,144 | $623,144 |
| 2018 | $187,524 | $351,100 | $0 | $538,624 | $538,624 |
| 2017 | $188,487 | $251,100 | $0 | $439,587 | $439,587 |
| 2016 | $190,410 | $251,100 | $0 | $441,510 | $441,510 |
| 2015 | $192,334 | $251,100 | $0 | $443,434 | $443,434 |
| 2014 | $194,257 | $251,100 | $0 | $445,357 | $445,357 |
| 2013 | $220,069 | $270,199 | $0 | $490,268 | $490,268 |
| 2012 | $222,207 | $270,199 | $0 | $492,406 | $492,406 |
| 2011 | $224,340 | $270,199 | $0 | $494,539 | $494,539 |
| 2010 | $233,111 | $270,199 | $0 | $503,310 | $503,310 |
| 2009 | $243,600 | $337,473 | $0 | $581,073 | $581,073 |
| 2008 | $241,168 | $333,042 | $0 | $574,210 | $574,210 |
| 2007 | $220,241 | $336,703 | $0 | $556,944 | $556,944 |
Deed and Sales History
| 1 | 09/29/1999 | QCD | Quit Claim Deed | EISENBREY, GLEN T | EISENBREY, GLEN T | | | $0.00 | 94159 | 99022764 |
| 2 | 02/01/1988 | WD | Warranty Deed | WASHINGTON, MUTUAL S | EISENBREY, GLEN T | | | $62,100.00 | 80411 | 88001727 |
| 3 | 04/01/1986 | WD | Warranty Deed | GIBLIN, GARY S | WASHINGTON, MUTUAL S | | | $0.00 | 61665 | 86007856 |
| 4 | 08/01/1985 | WD | Warranty Deed | BRZUSEK, DANIEL A | GIBLIN, GARY S | | | $84,500.00 | 52345 | 85009273 |
| 5 | 07/01/1985 | QCD | Quit Claim Deed | BRZUSEK, DANIEL A | BRZUSEK, DANIEL A | | | $0.00 | 52346 | 85009275 |
| 6 | 07/01/1980 | EZ | Easement | WEAVER, Z G | BRZUSEK, DANIEL A | | | $73,000.00 | 2623 | 372102 |
| 7 | 03/01/1979 | EXECUTORD | Executor Deed | HOCHFELD, M D | WEAVER, Z G | | | $61,000.00 | 91354 | 349736 |
| 8 | 01/01/1900 | OTHER | Other - Misc. Documents | Unknown | HOCHFELD, M D | | | $0.00 | 0 | 0 |
| 9 | 01/01/1900 | OTHER | Other - Misc. Documents | EISENBREY, GLEN T | EISENBREY, GLEN T | | | $0.00 | 0 | 0 |
Payout Agreement
| No payout information available.. |