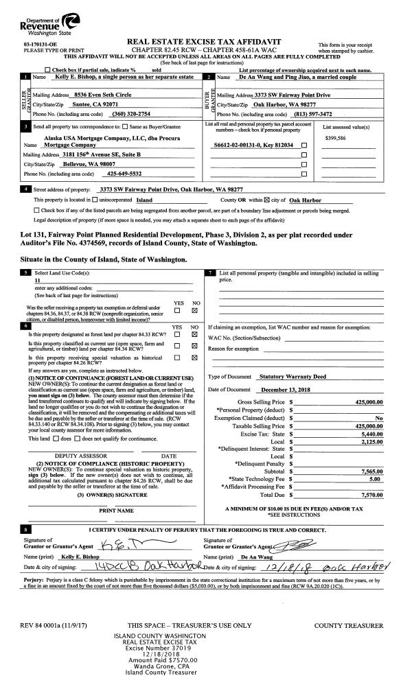
Property
Account |
| Property ID: | 470591 | Abbreviated Legal Description: | IN SUMNER DLC BG SE CR OF WITCHER ADD N330' TPB N350' S89*E330' S650' N89*W72' N300' N89*W258' TPB TGW EZ FR 094-0530 (TR A OH SP 3-79 V4 SUR P365 AF#349242) EZ TO CITY OH AF#93007312 |
| Geographic ID: | R13335-115-0500 | Agent Code: | |
| Type: | Real | | |
| Tax Area: | 100 - APPRAISER-OH Schl Dist, in OH | Land Use Code | 13 |
| Open Space: | N | DFL | N |
| Historic Property: | N | Remodel Property: | N |
| Multi-Family Redevelopment: | N | | |
| Township: | 33 | Section: | 35 |
| Range: | R1 |
Location |
| Address: | 135 NE BARRON ST OAK HARBOR, WA 98277 | Mapsco: | |
| Neighborhood: | 4BcOH-oak harbor | Map ID: | 256 |
| Neighborhood CD: | 4BcOHoharb |
Owner |
| Name: | SAG PRESERVATION PORTFOLIO | Owner ID: | 288138 |
| Mailing Address: | 2223 112TH AVE NE, STE #102 BELLEVUE, WA 98004 | % Ownership: | 100.0000000000% |
| | | Exemptions: | EX |
Taxes and Assessment Details
Values
| (+) Improvement Homesite Value: | + | $0 | |
| (+) Improvement Non-Homesite Value: | + | $2,500,784 | |
| (+) Land Homesite Value: | + | $0 | |
| (+) Land Non-Homesite Value: | + | $4,111,800 | |
| (+) Curr Use (HS): | + | $0 | $0 |
| (+) Curr Use (NHS): | + | $0 | $0 |
| | | -------------------------- | |
| (=) Market Value: | = | $6,612,584 | |
| (–) Productivity Loss: | – | $0 | |
| | | -------------------------- | |
| (=) Subtotal: | = | $6,612,584 | |
| (+) Senior Appraised Value: | + | $0 | |
| (+) Non-Senior Appraised Value: | + | $6,612,584 | |
| | | -------------------------- | |
| (=) Total Appraised Value: | = | $6,612,584 | |
| (–) Senior Exemption Loss: | – | $0 | |
| (–) Exemption Loss: | – | $6,612,584 | |
| | | -------------------------- | |
| (=) Taxable Value: | = | $0 | |
Taxing Jurisdiction
| Owner: | SAG PRESERVATION PORTFOLIO | | |
| % Ownership: | 100.0000000000% | | |
| Total Value: | $6,612,584 | | |
| Tax Area: | 100 - APPRAISER-OH Schl Dist, in OH |
| CF | Conservation Futures | 0.0316035091 | $6,612,584 | $0 | $0.00 | | |
| CEM1 | Cemetery #1 | 0.0040320932 | $6,612,584 | $0 | $0.00 | | |
| COH | City of Oak Harbor | 2.3001546061 | $6,612,584 | $0 | $0.00 | | |
| OAKBOND | City of Oak Harbor BOND | 0.1926904192 | $6,612,584 | $0 | $0.00 | | |
| HOBOND | Hospital BOND | 0.1910887512 | $6,612,584 | $0 | $0.00 | | |
| HOGEN | Hospital GEN | 0.3902502903 | $6,612,584 | $0 | $0.00 | | |
| CE | County Current Expense | 0.3708482477 | $6,612,584 | $0 | $0.00 | | |
| ISLANDEMS | Hospital GEN (EMS) | 0.5000000000 | $6,612,584 | $0 | $0.00 | | |
| LIB | Library Sno-Isle GEN | 0.3153421757 | $6,612,584 | $0 | $0.00 | | |
| NWHIDPRMT | P & R N Whidbey GEN | 0.2004466701 | $6,612,584 | $0 | $0.00 | | |
| SCH201MO | School 201 Enrichment | 1.8559231640 | $6,612,584 | $0 | $0.00 | | |
| ST | State School | 1.3035497053 | $6,612,584 | $0 | $0.00 | | |
| ST2 | State School Part 2 | 0.8169543533 | $6,612,584 | $0 | $0.00 | | |
| | Total Tax Rate: | 8.4728839852 | | | | | |
| | | | | Taxes w/Current Exemptions: | $0.00 | | |
| | | | | Taxes w/o Exemptions: | $56,027.66 | | |
Improvement / Building
| Improvement #1: | COMMERCIAL | State Code: | A1 | 3588.0 sqft | Value: | $368,667 |
| Bathrooms: | 14 | Bedrooms: | 0 | | Ceiling: | DRYWALL PAINTED | Exterior Wall/Cover: | VINYL | | Floor Covering: | CARPET/VINYL 80-20 | Floor Structure: | SLAB ON GRADE | | Foundation: | CONCRETE | Heating: | BASEBOARD ELECTRIC | | Interior Finish: | DRYWALL PAINT | Plumbing Fixture Cnt: | 66 | | Roof Slope: | 4" IN 12" | Roof Structure/Cover: | CJ ASPHALT |
|
| | Type | Description | Class CD | Sub Class CD | Year Built | Area |
| | BAS | BASE/MAIN FLOOR | 3 | 0 | 1997 | 3588.0 |
| | OP3 | OPEN PORCH W/ROOF | 3 | 0 | 1997 | 84.0 |
| | OP3 | OPEN PORCH W/ROOF | 3 | 0 | 1997 | 84.0 |
| | OP1 | OPEN PORCH SLAB | 3 | 0 | 1997 | 33.0 |
| | OP1 | OPEN PORCH SLAB | 3 | 0 | 1997 | 100.0 |
| | OP3 | OPEN PORCH W/ROOF | 3 | 0 | 1997 | 504.0 |
| | UTY | STORAGE/UTILITY | 3 | 0 | 1997 | 120.0 |
| | UTY | STORAGE/UTILITY | 3 | 0 | 1997 | 21.0 |
| | UTY | STORAGE/UTILITY | 3 | 0 | 1997 | 32.0 |
| | UTY | STORAGE/UTILITY | 3 | 0 | 1997 | 27.0 |
| | UTY | STORAGE/UTILITY | 3 | 0 | 1997 | 36.0 |
| | OWP | OPEN WOOD PORCH W/STEPS | 3 | 0 | 1997 | 33.0 |
| | OWP | OPEN WOOD PORCH W/STEPS | 3 | 0 | 1997 | 100.0 |
| | OWP | OPEN WOOD PORCH W/STEPS | 3 | 0 | 1997 | 504.0 |
| | oCAR | CARPORT | 3 | 0 | 1997 | 0.0 |
| | OWP | OPEN WOOD PORCH W/STEPS | 3 | 0 | 1997 | 84.0 |
| | OWP | OPEN WOOD PORCH W/STEPS | 3 | 0 | 1997 | 84.0 |
| Improvement #2: | COMMERCIAL | State Code: | A1 | 2707.0 sqft | Value: | $145,957 |
| Bathrooms: | 0 | Bedrooms: | 0 | | Ceiling: | DRYWALL PAINTED | Exterior Wall/Cover: | STUCO/WD OR ST STUDS | | Floor Structure: | CONCRETE ON GROUND | Foundation: | CONCRETE | | Heating: | BASEBOARD ELECTRIC | Interior Finish: | FRATERNAL | | Plumbing Fixture Cnt: | 1 | Roof Slope: | 5" IN 12" | | Roof Structure/Cover: | COMP OPEN WOOD |   |   |
|
| | Type | Description | Class CD | Sub Class CD | Year Built | Area |
| | BAS | BASE/MAIN FLOOR | 3 | 0 | 1997 | 2707.0 |
| | OP4 | OPEN PORCH W/CEILING-ROOF | 3 | 0 | 1997 | 21.0 |
| | OP4 | OPEN PORCH W/CEILING-ROOF | 3 | 0 | 1997 | 190.0 |
| | oCAR | CARPORT | 3 | 0 | 1997 | 0.0 |
| | oLIT | LITE POLE | 3 | 0 | 1997 | 0.0 |
| | OP4 | OPEN PORCH W/CEILING-ROOF | 3 | 0 | 1997 | 64.0 |
| Improvement #3: | COMMERCIAL | State Code: | A1 | 2202.0 sqft | Value: | $896,585 |
| Bathrooms: | 30 | Bedrooms: | 0 | | Ceiling: | DRYWALL PAINTED | Exterior Wall/Cover: | VINYL | | Floor Covering: | CARPET/VINYL 80-20 | Floor Structure: | SLAB ON GRADE | | Foundation: | CONCRETE | Heating: | BASEBOARD ELECTRIC | | Interior Finish: | DRYWALL PAINT | Plumbing Fixture Cnt: | 135 | | Roof Slope: | 5" IN 12" | Roof Structure/Cover: | CJ ASPHALT |
|
| | Type | Description | Class CD | Sub Class CD | Year Built | Area |
| | BAS | BASE/MAIN FLOOR | 3 | 0 | 1997 | 2202.0 |
| | OP1 | OPEN PORCH SLAB | 3 | 0 | 1997 | 100.0 |
| | OP1 | OPEN PORCH SLAB | 3 | 0 | 1997 | 878.0 |
| | UTY | STORAGE/UTILITY | 3 | 0 | 1997 | 64.0 |
| | UTY | STORAGE/UTILITY | 3 | 0 | 1997 | 64.0 |
| | UTY | STORAGE/UTILITY | 3 | 0 | 1997 | 64.0 |
| | OWP | OPEN WOOD PORCH W/STEPS | 3 | 0 | 1997 | 100.0 |
| | OWP | OPEN WOOD PORCH W/STEPS | 3 | 0 | 1997 | 878.0 |
| | OWP | OPEN WOOD PORCH W/STEPS | 3 | 0 | 1997 | 100.0 |
| | OWP | OPEN WOOD PORCH W/STEPS | 3 | 0 | 1997 | 100.0 |
| | OWC | OPEN WOOD PORCH W/STEPS/ROOF/C | 3 | 0 | 1997 | 878.0 |
| | OWC | OPEN WOOD PORCH W/STEPS/ROOF/C | 3 | 0 | 1997 | 88.0 |
| | OWC | OPEN WOOD PORCH W/STEPS/ROOF/C | 3 | 0 | 1997 | 88.0 |
| | oCAR | CARPORT | 3 | 0 | 1997 | 0.0 |
| | oCAR | CARPORT | 3 | 0 | 1997 | 0.0 |
| | oCAR | CARPORT | 3 | 0 | 1997 | 0.0 |
| Improvement #4: | COMMERCIAL | State Code: | A1 | 3217.0 sqft | Value: | $176,563 |
| Bathrooms: | 8 | Bedrooms: | 0 | | Ceiling: | DRYWALL PAINTED | Exterior Wall/Cover: | VINYL | | Floor Covering: | CARPET/VINYL 80-20 | Floor Structure: | SLAB ON GRADE | | Foundation: | CONCRETE | Heating: | BASEBOARD ELECTRIC | | Interior Finish: | DRYWALL PAINT | Plumbing Fixture Cnt: | 48 | | Roof Slope: | 5" IN 12" | Roof Structure/Cover: | CJ ASPHALT |
|
| | Type | Description | Class CD | Sub Class CD | Year Built | Area |
| | BAS | BASE/MAIN FLOOR | 3 | 0 | 1997 | 3217.0 |
| | OP1 | OPEN PORCH SLAB | 3 | 0 | 1997 | 91.0 |
| | OP1 | OPEN PORCH SLAB | 3 | 0 | 1997 | 49.0 |
| | OP3 | OPEN PORCH W/ROOF | 3 | 0 | 1997 | 160.0 |
| | OP3 | OPEN PORCH W/ROOF | 3 | 0 | 1997 | 160.0 |
| | OP4 | OPEN PORCH W/CEILING-ROOF | 3 | 0 | 1997 | 49.0 |
| | OWP | OPEN WOOD PORCH W/STEPS | 3 | 0 | 1997 | 49.0 |
| | OWP | OPEN WOOD PORCH W/STEPS | 3 | 0 | 1997 | 91.0 |
| | OWP | OPEN WOOD PORCH W/STEPS | 3 | 0 | 1997 | 49.0 |
| | OWP | OPEN WOOD PORCH W/STEPS | 3 | 0 | 1997 | 96.0 |
| | OWP | OPEN WOOD PORCH W/STEPS | 3 | 0 | 1997 | 96.0 |
| Improvement #5: | COMMERCIAL | State Code: | A1 | 2024.3 sqft | Value: | $729,342 |
| Bathrooms: | 25 | Bedrooms: | 0 | | Ceiling: | DRYWALL PAINTED | Exterior Wall/Cover: | VINYL | | Floor Covering: | CARPET/VINYL 80-20 | Floor Structure: | SLAB ON GRADE | | Foundation: | CONCRETE | Heating: | BASEBOARD ELECTRIC | | Interior Finish: | DRYWALL PAINT | Plumbing Fixture Cnt: | 126 | | Roof Slope: | 4" IN 12" | Roof Structure/Cover: | CJ ASPHALT |
|
| | Type | Description | Class CD | Sub Class CD | Year Built | Area |
| | BAS | BASE/MAIN FLOOR | 3 | 0 | 1997 | 2024.3 |
| | OP1 | OPEN PORCH SLAB | 3 | 0 | 1997 | 100.0 |
| | OP1 | OPEN PORCH SLAB | 3 | 0 | 1997 | 550.0 |
| | OP1 | OPEN PORCH SLAB | 3 | 0 | 1997 | 100.0 |
| | UTY | STORAGE/UTILITY | 3 | 0 | 1997 | 24.0 |
| | UTY | STORAGE/UTILITY | 3 | 0 | 1997 | 32.0 |
| | UTY | STORAGE/UTILITY | 3 | 0 | 1997 | 24.0 |
| | UTY | STORAGE/UTILITY | 3 | 0 | 1997 | 24.0 |
| | UTY | STORAGE/UTILITY | 3 | 0 | 1997 | 32.0 |
| | UTY | STORAGE/UTILITY | 3 | 0 | 1997 | 32.0 |
| | OWP | OPEN WOOD PORCH W/STEPS | 3 | 0 | 1997 | 546.7 |
| | OWP | OPEN WOOD PORCH W/STEPS | 3 | 0 | 1997 | 100.0 |
| | OWP | OPEN WOOD PORCH W/STEPS | 3 | 0 | 1997 | 100.0 |
| | OWC | OPEN WOOD PORCH W/STEPS/ROOF/C | 3 | 0 | 1997 | 552.4 |
| | OWC | OPEN WOOD PORCH W/STEPS/ROOF/C | 3 | 0 | 1997 | 100.0 |
| | OWC | OPEN WOOD PORCH W/STEPS/ROOF/C | 3 | 0 | 1997 | 100.0 |
| | oCAR | CARPORT | 3 | 0 | 1997 | 0.0 |
| Improvement #6: | COMMERCIAL | State Code: | A1 | 1774.0 sqft | Value: | $183,670 |
| Bathrooms: | 4 | Bedrooms: | 0 | | Ceiling: | DRYWALL PAINTED | Exterior Wall/Cover: | VINYL | | Floor Covering: | CARPET/VINYL 80-20 | Floor Structure: | WOOD W/SUBFLOOR | | Foundation: | CONCRETE | Heating: | BASEBOARD ELECTRIC | | Interior Finish: | DRYWALL PAINT | Plumbing Fixture Cnt: | 24 | | Roof Slope: | 4" IN 12" | Roof Structure/Cover: | CJ ASPHALT |
|
| | Type | Description | Class CD | Sub Class CD | Year Built | Area |
| | BAS | BASE/MAIN FLOOR | 3 | 0 | 1997 | 1774.0 |
| | OP1 | OPEN PORCH SLAB | 3 | 0 | 1997 | 49.0 |
| | OP1 | OPEN PORCH SLAB | 3 | 0 | 1997 | 49.0 |
| | OP3 | OPEN PORCH W/ROOF | 3 | 0 | 1997 | 160.0 |
| | OWP | OPEN WOOD PORCH W/STEPS | 3 | 0 | 1997 | 96.0 |
| | OWP | OPEN WOOD PORCH W/STEPS | 3 | 0 | 1997 | 49.0 |
| | OWP | OPEN WOOD PORCH W/STEPS | 3 | 0 | 1997 | 49.0 |
Sketch
Property Image
Land
| 1 | 61 | MULTIPLE RESIDENCES | 3.1465 | 137060.00 | 0.00 | 0.00 | 1.00 | $4,111,800 | $0 |
Roll Value History
| 2026 | N/A | N/A | N/A | N/A | N/A |
| 2025 | $2,500,784 | $4,111,800 | $0 | $6,612,584 | $0 |
| 2024 | $2,567,742 | $4,111,800 | $0 | $6,679,542 | $0 |
| 2023 | $2,603,407 | $4,111,800 | $0 | $6,715,207 | $0 |
| 2022 | $2,072,077 | $4,111,800 | $0 | $6,183,877 | $0 |
| 2021 | $2,037,614 | $4,111,800 | $0 | $6,149,414 | $0 |
| 2020 | $2,035,821 | $4,111,800 | $0 | $6,147,621 | $0 |
| 2019 | $1,878,200 | $4,111,800 | $0 | $5,990,000 | $0 |
| 2018 | $1,950,087 | $437,392 | $0 | $2,387,479 | $0 |
| 2017 | $1,962,100 | $441,396 | $0 | $2,403,496 | $2,403,496 |
| 2016 | $1,962,857 | $441,396 | $0 | $2,404,253 | $2,404,253 |
| 2015 | $1,999,096 | $441,396 | $0 | $2,440,492 | $2,440,492 |
| 2014 | $830,949 | $441,396 | $0 | $1,272,345 | $1,272,345 |
| 2013 | $830,949 | $441,396 | $0 | $1,272,345 | $1,272,345 |
| 2012 | $830,949 | $441,396 | $0 | $1,272,345 | $1,272,345 |
| 2011 | $830,949 | $441,396 | $0 | $1,272,345 | $1,272,345 |
| 2010 | $898,232 | $443,156 | $0 | $1,341,388 | $1,341,388 |
| 2009 | $972,608 | $378,236 | $0 | $1,350,844 | $1,350,844 |
| 2008 | $1,062,630 | $282,471 | $0 | $1,345,101 | $1,345,101 |
| 2007 | $2,411,278 | $392,534 | $0 | $2,803,812 | $2,803,812 |
Deed and Sales History
| 1 | 12/06/2018 | BARGSLD | Bargain And Sale Deed | OAK BAY STATION ASSOCIATES | SAG PRESERVATION PORTFOLIO | | | $5,059,957.00 | 36900 | 4456099 |
|   | |
| 2 | 11/01/1995 | WD | Warranty Deed | LANGE, RICHARD J | OAK, BAY S | | | $400,000.00 | 54242 | 95019581 |
| 3 | 05/01/1990 | WD | Warranty Deed | KRIEG, CONSTRUCTION C | LANGE, RICHARD J | | | $211,000.00 | 2783 | 90009113 |
| 4 | 06/01/1987 | WD | Warranty Deed | NORTH, ISLAND R | KRIEG, CONSTRUCTION C | | | $128,800.00 | 71912 | 87008816 |
| 5 | 06/01/1980 | WD | Warranty Deed | LOFGREN, JAMES A | NORTH, ISLAND R | | | $75,000.00 | 1960 | 369771 |
| 6 | 09/01/1979 | WD | Warranty Deed | MAHLER, GEORGE B | LOFGREN, JAMES A | | | $150,000.00 | 94503 | 358627 |
| 7 | 01/01/1900 | OTHER | Other - Misc. Documents | Unknown | MAHLER, GEORGE B | | | $0.00 | 0 | 0 |
Payout Agreement
| No payout information available.. |