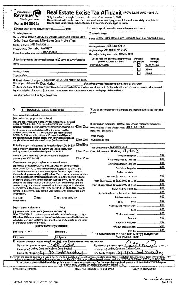
Property
Account |
| Property ID: | 470635 | Abbreviated Legal Description: | E/2 NE NW SW FR231100 |
| Geographic ID: | R13436-230-1200 | Agent Code: | |
| Type: | Real | | |
| Tax Area: | 112 - APPRAISER-OH Schl Dist, outside OH, improved, greater than 1 acre | Land Use Code | 11 |
| Open Space: | N | DFL | N |
| Historic Property: | N | Remodel Property: | N |
| Multi-Family Redevelopment: | N | | |
| Township: | 34 | Section: | 36 |
| Range: | R1 |
Location |
| Address: | 4981 PUGET SOUND LN OAK HARBOR, WA 98277 | Mapsco: | |
| Neighborhood: | Cycle 6 | Map ID: | 277 |
| Neighborhood CD: | 6 |
Owner |
| Name: | ROBBINS, PAUL H | Owner ID: | 150750 |
| Mailing Address: | ROBBINS, LESLEY C 4981 PUGET SOUND LN OAK HARBOR, WA 98277-9766 | % Ownership: | 100.0000000000% |
| | | Exemptions: | |
Taxes and Assessment Details
Values
| (+) Improvement Homesite Value: | + | $0 | |
| (+) Improvement Non-Homesite Value: | + | $380,358 | |
| (+) Land Homesite Value: | + | $0 | |
| (+) Land Non-Homesite Value: | + | $300,000 | |
| (+) Curr Use (HS): | + | $0 | $0 |
| (+) Curr Use (NHS): | + | $0 | $0 |
| | | -------------------------- | |
| (=) Market Value: | = | $680,358 | |
| (–) Productivity Loss: | – | $0 | |
| | | -------------------------- | |
| (=) Subtotal: | = | $680,358 | |
| (+) Senior Appraised Value: | + | $0 | |
| (+) Non-Senior Appraised Value: | + | $680,358 | |
| | | -------------------------- | |
| (=) Total Appraised Value: | = | $680,358 | |
| (–) Senior Exemption Loss: | – | $0 | |
| (–) Exemption Loss: | – | $0 | |
| | | -------------------------- | |
| (=) Taxable Value: | = | $680,358 | |
Taxing Jurisdiction
| Owner: | ROBBINS, PAUL H | | |
| % Ownership: | 100.0000000000% | | |
| Total Value: | $680,358 | | |
| Tax Area: | 112 - APPRAISER-OH Schl Dist, outside OH, improved, greater than 1 acre |
| CF | Conservation Futures | 0.0316035091 | $680,358 | $680,358 | $21.50 | | |
| CEM1 | Cemetery #1 | 0.0040320932 | $680,358 | $680,358 | $2.74 | | |
| FIRE2 | Fire & Rescue Dist #2 N Whidbey GEN | 0.5475949600 | $680,358 | $680,358 | $372.56 | | |
| HOBOND | Hospital BOND | 0.1910887512 | $680,358 | $680,358 | $130.01 | | |
| HOGEN | Hospital GEN | 0.3902502903 | $680,358 | $680,358 | $265.51 | | |
| CE | County Current Expense | 0.3708482477 | $680,358 | $680,358 | $252.31 | | |
| CR | County Roads | 0.4584763726 | $680,358 | $680,358 | $311.93 | | |
| ISLANDEMS | Hospital GEN (EMS) | 0.5000000000 | $680,358 | $680,358 | $340.18 | | |
| LIB | Library Sno-Isle GEN | 0.3153421757 | $680,358 | $680,358 | $214.55 | | |
| NWHIDPRMT | P & R N Whidbey GEN | 0.2004466701 | $680,358 | $680,358 | $136.38 | | |
| SCH201MO | School 201 Enrichment | 1.8559231640 | $680,358 | $680,358 | $1,262.69 | | |
| ST | State School | 1.3035497053 | $680,358 | $680,358 | $886.88 | | |
| ST2 | State School Part 2 | 0.8169543533 | $680,358 | $680,358 | $555.82 | | |
| | Total Tax Rate: | 6.9861102925 | | | | | |
| | | | | Taxes w/Current Exemptions: | $4,753.06 | | |
| | | | | Taxes w/o Exemptions: | $4,753.06 | | |
Improvement / Building
| Improvement #1: | RESIDENTIAL | State Code: | Y | 2681.1 sqft | Value: | $380,358 |
| Bathrooms: | 3 | Bedrooms: | 3 | | Ceiling: | DRYWALL PAINTED | Exterior Wall/Cover: | WOOD SIDING | | Floor Covering: | VINYL/HARDWOOD 80-20 | Floor Structure: | WOOD W/SUBFLOOR | | Foundation: | CONCRETE | Heating: | BASEBOARD ELECTRIC | | Interior Finish: | DRYWALL PAINT | Plumbing Fixture Cnt: | 11 | | Roof Slope: | 12" IN 12" | Roof Structure/Cover: | CJ ASPHALT |
|
| | Type | Description | Class CD | Sub Class CD | Year Built | Area |
| | BAS | BASE/MAIN FLOOR | 3 | 0 | 1974 | 1561.1 |
| | UB8 | BASEMENT UNFINISHED 8" | 3 | 0 | 1974 | 1120.0 |
| | AGR | ATTACHED GARAGE | 3 | 0 | 1974 | 754.0 |
| | UPS | UPPER STORY | 3 | 0 | 1974 | 1120.0 |
| | oLOF | STORAGE LOFT | 3 | 0 | 1974 | 0.0 |
| | oBAR | BARN | 3 | 0 | 1974 | 0.0 |
| | oLOF | STORAGE LOFT | 3 | 0 | 1974 | 0.0 |
Sketch
Property Image
Land
| 1 | 32 | AC (03.01-09.99) | 5.0000 | 217800.00 | 2.50 | 0.00 | 1.00 | $300,000 | $0 |
Roll Value History
| 2026 | N/A | N/A | N/A | N/A | N/A |
| 2025 | $380,358 | $300,000 | $0 | $680,358 | $680,358 |
| 2024 | $393,408 | $280,000 | $0 | $673,408 | $673,408 |
| 2023 | $398,611 | $270,000 | $0 | $668,611 | $668,611 |
| 2022 | $352,181 | $240,000 | $0 | $592,181 | $592,181 |
| 2021 | $311,258 | $175,000 | $0 | $486,258 | $486,258 |
| 2020 | $304,672 | $140,000 | $0 | $444,672 | $444,672 |
| 2019 | $242,149 | $200,000 | $0 | $442,149 | $442,149 |
| 2018 | $242,920 | $175,000 | $0 | $417,920 | $417,920 |
| 2017 | $244,461 | $140,000 | $0 | $384,461 | $384,461 |
| 2016 | $215,748 | $140,000 | $0 | $355,748 | $355,748 |
| 2015 | $219,009 | $120,000 | $0 | $339,009 | $339,009 |
| 2014 | $222,269 | $113,775 | $0 | $336,044 | $336,044 |
| 2013 | $225,531 | $113,775 | $0 | $339,306 | $339,306 |
| 2012 | $228,789 | $119,400 | $0 | $348,189 | $348,189 |
| 2011 | $232,051 | $132,525 | $0 | $364,576 | $364,576 |
| 2010 | $237,824 | $132,525 | $0 | $370,349 | $370,349 |
| 2009 | $248,533 | $132,525 | $0 | $381,058 | $381,058 |
| 2008 | $262,114 | $132,525 | $0 | $394,639 | $394,639 |
| 2007 | $265,887 | $132,525 | $0 | $398,412 | $398,412 |
Deed and Sales History
| 1 | 03/01/1998 | QCD | Quit Claim Deed | ROBBINS, PAUL H | ROBBINS, PAUL H | | | $0.00 | 81083 | 98005988 |
| 2 | 01/01/1900 | OTHER | Other - Misc. Documents | Unknown | ROBBINS, PAUL H | | | $0.00 | 0 | 0 |
Payout Agreement
| No payout information available.. |