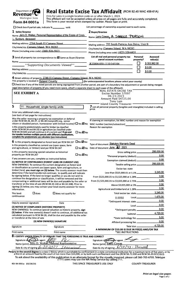
Property
Account |
| Property ID: | 470653 | Abbreviated Legal Description: | W/2 NE NW SW FR 231 1000 |
| Geographic ID: | R13436-230-0850 | Agent Code: | |
| Type: | Real | | |
| Tax Area: | 112 - APPRAISER-OH Schl Dist, outside OH, improved, greater than 1 acre | Land Use Code | 11 |
| Open Space: | N | DFL | N |
| Historic Property: | N | Remodel Property: | N |
| Multi-Family Redevelopment: | N | | |
| Township: | 34 | Section: | 36 |
| Range: | R1 |
Location |
| Address: | 4975 PUGET SOUND LN OAK HARBOR, WA 98277 | Mapsco: | |
| Neighborhood: | Cycle 6 | Map ID: | 277 |
| Neighborhood CD: | 6 |
Owner |
| Name: | TEPASKE, HENRY J / KAREN R | Owner ID: | 72740 |
| Mailing Address: | 4975 PUGET SOUND LN OAK HARBOR, WA 98277-9766 | % Ownership: | 100.0000000000% |
| | | Exemptions: | |
Taxes and Assessment Details
Values
| (+) Improvement Homesite Value: | + | $0 | |
| (+) Improvement Non-Homesite Value: | + | $278,295 | |
| (+) Land Homesite Value: | + | $0 | |
| (+) Land Non-Homesite Value: | + | $300,000 | |
| (+) Curr Use (HS): | + | $0 | $0 |
| (+) Curr Use (NHS): | + | $0 | $0 |
| | | -------------------------- | |
| (=) Market Value: | = | $578,295 | |
| (–) Productivity Loss: | – | $0 | |
| | | -------------------------- | |
| (=) Subtotal: | = | $578,295 | |
| (+) Senior Appraised Value: | + | $0 | |
| (+) Non-Senior Appraised Value: | + | $578,295 | |
| | | -------------------------- | |
| (=) Total Appraised Value: | = | $578,295 | |
| (–) Senior Exemption Loss: | – | $0 | |
| (–) Exemption Loss: | – | $0 | |
| | | -------------------------- | |
| (=) Taxable Value: | = | $578,295 | |
Taxing Jurisdiction
| Owner: | TEPASKE, HENRY J / KAREN R | | |
| % Ownership: | 100.0000000000% | | |
| Total Value: | $578,295 | | |
| Tax Area: | 112 - APPRAISER-OH Schl Dist, outside OH, improved, greater than 1 acre |
| CF | Conservation Futures | 0.0316035091 | $578,295 | $578,295 | $18.28 | | |
| CEM1 | Cemetery #1 | 0.0040320932 | $578,295 | $578,295 | $2.33 | | |
| FIRE2 | Fire & Rescue Dist #2 N Whidbey GEN | 0.5475949600 | $578,295 | $578,295 | $316.67 | | |
| HOBOND | Hospital BOND | 0.1910887512 | $578,295 | $578,295 | $110.51 | | |
| HOGEN | Hospital GEN | 0.3902502903 | $578,295 | $578,295 | $225.68 | | |
| CE | County Current Expense | 0.3708482477 | $578,295 | $578,295 | $214.46 | | |
| CR | County Roads | 0.4584763726 | $578,295 | $578,295 | $265.13 | | |
| ISLANDEMS | Hospital GEN (EMS) | 0.5000000000 | $578,295 | $578,295 | $289.15 | | |
| LIB | Library Sno-Isle GEN | 0.3153421757 | $578,295 | $578,295 | $182.36 | | |
| NWHIDPRMT | P & R N Whidbey GEN | 0.2004466701 | $578,295 | $578,295 | $115.92 | | |
| SCH201MO | School 201 Enrichment | 1.8559231640 | $578,295 | $578,295 | $1,073.27 | | |
| ST | State School | 1.3035497053 | $578,295 | $578,295 | $753.84 | | |
| ST2 | State School Part 2 | 0.8169543533 | $578,295 | $578,295 | $472.44 | | |
| | Total Tax Rate: | 6.9861102925 | | | | | |
| | | | | Taxes w/Current Exemptions: | $4,040.04 | | |
| | | | | Taxes w/o Exemptions: | $4,040.04 | | |
Improvement / Building
| Improvement #1: | RESIDENTIAL | State Code: | Y | 2134.0 sqft | Value: | $278,295 |
| Bathrooms: | 3 | Bedrooms: | 3 | | Ceiling: | DRYWALL PAINTED | Exterior Wall/Cover: | WOOD SIDING | | Floor Covering: | VINYL/HARDWOOD 20-80 | Floor Structure: | WOOD W/SUBFLOOR | | Foundation: | CONCRETE | Heating: | BASEBOARD ELECTRIC | | Interior Finish: | DRYWALL PAINT | Plumbing Fixture Cnt: | 12 | | Roof Slope: | 8" IN 12" | Roof Structure/Cover: | CJ ASPHALT |
|
| | Type | Description | Class CD | Sub Class CD | Year Built | Area |
| | BAS | BASE/MAIN FLOOR | 3 | 0 | 1987 | 1490.0 |
| | OP2 | OPEN PORCH W/STEPS | 3 | 0 | 1987 | 35.0 |
| | OP2 | OPEN PORCH W/STEPS | 3 | 0 | 1987 | 18.0 |
| | AGR | ATTACHED GARAGE | 3 | 0 | 1987 | 600.0 |
| | OCP | OPEN CARPORT | 3 | 0 | 1987 | 300.0 |
| | UPS | UPPER STORY | 3 | 0 | 1987 | 644.0 |
| | oUTI | UTILITY | 3 | 0 | 1987 | 308.0 |
Sketch
Property Image
Land
| 1 | 32 | AC (03.01-09.99) | 5.0000 | 217800.00 | 0.00 | 0.00 | 1.00 | $300,000 | $0 |
Roll Value History
| 2026 | N/A | N/A | N/A | N/A | N/A |
| 2025 | $278,295 | $300,000 | $0 | $578,295 | $578,295 |
| 2024 | $287,902 | $280,000 | $0 | $567,902 | $567,902 |
| 2023 | $292,058 | $270,000 | $0 | $562,058 | $562,058 |
| 2022 | $268,640 | $240,000 | $0 | $508,640 | $508,640 |
| 2021 | $237,426 | $175,000 | $0 | $412,426 | $412,426 |
| 2020 | $232,145 | $140,000 | $0 | $372,145 | $372,145 |
| 2019 | $178,960 | $200,000 | $0 | $378,960 | $378,960 |
| 2018 | $179,556 | $175,000 | $0 | $354,556 | $354,556 |
| 2017 | $180,750 | $140,000 | $0 | $320,750 | $320,750 |
| 2016 | $177,897 | $140,000 | $0 | $317,897 | $317,897 |
| 2015 | $180,378 | $120,000 | $0 | $300,378 | $300,378 |
| 2014 | $182,856 | $113,775 | $0 | $296,631 | $296,631 |
| 2013 | $185,338 | $85,650 | $0 | $270,988 | $270,988 |
| 2012 | $187,816 | $85,650 | $0 | $273,466 | $273,466 |
| 2011 | $190,298 | $95,025 | $0 | $285,323 | $285,323 |
| 2010 | $198,191 | $95,025 | $0 | $293,216 | $293,216 |
| 2009 | $207,020 | $95,025 | $0 | $302,045 | $302,045 |
| 2008 | $215,173 | $111,900 | $0 | $327,073 | $327,073 |
| 2007 | $218,273 | $111,900 | $0 | $330,173 | $330,173 |
Deed and Sales History
| 1 | 07/01/1996 | QCD | Quit Claim Deed | ROBBINS, LESLEY C | TEPASKE, HENRY J | | | $85,000.00 | 62727 | 96013373 |
| 2 | 08/01/1979 | CD | DNU - Correction Deed | ROBBINS, PAUL H | ROBBINS, LESLEY C | | | $0.00 | 94195 | 357814 |
| 3 | 01/01/1900 | OTHER | Other - Misc. Documents | Unknown | ROBBINS, PAUL H | | | $0.00 | 0 | 0 |
Payout Agreement
| No payout information available.. |