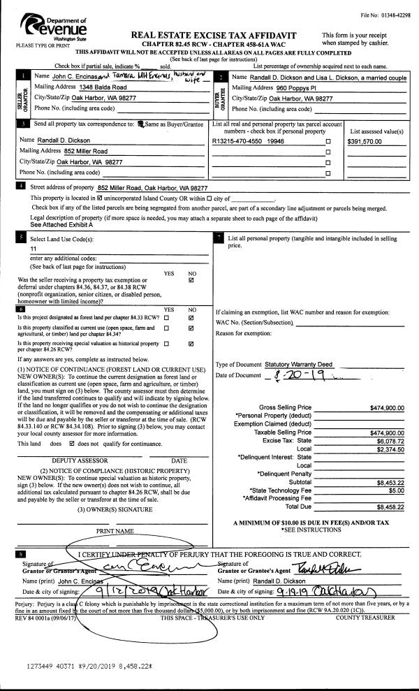
Property
Account |
| Property ID: | 47201 | Abbreviated Legal Description: | 20 - IN NW SW: BG SWCR SEC 4 N1709.99' TPB N660' TO SWCR LOT 21 MUTINY BAY PARK #1 E330' S660' W330' TPB EX UNDIV 1/2 INT IN N40' |
| Geographic ID: | R22904-202-0180 | Agent Code: | |
| Type: | Real | | |
| Tax Area: | 712 - APPRAISER-S Whid Schl Dist, outside Langley, improved, greater than 1 acre | Land Use Code | 11 |
| Open Space: | N | DFL | N |
| Historic Property: | N | Remodel Property: | N |
| Multi-Family Redevelopment: | N | | |
| Township: | 29 | Section: | 04 |
| Range: | R2 |
Location |
| Address: | 820 MEADOWOOD LN FREELAND, WA 98249 | Mapsco: | |
| Neighborhood: | Cycle 3 | Map ID: | 291 |
| Neighborhood CD: | 3 |
Owner |
| Name: | SANDERSON, PAUL J | Owner ID: | 68937 |
| Mailing Address: | 820 MEADOWOOD LN FREELAND, WA 98249-9765 | % Ownership: | 100.0000000000% |
| | | Exemptions: | |
Taxes and Assessment Details
Values
| (+) Improvement Homesite Value: | + | $0 | |
| (+) Improvement Non-Homesite Value: | + | $146,979 | |
| (+) Land Homesite Value: | + | $0 | |
| (+) Land Non-Homesite Value: | + | $350,000 | |
| (+) Curr Use (HS): | + | $0 | $0 |
| (+) Curr Use (NHS): | + | $0 | $0 |
| | | -------------------------- | |
| (=) Market Value: | = | $496,979 | |
| (–) Productivity Loss: | – | $0 | |
| | | -------------------------- | |
| (=) Subtotal: | = | $496,979 | |
| (+) Senior Appraised Value: | + | $0 | |
| (+) Non-Senior Appraised Value: | + | $496,979 | |
| | | -------------------------- | |
| (=) Total Appraised Value: | = | $496,979 | |
| (–) Senior Exemption Loss: | – | $0 | |
| (–) Exemption Loss: | – | $0 | |
| | | -------------------------- | |
| (=) Taxable Value: | = | $496,979 | |
Taxing Jurisdiction
| Owner: | SANDERSON, PAUL J | | |
| % Ownership: | 100.0000000000% | | |
| Total Value: | $496,979 | | |
| Tax Area: | 712 - APPRAISER-S Whid Schl Dist, outside Langley, improved, greater than 1 acre |
| CF | Conservation Futures | 0.0316035091 | $496,979 | $496,979 | $15.71 | | |
| FIRE3 | Fire & Rescue Dist #3 S Whidbey GEN | 1.2004855531 | $496,979 | $496,979 | $596.62 | | |
| HOBOND | Hospital BOND | 0.1910887512 | $496,979 | $496,979 | $94.97 | | |
| HOGEN | Hospital GEN | 0.3902502903 | $496,979 | $496,979 | $193.95 | | |
| CE | County Current Expense | 0.3708482477 | $496,979 | $496,979 | $184.30 | | |
| CR | County Roads | 0.4584763726 | $496,979 | $496,979 | $227.85 | | |
| ISLANDEMS | Hospital GEN (EMS) | 0.5000000000 | $496,979 | $496,979 | $248.49 | | |
| LIB | Library Sno-Isle GEN | 0.3153421757 | $496,979 | $496,979 | $156.72 | | |
| PORTWHID | Port of S Whidbey GEN | 0.1094540357 | $496,979 | $496,979 | $54.40 | | |
| SCH206BOND | School 206 BOND | 0.3161759235 | $496,979 | $496,979 | $157.13 | | |
| SCH206MO | School 206 Enrichment | 0.4547169547 | $496,979 | $496,979 | $225.98 | | |
| ST | State School | 1.3035497053 | $496,979 | $496,979 | $647.84 | | |
| ST2 | State School Part 2 | 0.8169543533 | $496,979 | $496,979 | $406.01 | | |
| SWHIDPRBD | P & R S Whidbey BOND | 0.0152817568 | $496,979 | $496,979 | $7.59 | | |
| SWHIDPRBD2 | P & R S Whidbey BOND2 | 0.0138911264 | $496,979 | $496,979 | $6.90 | | |
| SWHIDPRMT | P & R S Whidbey GEN | 0.2053334452 | $496,979 | $496,979 | $102.05 | | |
| | Total Tax Rate: | 6.6934522006 | | | | | |
| | | | | Taxes w/Current Exemptions: | $3,326.51 | | |
| | | | | Taxes w/o Exemptions: | $3,326.51 | | |
Improvement / Building
| Improvement #1: | MANUFACTURED HOME | State Code: | Y | 396.0 sqft | Value: | $9,408 |
| Bathrooms: | 0 | Bedrooms: | 0 | | Ceiling: | PLASTER PAINTED | Cooling: | EVAP NO DUCT | | Exterior Wall/Cover: | VINYL | Floor Covering: | CARPET 100% | | Floor Structure: | SLAB ON GRADE | Foundation: | SLAB | | Heating: | FHA ELECTRIC | Interior Finish: | PLASTER | | Plumbing Fixture Cnt: | 1 | Roof Slope: | FLAT | | Roof Structure/Cover: | CJ ALUMINIUM HEAVY |   |   |
|
| Improvement #2: | MANUFACTURED HOME | State Code: | Y | 1782.0 sqft | Value: | $137,571 |
| Bathrooms: | 0 | Bedrooms: | 0 | | Ceiling: | PLASTER PAINTED | Cooling: | EVAP NO DUCT | | Exterior Wall/Cover: | VINYL | Floor Covering: | CARPET 100% | | Floor Structure: | SLAB ON GRADE | Foundation: | SLAB | | Heating: | FHA ELECTRIC | Interior Finish: | PLASTER | | Plumbing Fixture Cnt: | 1 | Roof Slope: | FLAT | | Roof Structure/Cover: | CJ ALUMINIUM HEAVY |   |   |
|
| | Type | Description | Class CD | Sub Class CD | Year Built | Area |
| | BAS | BASE/MAIN FLOOR | 4 | 0 | 1998 | 1782.0 |
| | OWP | OPEN WOOD PORCH W/STEPS | 4 | 0 | 1998 | 88.0 |
| | UTY | STORAGE/UTILITY | 3 | 0 | 1998 | 240.0 |
Sketch
Property Image
Land
| 1 | 32 | AC (03.01-09.99) | 4.7000 | 0.00 | 0.00 | 0.00 | 1.00 | $350,000 | $0 |
Roll Value History
| 2026 | N/A | N/A | N/A | N/A | N/A |
| 2025 | $146,979 | $350,000 | $0 | $496,979 | $496,979 |
| 2024 | $151,157 | $340,000 | $0 | $491,157 | $491,157 |
| 2023 | $136,602 | $320,000 | $0 | $456,602 | $456,602 |
| 2022 | $127,042 | $260,000 | $0 | $387,042 | $387,042 |
| 2021 | $113,371 | $230,000 | $0 | $343,371 | $343,371 |
| 2020 | $112,881 | $180,000 | $0 | $292,881 | $292,881 |
| 2019 | $77,958 | $220,000 | $0 | $297,958 | $297,958 |
| 2018 | $80,066 | $170,000 | $0 | $250,066 | $250,066 |
| 2017 | $82,175 | $160,000 | $0 | $242,175 | $242,175 |
| 2016 | $84,282 | $165,000 | $0 | $249,282 | $249,282 |
| 2015 | $85,405 | $126,900 | $0 | $212,305 | $212,305 |
| 2014 | $80,055 | $126,900 | $0 | $206,955 | $206,955 |
| 2013 | $80,409 | $126,900 | $0 | $207,309 | $207,309 |
| 2012 | $82,260 | $126,900 | $0 | $209,160 | $209,160 |
| 2011 | $84,110 | $126,900 | $0 | $211,010 | $211,010 |
| 2010 | $88,199 | $126,900 | $0 | $215,099 | $215,099 |
| 2009 | $91,804 | $183,300 | $0 | $275,104 | $275,104 |
| 2008 | $94,881 | $188,000 | $0 | $282,881 | $282,881 |
| 2007 | $96,143 | $188,000 | $0 | $284,143 | $284,143 |
Deed and Sales History
| 1 | 08/15/2005 | WD | Warranty Deed | FURMAN, GERALD E | SANDERSON, PAUL J | | | $300,000.00 | 53963 | 4143951 |
| 2 | 12/01/1997 | OTHER | Other - Misc. Documents | FURMAN, GERALD E | FURMAN, GERALD E | | | $58,600.00 | 11111111 | 0 |
| 3 | 10/01/1991 | WD | Warranty Deed | FISCHER, VERNON L | FURMAN, GERALD E | | | $10,000.00 | 13699 | 91015834 |
| 4 | 11/01/1980 | EXECUTORD | Executor Deed | FISCHER, VERNON L | FISCHER, VERNON L | | | $0.00 | 4091 | 377231 |
| 5 | 08/01/1980 | EXECUTORD | Executor Deed | DELADECO, LTD | FISCHER, VERNON L | | | $20,000.00 | 3017 | 373546 |
| 6 | 01/01/1980 | CD | DNU - Correction Deed | HRG, LTD | DELADECO, LTD | | | $0.00 | 235 | 364235 |
| 7 | 04/01/1979 | OTHER | Other - Misc. Documents | Unknown | HRG, LTD | | | $14,000.00 | 91729 | 350938 |
Payout Agreement
| No payout information available.. |