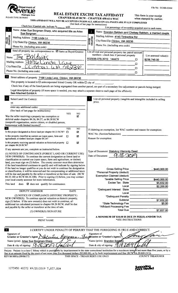
Property
Account |
| Property ID: | 47210 | Abbreviated Legal Description: | 32 - IN NW SW: BG SWCR SEC 4 N1709.99' E330' TPB N660' TO SLN MUTINY BAY PK #1 E330' S660' W330' TPB EX UNDIV 1/2 INT N40' |
| Geographic ID: | R22904-202-0510 | Agent Code: | |
| Type: | Real | | |
| Tax Area: | 712 - APPRAISER-S Whid Schl Dist, outside Langley, improved, greater than 1 acre | Land Use Code | 11 |
| Open Space: | N | DFL | N |
| Historic Property: | N | Remodel Property: | N |
| Multi-Family Redevelopment: | N | | |
| Township: | 29 | Section: | 04 |
| Range: | R2 |
Location |
| Address: | 850 MEADOWOOD LN FREELAND, WA 98249 | Mapsco: | |
| Neighborhood: | Cycle 3 | Map ID: | 291 |
| Neighborhood CD: | 3 |
Owner |
| Name: | BARBOUR, SHARON L | Owner ID: | 68938 |
| Mailing Address: | PO BOX 518 FREELAND, WA 98249-0518 | % Ownership: | 100.0000000000% |
| | | Exemptions: | SNR/DSBL |
Taxes and Assessment Details
Values
| (+) Improvement Homesite Value: | + | $56,630 | |
| (+) Improvement Non-Homesite Value: | + | $0 | |
| (+) Land Homesite Value: | + | $350,000 | |
| (+) Land Non-Homesite Value: | + | $0 | |
| (+) Curr Use (HS): | + | $0 | $0 |
| (+) Curr Use (NHS): | + | $0 | $0 |
| | | -------------------------- | |
| (=) Market Value: | = | $406,630 | |
| (–) Productivity Loss: | – | $0 | |
| | | -------------------------- | |
| (=) Subtotal: | = | $406,630 | |
| (+) Senior Appraised Value: | + | $168,833 | |
| (+) Non-Senior Appraised Value: | + | $0 | |
| | | -------------------------- | |
| (=) Total Appraised Value: | = | $168,833 | |
| (–) Senior Exemption Loss: | – | $101,300 | |
| (–) Exemption Loss: | – | $0 | |
| | | -------------------------- | |
| (=) Taxable Value: | = | $67,533 | |
Taxing Jurisdiction
| Owner: | BARBOUR, SHARON L | | |
| % Ownership: | 100.0000000000% | | |
| Total Value: | $406,630 | | |
| Tax Area: | 712 - APPRAISER-S Whid Schl Dist, outside Langley, improved, greater than 1 acre |
| CF | Conservation Futures | 0.0316035091 | $406,630 | $67,533 | $2.13 | | |
| FIRE3 | Fire & Rescue Dist #3 S Whidbey GEN | 1.2004855531 | $406,630 | $67,533 | $81.07 | | |
| HOBOND | Hospital BOND | 0.0000000000 | $406,630 | $0 | $0.00 | | |
| HOGEN | Hospital GEN | 0.3902502903 | $406,630 | $67,533 | $26.35 | | |
| CE | County Current Expense | 0.3708482477 | $406,630 | $67,533 | $25.04 | | |
| CR | County Roads | 0.4584763726 | $406,630 | $67,533 | $30.96 | | |
| ISLANDEMS | Hospital GEN (EMS) | 0.5000000000 | $406,630 | $67,533 | $33.77 | | |
| LIB | Library Sno-Isle GEN | 0.3153421757 | $406,630 | $67,533 | $21.30 | | |
| PORTWHID | Port of S Whidbey GEN | 0.1094540357 | $406,630 | $67,533 | $7.39 | | |
| SCH206BOND | School 206 BOND | 0.3161759235 | $406,630 | $67,533 | $21.35 | | |
| SCH206MO | School 206 Enrichment | 0.0000000000 | $406,630 | $0 | $0.00 | | |
| ST | State School | 1.3035497053 | $406,630 | $67,533 | $88.03 | | |
| ST2 | State School Part 2 | 0.0000000000 | $406,630 | $0 | $0.00 | | |
| SWHIDPRBD | P & R S Whidbey BOND | 0.0000000000 | $406,630 | $0 | $0.00 | | |
| SWHIDPRBD2 | P & R S Whidbey BOND2 | 0.0000000000 | $406,630 | $0 | $0.00 | | |
| SWHIDPRMT | P & R S Whidbey GEN | 0.2053334452 | $406,630 | $67,533 | $13.87 | | |
| | Total Tax Rate: | 5.2015192582 | | | | | |
| | | | | Taxes w/Current Exemptions: | $351.26 | | |
| | | | | Taxes w/o Exemptions: | $2,721.76 | | |
Improvement / Building
| Improvement #1: | MANUFACTURED HOME | State Code: | Y | 1456.0 sqft | Value: | $56,630 |
| Bathrooms: | 0 | Bedrooms: | 0 | | Ceiling: | PLASTER PAINTED | Cooling: | EVAP NO DUCT | | Exterior Wall/Cover: | VINYL | Floor Covering: | CARPET 100% | | Floor Structure: | SLAB ON GRADE | Foundation: | SLAB | | Heating: | FHA ELECTRIC | Interior Finish: | PLASTER | | Plumbing Fixture Cnt: | 1 | Roof Slope: | FLAT | | Roof Structure/Cover: | CJ ALUMINIUM HEAVY |   |   |
|
Sketch
Property Image
Land
| 1 | 32 | AC (03.01-09.99) | 4.7000 | 204732.00 | 0.00 | 0.00 | 1.00 | $350,000 | $0 |
Roll Value History
| 2026 | N/A | N/A | N/A | N/A | N/A |
| 2025 | $56,630 | $350,000 | $0 | $406,630 | $67,533 |
| 2024 | $60,170 | $340,000 | $0 | $400,170 | $67,533 |
| 2023 | $62,529 | $320,000 | $0 | $382,529 | $67,533 |
| 2022 | $58,755 | $260,000 | $0 | $318,755 | $67,533 |
| 2021 | $52,949 | $230,000 | $0 | $282,949 | $67,533 |
| 2020 | $54,111 | $180,000 | $0 | $234,111 | $67,533 |
| 2019 | $44,044 | $220,000 | $0 | $264,044 | $67,533 |
| 2018 | $45,464 | $170,000 | $0 | $215,464 | $67,533 |
| 2017 | $46,885 | $160,000 | $0 | $206,885 | $67,533 |
| 2016 | $48,306 | $165,000 | $0 | $213,306 | $67,533 |
| 2015 | $49,727 | $101,020 | $0 | $150,747 | $60,299 |
| 2014 | $51,147 | $101,020 | $0 | $152,167 | $60,867 |
| 2013 | $66,492 | $101,020 | $0 | $167,512 | $67,005 |
| 2012 | $67,913 | $100,920 | $0 | $168,833 | $67,533 |
| 2011 | $69,333 | $100,920 | $0 | $170,253 | $170,253 |
| 2010 | $66,001 | $100,920 | $0 | $166,921 | $166,921 |
| 2009 | $69,441 | $145,320 | $0 | $214,761 | $214,761 |
| 2008 | $71,304 | $149,020 | $0 | $220,324 | $220,324 |
| 2007 | $73,207 | $149,020 | $0 | $222,227 | $222,227 |
Deed and Sales History
| 1 | 06/01/1996 | OTHER | Other - Misc. Documents | BALL, SHARON L | BARBOUR, SHARON L | | | $0.00 | 66987 | 94017288 |
| 2 | 03/01/1993 | WD | Warranty Deed | RIEBLI, DOROTHY B | BALL, SHARON L | | | $0.00 | 30934 | 93004833 |
| 3 | 02/01/1986 | PRD | Personal Representatives Deed | RIEBLI, JOSEPH | RIEBLI, DOROTHY B | | | $0.00 | 60510 | 86002533 |
| 4 | 12/01/1980 | EZ | Easement | DELADECO, LTD | RIEBLI, JOSEPH | | | $32,500.00 | 4105 | 377311 |
| 5 | 01/01/1980 | CD | DNU - Correction Deed | STALNAKER, CHARLES A | DELADECO, LTD | | | $0.00 | 235 | 364245 |
| 6 | 05/01/1978 | OTHER | Other - Misc. Documents | , | STALNAKER, CHARLES A | | | $14,900.00 | 82171 | 332712 |
| 7 | 01/01/1900 | OTHER | Other - Misc. Documents | , | , | | | $0.00 | 0 | 0 |
| 8 | 01/01/1900 | OTHER | Other - Misc. Documents | , | , | | | $0.00 | 0 | 0 |
| 9 | 01/01/1900 | OTHER | Other - Misc. Documents | Unknown | , | | | $0.00 | 0 | 0 |
Payout Agreement
| No payout information available.. |