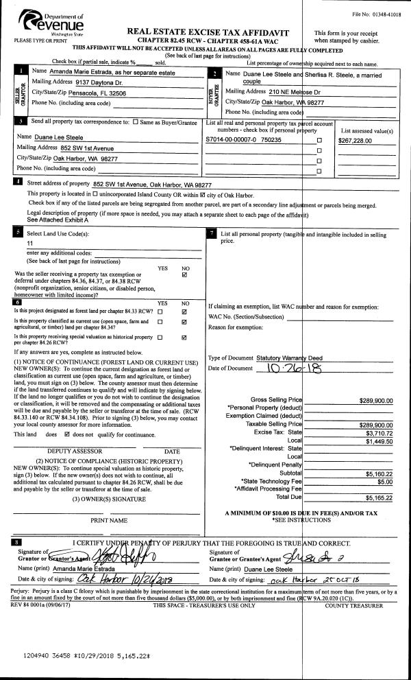
Property
Account |
| Property ID: | 47238 | Abbreviated Legal Description: | 63 - E/2 E/2 S/2 N/2 NW SW & E/2 E/2 N/2 S/2 NW SW INCL EZ |
| Geographic ID: | R22904-202-1180 | Agent Code: | |
| Type: | Real | | |
| Tax Area: | 712 - APPRAISER-S Whid Schl Dist, outside Langley, improved, greater than 1 acre | Land Use Code | 11 |
| Open Space: | N | DFL | N |
| Historic Property: | N | Remodel Property: | N |
| Multi-Family Redevelopment: | N | | |
| Township: | 29 | Section: | 04 |
| Range: | R2 |
Location |
| Address: | 898 MEADOWOOD LN FREELAND, WA 98249 | Mapsco: | |
| Neighborhood: | Cycle 3 | Map ID: | 291 |
| Neighborhood CD: | 3 |
Owner |
| Name: | BUNKER, BRIAN ROBERT | Owner ID: | 286993 |
| Mailing Address: | TRUDI LYNN BUNKER 898 E MEADOWOOD LN FREELAND, WA 98249 | % Ownership: | 100.0000000000% |
| | | Exemptions: | |
Taxes and Assessment Details
Values
| (+) Improvement Homesite Value: | + | $0 | |
| (+) Improvement Non-Homesite Value: | + | $483,766 | |
| (+) Land Homesite Value: | + | $0 | |
| (+) Land Non-Homesite Value: | + | $350,000 | |
| (+) Curr Use (HS): | + | $0 | $0 |
| (+) Curr Use (NHS): | + | $0 | $0 |
| | | -------------------------- | |
| (=) Market Value: | = | $833,766 | |
| (–) Productivity Loss: | – | $0 | |
| | | -------------------------- | |
| (=) Subtotal: | = | $833,766 | |
| (+) Senior Appraised Value: | + | $0 | |
| (+) Non-Senior Appraised Value: | + | $833,766 | |
| | | -------------------------- | |
| (=) Total Appraised Value: | = | $833,766 | |
| (–) Senior Exemption Loss: | – | $0 | |
| (–) Exemption Loss: | – | $0 | |
| | | -------------------------- | |
| (=) Taxable Value: | = | $833,766 | |
Taxing Jurisdiction
| Owner: | BUNKER, BRIAN ROBERT | | |
| % Ownership: | 100.0000000000% | | |
| Total Value: | $833,766 | | |
| Tax Area: | 712 - APPRAISER-S Whid Schl Dist, outside Langley, improved, greater than 1 acre |
| CF | Conservation Futures | 0.0316035091 | $833,766 | $833,766 | $26.35 | | |
| FIRE3 | Fire & Rescue Dist #3 S Whidbey GEN | 1.2004855531 | $833,766 | $833,766 | $1,000.92 | | |
| HOBOND | Hospital BOND | 0.1910887512 | $833,766 | $833,766 | $159.32 | | |
| HOGEN | Hospital GEN | 0.3902502903 | $833,766 | $833,766 | $325.38 | | |
| CE | County Current Expense | 0.3708482477 | $833,766 | $833,766 | $309.20 | | |
| CR | County Roads | 0.4584763726 | $833,766 | $833,766 | $382.26 | | |
| ISLANDEMS | Hospital GEN (EMS) | 0.5000000000 | $833,766 | $833,766 | $416.88 | | |
| LIB | Library Sno-Isle GEN | 0.3153421757 | $833,766 | $833,766 | $262.92 | | |
| PORTWHID | Port of S Whidbey GEN | 0.1094540357 | $833,766 | $833,766 | $91.26 | | |
| SCH206BOND | School 206 BOND | 0.3161759235 | $833,766 | $833,766 | $263.62 | | |
| SCH206MO | School 206 Enrichment | 0.4547169547 | $833,766 | $833,766 | $379.13 | | |
| ST | State School | 1.3035497053 | $833,766 | $833,766 | $1,086.86 | | |
| ST2 | State School Part 2 | 0.8169543533 | $833,766 | $833,766 | $681.15 | | |
| SWHIDPRBD | P & R S Whidbey BOND | 0.0152817568 | $833,766 | $833,766 | $12.74 | | |
| SWHIDPRBD2 | P & R S Whidbey BOND2 | 0.0138911264 | $833,766 | $833,766 | $11.58 | | |
| SWHIDPRMT | P & R S Whidbey GEN | 0.2053334452 | $833,766 | $833,766 | $171.20 | | |
| | Total Tax Rate: | 6.6934522006 | | | | | |
| | | | | Taxes w/Current Exemptions: | $5,580.77 | | |
| | | | | Taxes w/o Exemptions: | $5,580.77 | | |
Improvement / Building
| Improvement #1: | RESIDENTIAL | State Code: | Y | 1608.5 sqft | Value: | $483,766 |
| Bathrooms: | 1.5 | Bedrooms: | 3 | | Ceiling: | TONGUE & GROOVE | Cooling: | HEAT PUMP/CONV/V | | Exterior Wall/Cover: | LOG TO 10" | Floor Covering: | CERAMIC TILE/CPT 40-60 | | Floor Structure: | WOOD W/SUBFLOOR | Foundation: | CONCRETE | | Interior Finish: | DRYWALL PAINT | Plumbing Fixture Cnt: | 9 | | Roof Slope: | 5" IN 12" | Roof Structure/Cover: | CJ ALUMINIUM HEAVY |
|
| | Type | Description | Class CD | Sub Class CD | Year Built | Area |
| | BAS | BASE/MAIN FLOOR | 4 | 0 | 1973 | 1608.5 |
| | OWP | OPEN WOOD PORCH W/STEPS | 4 | 0 | 1973 | 937.0 |
| | OWR | OPEN WOOD PORCH W/STEPS/ROOF | 4 | 0 | 1973 | 22.0 |
| | OWR | OPEN WOOD PORCH W/STEPS/ROOF | 4 | 0 | 1973 | 22.0 |
| | DGR | DETACHED GARAGE | 4 | 0 | 1973 | 1008.0 |
| | OCP | OPEN CARPORT | 4 | 0 | 1973 | 429.0 |
| | ENP | ENCLOSED PORCH | 4 | 0 | 1973 | 309.0 |
| | OWP | OPEN WOOD PORCH W/STEPS | 4 | 0 | 1973 | 137.4 |
Sketch
Property Image
Land
| 1 | 32 | AC (03.01-09.99) | 5.0000 | 0.00 | 0.00 | 0.00 | 1.00 | $350,000 | $0 |
Roll Value History
| 2026 | N/A | N/A | N/A | N/A | N/A |
| 2025 | $483,766 | $350,000 | $0 | $833,766 | $833,766 |
| 2024 | $518,178 | $340,000 | $0 | $858,178 | $858,178 |
| 2023 | $524,635 | $320,000 | $0 | $844,635 | $844,635 |
| 2022 | $480,920 | $260,000 | $0 | $740,920 | $740,920 |
| 2021 | $423,260 | $230,000 | $0 | $653,260 | $653,260 |
| 2020 | $413,017 | $180,000 | $0 | $593,017 | $593,017 |
| 2019 | $291,131 | $220,000 | $0 | $511,131 | $511,131 |
| 2018 | $189,827 | $170,000 | $0 | $359,827 | $359,827 |
| 2017 | $190,869 | $160,000 | $0 | $350,869 | $350,869 |
| 2016 | $192,954 | $165,000 | $0 | $357,954 | $357,954 |
| 2015 | $195,039 | $135,000 | $0 | $330,039 | $330,039 |
| 2014 | $197,121 | $135,000 | $0 | $332,121 | $332,121 |
| 2013 | $183,843 | $135,000 | $0 | $318,843 | $318,843 |
| 2012 | $185,901 | $135,000 | $0 | $320,901 | $320,901 |
| 2011 | $179,643 | $135,000 | $0 | $314,643 | $314,643 |
| 2010 | $192,417 | $135,000 | $0 | $327,417 | $327,417 |
| 2009 | $208,193 | $195,000 | $0 | $403,193 | $403,193 |
| 2008 | $211,555 | $200,000 | $0 | $411,555 | $411,555 |
| 2007 | $208,201 | $200,000 | $0 | $408,201 | $408,201 |
Deed and Sales History
| 1 | 09/05/2018 | WD | Warranty Deed | ROWAN TTEE, KATE WEST | BUNKER, BRIAN ROBERT | | | $575,000.00 | 35997 | 4452148 |
| 2 | 07/27/2018 | QCD | Quit Claim Deed | ROWAN TRUSTEE, KATE WEST | ROWAN TTEE, KATE WEST | | | $0.00 | 35192 | 4448798 |
| 3 | 01/22/2009 | QCD | Quit Claim Deed | ROWAN, KATE WEST | ROWAN TTEE, KATE WEST | | | $0.00 | 90145 | 4243210 |
| 4 | 01/22/2009 | QCD | Quit Claim Deed | ROWAN TRUSTEE, KATE WEST | ROWAN, KATE WEST | | | $0.00 | 91043 | 4243208 |
| 5 | 01/22/2009 | QCD | Quit Claim Deed | ROWAN TRUSTEE, KATE WEST | ROWAN TRUSTEE, KATE WEST | | | $0.00 | 90144 | 4243209 |
| 6 | 08/07/2006 | WD | Warranty Deed | COUGHLIN, CAROLIE C | ROWAN TRUSTEE, KATE WEST | | | $414,000.00 | 63466 | 4178693 |
| 7 | 03/02/2000 | OTHER | Other - Misc. Documents | COUGHLIN, GARY F | COUGHLIN, CAROLIE C | | | $0.00 | 68618 | 0 |
| 8 | 11/01/1997 | QCD | Quit Claim Deed | COUGHLIN, GARY | COUGHLIN, GARY F | | | $0.00 | 73832 | 97018298 |
| 9 | 01/01/1900 | OTHER | Other - Misc. Documents | Unknown | COUGHLIN, GARY | | | $0.00 | 0 | 0 |
Payout Agreement
| No payout information available.. |