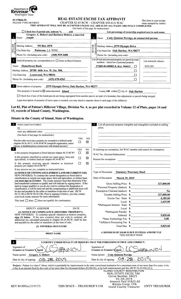
Property
Account |
| Property ID: | 473240 | Abbreviated Legal Description: | 1973 STATLER 12X66 VIN# 61MS7012F352653 TPO @92539 |
| Geographic ID: | M911000000990 | Agent Code: | |
| Type: | Mobile Home | | |
| Tax Area: | 100 - APPRAISER-OH Schl Dist, in OH | Land Use Code | 11 |
| Open Space: | N | DFL | N |
| Historic Property: | N | Remodel Property: | N |
| Multi-Family Redevelopment: | N | | |
| Township: | | Section: | |
| Range: | |
Location |
| Address: | 700 NW CROSBY AVE # 99 OAK HARBOR, WA 98277 | Mapsco: | |
| Neighborhood: | Cycle 1 | Map ID: | |
| Neighborhood CD: | 1 |
Owner |
| Name: | CARR, ALEXANDRIA | Owner ID: | 288960 |
| Mailing Address: | 700 NW CROSBY #99 OAK HARBOR, WA 98277 | % Ownership: | 100.0000000000% |
| | | Exemptions: | |
Taxes and Assessment Details
Values
| (+) Improvement Homesite Value: | + | $0 | |
| (+) Improvement Non-Homesite Value: | + | $6,732 | |
| (+) Land Homesite Value: | + | $0 | |
| (+) Land Non-Homesite Value: | + | $0 | |
| (+) Curr Use (HS): | + | $0 | $0 |
| (+) Curr Use (NHS): | + | $0 | $0 |
| | | -------------------------- | |
| (=) Market Value: | = | $6,732 | |
| (–) Productivity Loss: | – | $0 | |
| | | -------------------------- | |
| (=) Subtotal: | = | $6,732 | |
| (+) Senior Appraised Value: | + | $0 | |
| (+) Non-Senior Appraised Value: | + | $6,732 | |
| | | -------------------------- | |
| (=) Total Appraised Value: | = | $6,732 | |
| (–) Senior Exemption Loss: | – | $0 | |
| (–) Exemption Loss: | – | $0 | |
| | | -------------------------- | |
| (=) Taxable Value: | = | $6,732 | |
Taxing Jurisdiction
| Owner: | CARR, ALEXANDRIA | | |
| % Ownership: | 100.0000000000% | | |
| Total Value: | $6,732 | | |
| Tax Area: | 100 - APPRAISER-OH Schl Dist, in OH |
| CF | Conservation Futures | 0.0316035091 | $6,732 | $6,732 | $0.21 | | |
| CEM1 | Cemetery #1 | 0.0040320932 | $6,732 | $6,732 | $0.03 | | |
| COH | City of Oak Harbor | 2.3001546061 | $6,732 | $6,732 | $15.48 | | |
| OAKBOND | City of Oak Harbor BOND | 0.1926904192 | $6,732 | $6,732 | $1.30 | | |
| HOBOND | Hospital BOND | 0.1910887512 | $6,732 | $6,732 | $1.29 | | |
| HOGEN | Hospital GEN | 0.3902502903 | $6,732 | $6,732 | $2.63 | | |
| CE | County Current Expense | 0.3708482477 | $6,732 | $6,732 | $2.50 | | |
| ISLANDEMS | Hospital GEN (EMS) | 0.5000000000 | $6,732 | $6,732 | $3.37 | | |
| LIB | Library Sno-Isle GEN | 0.3153421757 | $6,732 | $6,732 | $2.12 | | |
| NWHIDPRMT | P & R N Whidbey GEN | 0.2004466701 | $6,732 | $6,732 | $1.35 | | |
| SCH201MO | School 201 Enrichment | 1.8559231640 | $6,732 | $6,732 | $12.49 | | |
| ST | State School | 1.3035497053 | $6,732 | $6,732 | $8.78 | | |
| ST2 | State School Part 2 | 0.8169543533 | $6,732 | $6,732 | $5.50 | | |
| | Total Tax Rate: | 8.4728839852 | | | | | |
| | | | | Taxes w/Current Exemptions: | $57.05 | | |
| | | | | Taxes w/o Exemptions: | $57.05 | | |
Improvement / Building
| Improvement #1: | MANUFACTURED HOME | State Code: | Y | 768.0 sqft | Value: | $6,732 |
| Bathrooms: | 0 | Bedrooms: | 0 | | Ceiling: | PLASTER PAINTED | Cooling: | EVAP NO DUCT | | Exterior Wall/Cover: | VINYL | Floor Covering: | CARPET 100% | | Floor Structure: | SLAB ON GRADE | Foundation: | SLAB | | Heating: | FHA ELECTRIC | Interior Finish: | PLASTER | | Plumbing Fixture Cnt: | 1 | Roof Slope: | FLAT | | Roof Structure/Cover: | CJ ALUMINIUM HEAVY |   |   |
|
Sketch
Property Image
Land
No land segments exist for this property.
Roll Value History
| 2026 | N/A | N/A | N/A | N/A | N/A |
| 2025 | $6,732 | $0 | $0 | $6,732 | $6,732 |
| 2024 | $6,732 | $0 | $0 | $6,732 | $6,732 |
| 2023 | $4,977 | $0 | $0 | $4,977 | $4,977 |
| 2022 | $4,506 | $0 | $0 | $4,506 | $4,506 |
| 2021 | $3,918 | $0 | $0 | $3,918 | $3,918 |
| 2020 | $3,805 | $0 | $0 | $3,805 | $3,805 |
| 2019 | $2,996 | $0 | $0 | $2,996 | $2,996 |
| 2018 | $3,296 | $0 | $0 | $3,296 | $3,296 |
| 2017 | $2,230 | $0 | $0 | $2,230 | $2,230 |
| 2016 | $2,433 | $0 | $0 | $2,433 | $2,433 |
| 2015 | $2,535 | $0 | $0 | $2,535 | $2,535 |
| 2014 | $2,737 | $0 | $0 | $2,737 | $2,737 |
| 2013 | $2,839 | $0 | $0 | $2,839 | $2,839 |
| 2012 | $3,041 | $0 | $0 | $3,041 | $3,041 |
| 2011 | $3,668 | $0 | $0 | $3,668 | $3,668 |
| 2010 | $3,884 | $0 | $0 | $3,884 | $3,884 |
| 2009 | $4,927 | $0 | $0 | $4,927 | $4,927 |
| 2008 | $4,927 | $0 | $0 | $4,927 | $4,927 |
| 2007 | $4,927 | $0 | $0 | $4,927 | $4,927 |
Deed and Sales History
| 1 | 03/01/2019 | MANHOME | Manufactured Home | HAYWORTH, DESIREA | CARR, ALEXANDRIA | | | $0.00 | 37739 | |
| 2 | 01/28/2015 | OTHER | Other - Misc. Documents | WHITAKER, TRAVIS | HAYWORTH, DESIREA | | | $281.00 | 18453 | |
| 3 | 04/08/2014 | OTHER | Other - Misc. Documents | PAYAN, ISMAEL LEYUA | WHITAKER, TRAVIS | | | $0.00 | 14836 | |
| 4 | 01/08/2009 | OTHER | Other - Misc. Documents | FOWKES, PENNY | PAYAN, ISMAEL LEYUA | | | $3,500.00 | 90084 | 0 |
| 5 | 01/09/2008 | OTHER | Other - Misc. Documents | STONE-BRANNON, APRIL | FOWKES, PENNY | | | $0.00 | 81236 | 0 |
| 6 | 08/08/2001 | OTHER | Other - Misc. Documents | FOSTER, MARGARET A | STONE-BRANNON, APRIL | | | $0.00 | 13009 | 0 |
| 7 | 01/20/2000 | OTHER | Other - Misc. Documents | MASTEN, ROSE | FOSTER, MARGARET A | | | $100.00 | 260 | 0 |
| 8 | 03/01/1983 | OTHER | Other - Misc. Documents | SMITH, DARVIN D | MASTEN, ROSE | | | $3,900.00 | 30562 | 0 |
| 9 | 01/01/1900 | OTHER | Other - Misc. Documents | Unknown | SMITH, DARVIN D | | | $0.00 | 0 | 0 |
Payout Agreement
| No payout information available.. |