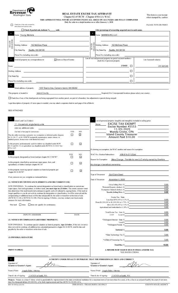
Property
Account |
| Property ID: | 47354 | Abbreviated Legal Description: | 58 - PT TR A WONDERWOOD REC 30M15:BG SW CR TR A E660'TPB E330'N1*E TO NLN TR A WLY ALG NLN TP N1*E OF TPB S1*W TPB |
| Geographic ID: | R22904-300-3520 | Agent Code: | |
| Type: | Real | | |
| Tax Area: | 712 - APPRAISER-S Whid Schl Dist, outside Langley, improved, greater than 1 acre | Land Use Code | 11 |
| Open Space: | N | DFL | N |
| Historic Property: | N | Remodel Property: | N |
| Multi-Family Redevelopment: | N | | |
| Township: | 29 | Section: | 04 |
| Range: | R2 |
Location |
| Address: | 1063 WILD COYOTE RUN FREELAND, WA 98249 | Mapsco: | |
| Neighborhood: | Cycle 3 | Map ID: | 294 |
| Neighborhood CD: | 3 |
Owner |
| Name: | CLARKE JTWROS, WALTER E | Owner ID: | 274299 |
| Mailing Address: | SANDRA L CLARKE JTWROS 1063 WILD COYOTE RUN FREELAND, WA 98249 | % Ownership: | 100.0000000000% |
| | | Exemptions: | |
Taxes and Assessment Details
Values
| (+) Improvement Homesite Value: | + | $0 | |
| (+) Improvement Non-Homesite Value: | + | $116,793 | |
| (+) Land Homesite Value: | + | $0 | |
| (+) Land Non-Homesite Value: | + | $370,000 | |
| (+) Curr Use (HS): | + | $0 | $0 |
| (+) Curr Use (NHS): | + | $0 | $0 |
| | | -------------------------- | |
| (=) Market Value: | = | $486,793 | |
| (–) Productivity Loss: | – | $0 | |
| | | -------------------------- | |
| (=) Subtotal: | = | $486,793 | |
| (+) Senior Appraised Value: | + | $0 | |
| (+) Non-Senior Appraised Value: | + | $486,793 | |
| | | -------------------------- | |
| (=) Total Appraised Value: | = | $486,793 | |
| (–) Senior Exemption Loss: | – | $0 | |
| (–) Exemption Loss: | – | $0 | |
| | | -------------------------- | |
| (=) Taxable Value: | = | $486,793 | |
Taxing Jurisdiction
| Owner: | CLARKE JTWROS, WALTER E | | |
| % Ownership: | 100.0000000000% | | |
| Total Value: | $486,793 | | |
| Tax Area: | 712 - APPRAISER-S Whid Schl Dist, outside Langley, improved, greater than 1 acre |
| CF | Conservation Futures | 0.0316035091 | $486,793 | $486,793 | $15.38 | | |
| FIRE3 | Fire & Rescue Dist #3 S Whidbey GEN | 1.2004855531 | $486,793 | $486,793 | $584.39 | | |
| HOBOND | Hospital BOND | 0.1910887512 | $486,793 | $486,793 | $93.02 | | |
| HOGEN | Hospital GEN | 0.3902502903 | $486,793 | $486,793 | $189.97 | | |
| CE | County Current Expense | 0.3708482477 | $486,793 | $486,793 | $180.53 | | |
| CR | County Roads | 0.4584763726 | $486,793 | $486,793 | $223.18 | | |
| ISLANDEMS | Hospital GEN (EMS) | 0.5000000000 | $486,793 | $486,793 | $243.40 | | |
| LIB | Library Sno-Isle GEN | 0.3153421757 | $486,793 | $486,793 | $153.51 | | |
| PORTWHID | Port of S Whidbey GEN | 0.1094540357 | $486,793 | $486,793 | $53.28 | | |
| SCH206BOND | School 206 BOND | 0.3161759235 | $486,793 | $486,793 | $153.91 | | |
| SCH206MO | School 206 Enrichment | 0.4547169547 | $486,793 | $486,793 | $221.35 | | |
| ST | State School | 1.3035497053 | $486,793 | $486,793 | $634.56 | | |
| ST2 | State School Part 2 | 0.8169543533 | $486,793 | $486,793 | $397.69 | | |
| SWHIDPRBD | P & R S Whidbey BOND | 0.0152817568 | $486,793 | $486,793 | $7.44 | | |
| SWHIDPRBD2 | P & R S Whidbey BOND2 | 0.0138911264 | $486,793 | $486,793 | $6.76 | | |
| SWHIDPRMT | P & R S Whidbey GEN | 0.2053334452 | $486,793 | $486,793 | $99.95 | | |
| | Total Tax Rate: | 6.6934522006 | | | | | |
| | | | | Taxes w/Current Exemptions: | $3,258.32 | | |
| | | | | Taxes w/o Exemptions: | $3,258.32 | | |
Improvement / Building
| Improvement #1: | MANUFACTURED HOME | State Code: | Y | 1394.9 sqft | Value: | $116,793 |
| Bathrooms: | 0 | Bedrooms: | 0 | | Ceiling: | PLASTER PAINTED | Cooling: | EVAP NO DUCT | | Exterior Wall/Cover: | VINYL | Floor Covering: | CARPET 100% | | Floor Structure: | SLAB ON GRADE | Foundation: | SLAB | | Heating: | FHA ELECTRIC | Interior Finish: | PLASTER | | Plumbing Fixture Cnt: | 1 | Roof Slope: | FLAT | | Roof Structure/Cover: | CJ ALUMINIUM HEAVY |   |   |
|
| | Type | Description | Class CD | Sub Class CD | Year Built | Area |
| | BAS | BASE/MAIN FLOOR | 3 | 0 | 1999 | 1394.9 |
| | OWP | OPEN WOOD PORCH W/STEPS | 3 | 0 | 1999 | 170.7 |
| | OWP | OPEN WOOD PORCH W/STEPS | 3 | 0 | 1999 | 408.0 |
| | DGR | DETACHED GARAGE | 3 | 0 | 1999 | 936.0 |
| | CPD | OPEN CARPORT DIRT FLOOR | 3 | 0 | 1999 | 432.0 |
| | CPD | OPEN CARPORT DIRT FLOOR | 3 | 0 | 1999 | 432.0 |
Sketch
Property Image
Land
| 1 | 32 | AC (03.01-09.99) | 5.0000 | 0.00 | 0.00 | 0.00 | 1.00 | $370,000 | $0 |
Roll Value History
| 2026 | N/A | N/A | N/A | N/A | N/A |
| 2025 | $116,793 | $370,000 | $0 | $486,793 | $486,793 |
| 2024 | $120,128 | $350,000 | $0 | $470,128 | $470,128 |
| 2023 | $121,798 | $310,000 | $0 | $431,798 | $431,798 |
| 2022 | $113,318 | $290,000 | $0 | $403,318 | $403,318 |
| 2021 | $101,158 | $220,000 | $0 | $321,158 | $321,158 |
| 2020 | $100,766 | $180,000 | $0 | $280,766 | $280,766 |
| 2019 | $91,788 | $230,000 | $0 | $321,788 | $321,788 |
| 2018 | $93,409 | $200,000 | $0 | $293,409 | $293,409 |
| 2017 | $94,221 | $150,000 | $0 | $244,221 | $244,221 |
| 2016 | $95,844 | $150,000 | $0 | $245,844 | $245,844 |
| 2015 | $97,466 | $135,000 | $0 | $232,466 | $232,466 |
| 2014 | $99,089 | $135,000 | $0 | $234,089 | $234,089 |
| 2013 | $111,505 | $135,000 | $0 | $246,505 | $246,505 |
| 2012 | $113,066 | $135,000 | $0 | $248,066 | $248,066 |
| 2011 | $114,627 | $135,000 | $0 | $249,627 | $249,627 |
| 2010 | $112,211 | $135,000 | $0 | $247,211 | $247,211 |
| 2009 | $115,884 | $195,000 | $0 | $310,884 | $310,884 |
| 2008 | $118,395 | $160,000 | $0 | $278,395 | $278,395 |
| 2007 | $120,921 | $160,000 | $0 | $280,921 | $280,921 |
Deed and Sales History
| 1 | 03/05/2016 | JTWROS | Adding JTWROS | CLARKE, WALTER E | CLARKE JTWROS, WALTER E | | | $0.00 | 23745 | 4396798 |
| 2 | 03/14/2003 | WD | Warranty Deed | FRANTZ, ANOTHONY F | CLARKE, WALTER E | | | $160,000.00 | 31134 | 4051781 |
| 3 | 02/03/1999 | WD | Warranty Deed | FRANTZ, ANTHONY F | FRANTZ, ANOTHONY F | | | $45,000.00 | 90510 | 99003505 |
| 4 | 01/01/1900 | PACD | Purchaser's Assignment | Unknown | FRANTZ, ANTHONY F | | | $0.00 | 0 | 0 |
Payout Agreement
| No payout information available.. |