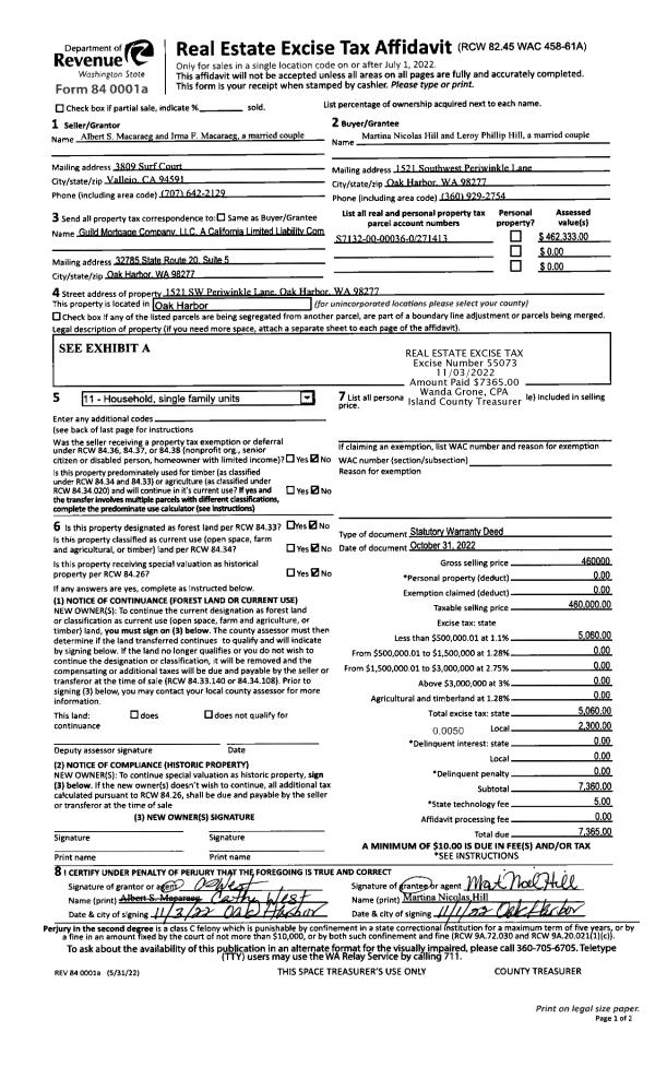
Property
Account |
| Property ID: | 473696 | Abbreviated Legal Description: | E/2 SE SE NW TGW EZ FR3012270 |
| Geographic ID: | R23136-301-2450 | Agent Code: | |
| Type: | Real | | |
| Tax Area: | 549 - APPRAISER-Stan/Cam Schl Dist, Special Dist, vacant & 50 acres or less | Land Use Code | 91 |
| Open Space: | N | DFL | N |
| Historic Property: | N | Remodel Property: | N |
| Multi-Family Redevelopment: | N | | |
| Township: | 31 | Section: | 36 |
| Range: | R2 |
Location |
| Address: | 217 PARKSIDE DR CAMANO ISLAND, WA 98282 | Mapsco: | |
| Neighborhood: | Cycle 5 | Map ID: | 535 |
| Neighborhood CD: | 5 |
Owner |
| Name: | HOUSLEY, MICHAEL | Owner ID: | 304212 |
| Mailing Address: | 14110 55TH AVE SOUTH SEATTLE, WA 98168 | % Ownership: | 100.0000000000% |
| | | Exemptions: | |
Taxes and Assessment Details
Values
| (+) Improvement Homesite Value: | + | $0 | |
| (+) Improvement Non-Homesite Value: | + | $0 | |
| (+) Land Homesite Value: | + | $0 | |
| (+) Land Non-Homesite Value: | + | $240,000 | |
| (+) Curr Use (HS): | + | $0 | $0 |
| (+) Curr Use (NHS): | + | $0 | $0 |
| | | -------------------------- | |
| (=) Market Value: | = | $240,000 | |
| (–) Productivity Loss: | – | $0 | |
| | | -------------------------- | |
| (=) Subtotal: | = | $240,000 | |
| (+) Senior Appraised Value: | + | $0 | |
| (+) Non-Senior Appraised Value: | + | $240,000 | |
| | | -------------------------- | |
| (=) Total Appraised Value: | = | $240,000 | |
| (–) Senior Exemption Loss: | – | $0 | |
| (–) Exemption Loss: | – | $0 | |
| | | -------------------------- | |
| (=) Taxable Value: | = | $240,000 | |
Taxing Jurisdiction
| Owner: | HOUSLEY, MICHAEL | | |
| % Ownership: | 100.0000000000% | | |
| Total Value: | $240,000 | | |
| Tax Area: | 549 - APPRAISER-Stan/Cam Schl Dist, Special Dist, vacant & 50 acres or less |
| CF | Conservation Futures | 0.0316035091 | $240,000 | $240,000 | $7.58 | | |
| EMS1 | Fire & Rescue Dist #1 Camano GEN (EMS) | 0.3677864386 | $240,000 | $240,000 | $88.27 | | |
| CE | County Current Expense | 0.3708482477 | $240,000 | $240,000 | $89.00 | | |
| CR | County Roads | 0.4584763726 | $240,000 | $240,000 | $110.03 | | |
| LCIB | Library Sno-Isle BOND (Camano Island) | 0.0396325772 | $240,000 | $240,000 | $9.51 | | |
| LIB | Library Sno-Isle GEN | 0.3153421757 | $240,000 | $240,000 | $75.68 | | |
| SCH205_401 | School 205-401 Enrichment | 1.2698420524 | $240,000 | $240,000 | $304.76 | | |
| SCH205BOND | School 205-401 BOND | 0.9396497583 | $240,000 | $240,000 | $225.52 | | |
| ST | State School | 1.3035497053 | $240,000 | $240,000 | $312.85 | | |
| ST2 | State School Part 2 | 0.8169543533 | $240,000 | $240,000 | $196.07 | | |
| | Total Tax Rate: | 5.9136851902 | | | | | |
| | | | | Taxes w/Current Exemptions: | $1,419.27 | | |
| | | | | Taxes w/o Exemptions: | $1,419.27 | | |
Improvement / Building
Sketch
| No sketches available for this property. |
Property Image
Land
| 1 | 32 | AC (03.01-09.99) | 5.0000 | 0.00 | 0.00 | 0.00 | 1.00 | $240,000 | $0 |
Roll Value History
| 2026 | N/A | N/A | N/A | N/A | N/A |
| 2025 | $0 | $240,000 | $0 | $240,000 | $240,000 |
| 2024 | $0 | $220,000 | $0 | $220,000 | $220,000 |
| 2023 | $0 | $200,000 | $0 | $200,000 | $200,000 |
| 2022 | $0 | $180,000 | $0 | $180,000 | $180,000 |
| 2021 | $0 | $140,000 | $0 | $140,000 | $140,000 |
| 2020 | $0 | $120,000 | $0 | $120,000 | $120,000 |
| 2019 | $0 | $100,000 | $0 | $100,000 | $100,000 |
| 2018 | $0 | $80,000 | $0 | $80,000 | $80,000 |
| 2017 | $0 | $130,000 | $0 | $130,000 | $130,000 |
| 2016 | $0 | $130,000 | $0 | $130,000 | $130,000 |
| 2015 | $0 | $120,000 | $0 | $120,000 | $120,000 |
| 2014 | $0 | $120,000 | $0 | $120,000 | $120,000 |
| 2013 | $0 | $120,000 | $0 | $120,000 | $120,000 |
| 2012 | $0 | $120,000 | $0 | $120,000 | $120,000 |
| 2011 | $0 | $120,000 | $0 | $120,000 | $120,000 |
| 2010 | $0 | $120,000 | $0 | $120,000 | $120,000 |
| 2009 | $0 | $150,000 | $0 | $150,000 | $150,000 |
| 2008 | $0 | $159,600 | $0 | $159,600 | $159,600 |
| 2007 | $0 | $159,600 | $0 | $159,600 | $159,600 |
Deed and Sales History
| 1 | 05/11/2022 | WD | Warranty Deed | OLANGER, MADESON | HOUSLEY, MICHAEL | | | $200,000.00 | 53056 | 4544924 |
| 2 | 08/30/2017 | WD | Warranty Deed | HUY, SANG V | OLANGER, MADESON | | | $85,000.00 | 30957 | 4429605 |
| 3 | 12/28/2004 | WD | Warranty Deed | EATON, CAROL | HUY, SANG V | | | $129,000.00 | 50215 | 4123500 |
| 4 | 03/01/1979 | CD | DNU - Correction Deed | HANSEN, MAYNARD C | EATON, CAROL | | | $0.00 | 91090 | 348888 |
| 5 | 01/01/1900 | OTHER | Other - Misc. Documents | Unknown | HANSEN, MAYNARD C | | | $0.00 | 0 | 0 |
Payout Agreement
| No payout information available.. |