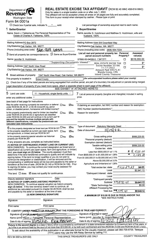
Property
Account |
| Property ID: | 474294 | Abbreviated Legal Description: | IN LOT 3 BLK 4 CAMANO SUN- RISE #2 BG NW CR NE SE S617.41' S89*E805.43' S17* E71.51' N72*E30' TPB N72* E30' S17*E380.53' N89* W340' N180' S89*251.01' N17*W181.99' TPB TGW EZ SP 78-123 LOT B FR 1864440 |
| Geographic ID: | R23113-175-4750 | Agent Code: | |
| Type: | Real | | |
| Tax Area: | 512 - APPRAISER-Stan/Cam Schl Dist, improved, greater than 1 acre | Land Use Code | 11 |
| Open Space: | N | DFL | N |
| Historic Property: | N | Remodel Property: | N |
| Multi-Family Redevelopment: | N | | |
| Township: | 31 | Section: | 13 |
| Range: | R2 |
Location |
| Address: | 1064 MICHAEL WAY CAMANO ISLAND, WA 98282 | Mapsco: | |
| Neighborhood: | Cycle 5 | Map ID: | 478 |
| Neighborhood CD: | 5 |
Owner |
| Name: | ALSKOG, STEVEN & SUSAN | Owner ID: | 57868 |
| Mailing Address: | 1064 MICHAEL WAY CAMANO ISLAND, WA 98282-6522 | % Ownership: | 100.0000000000% |
| | | Exemptions: | SNR/DSBL |
Taxes and Assessment Details
Values
| (+) Improvement Homesite Value: | + | $262,792 | |
| (+) Improvement Non-Homesite Value: | + | $0 | |
| (+) Land Homesite Value: | + | $320,000 | |
| (+) Land Non-Homesite Value: | + | $0 | |
| (+) Curr Use (HS): | + | $0 | $0 |
| (+) Curr Use (NHS): | + | $0 | $0 |
| | | -------------------------- | |
| (=) Market Value: | = | $582,792 | |
| (–) Productivity Loss: | – | $0 | |
| | | -------------------------- | |
| (=) Subtotal: | = | $582,792 | |
| (+) Senior Appraised Value: | + | $169,390 | |
| (+) Non-Senior Appraised Value: | + | $0 | |
| | | -------------------------- | |
| (=) Total Appraised Value: | = | $169,390 | |
| (–) Senior Exemption Loss: | – | $101,634 | |
| (–) Exemption Loss: | – | $0 | |
| | | -------------------------- | |
| (=) Taxable Value: | = | $67,756 | |
Taxing Jurisdiction
| Owner: | ALSKOG, STEVEN & SUSAN | | |
| % Ownership: | 100.0000000000% | | |
| Total Value: | $582,792 | | |
| Tax Area: | 512 - APPRAISER-Stan/Cam Schl Dist, improved, greater than 1 acre |
| CF | Conservation Futures | 0.0316035091 | $582,792 | $67,756 | $2.14 | | |
| EMS1 | Fire & Rescue Dist #1 Camano GEN (EMS) | 0.3677864386 | $582,792 | $67,756 | $24.92 | | |
| FIRE1 | Fire & Rescue Dist #1 Camano GEN | 1.2502910536 | $582,792 | $67,756 | $84.71 | | |
| FIRE1BOND | Fire & Rescue Dist #1 Camano BOND | 0.0000000000 | $582,792 | $0 | $0.00 | | |
| CE | County Current Expense | 0.3708482477 | $582,792 | $67,756 | $25.13 | | |
| CR | County Roads | 0.4584763726 | $582,792 | $67,756 | $31.06 | | |
| LCIB | Library Sno-Isle BOND (Camano Island) | 0.0000000000 | $582,792 | $0 | $0.00 | | |
| LIB | Library Sno-Isle GEN | 0.3153421757 | $582,792 | $67,756 | $21.37 | | |
| SCH205_401 | School 205-401 Enrichment | 0.0000000000 | $582,792 | $0 | $0.00 | | |
| SCH205BOND | School 205-401 BOND | 0.0000000000 | $582,792 | $0 | $0.00 | | |
| ST | State School | 1.3035497053 | $582,792 | $67,756 | $88.32 | | |
| ST2 | State School Part 2 | 0.0000000000 | $582,792 | $0 | $0.00 | | |
| | Total Tax Rate: | 4.0978975026 | | | | | |
| | | | | Taxes w/Current Exemptions: | $277.65 | | |
| | | | | Taxes w/o Exemptions: | $4,266.61 | | |
Improvement / Building
| Improvement #1: | RESIDENTIAL | State Code: | Y | 2052.7 sqft | Value: | $262,792 |
| Bathrooms: | 2 | Bedrooms: | 3 | | Ceiling: | DRYWALL PAINTED | Exterior Wall/Cover: | PLY/HARDBOARD T-111 | | Floor Covering: | HARDWOOD/CARP 20-80 | Floor Structure: | WOOD W/SUBFLOOR | | Foundation: | CONCRETE BLOCKS | Heating: | WALL HEAT ELECTRIC | | Interior Finish: | DRYWALL PAINT | Plumbing Fixture Cnt: | 9 | | Roof Slope: | 5" IN 12" | Roof Structure/Cover: | CJ ASPHALT |
|
| | Type | Description | Class CD | Sub Class CD | Year Built | Area |
| | BAS | BASE/MAIN FLOOR | 3 | 0 | 1984 | 2052.7 |
| | DGR | DETACHED GARAGE | 3 | 0 | 1984 | 240.0 |
| | OWP | OPEN WOOD PORCH W/STEPS | 3 | 0 | 1984 | 64.0 |
| | OWP | OPEN WOOD PORCH W/STEPS | 3 | 0 | 1984 | 256.0 |
Sketch
Property Image
Land
| 1 | 17 | AC (01.01-02.00) | 0.0000 | 0.00 | 0.00 | 0.00 | 1.00 | $320,000 | $0 |
Roll Value History
| 2026 | N/A | N/A | N/A | N/A | N/A |
| 2025 | $262,792 | $320,000 | $0 | $582,792 | $67,756 |
| 2024 | $266,479 | $310,000 | $0 | $576,479 | $67,756 |
| 2023 | $270,167 | $290,000 | $0 | $560,167 | $67,756 |
| 2022 | $247,981 | $260,000 | $0 | $507,981 | $67,756 |
| 2021 | $212,879 | $200,000 | $0 | $412,879 | $67,756 |
| 2020 | $208,095 | $200,000 | $0 | $408,095 | $67,756 |
| 2019 | $160,079 | $250,000 | $0 | $410,079 | $67,756 |
| 2018 | $160,611 | $210,000 | $0 | $370,611 | $67,756 |
| 2017 | $161,675 | $150,000 | $0 | $311,675 | $67,756 |
| 2016 | $163,802 | $120,000 | $0 | $283,802 | $67,756 |
| 2015 | $150,111 | $74,400 | $0 | $224,511 | $67,756 |
| 2014 | $152,198 | $74,400 | $0 | $226,598 | $67,756 |
| 2013 | $154,288 | $74,400 | $0 | $228,688 | $67,756 |
| 2012 | $156,374 | $74,400 | $0 | $230,774 | $67,756 |
| 2011 | $158,462 | $93,000 | $0 | $251,462 | $67,756 |
| 2010 | $167,198 | $93,000 | $0 | $260,198 | $67,756 |
| 2009 | $177,416 | $135,000 | $0 | $312,416 | $67,756 |
| 2008 | $179,790 | $136,000 | $0 | $315,790 | $67,756 |
| 2007 | $182,187 | $123,750 | $0 | $305,937 | $67,756 |
Deed and Sales History
| 1 | 03/01/1981 | EXECUTORD | Executor Deed | JOHNSTON, GENE J | ALSKOG, STEVEN & | | | $16,500.00 | 10744 | 380541 |
| 2 | 09/01/1979 | EXECUTORD | Executor Deed | BONNEY, DONALD R | JOHNSTON, GENE J | | | $17,500.00 | 94819 | 359689 |
| 3 | 04/01/1978 | OTHER | Other - Misc. Documents | Unknown | BONNEY, DONALD R | | | $17,000.00 | 81715 | 3314070 |
Payout Agreement
| No payout information available.. |