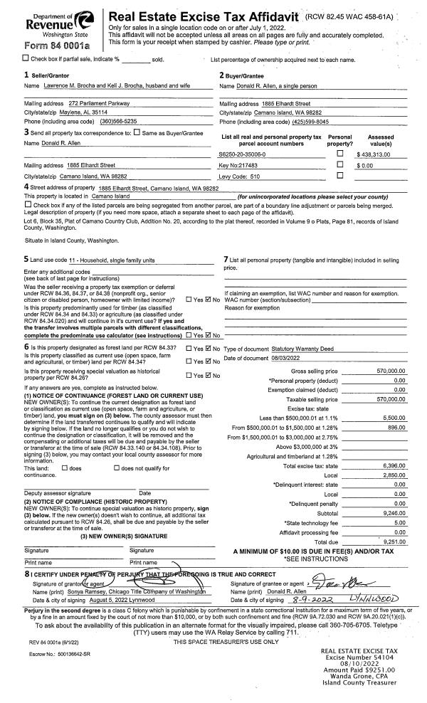
Property
Account |
| Property ID: | 474356 | Abbreviated Legal Description: | BG SE CR N/2 SE SEC 12 N89* W316.15' N772.68' S89*E97. 72' N7*W930.02' TPB N7* E344.4' S89*E638.56' S8* E344.85' N89*W641.4' TPB EX S170' TGW EZ FR 327508 SP 79-32 LOT 28N |
| Geographic ID: | R23112-333-5080 | Agent Code: | |
| Type: | Real | | |
| Tax Area: | 512 - APPRAISER-Stan/Cam Schl Dist, improved, greater than 1 acre | Land Use Code | 11 |
| Open Space: | N | DFL | N |
| Historic Property: | N | Remodel Property: | N |
| Multi-Family Redevelopment: | N | | |
| Township: | 31 | Section: | 12 |
| Range: | R2 |
Location |
| Address: | 565 GREEN ISLAND WAY CAMANO ISLAND, WA 98282 | Mapsco: | |
| Neighborhood: | Cycle 5 | Map ID: | 476 |
| Neighborhood CD: | 5 |
Owner |
| Name: | GARCIA JONES, NELSON D | Owner ID: | 57793 |
| Mailing Address: | JILL M GARCIA 565 GREEN ISLAND WAY CAMANO ISLAND, WA 98282-8477 | % Ownership: | 100.0000000000% |
| | | Exemptions: | |
Taxes and Assessment Details
Values
| (+) Improvement Homesite Value: | + | $0 | |
| (+) Improvement Non-Homesite Value: | + | $486,996 | |
| (+) Land Homesite Value: | + | $0 | |
| (+) Land Non-Homesite Value: | + | $410,000 | |
| (+) Curr Use (HS): | + | $0 | $0 |
| (+) Curr Use (NHS): | + | $0 | $0 |
| | | -------------------------- | |
| (=) Market Value: | = | $896,996 | |
| (–) Productivity Loss: | – | $0 | |
| | | -------------------------- | |
| (=) Subtotal: | = | $896,996 | |
| (+) Senior Appraised Value: | + | $0 | |
| (+) Non-Senior Appraised Value: | + | $896,996 | |
| | | -------------------------- | |
| (=) Total Appraised Value: | = | $896,996 | |
| (–) Senior Exemption Loss: | – | $0 | |
| (–) Exemption Loss: | – | $0 | |
| | | -------------------------- | |
| (=) Taxable Value: | = | $896,996 | |
Taxing Jurisdiction
| Owner: | GARCIA JONES, NELSON D | | |
| % Ownership: | 100.0000000000% | | |
| Total Value: | $896,996 | | |
| Tax Area: | 512 - APPRAISER-Stan/Cam Schl Dist, improved, greater than 1 acre |
| CF | Conservation Futures | 0.0316035091 | $896,996 | $896,996 | $28.35 | | |
| EMS1 | Fire & Rescue Dist #1 Camano GEN (EMS) | 0.3677864386 | $896,996 | $896,996 | $329.90 | | |
| FIRE1 | Fire & Rescue Dist #1 Camano GEN | 1.2502910536 | $896,996 | $896,996 | $1,121.51 | | |
| FIRE1BOND | Fire & Rescue Dist #1 Camano BOND | 0.1570001679 | $896,996 | $896,996 | $140.83 | | |
| CE | County Current Expense | 0.3708482477 | $896,996 | $896,996 | $332.65 | | |
| CR | County Roads | 0.4584763726 | $896,996 | $896,996 | $411.25 | | |
| LCIB | Library Sno-Isle BOND (Camano Island) | 0.0396325772 | $896,996 | $896,996 | $35.55 | | |
| LIB | Library Sno-Isle GEN | 0.3153421757 | $896,996 | $896,996 | $282.86 | | |
| SCH205_401 | School 205-401 Enrichment | 1.2698420524 | $896,996 | $896,996 | $1,139.04 | | |
| SCH205BOND | School 205-401 BOND | 0.9396497583 | $896,996 | $896,996 | $842.86 | | |
| ST | State School | 1.3035497053 | $896,996 | $896,996 | $1,169.28 | | |
| ST2 | State School Part 2 | 0.8169543533 | $896,996 | $896,996 | $732.80 | | |
| | Total Tax Rate: | 7.3209764117 | | | | | |
| | | | | Taxes w/Current Exemptions: | $6,566.88 | | |
| | | | | Taxes w/o Exemptions: | $6,566.88 | | |
Improvement / Building
| Improvement #1: | RESIDENTIAL | State Code: | Y | 2282.0 sqft | Value: | $486,996 |
| Bathrooms: | 3 | Bedrooms: | 0 | | Ceiling: | DRYWALL PAINTED | Cooling: | HEAT PUMP/CONV/V | | Exterior Wall/Cover: | WOOD SIDING | Floor Covering: | HARDWOOD/CARP 20-80 | | Floor Structure: | WOOD W/SUBFLOOR | Foundation: | CONCRETE | | Interior Finish: | DRYWALL PAINT | Plumbing Fixture Cnt: | 12 | | Roof Slope: | 5" IN 12" | Roof Structure/Cover: | CJ CONCRETE TILE |
|
| | Type | Description | Class CD | Sub Class CD | Year Built | Area |
| | BAS | BASE/MAIN FLOOR | 4 | 0 | 1984 | 2282.0 |
| | OP2 | OPEN PORCH W/STEPS | 4 | 0 | 1984 | 38.5 |
| | OP4 | OPEN PORCH W/CEILING-ROOF | 4 | 0 | 1984 | 33.8 |
| | AGR | ATTACHED GARAGE | 4 | 0 | 1984 | 879.7 |
| | OWP | OPEN WOOD PORCH W/STEPS | 4 | 0 | 1984 | 366.0 |
| | OWP | OPEN WOOD PORCH W/STEPS | 4 | 0 | 1984 | 218.9 |
| | ENP | ENCLOSED PORCH | 4 | 0 | 1984 | 122.4 |
Sketch
Property Image
Land
| 1 | 18 | AC (02.01-03.00) | 0.0000 | 0.00 | 0.00 | 0.00 | 1.00 | $410,000 | $0 |
Roll Value History
| 2026 | N/A | N/A | N/A | N/A | N/A |
| 2025 | $486,996 | $410,000 | $0 | $896,996 | $896,996 |
| 2024 | $493,469 | $390,000 | $0 | $883,469 | $883,469 |
| 2023 | $499,940 | $370,000 | $0 | $869,940 | $869,940 |
| 2022 | $458,554 | $350,000 | $0 | $808,554 | $808,554 |
| 2021 | $406,616 | $260,000 | $0 | $666,616 | $666,616 |
| 2020 | $396,748 | $220,000 | $0 | $616,748 | $616,748 |
| 2019 | $298,999 | $260,000 | $0 | $558,999 | $558,999 |
| 2018 | $299,920 | $220,000 | $0 | $519,920 | $519,920 |
| 2017 | $298,968 | $180,000 | $0 | $478,968 | $478,968 |
| 2016 | $302,612 | $150,000 | $0 | $452,612 | $452,612 |
| 2015 | $289,552 | $140,000 | $0 | $429,552 | $429,552 |
| 2014 | $293,304 | $140,000 | $0 | $433,304 | $433,304 |
| 2013 | $297,062 | $140,000 | $0 | $437,062 | $437,062 |
| 2012 | $300,815 | $140,000 | $0 | $440,815 | $440,815 |
| 2011 | $304,571 | $175,000 | $0 | $479,571 | $479,571 |
| 2010 | $315,766 | $175,000 | $0 | $490,766 | $490,766 |
| 2009 | $329,980 | $215,000 | $0 | $544,980 | $544,980 |
| 2008 | $331,298 | $215,000 | $0 | $546,298 | $546,298 |
| 2007 | $336,467 | $184,000 | $0 | $520,467 | $520,467 |
Deed and Sales History
| 1 | 05/26/1998 | WD | Warranty Deed | JONES-GARCIA, D & | GARICA JONES, NELSON D | | | $324,000.00 | 81967 | 98010359 |
| 2 | 05/01/1984 | WD | Warranty Deed | KILLOUGH, HADLEY W | SANDERS, FRED | | | $42,500.00 | 41285 | 424292 |
| 3 | 04/01/1980 | EXECUTORD | Executor Deed | GILBERTSON, KENNETH L | KILLOUGH, HADLEY W | | | $32,500.00 | 1238 | 0 |
| 4 | 09/01/1978 | OTHER | Other - Misc. Documents | Unknown | GILBERTSON, KENNETH L | | | $24,000.00 | 84953 | 340971 |
| 5 | 01/01/1900 | OTHER | Other - Misc. Documents | GILBERTSON, KENNETH L | GILBERTSON, KENNETH L | | | $0.00 | 0 | 0 |
| 6 | 01/01/1900 | OTHER | Other - Misc. Documents | SANDERS, FRED | JONES-GARCIA, D & | | | $0.00 | 81967 | 98010359 |
Payout Agreement
| No payout information available.. |