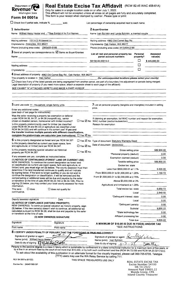
Property
Account |
| Property ID: | 474374 | Abbreviated Legal Description: | S170' OF:BG SE CR N/2 SE SEC 12 N89*W316.15' N772.68 S89*E97.72' N7*W930.02' TPB N7*W344.4' S89*E638.56' S8*E344.85' N89*W641.4' TPB FR 3275080 SP 79-32 LOT 28S AF#353797 |
| Geographic ID: | R23112-315-5080 | Agent Code: | |
| Type: | Real | | |
| Tax Area: | 512 - APPRAISER-Stan/Cam Schl Dist, improved, greater than 1 acre | Land Use Code | 11 |
| Open Space: | N | DFL | N |
| Historic Property: | N | Remodel Property: | N |
| Multi-Family Redevelopment: | N | | |
| Township: | 31 | Section: | 12 |
| Range: | R2 |
Location |
| Address: | 587 GREEN ISLAND WAY CAMANO ISLAND, WA 98282 | Mapsco: | |
| Neighborhood: | Cycle 5 | Map ID: | 476 |
| Neighborhood CD: | 5 |
Owner |
| Name: | LIPINSKI, MARGARET M | Owner ID: | 263038 |
| Mailing Address: | 587 GREEN ISLAND WAY CAMANO ISLAND, WA 98282 | % Ownership: | 100.0000000000% |
| | | Exemptions: | |
Taxes and Assessment Details
Values
| (+) Improvement Homesite Value: | + | $0 | |
| (+) Improvement Non-Homesite Value: | + | $345,824 | |
| (+) Land Homesite Value: | + | $0 | |
| (+) Land Non-Homesite Value: | + | $410,000 | |
| (+) Curr Use (HS): | + | $0 | $0 |
| (+) Curr Use (NHS): | + | $0 | $0 |
| | | -------------------------- | |
| (=) Market Value: | = | $755,824 | |
| (–) Productivity Loss: | – | $0 | |
| | | -------------------------- | |
| (=) Subtotal: | = | $755,824 | |
| (+) Senior Appraised Value: | + | $0 | |
| (+) Non-Senior Appraised Value: | + | $755,824 | |
| | | -------------------------- | |
| (=) Total Appraised Value: | = | $755,824 | |
| (–) Senior Exemption Loss: | – | $0 | |
| (–) Exemption Loss: | – | $0 | |
| | | -------------------------- | |
| (=) Taxable Value: | = | $755,824 | |
Taxing Jurisdiction
| Owner: | LIPINSKI, MARGARET M | | |
| % Ownership: | 100.0000000000% | | |
| Total Value: | $755,824 | | |
| Tax Area: | 512 - APPRAISER-Stan/Cam Schl Dist, improved, greater than 1 acre |
| CF | Conservation Futures | 0.0316035091 | $755,824 | $755,824 | $23.89 | | |
| EMS1 | Fire & Rescue Dist #1 Camano GEN (EMS) | 0.3677864386 | $755,824 | $755,824 | $277.98 | | |
| FIRE1 | Fire & Rescue Dist #1 Camano GEN | 1.2502910536 | $755,824 | $755,824 | $945.00 | | |
| FIRE1BOND | Fire & Rescue Dist #1 Camano BOND | 0.1570001679 | $755,824 | $755,824 | $118.66 | | |
| CE | County Current Expense | 0.3708482477 | $755,824 | $755,824 | $280.30 | | |
| CR | County Roads | 0.4584763726 | $755,824 | $755,824 | $346.53 | | |
| LCIB | Library Sno-Isle BOND (Camano Island) | 0.0396325772 | $755,824 | $755,824 | $29.96 | | |
| LIB | Library Sno-Isle GEN | 0.3153421757 | $755,824 | $755,824 | $238.34 | | |
| SCH205_401 | School 205-401 Enrichment | 1.2698420524 | $755,824 | $755,824 | $959.78 | | |
| SCH205BOND | School 205-401 BOND | 0.9396497583 | $755,824 | $755,824 | $710.21 | | |
| ST | State School | 1.3035497053 | $755,824 | $755,824 | $985.25 | | |
| ST2 | State School Part 2 | 0.8169543533 | $755,824 | $755,824 | $617.47 | | |
| | Total Tax Rate: | 7.3209764117 | | | | | |
| | | | | Taxes w/Current Exemptions: | $5,533.37 | | |
| | | | | Taxes w/o Exemptions: | $5,533.37 | | |
Improvement / Building
| Improvement #1: | RESIDENTIAL | State Code: | Y | 2322.0 sqft | Value: | $345,824 |
| Bathrooms: | 2.5 | Bedrooms: | 3 | | Ceiling: | DRYWALL PAINTED | Exterior Wall/Cover: | CEMENT FIBER | | Floor Covering: | CARPET/VINYL 80-20 | Floor Structure: | WOOD W/SUBFLOOR | | Foundation: | CONCRETE | Heating: | WALL HEAT ELECTRIC | | Interior Finish: | DRYWALL PAINT | Plumbing Fixture Cnt: | 13 | | Roof Slope: | 12" IN 12" | Roof Structure/Cover: | CJ ASPHALT |
|
| | Type | Description | Class CD | Sub Class CD | Year Built | Area |
| | BAS | BASE/MAIN FLOOR | 3 | 0 | 1990 | 1566.0 |
| | OP2 | OPEN PORCH W/STEPS | 3 | 0 | 1990 | 42.0 |
| | DGR | DETACHED GARAGE | 3 | 0 | 1990 | 936.0 |
| | UPS | UPPER STORY | 3 | 0 | 1990 | 756.0 |
| | BAW | BALCONY WOOD RAIL | 3 | 0 | 1990 | 84.0 |
| | OWP | OPEN WOOD PORCH W/STEPS | 3 | 0 | 1990 | 216.0 |
| | OWP | OPEN WOOD PORCH W/STEPS | 3 | 0 | 1990 | 140.0 |
| | OWC | OPEN WOOD PORCH W/STEPS/ROOF/C | 3 | 0 | 1990 | 170.0 |
Sketch
Property Image
Land
| 1 | 18 | AC (02.01-03.00) | 0.0000 | 0.00 | 0.00 | 0.00 | 1.00 | $410,000 | $0 |
Roll Value History
| 2026 | N/A | N/A | N/A | N/A | N/A |
| 2025 | $345,824 | $410,000 | $0 | $755,824 | $755,824 |
| 2024 | $350,546 | $390,000 | $0 | $740,546 | $740,546 |
| 2023 | $355,267 | $370,000 | $0 | $725,267 | $725,267 |
| 2022 | $325,972 | $350,000 | $0 | $675,972 | $675,972 |
| 2021 | $285,791 | $260,000 | $0 | $545,791 | $545,791 |
| 2020 | $278,835 | $220,000 | $0 | $498,835 | $498,835 |
| 2019 | $213,894 | $260,000 | $0 | $473,894 | $473,894 |
| 2018 | $214,567 | $220,000 | $0 | $434,567 | $434,567 |
| 2017 | $215,918 | $180,000 | $0 | $395,918 | $395,918 |
| 2016 | $218,617 | $150,000 | $0 | $368,617 | $368,617 |
| 2015 | $200,243 | $140,000 | $0 | $340,243 | $340,243 |
| 2014 | $202,948 | $140,000 | $0 | $342,948 | $342,948 |
| 2013 | $205,648 | $140,000 | $0 | $345,648 | $345,648 |
| 2012 | $208,350 | $140,000 | $0 | $348,350 | $348,350 |
| 2011 | $211,050 | $175,000 | $0 | $386,050 | $386,050 |
| 2010 | $218,764 | $175,000 | $0 | $393,764 | $393,764 |
| 2009 | $228,210 | $215,000 | $0 | $443,210 | $443,210 |
| 2008 | $230,968 | $215,000 | $0 | $445,968 | $445,968 |
| 2007 | $233,736 | $130,000 | $0 | $363,736 | $363,736 |
Deed and Sales History
| 1 | 06/13/2013 | PRD | Personal Representatives Deed | LIPINSKI, RAYMOND T | LIPINSKI, MARGARET M | | | $0.00 | 11954 | 4343702 |
| 2 | 05/01/1989 | WD | Warranty Deed | JOHNSON, A D | LIPINSKI, RAYMOND T | | | $47,500.00 | 91812 | 89006275 |
| 3 | 10/01/1979 | EXECUTORD | Executor Deed | GILBERTSON, KENNETH L | JOHNSON, A D | | | $35,000.00 | 94903 | 359919 |
| 4 | 09/01/1978 | OTHER | Other - Misc. Documents | Unknown | GILBERTSON, KENNETH L | | | $24,000.00 | 84953 | 340971 |
Payout Agreement
| No payout information available.. |