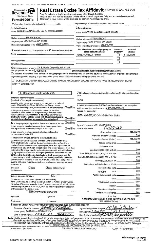
Property
Account |
| Property ID: | 474436 | Abbreviated Legal Description: | S169.18' OF BG SE CR N/2 SE N89*W316.15' N772.68' S89* E97.72' N7*W587.09' TPB N7*W342.93' S89*E641.4' S8* E343.37' N89*W644.22' TPB TGW EZ FR 295513 SP 79-32 LOT 29S |
| Geographic ID: | R23112-282-5130 | Agent Code: | |
| Type: | Real | | |
| Tax Area: | 519 - APPRAISER-Stan/Cam Schl Dist, vacant & 50 acres or less | Land Use Code | 91 |
| Open Space: | N | DFL | N |
| Historic Property: | N | Remodel Property: | N |
| Multi-Family Redevelopment: | N | | |
| Township: | 31 | Section: | 12 |
| Range: | R2 |
Location |
| Address: | | Mapsco: | |
| Neighborhood: | Cycle 5 | Map ID: | 476 |
| Neighborhood CD: | 5 |
Owner |
| Name: | PEDERSEN, JOE F | Owner ID: | 308425 |
| Mailing Address: | SHARON G PEDERSEN 903 ROCKY POINT DR CAMANO ISLAND, WA 98282 | % Ownership: | 100.0000000000% |
| | | Exemptions: | |
Taxes and Assessment Details
Values
| (+) Improvement Homesite Value: | + | $0 | |
| (+) Improvement Non-Homesite Value: | + | $0 | |
| (+) Land Homesite Value: | + | $0 | |
| (+) Land Non-Homesite Value: | + | $260,000 | |
| (+) Curr Use (HS): | + | $0 | $0 |
| (+) Curr Use (NHS): | + | $0 | $0 |
| | | -------------------------- | |
| (=) Market Value: | = | $260,000 | |
| (–) Productivity Loss: | – | $0 | |
| | | -------------------------- | |
| (=) Subtotal: | = | $260,000 | |
| (+) Senior Appraised Value: | + | $0 | |
| (+) Non-Senior Appraised Value: | + | $260,000 | |
| | | -------------------------- | |
| (=) Total Appraised Value: | = | $260,000 | |
| (–) Senior Exemption Loss: | – | $0 | |
| (–) Exemption Loss: | – | $0 | |
| | | -------------------------- | |
| (=) Taxable Value: | = | $260,000 | |
Taxing Jurisdiction
| Owner: | PEDERSEN, JOE F | | |
| % Ownership: | 100.0000000000% | | |
| Total Value: | $260,000 | | |
| Tax Area: | 519 - APPRAISER-Stan/Cam Schl Dist, vacant & 50 acres or less |
| CF | Conservation Futures | 0.0316035091 | $260,000 | $260,000 | $8.22 | | |
| EMS1 | Fire & Rescue Dist #1 Camano GEN (EMS) | 0.3677864386 | $260,000 | $260,000 | $95.62 | | |
| CE | County Current Expense | 0.3708482477 | $260,000 | $260,000 | $96.42 | | |
| CR | County Roads | 0.4584763726 | $260,000 | $260,000 | $119.20 | | |
| LCIB | Library Sno-Isle BOND (Camano Island) | 0.0396325772 | $260,000 | $260,000 | $10.30 | | |
| LIB | Library Sno-Isle GEN | 0.3153421757 | $260,000 | $260,000 | $81.99 | | |
| SCH205_401 | School 205-401 Enrichment | 1.2698420524 | $260,000 | $260,000 | $330.16 | | |
| SCH205BOND | School 205-401 BOND | 0.9396497583 | $260,000 | $260,000 | $244.31 | | |
| ST | State School | 1.3035497053 | $260,000 | $260,000 | $338.92 | | |
| ST2 | State School Part 2 | 0.8169543533 | $260,000 | $260,000 | $212.41 | | |
| | Total Tax Rate: | 5.9136851902 | | | | | |
| | | | | Taxes w/Current Exemptions: | $1,537.55 | | |
| | | | | Taxes w/o Exemptions: | $1,537.55 | | |
Improvement / Building
Sketch
| No sketches available for this property. |
Property Image
Land
| 1 | 18 | AC (02.01-03.00) | 0.0000 | 0.00 | 0.00 | 0.00 | 1.00 | $260,000 | $0 |
Roll Value History
| 2026 | N/A | N/A | N/A | N/A | N/A |
| 2025 | $0 | $260,000 | $0 | $260,000 | $260,000 |
| 2024 | $0 | $250,000 | $0 | $250,000 | $250,000 |
| 2023 | $0 | $230,000 | $0 | $230,000 | $230,000 |
| 2022 | $0 | $220,000 | $0 | $220,000 | $220,000 |
| 2021 | $0 | $190,000 | $0 | $190,000 | $190,000 |
| 2020 | $0 | $180,000 | $0 | $180,000 | $180,000 |
| 2019 | $0 | $180,000 | $0 | $180,000 | $180,000 |
| 2018 | $0 | $150,000 | $0 | $150,000 | $150,000 |
| 2017 | $0 | $150,000 | $0 | $150,000 | $150,000 |
| 2016 | $0 | $150,000 | $0 | $150,000 | $150,000 |
| 2015 | $0 | $150,000 | $0 | $150,000 | $150,000 |
| 2014 | $0 | $150,000 | $0 | $150,000 | $150,000 |
| 2013 | $0 | $150,000 | $0 | $150,000 | $150,000 |
| 2012 | $0 | $150,000 | $0 | $150,000 | $150,000 |
| 2011 | $0 | $150,000 | $0 | $150,000 | $150,000 |
| 2010 | $0 | $150,000 | $0 | $150,000 | $150,000 |
| 2009 | $0 | $360,000 | $0 | $360,000 | $360,000 |
| 2008 | $0 | $360,000 | $0 | $360,000 | $360,000 |
| 2007 | $0 | $130,000 | $0 | $130,000 | $130,000 |
Deed and Sales History
| 1 | 04/18/2023 | WD | Warranty Deed | BUCKLEY, JOHN T | PEDERSEN, JOE F | | | $370,000.00 | 56469 | 4559056 |
| 2 | 02/26/2007 | WD | Warranty Deed | VERONICO TRUXT, ARMAND H | BUCKLEY, JOHN T | | | $360,000.00 | 70707 | 4195415 |
| 3 | 10/23/2002 | QCD | Quit Claim Deed | VERONICO, ARMAND H | VERONICO TRUXT, ARMAND H | | | $0.00 | 30368 | 4048068 |
| 4 | 04/01/1980 | EXECUTORD | Executor Deed | GILBERTSON, KENNETH L | VERONICO, ARMAND H | | | $32,500.00 | 1269 | 367649 |
| 5 | 01/01/1900 | OTHER | Other - Misc. Documents | Unknown | GILBERTSON, KENNETH L | | | $0.00 | 0 | 0 |
Payout Agreement
| No payout information available.. |