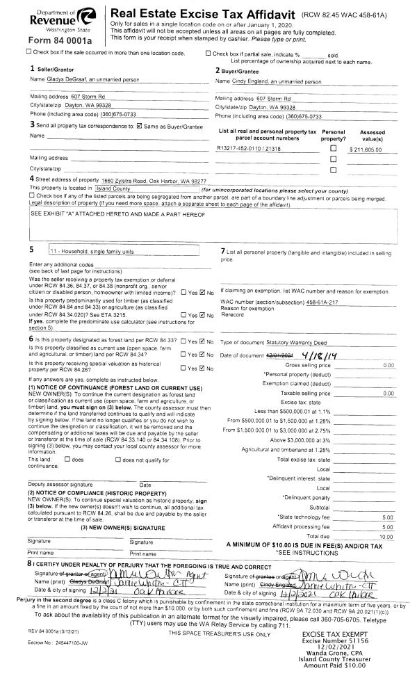
Property
Account |
| Property ID: | 47452 | Abbreviated Legal Description: | 49 - N330' OF S1320' OF E/2 E/2 NE ALSO EZ A & B REC 30M15 (AKA N330' OF S1320' OF TR C WONDERWOOD AF#159977) |
| Geographic ID: | R22904-386-4970 | Agent Code: | |
| Type: | Real | | |
| Tax Area: | 712 - APPRAISER-S Whid Schl Dist, outside Langley, improved, greater than 1 acre | Land Use Code | 11 |
| Open Space: | N | DFL | N |
| Historic Property: | N | Remodel Property: | N |
| Multi-Family Redevelopment: | N | | |
| Township: | 29 | Section: | 04 |
| Range: | R2 |
Location |
| Address: | 4923 TYLER LN FREELAND, WA 98249 | Mapsco: | |
| Neighborhood: | Cycle 3 | Map ID: | 294 |
| Neighborhood CD: | 3 |
Owner |
| Name: | EARL, ARRON | Owner ID: | 252982 |
| Mailing Address: | 4393 TYLER LN FREELAND, WA 98249 | % Ownership: | 100.0000000000% |
| | | Exemptions: | |
Taxes and Assessment Details
Values
| (+) Improvement Homesite Value: | + | $0 | |
| (+) Improvement Non-Homesite Value: | + | $268,310 | |
| (+) Land Homesite Value: | + | $0 | |
| (+) Land Non-Homesite Value: | + | $370,000 | |
| (+) Curr Use (HS): | + | $0 | $0 |
| (+) Curr Use (NHS): | + | $0 | $0 |
| | | -------------------------- | |
| (=) Market Value: | = | $638,310 | |
| (–) Productivity Loss: | – | $0 | |
| | | -------------------------- | |
| (=) Subtotal: | = | $638,310 | |
| (+) Senior Appraised Value: | + | $0 | |
| (+) Non-Senior Appraised Value: | + | $638,310 | |
| | | -------------------------- | |
| (=) Total Appraised Value: | = | $638,310 | |
| (–) Senior Exemption Loss: | – | $0 | |
| (–) Exemption Loss: | – | $0 | |
| | | -------------------------- | |
| (=) Taxable Value: | = | $638,310 | |
Taxing Jurisdiction
| Owner: | EARL, ARRON | | |
| % Ownership: | 100.0000000000% | | |
| Total Value: | $638,310 | | |
| Tax Area: | 712 - APPRAISER-S Whid Schl Dist, outside Langley, improved, greater than 1 acre |
| CF | Conservation Futures | 0.0316035091 | $638,310 | $638,310 | $20.17 | | |
| FIRE3 | Fire & Rescue Dist #3 S Whidbey GEN | 1.2004855531 | $638,310 | $638,310 | $766.28 | | |
| HOBOND | Hospital BOND | 0.1910887512 | $638,310 | $638,310 | $121.97 | | |
| HOGEN | Hospital GEN | 0.3902502903 | $638,310 | $638,310 | $249.10 | | |
| CE | County Current Expense | 0.3708482477 | $638,310 | $638,310 | $236.72 | | |
| CR | County Roads | 0.4584763726 | $638,310 | $638,310 | $292.65 | | |
| ISLANDEMS | Hospital GEN (EMS) | 0.5000000000 | $638,310 | $638,310 | $319.16 | | |
| LIB | Library Sno-Isle GEN | 0.3153421757 | $638,310 | $638,310 | $201.29 | | |
| PORTWHID | Port of S Whidbey GEN | 0.1094540357 | $638,310 | $638,310 | $69.87 | | |
| SCH206BOND | School 206 BOND | 0.3161759235 | $638,310 | $638,310 | $201.82 | | |
| SCH206MO | School 206 Enrichment | 0.4547169547 | $638,310 | $638,310 | $290.25 | | |
| ST | State School | 1.3035497053 | $638,310 | $638,310 | $832.07 | | |
| ST2 | State School Part 2 | 0.8169543533 | $638,310 | $638,310 | $521.47 | | |
| SWHIDPRBD | P & R S Whidbey BOND | 0.0152817568 | $638,310 | $638,310 | $9.75 | | |
| SWHIDPRBD2 | P & R S Whidbey BOND2 | 0.0138911264 | $638,310 | $638,310 | $8.87 | | |
| SWHIDPRMT | P & R S Whidbey GEN | 0.2053334452 | $638,310 | $638,310 | $131.07 | | |
| | Total Tax Rate: | 6.6934522006 | | | | | |
| | | | | Taxes w/Current Exemptions: | $4,272.51 | | |
| | | | | Taxes w/o Exemptions: | $4,272.51 | | |
Improvement / Building
| Improvement #1: | RESIDENTIAL | State Code: | A1 | 958.8 sqft | Value: | $268,310 |
| Bathrooms: | 1 | Bedrooms: | 3 | | Ceiling: | DRYWALL PAINTED | Exterior Wall/Cover: | PLY/HARDBOARD T-111 | | Floor Covering: | CARPET/VINYL 60-40 | Floor Structure: | WOOD W/SUBFLOOR | | Foundation: | CONCRETE | Heating: | FHA GAS | | Interior Finish: | DRYWALL PAINT | Plumbing Fixture Cnt: | 12 | | Roof Slope: | 4" IN 12" | Roof Structure/Cover: | CJ ASPHALT |
|
| | Type | Description | Class CD | Sub Class CD | Year Built | Area |
| | BAS | BASE/MAIN FLOOR | 3 | 0 | 2011 | 958.8 |
| | AGR | ATTACHED GARAGE | 3 | 0 | 2011 | 400.0 |
| | OWP | OPEN WOOD PORCH W/STEPS | 3 | 0 | 2011 | 30.0 |
| | DGR | DETACHED GARAGE | 3 | 0 | 2011 | 888.0 |
| | CPD | OPEN CARPORT DIRT FLOOR | 3 | 0 | 2011 | 592.0 |
| | OWP | OPEN WOOD PORCH W/STEPS | 3 | 0 | 2011 | 208.0 |
Sketch
Property Image
Land
| 1 | 32 | AC (03.01-09.99) | 5.0000 | 0.00 | 0.00 | 0.00 | 1.00 | $370,000 | $0 |
Roll Value History
| 2026 | N/A | N/A | N/A | N/A | N/A |
| 2025 | $268,310 | $370,000 | $0 | $638,310 | $638,310 |
| 2024 | $271,421 | $350,000 | $0 | $621,421 | $621,421 |
| 2023 | $274,532 | $310,000 | $0 | $584,532 | $584,532 |
| 2022 | $251,413 | $290,000 | $0 | $541,413 | $541,413 |
| 2021 | $220,460 | $220,000 | $0 | $440,460 | $440,460 |
| 2020 | $212,629 | $180,000 | $0 | $392,629 | $392,629 |
| 2019 | $124,473 | $230,000 | $0 | $354,473 | $354,473 |
| 2018 | $124,805 | $200,000 | $0 | $324,805 | $324,805 |
| 2017 | $125,469 | $165,000 | $0 | $290,469 | $290,469 |
| 2016 | $126,796 | $165,000 | $0 | $291,796 | $291,796 |
| 2015 | $128,124 | $135,000 | $0 | $263,124 | $263,124 |
| 2014 | $129,451 | $135,000 | $0 | $264,451 | $264,451 |
| 2013 | $132,424 | $85,000 | $0 | $217,424 | $217,424 |
| 2012 | $133,789 | $85,000 | $0 | $218,789 | $218,789 |
| 2011 | $136,520 | $85,000 | $0 | $221,520 | $221,520 |
| 2010 | $0 | $125,000 | $505 | $505 | $505 |
| 2009 | $0 | $155,000 | $505 | $505 | $505 |
| 2008 | $0 | $160,000 | $505 | $505 | $505 |
| 2007 | $0 | $160,000 | $505 | $505 | $505 |
Deed and Sales History
| 1 | 06/25/2021 | QCD | Quit Claim Deed | EARL, ARRON | EARL, ARRON | | | $0.00 | 49015 | 4523545 |
| 2 | 12/20/2010 | WD | Warranty Deed | WHIDBEY ENTERPRISES LLC | EARL, ARRON | | | $79,000.00 | 3262 | 4287887 |
| 3 | 12/01/1995 | WD | Warranty Deed | WHIDBEY, ENTERPRISE L | SIKMA, ENTERPRISES I | | | $303.00 | 54313 | 95019935 |
| 4 | 12/01/1995 | WD | Warranty Deed | WHIDBEY, ENTERPRISE L | WHIDBEY, ENTERPRISE L | | | $0.00 | 54315 | 95019936 |
| 5 | 12/01/1995 | WD | Warranty Deed | SIKMA, ENTERPRISES I | WHIDBEY, ENTERPRISE L | | | $0.00 | 54316 | 95019937 |
| 6 | 12/01/1993 | QCD | Quit Claim Deed | GOLF, NORTHWEST, I | SIKMA, ENTERPRISES I | | | $390.00 | 34930 | 93025667 |
| 7 | 03/01/1990 | WD | Warranty Deed | SEA-1ST, NATL B | GOLF, NORTHWEST, I | | | $22,535.00 | 1706 | 90005499 |
| 8 | 03/01/1981 | CD | DNU - Correction Deed | WATERMAN, BERNARD | SEA-1ST, NATL B | | | $0.00 | 11698 | 383810 |
| 9 | 01/01/1900 | OTHER | Other - Misc. Documents | Unknown | WATERMAN, BERNARD | | | $0.00 | 0 | 0 |
Payout Agreement
| No payout information available.. |