Property
Account |
| Property ID: | 475211 | Abbreviated Legal Description: | N/2 SW SW SE TGW & SUB EZS AF#385678 & 408702 FR O37-3960 |
| Geographic ID: | R23224-055-3000 | Agent Code: | |
| Type: | Real | | |
| Tax Area: | 512 - APPRAISER-Stan/Cam Schl Dist, improved, greater than 1 acre | Land Use Code | 11 |
| Open Space: | N | DFL | N |
| Historic Property: | N | Remodel Property: | N |
| Multi-Family Redevelopment: | N | | |
| Township: | 32 | Section: | 24 |
| Range: | R2 |
Location |
| Address: | 190 AMANDA LN CAMANO ISLAND, WA 98282 | Mapsco: | |
| Neighborhood: | North Camano | Map ID: | 559 |
| Neighborhood CD: | 06-C |
Owner |
| Name: | BALDWIN, ADAM PHILIP | Owner ID: | 298256 |
| Mailing Address: | RACHEL ELIZABETH BALDWIN 7105 W PEARL ST PASCO, WA 99301 | % Ownership: | 100.0000000000% |
| | | Exemptions: | |
Taxes and Assessment Details
Values
| (+) Improvement Homesite Value: | + | $0 | |
| (+) Improvement Non-Homesite Value: | + | $510,179 | |
| (+) Land Homesite Value: | + | $0 | |
| (+) Land Non-Homesite Value: | + | $470,000 | |
| (+) Curr Use (HS): | + | $0 | $0 |
| (+) Curr Use (NHS): | + | $0 | $0 |
| | | -------------------------- | |
| (=) Market Value: | = | $980,179 | |
| (–) Productivity Loss: | – | $0 | |
| | | -------------------------- | |
| (=) Subtotal: | = | $980,179 | |
| (+) Senior Appraised Value: | + | $0 | |
| (+) Non-Senior Appraised Value: | + | $980,179 | |
| | | -------------------------- | |
| (=) Total Appraised Value: | = | $980,179 | |
| (–) Senior Exemption Loss: | – | $0 | |
| (–) Exemption Loss: | – | $0 | |
| | | -------------------------- | |
| (=) Taxable Value: | = | $980,179 | |
Taxing Jurisdiction
| Owner: | BALDWIN, ADAM PHILIP | | |
| % Ownership: | 100.0000000000% | | |
| Total Value: | $980,179 | | |
| Tax Area: | 512 - APPRAISER-Stan/Cam Schl Dist, improved, greater than 1 acre |
| CF | Conservation Futures | 0.0316035091 | $980,179 | $980,179 | $30.98 | | |
| EMS1 | Fire & Rescue Dist #1 Camano GEN (EMS) | 0.3677864386 | $980,179 | $980,179 | $360.50 | | |
| FIRE1 | Fire & Rescue Dist #1 Camano GEN | 1.2502910536 | $980,179 | $980,179 | $1,225.51 | | |
| FIRE1BOND | Fire & Rescue Dist #1 Camano BOND | 0.1570001679 | $980,179 | $980,179 | $153.89 | | |
| CE | County Current Expense | 0.3708482477 | $980,179 | $980,179 | $363.50 | | |
| CR | County Roads | 0.4584763726 | $980,179 | $980,179 | $449.39 | | |
| LCIB | Library Sno-Isle BOND (Camano Island) | 0.0396325772 | $980,179 | $980,179 | $38.85 | | |
| LIB | Library Sno-Isle GEN | 0.3153421757 | $980,179 | $980,179 | $309.09 | | |
| SCH205_401 | School 205-401 Enrichment | 1.2698420524 | $980,179 | $980,179 | $1,244.67 | | |
| SCH205BOND | School 205-401 BOND | 0.9396497583 | $980,179 | $980,179 | $921.02 | | |
| ST | State School | 1.3035497053 | $980,179 | $980,179 | $1,277.71 | | |
| ST2 | State School Part 2 | 0.8169543533 | $980,179 | $980,179 | $800.76 | | |
| | Total Tax Rate: | 7.3209764117 | | | | | |
| | | | | Taxes w/Current Exemptions: | $7,175.87 | | |
| | | | | Taxes w/o Exemptions: | $7,175.87 | | |
Improvement / Building
| Improvement #1: | RESIDENTIAL | State Code: | Y | 3416.0 sqft | Value: | $510,179 |
| Bathrooms: | 3 | Bedrooms: | 3 | | Ceiling: | DRYWALL PAINTED | Exterior Wall/Cover: | PLY/HARDBOARD T-111 | | Floor Covering: | VINYL 100% | Floor Structure: | WOOD W/SUBFLOOR | | Foundation: | CONCRETE | Interior Finish: | DRYWALL PAINT | | Plumbing Fixture Cnt: | 9 | Roof Slope: | 5" IN 12" | | Roof Structure/Cover: | ALUM LIGHT |   |   |
|
| | Type | Description | Class CD | Sub Class CD | Year Built | Area |
| | BAS | BASE/MAIN FLOOR | 4 | 0 | 2022 | 3024.0 |
| | AGR | ATTACHED GARAGE | 4 | 0 | 2022 | 982.0 |
| | UTY | STORAGE/UTILITY | 4 | 0 | 2022 | 200.0 |
| | oPOL | POLE BARN | 4 | 0 | 2022 | 2500.0 |
| | oPOL | POLE BARN | 4 | 0 | 2022 | 992.2 |
| | OWP | OPEN WOOD PORCH W/STEPS | 4 | 0 | 2022 | 128.0 |
| | LOF | LOFT | 4 | 0 | 2022 | 392.0 |
| | OWP | OPEN WOOD PORCH W/STEPS | 4 | 0 | 2022 | 476.0 |
Sketch
Property Image
Land
| 1 | 32 | AC (03.01-09.99) | 4.9400 | 0.00 | 0.00 | 0.00 | 1.00 | $470,000 | $0 |
Roll Value History
| 2026 | N/A | N/A | N/A | N/A | N/A |
| 2025 | $510,179 | $470,000 | $0 | $980,179 | $980,179 |
| 2024 | $514,486 | $470,000 | $0 | $984,486 | $984,486 |
| 2023 | $381,301 | $270,000 | $0 | $651,301 | $651,301 |
| 2022 | $69,140 | $270,000 | $0 | $339,140 | $339,140 |
| 2021 | $0 | $220,000 | $0 | $220,000 | $220,000 |
| 2020 | $0 | $220,000 | $0 | $220,000 | $220,000 |
| 2019 | $0 | $220,000 | $0 | $220,000 | $220,000 |
| 2018 | $0 | $200,000 | $0 | $200,000 | $200,000 |
| 2017 | $0 | $200,000 | $0 | $200,000 | $200,000 |
| 2016 | $0 | $130,000 | $0 | $130,000 | $130,000 |
| 2015 | $0 | $172,900 | $0 | $172,900 | $172,900 |
| 2014 | $0 | $172,900 | $0 | $172,900 | $172,900 |
| 2013 | $0 | $207,480 | $0 | $207,480 | $207,480 |
| 2012 | $0 | $207,480 | $0 | $207,480 | $207,480 |
| 2011 | $0 | $207,480 | $0 | $207,480 | $207,480 |
| 2010 | $0 | $207,480 | $0 | $207,480 | $207,480 |
| 2009 | $0 | $247,000 | $0 | $247,000 | $247,000 |
| 2008 | $0 | $244,200 | $0 | $244,200 | $244,200 |
| 2007 | $0 | $163,020 | $0 | $163,020 | $163,020 |
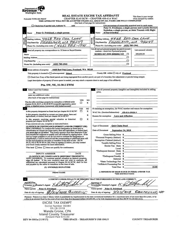
Deed and Sales History
| 1 | 02/23/2021 | WD | Warranty Deed | WARD, MICHAEL | BALDWIN, ADAM PHILIP | | | $347,000.00 | 47086 | 4511961 |
| 2 | 11/27/2018 | WD | Warranty Deed | REKDAL, RICHARD A | WARD, MICHAEL | | | $237,500.00 | 36808 | 4455714 |
| 3 | 06/02/2011 | WD | Warranty Deed | YOUNG, PHILLIP | REKDAL, RICHARD A | | | $0.00 | 9584 | 4328137 |
| 4 | 02/21/2008 | WD | Warranty Deed | REKDAL, RICHARD A | YOUNG, PHILLIP | | | $245,000.00 | 80437 | 4222594 |
| 5 | 12/23/2002 | WD | Warranty Deed | SEATTLE UNIVERSITY, | REKDAL, RICHARD A | | | $76,250.00 | 30072 | 4043395 |
| 6 | 01/09/2002 | WD | Warranty Deed | SEATTLE UNIVERSITY, | SEATTLE UNIVERSITY, | | | $0.00 | 20117 | 4007921 |
| 7 | 12/20/2001 | WD | Warranty Deed | GRIMM, TR, MARY C | SEATTLE UNIVERSITY, | | | $69,095.00 | 14887 | 4006862 |
| 8 | 07/18/2000 | WD | Warranty Deed | GRIMM, MARY C | GRIMM, TR, MARY C | | | $0.00 | 2778 | 20013125 |
| 9 | 12/01/1998 | 5 | DNU - Marriage License/Name Change | LANCASTER, MARY C | GRIMM, MARY C | | | $0.00 | 68090 | 0 |
| 10 | 06/01/1990 | QCD | Quit Claim Deed | LANCASTER, JAMES D | LANCASTER, MARY C | | | $0.00 | 3360 | 90010925 |
| 11 | 09/01/1987 | WD | Warranty Deed | FLOREK, GEORGIANA E | LANCASTER, JAMES D | | | $28,500.00 | 73086 | 87013670 |
| 12 | 11/01/1983 | WD | Warranty Deed | GARRISON, INC | FLOREK, WALTER F | | | $22,500.00 | 33425 | 417810 |
| 13 | 11/01/1983 | QCD | Quit Claim Deed | FLOREK, WALTER F | FLOREK, GEORGIANA E | | | $0.00 | 33486 | 418042 |
| 14 | 04/01/1983 | EZ | Easement | GARRISON, CO | GARRISON, INC | | | $0.00 | 60684 | 408702 |
| 15 | 08/01/1979 | EXECUTORD | Executor Deed | Unknown | GARRISON, CO | | | $12,500.00 | 93884 | 356917 |
Payout Agreement
| No payout information available.. |