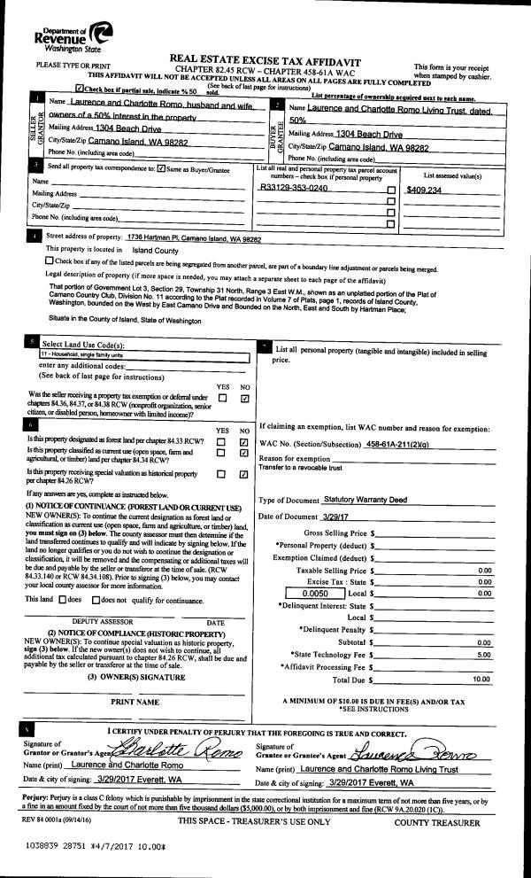
Property
Account |
| Property ID: | 475364 | Abbreviated Legal Description: | W/3 OF E/2 SE SW EX S/4 FR 070-1960 TGW & SUB EZ AF#425672 & 385678 |
| Geographic ID: | R23224-090-2100 | Agent Code: | |
| Type: | Real | | |
| Tax Area: | 512 - APPRAISER-Stan/Cam Schl Dist, improved, greater than 1 acre | Land Use Code | 11 |
| Open Space: | N | DFL | N |
| Historic Property: | N | Remodel Property: | N |
| Multi-Family Redevelopment: | N | | |
| Township: | 32 | Section: | 24 |
| Range: | R2 |
Location |
| Address: | 248 AMANDA LN CAMANO ISLAND, WA 98282 | Mapsco: | |
| Neighborhood: | North Camano | Map ID: | 558 |
| Neighborhood CD: | 06-C |
Owner |
| Name: | LISKA, JESSICA K | Owner ID: | 279296 |
| Mailing Address: | KRIS O LISKA 248 AMANDA LN CAMANO ISLAND, WA 98282 | % Ownership: | 100.0000000000% |
| | | Exemptions: | |
Taxes and Assessment Details
Values
| (+) Improvement Homesite Value: | + | $0 | |
| (+) Improvement Non-Homesite Value: | + | $461,687 | |
| (+) Land Homesite Value: | + | $0 | |
| (+) Land Non-Homesite Value: | + | $470,000 | |
| (+) Curr Use (HS): | + | $0 | $0 |
| (+) Curr Use (NHS): | + | $0 | $0 |
| | | -------------------------- | |
| (=) Market Value: | = | $931,687 | |
| (–) Productivity Loss: | – | $0 | |
| | | -------------------------- | |
| (=) Subtotal: | = | $931,687 | |
| (+) Senior Appraised Value: | + | $0 | |
| (+) Non-Senior Appraised Value: | + | $931,687 | |
| | | -------------------------- | |
| (=) Total Appraised Value: | = | $931,687 | |
| (–) Senior Exemption Loss: | – | $0 | |
| (–) Exemption Loss: | – | $0 | |
| | | -------------------------- | |
| (=) Taxable Value: | = | $931,687 | |
Taxing Jurisdiction
| Owner: | LISKA, JESSICA K | | |
| % Ownership: | 100.0000000000% | | |
| Total Value: | $931,687 | | |
| Tax Area: | 512 - APPRAISER-Stan/Cam Schl Dist, improved, greater than 1 acre |
| CF | Conservation Futures | 0.0316035091 | $931,687 | $931,687 | $29.44 | | |
| EMS1 | Fire & Rescue Dist #1 Camano GEN (EMS) | 0.3677864386 | $931,687 | $931,687 | $342.66 | | |
| FIRE1 | Fire & Rescue Dist #1 Camano GEN | 1.2502910536 | $931,687 | $931,687 | $1,164.88 | | |
| FIRE1BOND | Fire & Rescue Dist #1 Camano BOND | 0.1570001679 | $931,687 | $931,687 | $146.28 | | |
| CE | County Current Expense | 0.3708482477 | $931,687 | $931,687 | $345.51 | | |
| CR | County Roads | 0.4584763726 | $931,687 | $931,687 | $427.16 | | |
| LCIB | Library Sno-Isle BOND (Camano Island) | 0.0396325772 | $931,687 | $931,687 | $36.93 | | |
| LIB | Library Sno-Isle GEN | 0.3153421757 | $931,687 | $931,687 | $293.80 | | |
| SCH205_401 | School 205-401 Enrichment | 1.2698420524 | $931,687 | $931,687 | $1,183.10 | | |
| SCH205BOND | School 205-401 BOND | 0.9396497583 | $931,687 | $931,687 | $875.46 | | |
| ST | State School | 1.3035497053 | $931,687 | $931,687 | $1,214.50 | | |
| ST2 | State School Part 2 | 0.8169543533 | $931,687 | $931,687 | $761.15 | | |
| | Total Tax Rate: | 7.3209764117 | | | | | |
| | | | | Taxes w/Current Exemptions: | $6,820.87 | | |
| | | | | Taxes w/o Exemptions: | $6,820.87 | | |
Improvement / Building
| Improvement #1: | RESIDENTIAL | State Code: | Y | 3105.1 sqft | Value: | $461,687 |
| Bathrooms: | 2.5 | Bedrooms: | 3 | | Ceiling: | DRYWALL PAINTED | Exterior Wall/Cover: | CEMENT FIBER | | Floor Covering: | HARDWOOD/CARP 20-80 | Floor Structure: | WOOD W/SUBFLOOR | | Foundation: | CONCRETE | Heating: | WALL HEAT ELECTRIC | | Interior Finish: | DRYWALL PAINT | Plumbing Fixture Cnt: | 12 | | Roof Slope: | 6" IN 12" | Roof Structure/Cover: | CJ ASPHALT |
|
| | Type | Description | Class CD | Sub Class CD | Year Built | Area |
| | BAS | BASE/MAIN FLOOR | 4 | 0 | 1991 | 1116.8 |
| | BIG | BUILT IN GARAGE | 4 | 0 | 1991 | 285.5 |
| | UPS | UPPER STORY | 4 | 0 | 1991 | 1215.1 |
| | OWP | OPEN WOOD PORCH W/STEPS | 4 | 0 | 1991 | 673.7 |
| | UPH | HALF STORY | 4 | 0 | 1991 | 773.2 |
| | OWC | OPEN WOOD PORCH W/STEPS/ROOF/C | 4 | 0 | 1991 | 161.4 |
| | UTY | STORAGE/UTILITY | 4 | 0 | 1991 | 100.0 |
Sketch
Property Image
Land
| 1 | 32 | AC (03.01-09.99) | 5.0000 | 0.00 | 0.00 | 0.00 | 1.00 | $470,000 | $0 |
Roll Value History
| 2026 | N/A | N/A | N/A | N/A | N/A |
| 2025 | $461,687 | $470,000 | $0 | $931,687 | $931,687 |
| 2024 | $467,473 | $470,000 | $0 | $937,473 | $937,473 |
| 2023 | $473,261 | $460,000 | $0 | $933,261 | $933,261 |
| 2022 | $415,677 | $400,000 | $0 | $815,677 | $815,677 |
| 2021 | $367,117 | $290,000 | $0 | $657,117 | $657,117 |
| 2020 | $358,890 | $240,000 | $0 | $598,890 | $598,890 |
| 2019 | $286,942 | $300,000 | $0 | $586,942 | $586,942 |
| 2018 | $287,798 | $250,000 | $0 | $537,798 | $537,798 |
| 2017 | $335,944 | $200,000 | $0 | $535,944 | $535,944 |
| 2016 | $296,785 | $180,000 | $0 | $476,785 | $476,785 |
| 2015 | $300,689 | $200,000 | $0 | $500,689 | $500,689 |
| 2014 | $304,594 | $200,000 | $0 | $504,594 | $504,594 |
| 2013 | $308,499 | $150,000 | $0 | $458,499 | $458,499 |
| 2012 | $312,405 | $168,000 | $0 | $480,405 | $480,405 |
| 2011 | $316,309 | $210,000 | $0 | $526,309 | $526,309 |
| 2010 | $269,596 | $210,000 | $0 | $479,596 | $479,596 |
| 2009 | $281,157 | $400,000 | $0 | $681,157 | $681,157 |
| 2008 | $284,658 | $400,000 | $0 | $684,658 | $684,658 |
| 2007 | $288,967 | $300,000 | $0 | $588,967 | $588,967 |
Deed and Sales History
| 1 | 03/24/2017 | WD | Warranty Deed | STARKE, LEE | LISKA, JESSICA K | | | $540,000.00 | 28745 | 4420226 |
| 2 | 05/16/2006 | WD | Warranty Deed | VIDEEN, ROBERT V | STARKE, LEE | | | $675,000.00 | 62197 | 4170909 |
| 3 | 03/19/1999 | WD | Warranty Deed | SLATER, RICHARD R | VIDEEN, ROBERT V | | | $289,000.00 | 911181 | 99007785 |
| 4 | 03/01/1986 | WD | Warranty Deed | CAMALAND, INC | SLATER, RICHARD R | | | $23,000.00 | 60642 | 86003089 |
| 5 | 01/01/1986 | QCD | Quit Claim Deed | DAN, GARRISON, I | CAMALAND, INC | | | $0.00 | 60290 | 86001459 |
| 6 | 06/01/1984 | EZ | Easement | DAN, GARRISON, I | DAN, GARRISON, I | | | $0.00 | 41664 | 425672 |
| 7 | 08/01/1979 | EXECUTORD | Executor Deed | CAMALAND, INC | DAN, GARRISON, I | | | $12,500.00 | 93890 | 356923 |
| 8 | 01/01/1900 | OTHER | Other - Misc. Documents | Unknown | CAMALAND, INC | | | $0.00 | 0 | 0 |
Payout Agreement
| No payout information available.. |