Property
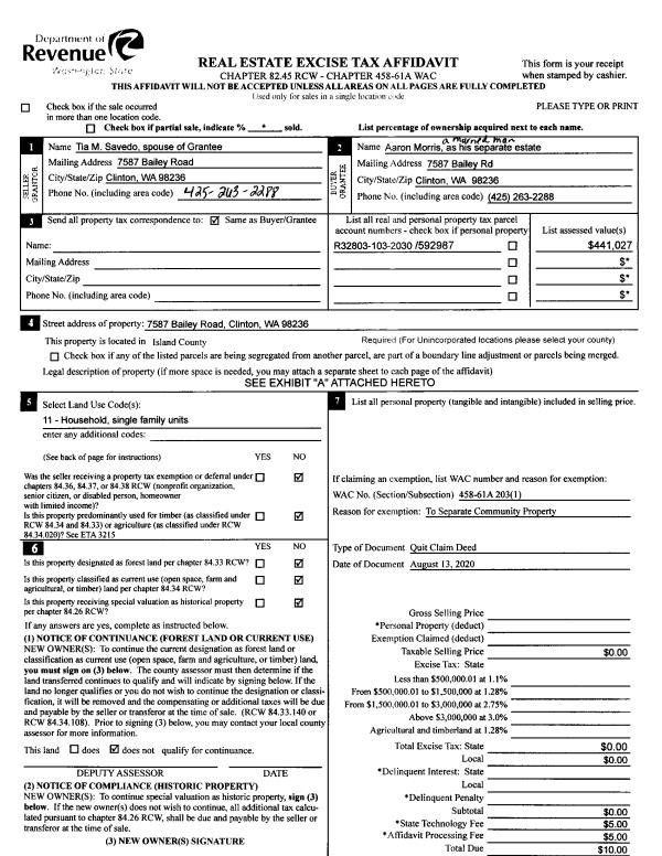
Account |
| Property ID: | 47540 | Abbreviated Legal Description: | 47 - N330' OF S1980' OF W/2 E/2 NE (AKA N330' OF S1980' OF TR B & EZ WONDERWOOD AF#159977 30M15) |
| Geographic ID: | R22904-452-4350 | Agent Code: | |
| Type: | Real | | |
| Tax Area: | 719 - APPRAISER-S Whid Schl Dist, outside Langley, vacant & 50 acres or less | Land Use Code | 91 |
| Open Space: | N | DFL | N |
| Historic Property: | N | Remodel Property: | N |
| Multi-Family Redevelopment: | N | | |
| Township: | 29 | Section: | 04 |
| Range: | R2 |
Location |
| Address: | | Mapsco: | |
| Neighborhood: | Cycle 3 | Map ID: | 294 |
| Neighborhood CD: | 3 |
Owner |
| Name: | MCNEAL, TIFFANY ANN | Owner ID: | 316758 |
| Mailing Address: | TRAVIS PHILLIP MCNEAL 21090 SR 525 FREELAND, WA 98249 | % Ownership: | 100.0000000000% |
| | | Exemptions: | |
Taxes and Assessment Details
Values
| (+) Improvement Homesite Value: | + | $0 | |
| (+) Improvement Non-Homesite Value: | + | $0 | |
| (+) Land Homesite Value: | + | $0 | |
| (+) Land Non-Homesite Value: | + | $210,000 | |
| (+) Curr Use (HS): | + | $0 | $0 |
| (+) Curr Use (NHS): | + | $0 | $0 |
| | | -------------------------- | |
| (=) Market Value: | = | $210,000 | |
| (–) Productivity Loss: | – | $0 | |
| | | -------------------------- | |
| (=) Subtotal: | = | $210,000 | |
| (+) Senior Appraised Value: | + | $0 | |
| (+) Non-Senior Appraised Value: | + | $210,000 | |
| | | -------------------------- | |
| (=) Total Appraised Value: | = | $210,000 | |
| (–) Senior Exemption Loss: | – | $0 | |
| (–) Exemption Loss: | – | $0 | |
| | | -------------------------- | |
| (=) Taxable Value: | = | $210,000 | |
Taxing Jurisdiction
| Owner: | MCNEAL, TIFFANY ANN | | |
| % Ownership: | 100.0000000000% | | |
| Total Value: | $210,000 | | |
| Tax Area: | 719 - APPRAISER-S Whid Schl Dist, outside Langley, vacant & 50 acres or less |
| CF | Conservation Futures | 0.0316035091 | $210,000 | $210,000 | $6.64 | | |
| HOBOND | Hospital BOND | 0.1910887512 | $210,000 | $210,000 | $40.13 | | |
| HOGEN | Hospital GEN | 0.3902502903 | $210,000 | $210,000 | $81.95 | | |
| CE | County Current Expense | 0.3708482477 | $210,000 | $210,000 | $77.88 | | |
| CR | County Roads | 0.4584763726 | $210,000 | $210,000 | $96.28 | | |
| ISLANDEMS | Hospital GEN (EMS) | 0.5000000000 | $210,000 | $210,000 | $105.00 | | |
| LIB | Library Sno-Isle GEN | 0.3153421757 | $210,000 | $210,000 | $66.22 | | |
| PORTWHID | Port of S Whidbey GEN | 0.1094540357 | $210,000 | $210,000 | $22.99 | | |
| SCH206BOND | School 206 BOND | 0.3161759235 | $210,000 | $210,000 | $66.40 | | |
| SCH206MO | School 206 Enrichment | 0.4547169547 | $210,000 | $210,000 | $95.49 | | |
| ST | State School | 1.3035497053 | $210,000 | $210,000 | $273.75 | | |
| ST2 | State School Part 2 | 0.8169543533 | $210,000 | $210,000 | $171.56 | | |
| SWHIDPRBD | P & R S Whidbey BOND | 0.0152817568 | $210,000 | $210,000 | $3.21 | | |
| SWHIDPRBD2 | P & R S Whidbey BOND2 | 0.0138911264 | $210,000 | $210,000 | $2.92 | | |
| SWHIDPRMT | P & R S Whidbey GEN | 0.2053334452 | $210,000 | $210,000 | $43.12 | | |
| | Total Tax Rate: | 5.4929666475 | | | | | |
| | | | | Taxes w/Current Exemptions: | $1,153.54 | | |
| | | | | Taxes w/o Exemptions: | $1,153.54 | | |
Improvement / Building
Sketch
| No sketches available for this property. |
Property Image
Land
| 1 | 32 | AC (03.01-09.99) | 4.0000 | 0.00 | 0.00 | 0.00 | 1.00 | $210,000 | $0 |
Roll Value History
| 2026 | N/A | N/A | N/A | N/A | N/A |
| 2025 | $0 | $210,000 | $0 | $210,000 | $210,000 |
| 2024 | $0 | $200,000 | $0 | $200,000 | $200,000 |
| 2023 | $0 | $180,000 | $0 | $180,000 | $180,000 |
| 2022 | $0 | $180,000 | $0 | $180,000 | $180,000 |
| 2021 | $0 | $135,000 | $0 | $135,000 | $135,000 |
| 2020 | $0 | $130,000 | $0 | $130,000 | $130,000 |
| 2019 | $0 | $135,000 | $0 | $135,000 | $135,000 |
| 2018 | $0 | $125,000 | $0 | $125,000 | $125,000 |
| 2017 | $0 | $85,000 | $0 | $85,000 | $85,000 |
| 2016 | $0 | $85,000 | $0 | $85,000 | $85,000 |
| 2015 | $0 | $80,400 | $0 | $80,400 | $80,400 |
| 2014 | $0 | $80,400 | $0 | $80,400 | $80,400 |
| 2013 | $0 | $80,400 | $0 | $80,400 | $80,400 |
| 2012 | $0 | $80,400 | $0 | $80,400 | $80,400 |
| 2011 | $0 | $100,400 | $0 | $100,400 | $100,400 |
| 2010 | $0 | $100,400 | $0 | $100,400 | $100,400 |
| 2009 | $0 | $62,400 | $0 | $62,400 | $62,400 |
| 2008 | $0 | $64,400 | $0 | $64,400 | $64,400 |
| 2007 | $0 | $64,000 | $0 | $64,000 | $64,000 |
Deed and Sales History
| 1 | 05/12/2025 | QCD | Quit Claim Deed | VICKIE LEA ANDERSON, PR | MCNEAL, TIFFANY ANN | | | $0.00 | 63636 | 4586467 |
| 2 | 09/25/2012 | WD | Warranty Deed | PEOPLES BANK | MCNEAL, TRENT J | | | $40,000.00 | 8995 | 4324000 |
| 3 | 02/24/2011 | TRUSTEED | Trustee's Deed | WHIDBEY ENTERPRISES LLC | PEOPLES BANK | | | $0.00 | 3774 | 4291775 |
| 4 | 12/01/1995 | WD | Warranty Deed | WHIDBEY, ENTERPRISE L | SIKMA, ENTERPRISES I | | | $14,646.00 | 54313 | 95019935 |
| 5 | 12/01/1995 | WD | Warranty Deed | WHIDBEY, ENTERPRISE L | WHIDBEY, ENTERPRISE L | | | $0.00 | 54315 | 95019936 |
| 6 | 12/01/1995 | WD | Warranty Deed | SIKMA, ENTERPRISES I | WHIDBEY, ENTERPRISE L | | | $0.00 | 54316 | 95019937 |
| 7 | 12/01/1993 | QCD | Quit Claim Deed | GOLF, NORTHWEST I | SIKMA, ENTERPRISES I | | | $24,231.00 | 34911 | 93025648 |
| 8 | 06/01/1990 | WD | Warranty Deed | STUURMANS, CECIL, B | GOLF, NORTHWEST I | | | $20,000.00 | 3662 | 90011857 |
| 9 | 05/01/1985 | DECREE | Divorce Decree/Legal Separation | STUURMANS, CECIL, B | STUURMANS, CECIL, B | | | $0.00 | 51142 | 85004643 |
| 10 | 01/01/1979 | CD | DNU - Correction Deed | TERRA, UNLIMIMTED I | STUURMANS, CECIL, B | | | $6,811.00 | 90672 | 347515 |
| 11 | 01/01/1900 | OTHER | Other - Misc. Documents | Unknown | TERRA, UNLIMIMTED I | | | $0.00 | 0 | 0 |
Payout Agreement
| No payout information available.. |