Property
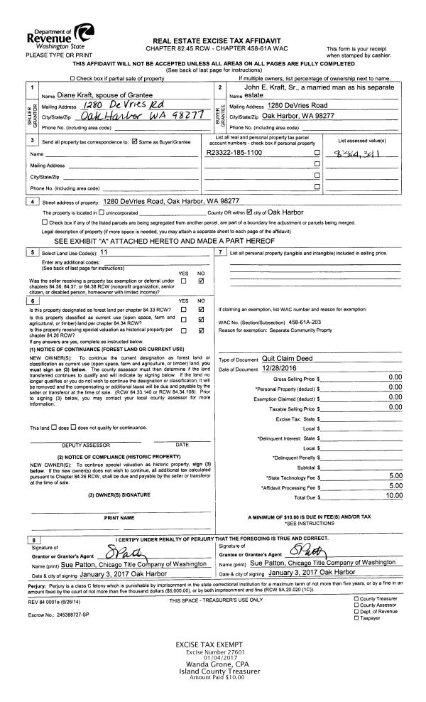
Account |
| Property ID: | 476149 | Abbreviated Legal Description: | N660' OF N/2 NW EX W2310' EX N345' SUB TGW EZ FR 499-2490 SP 78-3 LOT 2 |
| Geographic ID: | R23236-480-2450 | Agent Code: | |
| Type: | Real | | |
| Tax Area: | 512 - APPRAISER-Stan/Cam Schl Dist, improved, greater than 1 acre | Land Use Code | 11 |
| Open Space: | N | DFL | N |
| Historic Property: | N | Remodel Property: | N |
| Multi-Family Redevelopment: | N | | |
| Township: | 32 | Section: | 36 |
| Range: | R2 |
Location |
| Address: | 374 SCOTT RD CAMANO ISLAND, WA 98282 | Mapsco: | |
| Neighborhood: | North Camano | Map ID: | 581 |
| Neighborhood CD: | 06-C |
Owner |
| Name: | HIEGLER, TOM | Owner ID: | 151938 |
| Mailing Address: | SHANNON HIEGLER 374 SCOTT RD CAMANO ISLAND, WA 98282-7373 | % Ownership: | 100.0000000000% |
| | | Exemptions: | |
Taxes and Assessment Details
Values
| (+) Improvement Homesite Value: | + | $0 | |
| (+) Improvement Non-Homesite Value: | + | $423,960 | |
| (+) Land Homesite Value: | + | $0 | |
| (+) Land Non-Homesite Value: | + | $310,000 | |
| (+) Curr Use (HS): | + | $0 | $0 |
| (+) Curr Use (NHS): | + | $0 | $0 |
| | | -------------------------- | |
| (=) Market Value: | = | $733,960 | |
| (–) Productivity Loss: | – | $0 | |
| | | -------------------------- | |
| (=) Subtotal: | = | $733,960 | |
| (+) Senior Appraised Value: | + | $0 | |
| (+) Non-Senior Appraised Value: | + | $733,960 | |
| | | -------------------------- | |
| (=) Total Appraised Value: | = | $733,960 | |
| (–) Senior Exemption Loss: | – | $0 | |
| (–) Exemption Loss: | – | $0 | |
| | | -------------------------- | |
| (=) Taxable Value: | = | $733,960 | |
Taxing Jurisdiction
| Owner: | HIEGLER, TOM | | |
| % Ownership: | 100.0000000000% | | |
| Total Value: | $733,960 | | |
| Tax Area: | 512 - APPRAISER-Stan/Cam Schl Dist, improved, greater than 1 acre |
| CF | Conservation Futures | 0.0316035091 | $733,960 | $733,960 | $23.20 | | |
| EMS1 | Fire & Rescue Dist #1 Camano GEN (EMS) | 0.3677864386 | $733,960 | $733,960 | $269.94 | | |
| FIRE1 | Fire & Rescue Dist #1 Camano GEN | 1.2502910536 | $733,960 | $733,960 | $917.66 | | |
| FIRE1BOND | Fire & Rescue Dist #1 Camano BOND | 0.1570001679 | $733,960 | $733,960 | $115.23 | | |
| CE | County Current Expense | 0.3708482477 | $733,960 | $733,960 | $272.19 | | |
| CR | County Roads | 0.4584763726 | $733,960 | $733,960 | $336.50 | | |
| LCIB | Library Sno-Isle BOND (Camano Island) | 0.0396325772 | $733,960 | $733,960 | $29.09 | | |
| LIB | Library Sno-Isle GEN | 0.3153421757 | $733,960 | $733,960 | $231.45 | | |
| SCH205_401 | School 205-401 Enrichment | 1.2698420524 | $733,960 | $733,960 | $932.01 | | |
| SCH205BOND | School 205-401 BOND | 0.9396497583 | $733,960 | $733,960 | $689.67 | | |
| ST | State School | 1.3035497053 | $733,960 | $733,960 | $956.75 | | |
| ST2 | State School Part 2 | 0.8169543533 | $733,960 | $733,960 | $599.61 | | |
| | Total Tax Rate: | 7.3209764117 | | | | | |
| | | | | Taxes w/Current Exemptions: | $5,373.30 | | |
| | | | | Taxes w/o Exemptions: | $5,373.30 | | |
Improvement / Building
| Improvement #1: | RESIDENTIAL | State Code: | Y | 2113.0 sqft | Value: | $423,960 |
| Bathrooms: | 3 | Bedrooms: | 2 | | Ceiling: | BEAM PAINTED | Cooling: | HEAT PUMP/CONV/V | | Exterior Wall/Cover: | WOOD SIDING | Floor Covering: | CARPET/VINYL 80-20 | | Floor Structure: | WOOD W/SUBFLOOR | Foundation: | CONCRETE | | Interior Finish: | DRYWALL PAINT | Plumbing Fixture Cnt: | 13 | | Roof Slope: | 6" IN 12" | Roof Structure/Cover: | BEAM ASPHALT |
|
| | Type | Description | Class CD | Sub Class CD | Year Built | Area |
| | BAS | BASE/MAIN FLOOR | 4 | 0 | 1991 | 1279.0 |
| | AGR | ATTACHED GARAGE | 4 | 0 | 1991 | 309.0 |
| | BIG | BUILT IN GARAGE | 4 | 0 | 1991 | 153.0 |
| | UPS | UPPER STORY | 4 | 0 | 1991 | 834.0 |
| | OWP | OPEN WOOD PORCH W/STEPS | 4 | 0 | 1991 | 182.0 |
| | OWP | OPEN WOOD PORCH W/STEPS | 4 | 0 | 1991 | 973.0 |
| | OWR | OPEN WOOD PORCH W/STEPS/ROOF | 4 | 0 | 1991 | 146.0 |
Sketch
Property Image
Land
| 1 | 18 | AC (02.01-03.00) | 0.0000 | 0.00 | 0.00 | 0.00 | 1.00 | $310,000 | $0 |
Roll Value History
| 2026 | N/A | N/A | N/A | N/A | N/A |
| 2025 | $423,960 | $310,000 | $0 | $733,960 | $733,960 |
| 2024 | $422,808 | $300,000 | $0 | $722,808 | $722,808 |
| 2023 | $412,863 | $300,000 | $0 | $712,863 | $712,863 |
| 2022 | $364,547 | $260,000 | $0 | $624,547 | $624,547 |
| 2021 | $321,036 | $230,000 | $0 | $551,036 | $551,036 |
| 2020 | $312,682 | $150,000 | $0 | $462,682 | $462,682 |
| 2019 | $230,527 | $190,000 | $0 | $420,527 | $420,527 |
| 2018 | $231,236 | $180,000 | $0 | $411,236 | $411,236 |
| 2017 | $228,171 | $120,000 | $0 | $348,171 | $348,171 |
| 2016 | $215,463 | $120,000 | $0 | $335,463 | $335,463 |
| 2015 | $218,298 | $80,000 | $0 | $298,298 | $298,298 |
| 2014 | $221,134 | $80,000 | $0 | $301,134 | $301,134 |
| 2013 | $223,968 | $80,000 | $0 | $303,968 | $303,968 |
| 2012 | $226,803 | $80,000 | $0 | $306,803 | $306,803 |
| 2011 | $229,638 | $100,000 | $0 | $329,638 | $329,638 |
| 2010 | $234,375 | $100,000 | $0 | $334,375 | $334,375 |
| 2009 | $244,354 | $160,000 | $0 | $404,354 | $404,354 |
| 2008 | $247,240 | $220,000 | $0 | $467,240 | $467,240 |
| 2007 | $250,126 | $220,000 | $0 | $470,126 | $470,126 |
Deed and Sales History
| 1 | 05/25/2005 | WD | Warranty Deed | WALSH, EUGENE F | HIEGLER, TOM | | | $336,000.00 | 52510 | 4136084 |
| 2 | 10/04/2000 | WD | Warranty Deed | FITZGERALD, WILLIAM K | WALSH, EUGENE F | | | $219,000.00 | 3848 | 20017617 |
| 3 | 07/13/1998 | WD | Warranty Deed | FITZGERALD, WILLIAM K | FITZGERALD, WILLIAM K | | | $200,000.00 | 83101 | 98016191 |
| 4 | 10/01/1997 | QCD | Quit Claim Deed | GAMIDO, LUIS G | GAMIDO, LUIS G | | | $0.00 | 73799 | 97018127 |
| 5 | 06/01/1991 | QCD | Quit Claim Deed | GAMIDO, LUIS G | GAMIDO, LUIS G | | | $0.00 | 12503 | 91010669 |
| 6 | 05/01/1990 | WD | Warranty Deed | WADDINGTON, VICTOR G | GAMIDO, LUIS G | | | $17,500.00 | 2921 | 90009504 |
| 7 | 06/01/1979 | TRUSTEED | Trustee's Deed | GRAY, W H | WADDINGTON, VICTOR G | | | $5,492.00 | 93194 | 354911 |
| 8 | 01/01/1900 | OTHER | Other - Misc. Documents | Unknown | GRAY, W H | | | $0.00 | 0 | 0 |
| 9 | 01/01/1900 | OTHER | Other - Misc. Documents | GAMIDO, LUIS G | FITZGERALD, WILLIAM K | | | $0.00 | 83101 | 98016191 |
Payout Agreement
| No payout information available.. |