Property
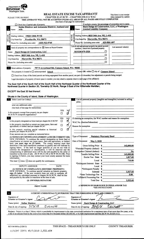
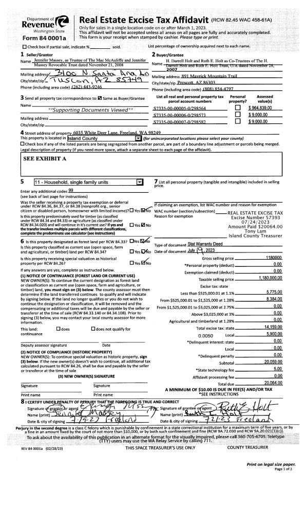
Account |
| Property ID: | 47675 | Abbreviated Legal Description: | 49.5800 Acres ins Section 05s Township 29s Range R2s LOT B BLA 095-15 AF#4381297 IN W/2 SW;s |
| Geographic ID: | R22905-135-0400 | Agent Code: | |
| Type: | Real | | |
| Tax Area: | 712 - APPRAISER-S Whid Schl Dist, outside Langley, improved, greater than 1 acre | Land Use Code | 83 |
| Open Space: | Y | DFL | N |
| Historic Property: | N | Remodel Property: | N |
| Multi-Family Redevelopment: | N | | |
| Township: | 29 | Section: | 05 |
| Range: | R2 |
Location |
| Address: | 5005 SMUGGLERS COVE RD FREELAND, WA 98249 | Mapsco: | |
| Neighborhood: | Cycle 3 | Map ID: | 295 |
| Neighborhood CD: | 3 |
Owner |
| Name: | BIXBY TRUSTEE, HARLAN K | Owner ID: | 264125 |
| Mailing Address: | 5005 SMUGGLERS COVE RD FREELAND, WA 98249 | % Ownership: | 100.0000000000% |
| | | Exemptions: | |
Taxes and Assessment Details
Values
| (+) Improvement Homesite Value: | + | $0 | |
| (+) Improvement Non-Homesite Value: | + | $1,421,855 | |
| (+) Land Homesite Value: | + | $0 | |
| (+) Land Non-Homesite Value: | + | $419,654 | |
| (+) Curr Use (HS): | + | $0 | $0 |
| (+) Curr Use (NHS): | + | $132,911 | $4,809 |
| | | -------------------------- | |
| (=) Market Value: | = | $1,974,420 | |
| (–) Productivity Loss: | – | $128,102 | |
| | | -------------------------- | |
| (=) Subtotal: | = | $1,846,318 | |
| (+) Senior Appraised Value: | + | $0 | |
| (+) Non-Senior Appraised Value: | + | $1,846,318 | |
| | | -------------------------- | |
| (=) Total Appraised Value: | = | $1,846,318 | |
| (–) Senior Exemption Loss: | – | $0 | |
| (–) Exemption Loss: | – | $0 | |
| | | -------------------------- | |
| (=) Taxable Value: | = | $1,846,318 | |
Taxing Jurisdiction
| Owner: | BIXBY TRUSTEE, HARLAN K | | |
| % Ownership: | 100.0000000000% | | |
| Total Value: | $1,974,420 | | |
| Tax Area: | 712 - APPRAISER-S Whid Schl Dist, outside Langley, improved, greater than 1 acre |
| CF | Conservation Futures | 0.0316035091 | $1,846,318 | $1,846,318 | $58.35 | | |
| FIRE3 | Fire & Rescue Dist #3 S Whidbey GEN | 1.2004855531 | $1,846,318 | $1,846,318 | $2,216.48 | | |
| HOBOND | Hospital BOND | 0.1910887512 | $1,846,318 | $1,846,318 | $352.81 | | |
| HOGEN | Hospital GEN | 0.3902502903 | $1,846,318 | $1,846,318 | $720.53 | | |
| CE | County Current Expense | 0.3708482477 | $1,846,318 | $1,846,318 | $684.70 | | |
| CR | County Roads | 0.4584763726 | $1,846,318 | $1,846,318 | $846.49 | | |
| ISLANDEMS | Hospital GEN (EMS) | 0.5000000000 | $1,846,318 | $1,846,318 | $923.16 | | |
| LIB | Library Sno-Isle GEN | 0.3153421757 | $1,846,318 | $1,846,318 | $582.22 | | |
| PORTWHID | Port of S Whidbey GEN | 0.1094540357 | $1,846,318 | $1,846,318 | $202.09 | | |
| SCH206BOND | School 206 BOND | 0.3161759235 | $1,846,318 | $1,846,318 | $583.76 | | |
| SCH206MO | School 206 Enrichment | 0.4547169547 | $1,846,318 | $1,846,318 | $839.55 | | |
| ST | State School | 1.3035497053 | $1,846,318 | $1,846,318 | $2,406.77 | | |
| ST2 | State School Part 2 | 0.8169543533 | $1,846,318 | $1,846,318 | $1,508.36 | | |
| SWHIDPRBD | P & R S Whidbey BOND | 0.0152817568 | $1,846,318 | $1,846,318 | $28.21 | | |
| SWHIDPRBD2 | P & R S Whidbey BOND2 | 0.0138911264 | $1,846,318 | $1,846,318 | $25.65 | | |
| SWHIDPRMT | P & R S Whidbey GEN | 0.2053334452 | $1,846,318 | $1,846,318 | $379.11 | | |
| | Total Tax Rate: | 6.6934522006 | | | | | |
| | | | | Taxes w/Current Exemptions: | $12,358.24 | | |
| | | | | Taxes w/o Exemptions: | $12,358.24 | | |
Improvement / Building
| Improvement #1: | RESIDENTIAL | State Code: | Y | 4414.0 sqft | Value: | $1,421,855 |
| Bathrooms: | 6 | Bedrooms: | 5 | | Ceiling: | BEAM PAINTED | Exterior Wall/Cover: | WOOD SIDING | | Floor Covering: | HARDWOOD 100% | Floor Structure: | WOOD W/SUBFLOOR | | Foundation: | CONCRETE | Heating: | RADIANT FLOOR | | Interior Finish: | DRYWALL PAINT | Plumbing Fixture Cnt: | 26 | | Roof Slope: | FLAT | Roof Structure/Cover: | BEAM ROLL COMPOSITION |
|
| | Type | Description | Class CD | Sub Class CD | Year Built | Area |
| | BAS | BASE/MAIN FLOOR | 7 | 0 | 2017 | 2737.0 |
| | UPS | UPPER STORY | 7 | 0 | 2017 | 623.5 |
| | BGR | BASEMENT GARAGE | 7 | 0 | 2017 | 405.0 |
| | DWN | DOWNSTAIRS LIVING AREA | 7 | 0 | 2017 | 1053.5 |
| | OWR | OPEN WOOD PORCH W/STEPS/ROOF | 7 | 0 | 2017 | 246.5 |
| | OWC | OPEN WOOD PORCH W/STEPS/ROOF/C | 7 | 0 | 2017 | 486.0 |
| | OWP | OPEN WOOD PORCH W/STEPS | 7 | 0 | 2017 | 245.0 |
| | OWP | OPEN WOOD PORCH W/STEPS | 7 | 0 | 2017 | 24.5 |
| | UB8 | BASEMENT UNFINISHED 8" | 7 | 0 | 2017 | 137.8 |
| | oBAR | BARN | 7 | 0 | 2017 | 1512.0 |
| | oUTI | UTILITY | 3 | 0 | 2017 | 1920.0 |
Sketch
Property Image
Land
| 1 | 83 | OPEN AGRICULTURE | 23.0600 | 1004493.60 | 0.00 | 0.00 | 1.00 | $132,911 | $4,809 |
| 2 | HS | HOMESITE | 1.0000 | 43560.00 | 0.00 | 0.00 | 1.00 | $360,000 | $0 |
| 3 | 91 | UNDEVELOPED LAND-METES AND BOUNDS | 10.3500 | 450846.00 | 0.00 | 0.00 | 1.00 | $59,654 | $0 |
Roll Value History
| 2026 | N/A | N/A | N/A | N/A | N/A |
| 2025 | $1,421,855 | $552,565 | $4,809 | $1,846,318 | $1,846,318 |
| 2024 | $1,415,560 | $510,074 | $4,809 | $1,778,545 | $1,778,545 |
| 2023 | $1,426,581 | $388,657 | $4,809 | $1,559,587 | $1,559,587 |
| 2022 | $1,304,630 | $513,569 | $4,809 | $1,478,838 | $1,478,838 |
| 2021 | $1,147,119 | $513,569 | $4,809 | $1,321,327 | $1,321,327 |
| 2020 | $1,111,338 | $485,820 | $4,809 | $1,276,397 | $1,276,397 |
| 2019 | $1,043,648 | $410,428 | $4,809 | $1,053,457 | $1,053,457 |
| 2018 | $1,046,212 | $265,355 | $5,604 | $1,056,816 | $1,056,816 |
| 2017 | $487,887 | $265,355 | $5,604 | $498,491 | $498,491 |
| 2016 | $179,368 | $206,208 | $5,604 | $189,872 | $189,872 |
| 2015 | $15,000 | $206,208 | $5,604 | $25,504 | $25,504 |
| 2014 | $15,000 | $152,555 | $5,604 | $25,504 | $25,504 |
| 2013 | $15,428 | $235,453 | $8,325 | $28,653 | $28,653 |
| 2012 | $15,428 | $235,453 | $11,299 | $26,727 | $26,727 |
| 2011 | $15,428 | $275,908 | $11,299 | $26,727 | $26,727 |
| 2010 | $15,428 | $275,908 | $11,299 | $26,727 | $26,727 |
| 2009 | $15,428 | $327,507 | $11,299 | $342,935 | $342,935 |
| 2008 | $15,428 | $234,699 | $11,299 | $250,127 | $250,127 |
| 2007 | $15,428 | $234,699 | $11,299 | $250,127 | $250,127 |
Deed and Sales History
| 1 | 10/25/2022 | EZ | Easement | BIXBY, HARLAN K | ISLAND COUNTY | | | $0.00 | 55639 | 4555813 |
| 2 | 10/25/2022 | EZ | Easement | BIXBY, HARLAN K | ISLAND COUNTY | | | $0.00 | 55638 | 4555812 |
| 3 | 10/04/2013 | TRUSTEED | Trustee's Deed | BIXBY FAMILY LIMITED PARTNERSHIP | BIXBY TRUSTEE, HARLAN K | | | $0.00 | 13306 | 4350765 |
| 4 | 05/01/1986 | PACD | Purchaser's Assignment | BIXBY, BARBARA T | BIXBY, FMLY L | | | $0.00 | 61537 | 86007184 |
| 5 | 04/01/1979 | OTHER | Other - Misc. Documents | Unknown | BIXBY, BARBARA T | | | $0.00 | 92085 | 351946 |
Payout Agreement
| No payout information available.. |