Property
Account |
| Property ID: | 476924 | Abbreviated Legal Description: | S70' OF N210' OF S760' OF PT GL3 LY W OF SMUGGLERS CV RD EX PT LY E OF FOLL DESC LN: BG INTER NLN SD S760' W/WLY R/W SMUGGLERS COVE RD S88*W453.28' TPB S01*E210' TO SLY TERM LN TGW & SUB EZ FR 330-2630 (TR D-3 SP 78-83 AF#346573) |
| Geographic ID: | R23018-326-2500 | Agent Code: | |
| Type: | Real | | |
| Tax Area: | 312 - APPRAISER-Cpvl Schl Dist, outside Cpvl, improved, greater than 1 acre | Land Use Code | 11 |
| Open Space: | N | DFL | N |
| Historic Property: | N | Remodel Property: | N |
| Multi-Family Redevelopment: | N | | |
| Township: | 30 | Section: | 18 |
| Range: | R2 |
Location |
| Address: | 3348 SMUGGLERS COVE RD GREENBANK, WA 98253 | Mapsco: | |
| Neighborhood: | Cycle 3 | Map ID: | 390 |
| Neighborhood CD: | 3 |
Owner |
| Name: | ROBERTS, MICHAEL LEE | Owner ID: | 310124 |
| Mailing Address: | LORI SUE ROBERTS 14707 81TH AVE NE KENMORE, WA 98028 | % Ownership: | 100.0000000000% |
| | | Exemptions: | |
Taxes and Assessment Details
Values
| (+) Improvement Homesite Value: | + | $0 | |
| (+) Improvement Non-Homesite Value: | + | $536,022 | |
| (+) Land Homesite Value: | + | $0 | |
| (+) Land Non-Homesite Value: | + | $556,500 | |
| (+) Curr Use (HS): | + | $0 | $0 |
| (+) Curr Use (NHS): | + | $0 | $0 |
| | | -------------------------- | |
| (=) Market Value: | = | $1,092,522 | |
| (–) Productivity Loss: | – | $0 | |
| | | -------------------------- | |
| (=) Subtotal: | = | $1,092,522 | |
| (+) Senior Appraised Value: | + | $0 | |
| (+) Non-Senior Appraised Value: | + | $1,092,522 | |
| | | -------------------------- | |
| (=) Total Appraised Value: | = | $1,092,522 | |
| (–) Senior Exemption Loss: | – | $0 | |
| (–) Exemption Loss: | – | $0 | |
| | | -------------------------- | |
| (=) Taxable Value: | = | $1,092,522 | |
Taxing Jurisdiction
| Owner: | ROBERTS, MICHAEL LEE | | |
| % Ownership: | 100.0000000000% | | |
| Total Value: | $1,092,522 | | |
| Tax Area: | 312 - APPRAISER-Cpvl Schl Dist, outside Cpvl, improved, greater than 1 acre |
| CF | Conservation Futures | 0.0316035091 | $1,092,522 | $1,092,522 | $34.53 | | |
| CEM2 | Cemetery #2 | 0.0095056933 | $1,092,522 | $1,092,522 | $10.39 | | |
| FIRE5 | Fire & Rescue Dist #5 C Whidbey GEN | 1.2008080668 | $1,092,522 | $1,092,522 | $1,311.91 | | |
| FIRE5BOND | Fire & Rescue Dist #5 C Whidbey BOND | 0.1400090713 | $1,092,522 | $1,092,522 | $152.96 | | |
| HOBOND | Hospital BOND | 0.1910887512 | $1,092,522 | $1,092,522 | $208.77 | | |
| HOGEN | Hospital GEN | 0.3902502903 | $1,092,522 | $1,092,522 | $426.36 | | |
| CE | County Current Expense | 0.3708482477 | $1,092,522 | $1,092,522 | $405.16 | | |
| CR | County Roads | 0.4584763726 | $1,092,522 | $1,092,522 | $500.90 | | |
| ISLANDEMS | Hospital GEN (EMS) | 0.5000000000 | $1,092,522 | $1,092,522 | $546.26 | | |
| LIB | Library Sno-Isle GEN | 0.3153421757 | $1,092,522 | $1,092,522 | $344.52 | | |
| LIBCAP | Library Sno-Isle BOND (Cap Fac Imp Area) | 0.0543427938 | $1,092,522 | $1,092,522 | $59.37 | | |
| POCOUP | Port of Coupeville GEN | 0.1093371703 | $1,092,522 | $1,092,522 | $119.45 | | |
| POCOUPIDD | Port of Coupeville IDD | 0.3409740022 | $1,092,522 | $1,092,522 | $372.52 | | |
| COUPSDTECH | School 204 CP (TECH) | 0.7545480007 | $1,092,522 | $1,092,522 | $824.36 | | |
| SCH204MO | School 204 Enrichment | 0.6716186034 | $1,092,522 | $1,092,522 | $733.76 | | |
| ST | State School | 1.3035497053 | $1,092,522 | $1,092,522 | $1,424.16 | | |
| ST2 | State School Part 2 | 0.8169543533 | $1,092,522 | $1,092,522 | $892.54 | | |
| | Total Tax Rate: | 7.6592568070 | | | | | |
| | | | | Taxes w/Current Exemptions: | $8,367.92 | | |
| | | | | Taxes w/o Exemptions: | $8,367.92 | | |
Improvement / Building
| Improvement #1: | RESIDENTIAL | State Code: | Y | 3327.6 sqft | Value: | $536,022 |
| Bathrooms: | 4 | Bedrooms: | 3 | | Ceiling: | DRYWALL PAINTED | Exterior Wall/Cover: | PLY/HARDBOARD T-111 | | Floor Covering: | CERAMIC TILE/CPT 40-60 | Floor Structure: | WOOD W/SUBFLOOR | | Foundation: | CONCRETE | Heating: | HEAT PUMP | | Interior Finish: | DRYWALL PAINT | Plumbing Fixture Cnt: | 15 | | Roof Slope: | 4" IN 12" | Roof Structure/Cover: | CJ ALUMINIUM HEAVY |
|
| | Type | Description | Class CD | Sub Class CD | Year Built | Area |
| | BAS | BASE/MAIN FLOOR | 3 | 0 | 2023 | 1156.0 |
| | UPS | UPPER STORY | 3 | 0 | 2023 | 1256.0 |
| | DGR | DETACHED GARAGE | 3 | 0 | 2023 | 1148.0 |
| | UPS | UPPER STORY | 3 | 0 | 2023 | 915.6 |
Sketch
Property Image
Land
| 1 | HB | HIGH BLUFF | 1.2200 | 53143.20 | 70.00 | 0.00 | 1.00 | $556,500 | $0 |
Roll Value History
| 2026 | N/A | N/A | N/A | N/A | N/A |
| 2025 | $536,022 | $556,500 | $0 | $1,092,522 | $1,092,522 |
| 2024 | $135,024 | $330,750 | $0 | $465,774 | $465,774 |
| 2023 | $0 | $315,000 | $0 | $315,000 | $315,000 |
| 2022 | $0 | $300,000 | $0 | $300,000 | $300,000 |
| 2021 | $0 | $250,000 | $0 | $250,000 | $250,000 |
| 2020 | $0 | $250,000 | $0 | $250,000 | $250,000 |
| 2019 | $0 | $250,000 | $0 | $250,000 | $250,000 |
| 2018 | $0 | $200,000 | $0 | $200,000 | $200,000 |
| 2017 | $0 | $150,000 | $0 | $150,000 | $150,000 |
| 2016 | $0 | $150,000 | $0 | $150,000 | $150,000 |
| 2015 | $0 | $150,000 | $0 | $150,000 | $150,000 |
| 2014 | $0 | $150,000 | $0 | $150,000 | $150,000 |
| 2013 | $0 | $138,313 | $0 | $138,313 | $138,313 |
| 2012 | $0 | $138,313 | $0 | $138,313 | $138,313 |
| 2011 | $0 | $138,313 | $0 | $138,313 | $138,313 |
| 2010 | $0 | $138,313 | $0 | $138,313 | $138,313 |
| 2009 | $0 | $184,417 | $0 | $184,417 | $184,417 |
| 2008 | $0 | $184,417 | $0 | $184,417 | $184,417 |
| 2007 | $0 | $184,417 | $0 | $184,417 | $184,417 |
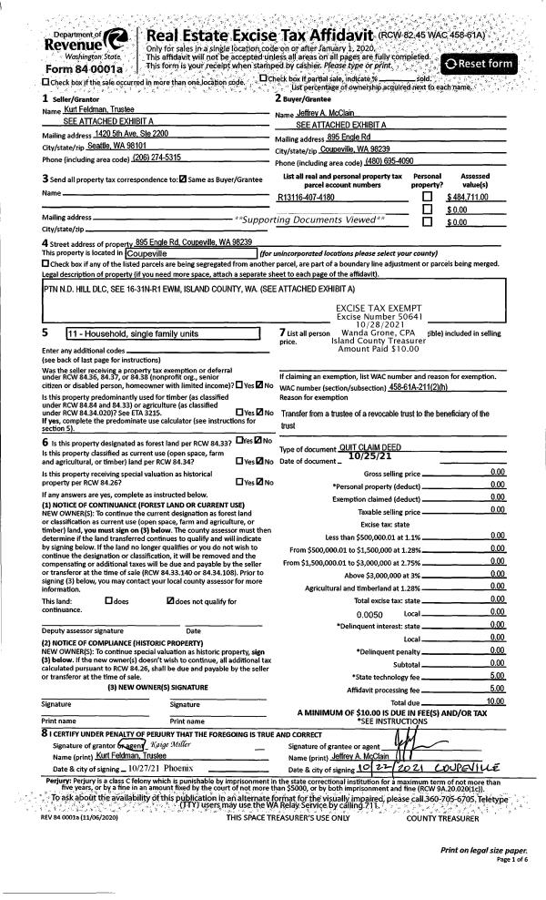
Deed and Sales History
| 1 | 09/15/2023 | QCD | Quit Claim Deed | ROBERTS, MICHAEL LEE | ROBERTS, MICHAEL LEE | | | $0.00 | 58028 | 4564901 |
| 2 | 06/14/2021 | WD | Warranty Deed | SAGE TRUSTEE, CYNTHIA L | ROBERTS, MICHAEL LEE | | | $305,000.00 | 48730 | 4522130 |
| 3 | 12/24/2015 | WD | Warranty Deed | SPRECHER FAMILY LLC | SAGE TRUSTEE, CYNTHIA L | | | $900,000.00 | 22674 | 4391803 |
|   | |
| 4 | 11/02/1998 | QCD | Quit Claim Deed | SPRECHER, TERESA K | SPRECHER FAMILY LLC, | | | $0.00 | 92896 | 99017220 |
| 5 | 10/01/1989 | WD | Warranty Deed | SCHWAGER, JOHN A | SPRECHER, TERESA K | | | $101,630.00 | 94841 | 89015698 |
| 6 | 06/01/1989 | QCD | Quit Claim Deed | LEWIS, MICHAEL D | LEWIS, MICHAEL D | | | $0.00 | 92638 | 89008904 |
| 7 | 06/01/1989 | WD | Warranty Deed | LEWIS, MICHAEL D | SCHWAGER, JOHN A | | | $60,000.00 | 92639 | 89008905 |
| 8 | 06/01/1989 | QCD | Quit Claim Deed | SCHWAGER, JOHN A | SCHWAGER, JOHN A | | | $0.00 | 92667 | 89009004 |
| 9 | 01/01/1900 | OTHER | Other - Misc. Documents | Unknown | LEWIS, MICHAEL D | | | $0.00 | 0 | 0 |
Payout Agreement
| No payout information available.. |