Property
Account |
| Property ID: | 47693 | Abbreviated Legal Description: | 16 - E450' OF W/2 OF SW SEC 5-29-2E & E450' OF N126.5' OF GL1 SEC 8-29-2 |
| Geographic ID: | R22905-135-1050 | Agent Code: | |
| Type: | Real | | |
| Tax Area: | 719 - APPRAISER-S Whid Schl Dist, outside Langley, vacant & 50 acres or less | Land Use Code | 88 |
| Open Space: | N | DFL | Y |
| Historic Property: | N | Remodel Property: | N |
| Multi-Family Redevelopment: | N | | |
| Township: | 29 | Section: | 05 |
| Range: | R2 |
Location |
| Address: | | Mapsco: | |
| Neighborhood: | Cycle 3 | Map ID: | 295 |
| Neighborhood CD: | 3 |
Owner |
| Name: | BUSH POINT FARM, LLC | Owner ID: | 283339 |
| Mailing Address: | 5005 SMUGGLERS COVE RD FREELAND, WA 98249 | % Ownership: | 100.0000000000% |
| | | Exemptions: | |
Taxes and Assessment Details
Values
| (+) Improvement Homesite Value: | + | $0 | |
| (+) Improvement Non-Homesite Value: | + | $0 | |
| (+) Land Homesite Value: | + | $0 | |
| (+) Land Non-Homesite Value: | + | $0 | |
| (+) Curr Use (HS): | + | $0 | $0 |
| (+) Curr Use (NHS): | + | $370,000 | $5,238 |
| | | -------------------------- | |
| (=) Market Value: | = | $370,000 | |
| (–) Productivity Loss: | – | $364,762 | |
| | | -------------------------- | |
| (=) Subtotal: | = | $5,238 | |
| (+) Senior Appraised Value: | + | $0 | |
| (+) Non-Senior Appraised Value: | + | $5,238 | |
| | | -------------------------- | |
| (=) Total Appraised Value: | = | $5,238 | |
| (–) Senior Exemption Loss: | – | $0 | |
| (–) Exemption Loss: | – | $0 | |
| | | -------------------------- | |
| (=) Taxable Value: | = | $5,238 | |
Taxing Jurisdiction
| Owner: | BUSH POINT FARM, LLC | | |
| % Ownership: | 100.0000000000% | | |
| Total Value: | $370,000 | | |
| Tax Area: | 719 - APPRAISER-S Whid Schl Dist, outside Langley, vacant & 50 acres or less |
| CF | Conservation Futures | 0.0316035091 | $5,238 | $5,238 | $0.17 | | |
| HOBOND | Hospital BOND | 0.1910887512 | $5,238 | $5,238 | $1.00 | | |
| HOGEN | Hospital GEN | 0.3902502903 | $5,238 | $5,238 | $2.04 | | |
| CE | County Current Expense | 0.3708482477 | $5,238 | $5,238 | $1.94 | | |
| CR | County Roads | 0.4584763726 | $5,238 | $5,238 | $2.40 | | |
| ISLANDEMS | Hospital GEN (EMS) | 0.5000000000 | $5,238 | $5,238 | $2.62 | | |
| LIB | Library Sno-Isle GEN | 0.3153421757 | $5,238 | $5,238 | $1.65 | | |
| PORTWHID | Port of S Whidbey GEN | 0.1094540357 | $5,238 | $5,238 | $0.57 | | |
| SCH206BOND | School 206 BOND | 0.3161759235 | $5,238 | $5,238 | $1.66 | | |
| SCH206MO | School 206 Enrichment | 0.4547169547 | $5,238 | $5,238 | $2.38 | | |
| ST | State School | 1.3035497053 | $5,238 | $5,238 | $6.83 | | |
| ST2 | State School Part 2 | 0.8169543533 | $5,238 | $5,238 | $4.28 | | |
| SWHIDPRBD | P & R S Whidbey BOND | 0.0152817568 | $5,238 | $5,238 | $0.08 | | |
| SWHIDPRBD2 | P & R S Whidbey BOND2 | 0.0138911264 | $5,238 | $5,238 | $0.07 | | |
| SWHIDPRMT | P & R S Whidbey GEN | 0.2053334452 | $5,238 | $5,238 | $1.08 | | |
| | Total Tax Rate: | 5.4929666475 | | | | | |
| | | | | Taxes w/Current Exemptions: | $28.77 | | |
| | | | | Taxes w/o Exemptions: | $28.77 | | |
Improvement / Building
Sketch
| No sketches available for this property. |
Property Image
Land
| 1 | 35 | AC (10.00-30.99) | 27.1200 | 1181347.20 | 0.00 | 0.00 | 1.00 | $352,579 | $5,044 |
| 2 | 35 | AC (10.00-30.99) | 1.3400 | 58370.40 | 0.00 | 0.00 | 1.00 | $17,421 | $194 |
Roll Value History
| 2026 | N/A | N/A | N/A | N/A | N/A |
| 2025 | $0 | $370,000 | $5,238 | $5,238 | $5,238 |
| 2024 | $0 | $340,000 | $5,267 | $5,267 | $5,267 |
| 2023 | $0 | $300,000 | $5,042 | $5,042 | $5,042 |
| 2022 | $0 | $310,000 | $5,042 | $5,042 | $5,042 |
| 2021 | $0 | $310,000 | $5,042 | $5,042 | $5,042 |
| 2020 | $0 | $310,000 | $5,042 | $5,042 | $5,042 |
| 2019 | $0 | $310,000 | $4,873 | $4,873 | $4,873 |
| 2018 | $0 | $200,000 | $4,816 | $4,816 | $4,816 |
| 2017 | $0 | $200,000 | $4,816 | $4,816 | $4,816 |
| 2016 | $0 | $200,000 | $2,874 | $2,874 | $2,874 |
| 2015 | $0 | $235,000 | $2,874 | $2,874 | $2,874 |
| 2014 | $0 | $210,462 | $2,874 | $2,874 | $2,874 |
| 2013 | $0 | $210,462 | $2,874 | $2,874 | $2,874 |
| 2012 | $0 | $210,462 | $2,874 | $2,874 | $2,874 |
| 2011 | $0 | $247,602 | $2,874 | $2,874 | $2,874 |
| 2010 | $0 | $247,602 | $2,874 | $2,874 | $2,874 |
| 2009 | $0 | $284,600 | $2,874 | $2,874 | $2,874 |
| 2008 | $0 | $227,680 | $2,874 | $2,874 | $2,874 |
| 2007 | $0 | $199,220 | $2,874 | $2,874 | $2,874 |
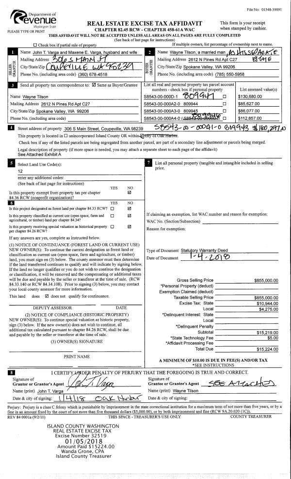
Deed and Sales History
| 1 | 12/13/2017 | QCD | Quit Claim Deed | BIXBY TRUSTEE, HARLAN K | BUSH POINT FARM, LLC | | | $0.00 | 32336 | 4436071 |
| 2 | 10/04/2013 | TRUSTEED | Trustee's Deed | BIXBY FAMILY LIMITED PARTNERSHIP | BIXBY TRUSTEE, HARLAN K | | | $0.00 | 13306 | 4350765 |
| 3 | 05/01/1986 | PACD | Purchaser's Assignment | BIXBY, HARLAN S | BIXBY, FMLY L | | | $0.00 | 61537 | 86007184 |
| 4 | 01/01/1900 | OTHER | Other - Misc. Documents | Unknown | BIXBY, HARLAN S | | | $0.00 | 0 | 0 |
Payout Agreement
| No payout information available.. |